Fußgängerzone - Leipziger Straße - Ladenlokal
6.650 €
Kaltmiete
6.650 €
Kaltmiete (netto)
6.935 €
Warmmiete
3
Zimmer
immobilien.de Nr.: 8713277
Objektnummer: MS-691-2021-GM
Preise & Kosten
| Kaltmiete | 6.650 € |
| Kaltmiete (netto) | 6.650 € |
| Warmmiete | 6.935 € |
| Nebenkosten | 285 € |
| Mietpreis pro m² | 35 € |
| Maklerprovision | keine zusätzliche Provision |
| Kaution | nach Vereinbarung |
Größe & Zustand
| Gesamtfläche | 190 m² |
| Zimmer | 3 |
| Baujahr | 1920 |
| Verfügbar ab | Ende 2022 |
| Zustand | Nach Vereinbarung |
Energie
| Heizungsart | Zentralheizung |
| Energieträger/Befeuerung | Gas |
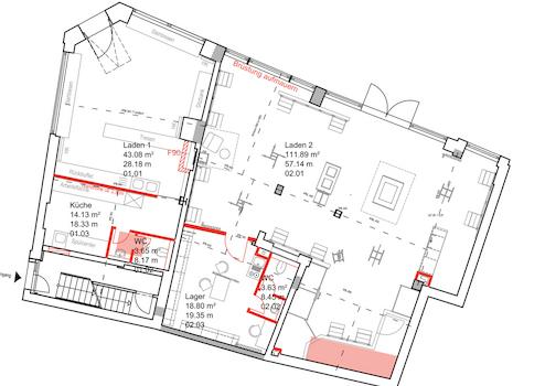
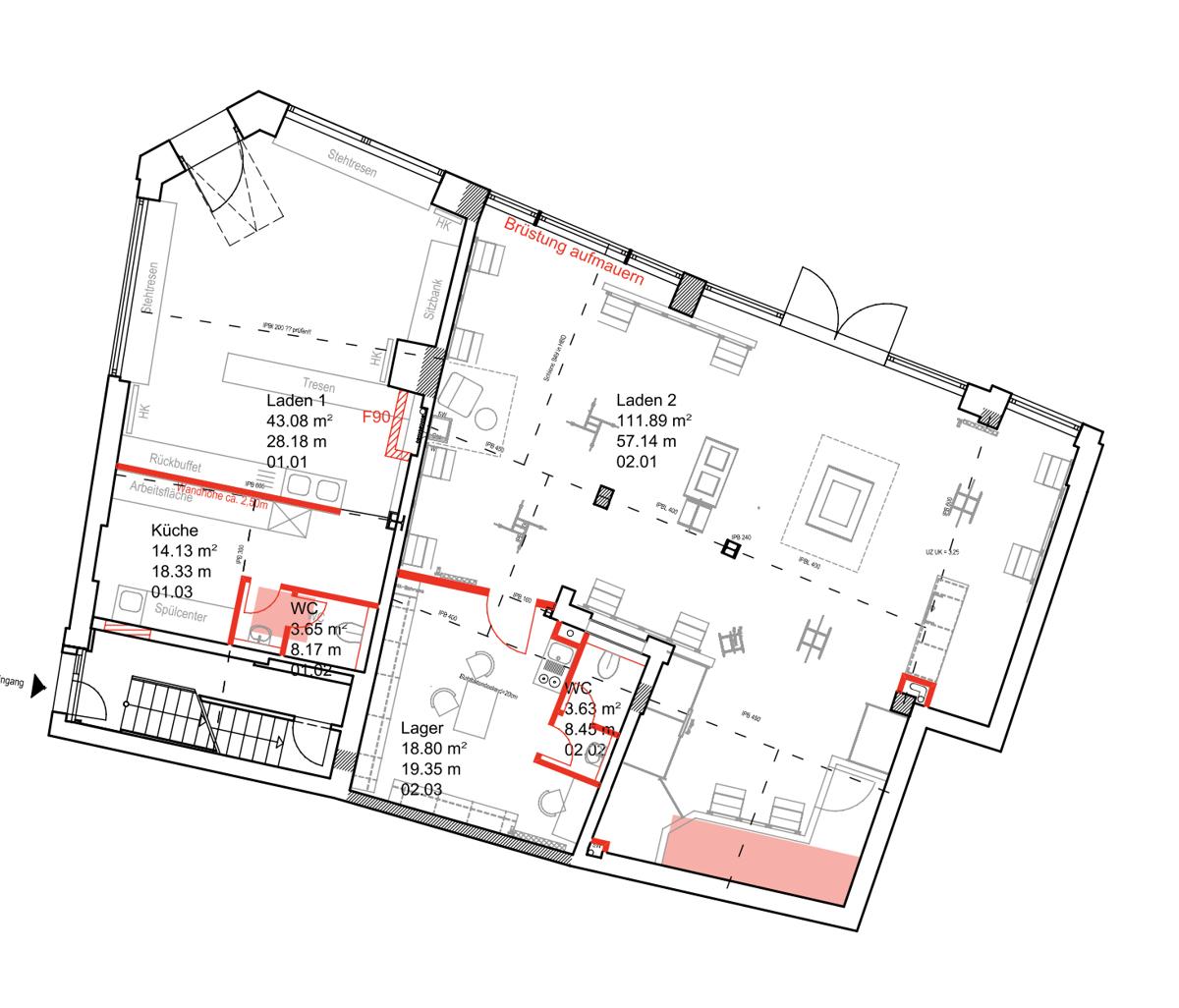
Objektbeschreibung
- ebenerdige Ladenfläche
- ca.190 m² Verkaufsfläche im EG
Die Mietflächen werden ausdrücklich zzgl. Umsatzsteuer vermietet.
- ca.190 m² Verkaufsfläche im EG
Die Mietflächen werden ausdrücklich zzgl. Umsatzsteuer vermietet.
Ausstattung
| Inserat befindet sich im Stockwerk | 0 |
| Barrierefrei |
Das Wohn- und Geschäftshaus wird nach erfolgreicher Einzelhandelsvermietung im Erdgeschoss saniert. Die Außenfassade wird gestrichen und die Schaufensteranlage ausgetauscht.
Sonstige Informationen
Achtung: Denkmal geschützte Immobilie! Kein Energieausweis!
3A Immobilien Gewerbe - deutschlandweit bekannt, regional stark!
Benennen Sie uns Ihr konkretes Anforderungsprofil und fordern Sie unser ganzes Engagement und Wissen für Ihre Wünsche !
über 70 weitere Gewerbeangebote in und um Halle!
HINWEIS: Wir bitten Sie, unsere allgemeinen Geschäftsbedingungen und die gemäß neuen EU-Verbrauchrichtlinien seit 13.06.2014 geltende Widerrufsbelehrung zu beachten. Wünschen Sie weitere Unterlagen, Informationen oder einen Besichtigungstermin bereits innerhalb der 14 tägigen Widerrufsfrist, bitten wir Sie dies ausdrücklich zu erklären.
3A Immobilien Gewerbe - deutschlandweit bekannt, regional stark!
Benennen Sie uns Ihr konkretes Anforderungsprofil und fordern Sie unser ganzes Engagement und Wissen für Ihre Wünsche !
über 70 weitere Gewerbeangebote in und um Halle!
HINWEIS: Wir bitten Sie, unsere allgemeinen Geschäftsbedingungen und die gemäß neuen EU-Verbrauchrichtlinien seit 13.06.2014 geltende Widerrufsbelehrung zu beachten. Wünschen Sie weitere Unterlagen, Informationen oder einen Besichtigungstermin bereits innerhalb der 14 tägigen Widerrufsfrist, bitten wir Sie dies ausdrücklich zu erklären.
Lage des Objektes
Hier gehen die Saalestädter einkaufen. Die Leipziger Straße ist der Boulevard der Stadt Halle und dient als die wichtigste Fußgängerverbindung zwischen dem Hauptbahnhof und dem Marktplatz. Hier kommt niemand an Ihnen vorbei!
Anbieter kontaktieren
Kontakt
| Telefon | 004934520933119 |
| Mobil | 004917681199964 |
| Fax | 004934520933120 |
| Website | www.3a-halle.de |
