Luxus Neubau-Mehrfamilienhaus in bester Moerser Lage, alle Wohnungen beziehbar, ein echtes Highlight
2.450.000 €
Kaufpreis
555 m²
Wohnfläche
15
Zimmer
immobilien.de Nr.: 9263516
Objektnummer: 25AL002MFH
Preise & Kosten
| Kaufpreis | 2.450.000 € |
| Nebenkosten | keine Angabe |
| Maklerprovision | 3,57% inkl. MwSt. |
| Stellplatz Freiplatz Kaufpreis | 0 € |
Größe & Zustand
| Wohnfläche | 555 m² |
| Grundstücksfläche | 733 m² |
| Zimmer | 15 |
| Baujahr | 2021 |
| Verfügbar ab | nach Absprache |
| Zustand | Neuwertig |
Energie
| Energieausweistyp | Bedarfsausweis |
| Gültig bis | 2029-12-16 |
| Baujahr (laut Energieausweis) | 2021 |
| Energieeffizienzklasse | A+ |
| Endenergiebedarf | 16.34 |
| Heizungsart | Fußbodenheizung |
| Wesentlicher Energieträger | Erdwaerme |
| Energieträger/Befeuerung | Erdwärme |
Objektbeschreibung
Luxuriöser Neubau in bester Moerser Lage!
Dieses 4-7 Parteienhaus in bester Moerser Lage bietet auf 550m² Wohnfläche den Gebäudestandard eines hochwertigen Einfamilienhauses! Mit Erdwärmepumpe, Fussbodenheizung und hochwertigster Ausstattung ist dieses Mehrfamilienhaus weit über einer normalen Ausbauqualität einzuordnen und befriedigt damit höchste Ansprüche an ein modernes und wertiges Wohnen.
Derzeit finden Sie im Haus 5 vollwertige Wohnungen vor. Davon eine 92m² große und eine 76m² große Wohnung im Erdgeschoss, zwei große Maisonette Wohnungen im 1. bzw. 2 Stock mit jeweils 165m² und eine weitere 51m² große Wohnung im Spitzboden, die derzeit nachgenehmigt wird.
Nach Bedarf lassen sich die beiden Erdgeschoss-Wohnungen verbinden, sodass im Haus drei sehr große Wohnungen + Spitzboden-Wohnung zur Verfügung stehen würden. Wer eine Aufteilung zum 7 Parteienhaus anstrebt, kann die beiden Maisonette-Wohnungen im 1.OG bzw. 2.OG aufteilen, sodass daraus vier 82m² große Wohnungen entstehen. Diese Optionen hatte der Eigentümer bereits beim Bau einplanen lassen.
Im Keller befinden sich neben dem obligatorischen Hausanschlussraum, dem Heizungsraum, einem Fahrradraum und einem Waschraum noch insgesamt 4 Privaträume sowie 2 weitere allgemeine Kellerräume.
Dieses 4-7 Parteienhaus in bester Moerser Lage bietet auf 550m² Wohnfläche den Gebäudestandard eines hochwertigen Einfamilienhauses! Mit Erdwärmepumpe, Fussbodenheizung und hochwertigster Ausstattung ist dieses Mehrfamilienhaus weit über einer normalen Ausbauqualität einzuordnen und befriedigt damit höchste Ansprüche an ein modernes und wertiges Wohnen.
Derzeit finden Sie im Haus 5 vollwertige Wohnungen vor. Davon eine 92m² große und eine 76m² große Wohnung im Erdgeschoss, zwei große Maisonette Wohnungen im 1. bzw. 2 Stock mit jeweils 165m² und eine weitere 51m² große Wohnung im Spitzboden, die derzeit nachgenehmigt wird.
Nach Bedarf lassen sich die beiden Erdgeschoss-Wohnungen verbinden, sodass im Haus drei sehr große Wohnungen + Spitzboden-Wohnung zur Verfügung stehen würden. Wer eine Aufteilung zum 7 Parteienhaus anstrebt, kann die beiden Maisonette-Wohnungen im 1.OG bzw. 2.OG aufteilen, sodass daraus vier 82m² große Wohnungen entstehen. Diese Optionen hatte der Eigentümer bereits beim Bau einplanen lassen.
Im Keller befinden sich neben dem obligatorischen Hausanschlussraum, dem Heizungsraum, einem Fahrradraum und einem Waschraum noch insgesamt 4 Privaträume sowie 2 weitere allgemeine Kellerräume.
Ausstattung
| Küche | Einbauküche |
| Bad | 6 |
| Boden | Fliesen |
| Garten | |
| Terrassen | 1 |
| Keller |
Räumlich:
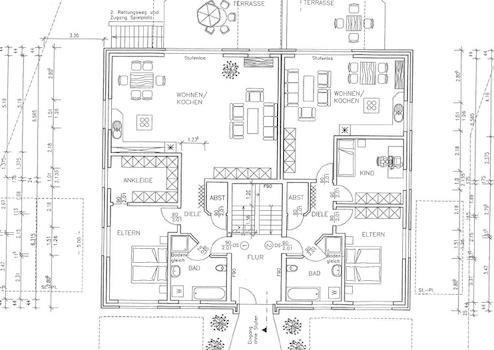
Wohnung 1. OG links: Diele, 2 Bäder, 4 Schlafzimmer, Wohn-Essbereich, Abstellraum, Balkon
Wohnung 1. OG recht: Diele, 2 Bäder, 4 Schlafzimmer, Wohn-Essbereich, Abstellraum, Balkon
Spitzboden: Schlafzimmer, Bad, offener Wohn- und Essbereich mit Küche, Abstellraum, Diele
Keller: Anschlussraum, Heizungsraum, Waschraum, Fahrradkeller, 2 allgemeine und 4 private Kellerräume
Technisch:
- Erdwärmepumpe
- Klimaanlagen für 4 Wohnungen
- Fußbodenheizung
- Maßangepasste Granitfliesen im Treppenhaus bis in den Spitzboden
- Hochwertige Fliesen, wie Quarzkomposit, teilweise Vinyl oder Teppichboden
- Feinputz bis in den Keller
- Designer Tapeten der Marke Roberto Cavalli
- Hochwertige Einbauküchen mit Kücheninseln und viele Luxus-Möbel können übernommen werden
Wohnung 1. OG links: Diele, 2 Bäder, 4 Schlafzimmer, Wohn-Essbereich, Abstellraum, Balkon
Wohnung 1. OG recht: Diele, 2 Bäder, 4 Schlafzimmer, Wohn-Essbereich, Abstellraum, Balkon
Spitzboden: Schlafzimmer, Bad, offener Wohn- und Essbereich mit Küche, Abstellraum, Diele
Keller: Anschlussraum, Heizungsraum, Waschraum, Fahrradkeller, 2 allgemeine und 4 private Kellerräume
Technisch:
- Erdwärmepumpe
- Klimaanlagen für 4 Wohnungen
- Fußbodenheizung
- Maßangepasste Granitfliesen im Treppenhaus bis in den Spitzboden
- Hochwertige Fliesen, wie Quarzkomposit, teilweise Vinyl oder Teppichboden
- Feinputz bis in den Keller
- Designer Tapeten der Marke Roberto Cavalli
- Hochwertige Einbauküchen mit Kücheninseln und viele Luxus-Möbel können übernommen werden
Sonstige Informationen
Selektive - Ihr Mehrwertmakler
Als besonderen Service bieten wir für Kaufinteressenten individuelle und unabhängige Finanzierungsberatungen an. Aus einer Vielzahl von Kreditgebern suchen wir für Sie das günstigste Angebot heraus und stellen Ihnen ein persönliches Konzept zusammen. Unsere Beratung ist für Sie selbstverständlich gebührenfrei.
Sie sind bereits Eigentümer einer Immobilie? Wir beraten Sie gerne und unverbindlich über Ihre Möglichkeiten. Ein Immobilienwertgutachten nach § 194 BauGB kann für Sie von unserem zertifizierten Gutachter erstellt werden. Besuchen Sie unsere Homepage www.selektive.de oder wenden Sie sich gleich an Ihren Immobilienprofi unter der Tel. 02841 88 99 60.
Als erstes etabliertes Maklerbüro am Niederrhein konnten wir den Qualitätsnachweis für IVD- Immobilienmakler und Hausverwalter die Verbandszertifizierung in Anlehnung an die DIN ISO 9000 ff erlangen. Seit 1994 sind wir Ihr verantwortungsbewusster Partner in Immobilienfragen.
Alle Angaben zum Objekt erfolgen im Namen unseres Auftraggebers und dienen einer ersten Information. Für die Richtigkeit und Vollständigkeit wird keine Haftung übernommen.
Als besonderen Service bieten wir für Kaufinteressenten individuelle und unabhängige Finanzierungsberatungen an. Aus einer Vielzahl von Kreditgebern suchen wir für Sie das günstigste Angebot heraus und stellen Ihnen ein persönliches Konzept zusammen. Unsere Beratung ist für Sie selbstverständlich gebührenfrei.
Sie sind bereits Eigentümer einer Immobilie? Wir beraten Sie gerne und unverbindlich über Ihre Möglichkeiten. Ein Immobilienwertgutachten nach § 194 BauGB kann für Sie von unserem zertifizierten Gutachter erstellt werden. Besuchen Sie unsere Homepage www.selektive.de oder wenden Sie sich gleich an Ihren Immobilienprofi unter der Tel. 02841 88 99 60.
Als erstes etabliertes Maklerbüro am Niederrhein konnten wir den Qualitätsnachweis für IVD- Immobilienmakler und Hausverwalter die Verbandszertifizierung in Anlehnung an die DIN ISO 9000 ff erlangen. Seit 1994 sind wir Ihr verantwortungsbewusster Partner in Immobilienfragen.
Alle Angaben zum Objekt erfolgen im Namen unseres Auftraggebers und dienen einer ersten Information. Für die Richtigkeit und Vollständigkeit wird keine Haftung übernommen.
Lage des Objektes
Moers - Diese charmante Stadt am linken Niederrhein ist bekannt für ihre idyllische Atmosphäre und hervorragende Lebensqualität mit idealer Nähe zu den umliegenden Großstädten.
Die Immobilie liegt in einem ruhigen und gepflegten Wohnviertel und einer der begehrtesten Lagen von Moers, welches sich durch seine Nähe zum Stadtkern und seine gute Anbindung an das Autobahnnetz auszeichnet.
Das Stadtzentrum von Moers mit seinen vielfältigen Einkaufsmöglichkeiten, Restaurants und kulturellen Angeboten ist lediglich 3 Kilometer entfernt und bequem mit dem Auto oder Fahrrad zu erreichen.
In unmittelbarer Umgebung zur Immobilie befinden sich zahlreiche Grünflächen und Felder, die zu erholsamen Spaziergängen mit dem Hund oder sportlichen Aktivitäten im Freien einladen.
Die gute Anbindung an öffentliche Verkehrsmittel ermöglicht eine schnelle Erreichbarkeit der umliegenden Großstädte wie Duisburg und Düsseldorf, was diese Lage besonders attraktiv für Pendler macht.
Zusammengefasst bietet diese Immobilie nicht nur eine erstklassige Lage in einer der bevorzugten Wohngegenden von Moers, sondern auch alle Annehmlichkeiten, die das tägliche Leben komfortabel und angenehm gestalten.
Die Immobilie liegt in einem ruhigen und gepflegten Wohnviertel und einer der begehrtesten Lagen von Moers, welches sich durch seine Nähe zum Stadtkern und seine gute Anbindung an das Autobahnnetz auszeichnet.
Das Stadtzentrum von Moers mit seinen vielfältigen Einkaufsmöglichkeiten, Restaurants und kulturellen Angeboten ist lediglich 3 Kilometer entfernt und bequem mit dem Auto oder Fahrrad zu erreichen.
In unmittelbarer Umgebung zur Immobilie befinden sich zahlreiche Grünflächen und Felder, die zu erholsamen Spaziergängen mit dem Hund oder sportlichen Aktivitäten im Freien einladen.
Die gute Anbindung an öffentliche Verkehrsmittel ermöglicht eine schnelle Erreichbarkeit der umliegenden Großstädte wie Duisburg und Düsseldorf, was diese Lage besonders attraktiv für Pendler macht.
Zusammengefasst bietet diese Immobilie nicht nur eine erstklassige Lage in einer der bevorzugten Wohngegenden von Moers, sondern auch alle Annehmlichkeiten, die das tägliche Leben komfortabel und angenehm gestalten.
Anbieter kontaktieren
Anbieter
Selektive Immobilien Service GmbH
Unterwallstr. 12
47441 Moers
Kontakt
| Telefon | 004928418899615 |
| Mobil | 004915144006691 |
| Fax | 004928418899610 |
| Website | www.selektive.de |
