2-Zimmer-Wohnung mit großem Balkon und Stellplatz nahe Schlossstraße
220.000 €
Kaufpreis
40,65 m²
Wohnfläche
2
Zimmer
immobilien.de Nr.: 9534057
Objektnummer: 6346
Kaufpreis
| Kaufpreis | 220.000 € |
| Kaufpreis pro m² | 5412,05 € |
| Hausgeld | 387,4 € |
| Maklerprovision | 3,57% inkl. gesetzl. MwSt. |
Wohnfläche, Grundstück & Bausubstanz
| Wohnfläche | 40,65 m² |
| Zimmer | 2 |
| Baujahr | 1985 |
| Verfügbar ab | sofort |
| Zustand | Gepflegt |
Energie
| Energieausweistyp | Verbrauch |
| Ausstellungsdatum | 15. 02. 2018 |
| Gültig bis | 14.02.2028 |
| Energieeffizienzklasse | F |
| Energieverbrauchkennwert | 171 kWh/(m²*a) |
| Heizungsart | Zentralheizung |
| Wesentlicher Energieträger | Öl |
| Energieträger/Befeuerung | Öl |
Beschreibung der Immobilie
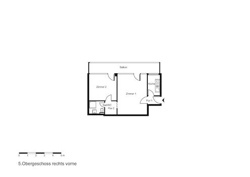
Diese helle und lichtdurchflutete 2-Zimmer-Wohnung befindet sich im 5. Obergeschoss eines Mehrfamilienhauses aus dem Jahr 1985. Die Wohnung ist bequem über einen Aufzug erreichbar und bietet auf ca. 40,56 m² eine praktische Raumaufteilung.
Der Wohnbereich wird durch den Zugang zum großzügigen Balkon ergänzt, dieser erstreckt sich über die gesamte Breite der Wohnung und bietet einen tollen Blick über Steglitz – ideal, um sonnige Nachmittage und Abende zu genießen.
Eine separate Einbauküche ist vorhanden und fügt sich harmonisch in den Grundriss ein. Das Badezimmer ist mit einer Dusche ausgestattet. Holzfenster sowie ein Abstellraum im Dachgeschoss ergänzen das Angebot.
Die Wohnung ist bezugsfrei und eignet sich sowohl zur Eigennutzung als auch zur Vermietung. Ein Tiefgaragenstellplatz ist im Kaufpreis enthalten und rundet das Gesamtangebot ab. Die Lage in der Nähe der Schlossstraße bietet kurze Wege zu Einkaufsmöglichkeiten, Gastronomie und weiteren Einrichtungen des täglichen Bedarfs.
Der Wohnbereich wird durch den Zugang zum großzügigen Balkon ergänzt, dieser erstreckt sich über die gesamte Breite der Wohnung und bietet einen tollen Blick über Steglitz – ideal, um sonnige Nachmittage und Abende zu genießen.
Eine separate Einbauküche ist vorhanden und fügt sich harmonisch in den Grundriss ein. Das Badezimmer ist mit einer Dusche ausgestattet. Holzfenster sowie ein Abstellraum im Dachgeschoss ergänzen das Angebot.
Die Wohnung ist bezugsfrei und eignet sich sowohl zur Eigennutzung als auch zur Vermietung. Ein Tiefgaragenstellplatz ist im Kaufpreis enthalten und rundet das Gesamtangebot ab. Die Lage in der Nähe der Schlossstraße bietet kurze Wege zu Einkaufsmöglichkeiten, Gastronomie und weiteren Einrichtungen des täglichen Bedarfs.
Ausstattungsmerkmale
| Inserat befindet sich im Stockwerk | 5 |
| Küche | Einbauküche |
| Bad | 1 |
| Bad | Dusche |
| Boden | Fliesen, Laminat |
| Balkone | 1 |
| Fahrstuhl | |
| Keller |
Baujahr 1985
Aufzug vorhanden
großer Balkon
Einbauküche
Badezimmer mit Dusche
Holzfenster
Abstellraum im Dachgeschoss
bezugsfrei
Tiefgaragenstellplatz inklusive
nahe Schlossstraße
Aufzug vorhanden
großer Balkon
Einbauküche
Badezimmer mit Dusche
Holzfenster
Abstellraum im Dachgeschoss
bezugsfrei
Tiefgaragenstellplatz inklusive
nahe Schlossstraße
Karte wird geladen...
Objektstandort
Erlenstraße 19
12167 Berlin
- Berlin
Lage & Infrastruktur
Objektstandort
Erlenstraße 19
12167 Berlin
- Berlin
Die Erlenstraße liegt in einer ruhigen Wohnstraße im Berliner Ortsteil Steglitz und überzeugt durch ihre zentrale und zugleich angenehme Lage im Südwesten der Stadt. Die Umgebung ist geprägt von gepflegten Wohnhäusern, gewachsenen Strukturen und einer sehr guten Infrastruktur. In wenigen Minuten erreicht man die Schloßstraße, eine der wichtigsten Einkaufsstraßen Berlins mit zahlreichen Geschäften, Einkaufszentren, Restaurants und Cafés. Auch die Nahversorgung im direkten Umfeld ist hervorragend: Supermärkte, Bäckereien und weitere Einrichtungen des täglichen Bedarfs sind bequem erreichbar. Für Erholung im Grünen bieten sich der nahegelegene Stadtpark Steglitz sowie der Bäkepark an, die zu Spaziergängen und Freizeitaktivitäten einladen. Die Anbindung an den öffentlichen Nahverkehr ist sehr gut. Über den nahegelegenen S- und U-Bahnhof Rathaus Steglitz sowie verschiedene Buslinien bestehen schnelle Verbindungen in die Berliner Innenstadt und angrenzende Bezirke. Auch mit dem Auto ist die Lage durch die gute Erreichbarkeit der Stadtautobahn optimal angebunden. Bildungseinrichtungen wie Schulen, Kitas sowie der Campus Benjamin Franklin der Charité befinden sich in der näheren Umgebung und unterstreichen die Attraktivität des Standorts für unterschiedliche Lebenssituationen.
Kontaktanfrage senden
Über den Anbieter
David Borck Immobiliengesellschaft mbH
Schlüterstr. 45
10707 Berlin
Kontakt
| Telefon | +49 30 887 742 50 |
| Website | www.david-borck.de |
Ansprechpartner/in
Nele Steinberg
Weitere Angebote des Anbieters
14
2-Zimmer-Wohnung mit großem Balkon und Stellplatz nahe ...
Wohnung
12167 Berlin
Diese helle und lichtdurchflutete 2-Zimmer-Wohnung befindet sich im 5. Obergeschoss eines Mehrfamilienhauses aus dem Jahr 1985. Die Wohnung ist bequem über einen Aufzug erreichbar und bietet auf ca. 40,56 m² eine ...
220.000 €
Kaufpreis
5412,05 €
Kaufpreis pro m²
40,65 m²
Wohnfläche
2
Zimmer
13
Ihre Chance in Steglitz: 2 Zimmer mit Balkon – perfekt ...
Wohnung
12169 Berlin
Diese 2-Zimmer-Wohnung befindet sich im 2. Obergeschoss eines gepflegten Mehrfamilienhauses aus dem Jahr 1930 im gefragten Berliner Stadtteil Steglitz. Auf ca. 58 m² Wohnfläche bietet sie einen durchdachten Grundriss ...
239.000 €
Kaufpreis
4149,3 €
Kaufpreis pro m²
57 m²
Wohnfläche
2
Zimmer
15
Ausbaupotenzial über den Dächern Kreuzbergs in ...
Wohnung
10997 Berlin
Der historische Altbau in der Sorauer Straße 23, erbaut im Jahr 1900, vereint den charakteristischen Charme klassischer Berliner Architektur mit zeitgemäßer Wohnqualität. Die Stuckfassade, das traditionelle Treppenhaus ...
299.000 €
Kaufpreis
1763 €
Kaufpreis pro m²
169,64 m²
Wohnfläche
5
Zimmer
9
Leben in Steglitz – gut geschnittene 2-Zimmer-Wohnung ...
Wohnung
12169 Berlin
Diese 2-Zimmer-Wohnung liegt im 2. Obergeschoss eines Mehrfamilienhauses aus dem Jahr 1930 im beliebten Steglitz. Die ca. 57 m² große Wohnung verfügt über einen funktionalen Grundriss mit zwei gut geschnittenen Zimmern ...
239.000 €
Kaufpreis
4173,94 €
Kaufpreis pro m²
57,26 m²
Wohnfläche
2
Zimmer
21
Exklusives Wohnen im Villenpark Potsdam
Haus
14476 Potsdam
In familienfreundlicher Lage von Potsdam Groß Glienicke, im exklusiven Neubauviertel „Villenpark“, präsentiert sich diese moderne Stadtvilla aus dem Jahr 2015 auf einem rund 1.101 m² großen Süd-West-Grundstück. Die ...
1.250.000 €
Kaufpreis
172 m²
Wohnfläche
5
Zimmer