freistehendes EFH in Aplerbecker-Mark, renovierter Altbau
649.000 €
Kaufpreis
187 m²
Wohnfläche
9
Zimmer
immobilien.de Nr.: 9524741
Objektnummer: 439750
Kaufpreis
| Kaufpreis | 649.000 € |
| Maklerprovision | keine Provision, courtagefrei |
Wohnfläche, Grundstück & Bausubstanz
| Wohnfläche | 187 m² |
| Grundstücksfläche | 516 m² |
| Zimmer | 9 |
| Baujahr | 1903 |
| Verfügbar ab | 01.05.2026 |
| Zustand | Teil Vollrenoviert |
Energie
| Energieausweistyp | Bedarfsausweis |
| Energieeffizienzklasse | F |
| Endenergiebedarf | 195 |
| Heizungsart | Zentralheizung |
| Energieträger/Befeuerung | Gas |
Beschreibung der Immobilie
In angenehmer Nachbarschaft liegt dieses in 2020 renovierte
Ein- bis Zweifamilienhaus. Einladend und wohlig empfängt Sie die
Diele mit kleiner Sitzecke, die eine Sichtachse über das
Arbeitszimmer hinaus in den Garten bietet. Den Mittelpunkt
im Erdgeschoss bildet der großzügige und gemütliche Wohn-
/Essbereich welcher durch den gepflegten Dielenboden und
dem behaglichen Kamin ein warmes Wohngefühl verliehen
bekommt. Ein Blickfang ist die Küche mit Kochinsel. Hier
lassen sich gemeinsam mit Freunden köstliche Speisen
zubereiten und genießen. Von der Sonnenterrasse führt der
Weg in den geschmackvoll gestalteten, uneinsehbaren,
idyllischen Garten, der von der Hektik des Tages entspannen
lässt. Ergänzt wird die Fläche durch eine ‚Gartenküche‘ mit
angrenzendem Hauswirtschaftsraum und einem Badezimmer
mit Dusche. Die Fenster im Treppenaufgang sorgen für eine
angenehme Helligkeit. Auf der oberen Ebene runden der
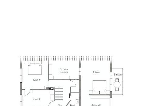
Master-Bedroom mit Ankleide und Schuhzimmer, ein
modernes Bad mit Wanne sowie zwei Kinderzimmer das
Wohnangebot ab. Die überlange Garage bietet genügend
Platz für zwei PKWs.
Haben wir Sie überzeugt? Dann melden Sie sich noch heute
für einen Besichtigungstermin!
Ein- bis Zweifamilienhaus. Einladend und wohlig empfängt Sie die
Diele mit kleiner Sitzecke, die eine Sichtachse über das
Arbeitszimmer hinaus in den Garten bietet. Den Mittelpunkt
im Erdgeschoss bildet der großzügige und gemütliche Wohn-
/Essbereich welcher durch den gepflegten Dielenboden und
dem behaglichen Kamin ein warmes Wohngefühl verliehen
bekommt. Ein Blickfang ist die Küche mit Kochinsel. Hier
lassen sich gemeinsam mit Freunden köstliche Speisen
zubereiten und genießen. Von der Sonnenterrasse führt der
Weg in den geschmackvoll gestalteten, uneinsehbaren,
idyllischen Garten, der von der Hektik des Tages entspannen
lässt. Ergänzt wird die Fläche durch eine ‚Gartenküche‘ mit
angrenzendem Hauswirtschaftsraum und einem Badezimmer
mit Dusche. Die Fenster im Treppenaufgang sorgen für eine
angenehme Helligkeit. Auf der oberen Ebene runden der
Master-Bedroom mit Ankleide und Schuhzimmer, ein
modernes Bad mit Wanne sowie zwei Kinderzimmer das
Wohnangebot ab. Die überlange Garage bietet genügend
Platz für zwei PKWs.
Haben wir Sie überzeugt? Dann melden Sie sich noch heute
für einen Besichtigungstermin!
Ausstattungsmerkmale
| Anzahl der Etagen im Haus | 2 |
| Küche | Einbauküche |
| Bad | 2 |
| Bad | Dusche, Wanne |
| Boden | Fliesen, Parkett |
| Balkone | 1 |
| Garten | |
| Terrassen | 1 |
| Garage/Stellplätze | 2 |
| Keller |
Balkon, Terrasse, Garten, Keller, Vollbad, Duschbad, Einbauküche, Gäste-WC, Kamin, Parkett, Fliesen
Bemerkungen:
In sämtlichen Wohn- und Schlafräumen sind Holzböden verlegt. Im EG liegt hochwertiges Eichenparkett und im OG liegen im Haupthaus noch die über hundert Jahre alten Holzdielen aus dem Ursprungsbaujahr, die 2020 abgeschliffen wurden.
Im Wohnzimmer wurde ein neuer, energieeffizienter, zweischeibiger Eckkamin installiert.
Die hochwertige, weiße Schüller-Küche mit Markengeräten und Bora-Kochfeld kann übernommen werden.
Bemerkungen:
In sämtlichen Wohn- und Schlafräumen sind Holzböden verlegt. Im EG liegt hochwertiges Eichenparkett und im OG liegen im Haupthaus noch die über hundert Jahre alten Holzdielen aus dem Ursprungsbaujahr, die 2020 abgeschliffen wurden.
Im Wohnzimmer wurde ein neuer, energieeffizienter, zweischeibiger Eckkamin installiert.
Die hochwertige, weiße Schüller-Küche mit Markengeräten und Bora-Kochfeld kann übernommen werden.
Sonstige Informationen
Heizungsart: Zentralheizung
Energieträger: Gas
Makleranfragen nicht erwünscht. Nach § 7 UWG sind unaufgeforderte Kontaktaufnahmen durch Makler ohne ausdrückliche Einwilligung des Empfängers verboten!
ohne-makler (OM) ist weder Anbieter noch Vermittler der Immobilie. OM betreibt eine Plattform für Immobilieneigentümer, die unter anderem die gleichzeitige Veröffentlichung einzelner Inserate auf mehreren Immobilienportalen ermöglicht. Die Inhalte dieser Inserate werden ausschließlich von Dritten verantwortet. Für die Richtigkeit, Vollständigkeit oder Rechtmäßigkeit der Angaben übernimmt OM keine Haftung. Hinweise auf mögliche Rechtsverstöße können jederzeit gemeldet werden und werden nach Prüfung umgehend bearbeitet.
Energieträger: Gas
Makleranfragen nicht erwünscht. Nach § 7 UWG sind unaufgeforderte Kontaktaufnahmen durch Makler ohne ausdrückliche Einwilligung des Empfängers verboten!
ohne-makler (OM) ist weder Anbieter noch Vermittler der Immobilie. OM betreibt eine Plattform für Immobilieneigentümer, die unter anderem die gleichzeitige Veröffentlichung einzelner Inserate auf mehreren Immobilienportalen ermöglicht. Die Inhalte dieser Inserate werden ausschließlich von Dritten verantwortet. Für die Richtigkeit, Vollständigkeit oder Rechtmäßigkeit der Angaben übernimmt OM keine Haftung. Hinweise auf mögliche Rechtsverstöße können jederzeit gemeldet werden und werden nach Prüfung umgehend bearbeitet.
Karte wird geladen...
Objektstandort
44287 Dortmund
- Nordrhein-Westfalen
Lage & Infrastruktur
Objektstandort
44287 Dortmund
- Nordrhein-Westfalen
Die Immobilie befindet sich in einer Sackgasse im
südöstlichen Bereich Dortmunds - in Aplerbeck, südlich vom
PHOENIX See und nördlich vom Schwerter Wald. Das
Wohnumfeld wird von Einfamilienhäusern mit
geschmackvoll gestalteten Gärten sowie von kleinen, aber
ansehnlichen Mehrfamilienhäusern geprägt. Wichtige
Nahversorgungseinrichtungen für den täglichen Bedarf
befinden sich in den Zentrumlagen von Berghofen und
Aplerbeck sowie im Einzelhandelsbereich der Schwerter
Straße. Hier sind ebenfalls Ärzte, Banken und weitere
Dienstleistungsunternehmen angesiedelt. Kindergärten, eine
Grundschule und ein Gymnasium sind fußläufig erreichbar.
In wenigen Autominuten gelangen Sie in die Innenstadt
sowie auf die Bundestraßen B236 und die B1.
Infrastruktur (im Umkreis von 5 km):
Apotheke, Lebensmittel-Discount, Allgemeinmediziner, Kindergarten, Grundschule, Hauptschule, Realschule, Gymnasium, Gesamtschule, Öffentliche Verkehrsmittel
südöstlichen Bereich Dortmunds - in Aplerbeck, südlich vom
PHOENIX See und nördlich vom Schwerter Wald. Das
Wohnumfeld wird von Einfamilienhäusern mit
geschmackvoll gestalteten Gärten sowie von kleinen, aber
ansehnlichen Mehrfamilienhäusern geprägt. Wichtige
Nahversorgungseinrichtungen für den täglichen Bedarf
befinden sich in den Zentrumlagen von Berghofen und
Aplerbeck sowie im Einzelhandelsbereich der Schwerter
Straße. Hier sind ebenfalls Ärzte, Banken und weitere
Dienstleistungsunternehmen angesiedelt. Kindergärten, eine
Grundschule und ein Gymnasium sind fußläufig erreichbar.
In wenigen Autominuten gelangen Sie in die Innenstadt
sowie auf die Bundestraßen B236 und die B1.
Infrastruktur (im Umkreis von 5 km):
Apotheke, Lebensmittel-Discount, Allgemeinmediziner, Kindergarten, Grundschule, Hauptschule, Realschule, Gymnasium, Gesamtschule, Öffentliche Verkehrsmittel
Kontaktanfrage senden
Über den Anbieter
OM PropTech GmbH
Humboldtstraße 25a
21509 Glinde
Kontakt
| Telefon | - |
| Fax | - |
| Website | www.ohne-makler.net |
Ansprechpartner/in
Privat von Hr. Frank
Weitere Angebote des Anbieters
8
Großzügige 3-Zimmer-Wohnung, frisch modernisiert, ...
Wohnung
39108 Magdeburg
Großzügige 3-Zimmer-Altbauwohnung – frisch modernisiert, mit Stuck, Wannenbad, Duschbad und Gäste-WC – ideal für Familien Diese großzügige Vierzimmerwohnung in einem klassischen Altbau steht ab 01.04.2026 zur Verfügung ...
870 €
Kaltmiete (netto)
92 m²
Wohnfläche
3
Zimmer
12
Kernsaniert 2025: 3 Zi (96,5 m²) mit EBK, 2 Bädern, ...
Wohnung
16321 Berlin
Bei der Immobilie handelt es sich um eine 3-Zimmer-Wohnung mit hohen Decken aus dem Jahr 1932, welche in 2025 kernsaniert wurde. Die Wohnung befindet sich im EG (Hochparterre), ist modern und offen gestaltet. In der ...
1.400 €
Kaltmiete (netto)
96,5 m²
Wohnfläche
4
Zimmer
42
Einfamilienhaus mit 6 Zimmern - 126m2 - zentrale Lage ...
Haus
91327 Gößweinstein
Von privat – keine Maklerprovision Einfamilienhaus in zentraler Lage von Gössweinstein – nur ca. 300 Meter zur Basilika und zum Ortszentrum. Die Immobilie bietet ca. 126 m² Wohnfläche auf 3 Etagen sowie ca. 25 m² ...
99.000 €
Kaufpreis
126 m²
Wohnfläche
6
Zimmer
25
Exklusive Doppelhaushälfte - modern & ruhig
Haus
82166 Gräfelfing
Diese ansprechende Doppelhaushälfte besticht durch ihre ruhige Lage in einem gewachsenen Wohnumfeld sowie durch ihren nahezu neuwertigen Zustand. Eine durchdachte und großzügige Raumgestaltung sorgt in Kombination mit ...
3.500 €
Kaltmiete (netto)
180 m²
Wohnfläche
6
Zimmer
9
Traumhafte 3-Zi-EG-Whg. mit 2 Terrassen
Wohnung
60599 Frankfurt am Main
In einem sehr gepflegten 4 Parteienhaus mit exzellenter Mieterstruktur befindet sich im Erdgeschoß diese perfekt geschnittene 3 Zimmerwohnung mit 80 m² sowie einer Süd- und einer Nordterrasse mit insgesamt 12 m². Sie ...
1.490 €
Kaltmiete (netto)
80 m²
Wohnfläche
3
Zimmer