AIGNER - Modernisiertes Reihenmittelhaus in ruhiger Lage – Ihr neues Zuhause wartet!
899.000 €
Kaufpreis
147,5 m²
Wohnfläche
5,5
Zimmer
immobilien.de Nr.: 9157149
Objektnummer: 42168
Preise & Kosten
| Kaufpreis | 899.000 € |
| Nebenkosten | keine Angabe |
| Maklerprovision | 3,57% |
Größe & Zustand
| Wohnfläche | 147,5 m² |
| Grundstücksfläche | 304 m² |
| Zimmer | 5,5 |
| Baujahr | 1976 |
| Verfügbar ab | ab sofort |
| Zustand | Teil Vollrenoviert |
Energie
| Heizungsart | Zentralheizung |
| Energieträger/Befeuerung | Gas |
Objektbeschreibung
Dieses helle, modernisierte Reihenhaus besticht durch die offene Gestaltung und Sichtachse direkt in den Garten. Besonders angenehm ist die Süd/West-Ausrichtung. Der offene Wohn- und Essbereich ist mit schönen verschnörkelten Säulen ausgestattet, die dem Raum eine elegante Note verleihen. Im Essbereich gibt es zudem schöne Wandverzierungen in Steinoptik, die für eine gemütliche Atmosphäre sorgen.
Die freundlichen Wohnräume erstrecken sich über drei Ebenen. Im Erdgeschoss befindet sich die Küche mit Terrassentüre zum Vorgarten und der große Wohn-/Essbereich. Bei der Küche besteht die Möglichkeit, sich mit einer passenden Einbauküche schön zu verwirklichen. Nach Südwesten öffnet sich der Raum mit großem Fensterband zur Gartenterrasse.
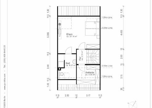
Weiter zum Obergeschoss sind hier zwei Schlafzimmer und ein Bad mit Wanne und Dusche untergebracht. Der Balkon über die gesamte Hausbreite bietet beruhigende Sicht in den Garten.
Ein weiteres, großzügiges Schlafzimmer (Studio) liegt ein Stockwerk höher im Dachgeschoss. Praktisch ist das angrenzende Duschbad. Eine weitere Kammer dient aktuell als Ankleidezimmer.
Das Untergeschoss bietet neben dem Technikraum einen Raum für die Wäsche etc., sowie einen schönen beheizten Hobbyraum.
In einem Garagenhof – unmittelbar hinter dem Grundstück (zugänglich durch den Garten) – befindet sich die Einzelgarage. Der Stauraum wird durch ein weiteres Gartenhäuschen erweitert.
Die freundlichen Wohnräume erstrecken sich über drei Ebenen. Im Erdgeschoss befindet sich die Küche mit Terrassentüre zum Vorgarten und der große Wohn-/Essbereich. Bei der Küche besteht die Möglichkeit, sich mit einer passenden Einbauküche schön zu verwirklichen. Nach Südwesten öffnet sich der Raum mit großem Fensterband zur Gartenterrasse.
Weiter zum Obergeschoss sind hier zwei Schlafzimmer und ein Bad mit Wanne und Dusche untergebracht. Der Balkon über die gesamte Hausbreite bietet beruhigende Sicht in den Garten.
Ein weiteres, großzügiges Schlafzimmer (Studio) liegt ein Stockwerk höher im Dachgeschoss. Praktisch ist das angrenzende Duschbad. Eine weitere Kammer dient aktuell als Ankleidezimmer.
Das Untergeschoss bietet neben dem Technikraum einen Raum für die Wäsche etc., sowie einen schönen beheizten Hobbyraum.
In einem Garagenhof – unmittelbar hinter dem Grundstück (zugänglich durch den Garten) – befindet sich die Einzelgarage. Der Stauraum wird durch ein weiteres Gartenhäuschen erweitert.
Ausstattung
| Bad | 2 |
| Garage/Stellplätze | 1 |
- umfangreiche Modernisierungen:
2010: Eingangstür, alle Innentüren, Parkett- und Fliesenböden
2014: neue Fenster
2015: neue Gasheizung
2019: Markise neu bespannt
- Fußbodenheizung in den Bädern und Küche
- Terrasse mit Markise
- Parkettfußboden (Wohnzimmer, 1. OG, DG)
- Möglichkeit der Aufteilung des Schlafzimmers in zwei Räume
- raumhoher Säulenheizkörper
- Panorama-Dachflächenfenster im Studio
- Bäder gefliest und mit hochwertigem Juramarmor
- Rollläden
- eingewachsener Garten mit Zugang zu Fußweg und Garagenhof
- großer Balkon
- Süd/West-Ausrichtung
- Gartenhaus
2010: Eingangstür, alle Innentüren, Parkett- und Fliesenböden
2014: neue Fenster
2015: neue Gasheizung
2019: Markise neu bespannt
- Fußbodenheizung in den Bädern und Küche
- Terrasse mit Markise
- Parkettfußboden (Wohnzimmer, 1. OG, DG)
- Möglichkeit der Aufteilung des Schlafzimmers in zwei Räume
- raumhoher Säulenheizkörper
- Panorama-Dachflächenfenster im Studio
- Bäder gefliest und mit hochwertigem Juramarmor
- Rollläden
- eingewachsener Garten mit Zugang zu Fußweg und Garagenhof
- großer Balkon
- Süd/West-Ausrichtung
- Gartenhaus
Sonstige Informationen
Energiekennwert: 65,61 kWh/(m²*a)
Energieeffizienzklasse: B
Heizungsart: Zentralheizung
Befeuerung/Energieträger: Gas
Energieausweistyp: Verbrauchsausweis
Baujahr: 1976
Energieeffizienzklasse: B
Heizungsart: Zentralheizung
Befeuerung/Energieträger: Gas
Energieausweistyp: Verbrauchsausweis
Baujahr: 1976
Lage des Objektes
Schön eigewachsen in einer absolut ruhigen Wohnlage. Es erfüllt alle Wünsche nach dem eigenen Haus im Grünen, naturnah, aber trotzdem im direkten Umfeld einer perfekt gewachsenen Infrastruktur für den täglichen Bedarf.
Die Gartenstadt Gröbenzell (ca. 20 000 Einwohner) gehört zu den beliebtesten und begrüntesten Umlandgemeinden in München und schließt mit seiner Fläche direkt an den Münchner Stadtteil Lochhausen an.
Zahlreiche Kindergärten, Grundschulen sowie ein Gymnasium und eine Waldorfschule machen den Vorort auch für Familien attraktiv.
Die Nähe zu München und die öffentliche Verkehrsanbindung des MVV sind für Pendler ideal. Von der S-Bahnstation Gröbenzell (S3) oder Lochhausen (S3), die ungefähr gleich weit entfernt sind, gelangen Sie im 10 bzw. 20 Minutentakt in ca. 20 Minuten zum Münchner Hauptbahnhof.
In nur wenigen Minuten erreichen Sie die Autobahnen A8, A96 und A 99. Zum Flughafen München kommen Sie bequem mit dem Auto in ca. 30 Minuten.
Wer seine Freizeit gerne im Freien verbringt, kommt in Gröbenzell voll auf seine Kosten: zahlreiche Wald-, Feld- und Radwege laden zum Joggen und Radfahren ein. Zwei große Golfplätze - Golfclub Olching sowie der Golfplatz Eschenried sind etwa 10 Autominuten entfernt.
Die Badeseen: Birken-, Luß-, Langwieder- und der Olchinger See sind schnell mit dem Rad in wenigen Minuten zu erreichen.
Das Naherholungsgebiet "Aubinger Lohe" und der Badesee Böhmer Weiher sind ebenfalls in Radlnähe.
Die Gartenstadt Gröbenzell (ca. 20 000 Einwohner) gehört zu den beliebtesten und begrüntesten Umlandgemeinden in München und schließt mit seiner Fläche direkt an den Münchner Stadtteil Lochhausen an.
Zahlreiche Kindergärten, Grundschulen sowie ein Gymnasium und eine Waldorfschule machen den Vorort auch für Familien attraktiv.
Die Nähe zu München und die öffentliche Verkehrsanbindung des MVV sind für Pendler ideal. Von der S-Bahnstation Gröbenzell (S3) oder Lochhausen (S3), die ungefähr gleich weit entfernt sind, gelangen Sie im 10 bzw. 20 Minutentakt in ca. 20 Minuten zum Münchner Hauptbahnhof.
In nur wenigen Minuten erreichen Sie die Autobahnen A8, A96 und A 99. Zum Flughafen München kommen Sie bequem mit dem Auto in ca. 30 Minuten.
Wer seine Freizeit gerne im Freien verbringt, kommt in Gröbenzell voll auf seine Kosten: zahlreiche Wald-, Feld- und Radwege laden zum Joggen und Radfahren ein. Zwei große Golfplätze - Golfclub Olching sowie der Golfplatz Eschenried sind etwa 10 Autominuten entfernt.
Die Badeseen: Birken-, Luß-, Langwieder- und der Olchinger See sind schnell mit dem Rad in wenigen Minuten zu erreichen.
Das Naherholungsgebiet "Aubinger Lohe" und der Badesee Böhmer Weiher sind ebenfalls in Radlnähe.
Anbieter kontaktieren
Kontakt
| Telefon | +49(89) 17 87 87 0 |
| Fax | (089) 17 87 87 88 |
| Website | www.aigner-immobilien.de |
