** Einzelhandelsladen in frequentierter Lage im Ortszentrum! **

26689 Apen / Augustfehn
Frei ab: sofort
1.000 € Kaltmiete
4,08 € Preis/m² ca.
1,02 € NK/m²
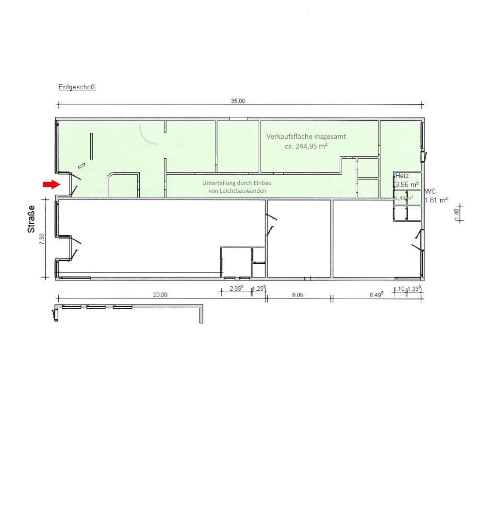
Verkaufsfläche
244,95 m²

Mietpreis & Nebenkosten

Kaltmiete1.000 €
Nebenkosten 250 €
Kaution 2.000 €
Maklerprovision2,38 Monatskaltmieten inkl. ges. MwSt.

Wohnfläche, Grundstück & Bausubstanz

Nutzfläche7,28 m²
Gesamtfläche252,21 m²
Verkaufsfläche244,95 m²
Baujahr1990
Verfügbar ab sofort

Beschreibung der Immobilie

In optimaler Ortskernlage von Augustfehn, in der Mühlenstraße, befindet sich dieser ca. 252,21 m² große Einzelhandelsladen, in dem bislang ein Angelshop betrieben wurde.

Die Gewerbeeinheit unterteilt sich in eine großzügige Verkaufsfläche mit diversen Nebenräumen. Im Jahr 2013 wurde die Fläche im Zuge umfangreicher Umbaumaßnahmen neu gestaltet. Dabei wurden unter anderem mehrere Leichtbauwände eingezogen sowie zusätzliche WC-Anlagen installiert.

Die aktuelle Raumaufteilung stellt sich wie folgt dar: Ein vorderer Verkaufsraum mit Tresen und offenem Zugang zum Büro, eine Küche bzw. ein Personalraum, ein Abstellraum, ein langer Flur, ein weiterer Verkaufs- oder Lagerraum, insgesamt drei WCs (davon zwei modernisiert), ein zusätzlicher Lagerraum sowie ein Heizungsraum.

Die große Fensterfront sorgt für helle und freundliche Räumlichkeiten mit ansprechender Außenwirkung.

Die zentrale Lage im Ortskern gewährleistet zudem eine gute Sichtbarkeit sowie eine hohe Kundenfrequenz.

Der Mietantritt kann nach Absprache kurzfristig erfolgen.

Die monatliche Kaltmiete beträgt 1.000,00 € zzgl. 19 % MwSt. sowie Nebenkosten in Höhe von 250,00 € zzgl. 19 % MwSt.

Ausreichende Parkflächen stehen neben und hinter dem Gebäude zur Verfügung. Der Bahnhof ist fußläufig erreichbar.

Energie

EnergieausweistypBedarfsausweis
Gültig bis2027-01-15
Baujahr (laut Energieausweis)1990
Endenergiebedarf73.52
Wesentlicher EnergieträgerGas
Energieträger/Befeuerung Gas

Karte wird geladen...
26689 Apen / Augustfehn

Lage & Infrastruktur

Objektlage:
- zentrumsnahe und ruhige Wohnlage
- verkehrsberuhigte und gewachsene Wohnsiedlung
- nachbarschaftliche Bebauung mit Ein-/Zweifamilienhäusern
- Spazier- und Radwege in unmittelbarer Nähe

In Augustfehn finden Sie u.a. direkt vor Ort:
- Ärzte, Zahnärzte und Apotheken
- diverse Supermärkte (Aldi, Lidl, Neukauf, Netto)
- diverse Restaurants und Gaststätten
- mehrere Bankfilialen
- Marktplatz mit Wochenmarkt
- Tankstellenshops und mehrere Backshops
- Kinderkrippen, Kindergarten, Grundschule
- Haupt- und Realschule als IGS
- 5. und 6. Klassen des Gymnasiums Westerstede in Apen(ausgelagerte Klassen)
- ab 7. Klasse Schulbusse zum Gymnasium Westerstede
- zahlreiche Spiel- und Bolzplätze, Turn- und Sporthallen
- ein Freibad, diverse Reithallen/-anlagen, intakte Natur, Flussläufe
- vielfältigstes Freizeit- und Sportangebot (vom Angeln über Handball und Fussball bis zum Reiten, Schwimmen,Tennis und Turnen)

Verkehrsanbindungen:
- Bushaltestelle ca. 3 Gehminuten
- Bahnhof Augustfehn (Bahnlinie Oldenburg - Leer) ca. 14 Gehminuten
- Autobahn BAB 28, Auffahrt Nr. 4, ca. 7 Autominmuten

Fahrzeiten in Autominuten:
- Kreisstadt Westerstede / Ammerlandklinik ca. 16
- Bad Zwischenahn ca. 26
- Edewecht ca. 28
- Stadt Oldenburg ca. 33
- Remels ca. 13
- Kreisstadt Leer / Ostfriesland ca. 24
- Barßel / Hafen ca. 13
- Ramsloh ca. 24
- Friesoythe ca. 33

Sonstige Informationen

Zu diesem Objekt liegt ein ausführliches Exposé mit weiteren Detailinformationen vor, das Sie gerne bei uns anfordern können.

Telefonische Erreichbarkeit:
Montag - Freitag: 8.00 Uhr - 12.30 Uhr und 14.00 Uhr bis 17.30 Uhr
Samstag: 9.00 Uhr -12.00 Uhr


Sie möchten Ihre Immobilie verkaufen.....
..... und suchen den passenden Käufer?

Unabhängig davon, ob Sie aktuell oder erst in unbestimmter Zeit Ihre Immobilie verkaufen möchten, ist eine fundierte Beratung bares Geld wert. Wir wissen, worauf es beim professionellen Verkauf Ihrer Immobilie ankommt.

Über 60 Jahre Marktpräsenz und tausende Vermittlungen sprechen für sich.

Für ein kostenfreies und informatives Beratungsgespräch stehen wir Ihnen jederzeit gerne zur Verfügung.
Ansprechpartner/in: Frau Linda Lott
0049448994080
Hermann Lott, Auktionator und Grundstücksmakler KG
Mühlenstrasse 15, 26689 Apen - Augustfehn
0049448994080

Weitere Angebote in Apen