Produktions- und Lagerhalle in zentraler Lage am Hörder Neumarkt, Dortmund

Am Heedbrink 74 44263 Dortmund
Frei ab: 01.03.26
1.000 € Kaltmiete
1.200 € Warmmiete inkl. NK
5,56 € Preis/m² ca.
1,11 € NK/m²
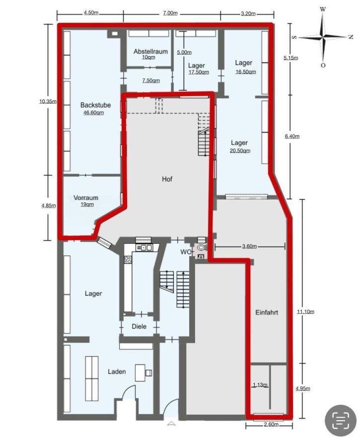
Gesamtfläche
180 m²

Mietpreis & Nebenkosten

Kaltmiete1.000 €
Nebenkosten 200 €
Warmmiete1.200 €
Kaution 3.000 €
Maklerprovision3,57 Monatskaltmieten

Wohnfläche, Grundstück & Bausubstanz

Gesamtfläche180 m²
Baujahr1960
Verfügbar ab 01.03.26

Beschreibung der Immobilie

Bei dem angebotenen Objekt handelt es sich um eine großzügige Lager- und Produktionsfläche mit vielseitigen Nutzungsmöglichkeiten. Die flexible Grundstruktur ermöglicht eine individuelle Anpassung an unterschiedliche betriebliche Anforderungen und bietet optimale Voraussetzungen für effiziente Arbeits- und Logistikprozesse.

Die Fläche eignet sich hervorragend für:

Logistik- und Distributionslager

Onlineversandhandel und E-Commerce

Produktionsbetriebe sowie vergleichbare Gewerbe

Dank der großzügigen Dimensionierung und der funktionalen Gestaltung ist das Objekt ideal für Unternehmen, die Wert auf praktikable Abläufe, gute Erreichbarkeit und ausreichend Platzreserven legen.

Ausstattungsmerkmale

Die Lager- und Produktionsfläche verfügt über ein elektrisches Rolltor im Eingangsbereich, das eine komfortable Andienung sowie reibungslose Be- und Entladevorgänge ermöglicht.

Zusätzlich steht ein integrierter Empfangsbereich bzw. ein kleines Büro zur Verfügung, das sich ideal für administrative Tätigkeiten oder Kundenempfang eignet. Bei Bedarf kann dieser Bereich nach Vereinbarung zurückgebaut werden, um zusätzliche Lagerfläche zu schaffen und die Nutzfläche weiter zu optimieren.

Karte wird geladen...
Am Heedbrink 74
44263 Dortmund

Lage & Infrastruktur

Die Lagerhalle in Dortmund-Hörde (Am Heedbrink 74) überzeugt durch ihre hervorragende Verkehrsanbindung im Herzen des Ruhrgebiets. Die Autobahnen A1 und A45 sind in wenigen Minuten erreichbar und ermöglichen schnelle Verbindungen in alle Richtungen. Der Bahnhof Dortmund-Hörde sorgt für eine gute ÖPNV-Anbindung, der Dortmund Airport ergänzt die Infrastruktur für nationale und internationale Verbindungen.

Das wirtschaftlich dynamische Umfeld mit moderner Gewerbe- und Dienstleistungsstruktur sowie die positive Entwicklung des Stadtteils machen den Standort besonders attraktiv für Logistik und Handel.

Sonstige Informationen

Haben wir Ihr Interesse geweckt - Ihnen gefällt das Objekt?

Zögern Sie nicht und melden Sie sich bei uns - sehr gerne stehen wir bei Fragen und Wünschen, sowie für weitere Informationen rund um das Angebot zur Verfügung.

Für ein ausführliches Exposé melden Sie sich bitte per E-Mail bei mir.

Die in diesem Exposé gemachten Angaben beruhen auf Auskünften des Eigentümers oder vorgelegten Plänen und Berechnungen. Wir übernehmen daher keine Haftung, insbesondere für Flächenangaben, Grundrisse oder Lageskizzen.

Die Erstellung eines Energieausweises wurde beauftragt und dieses Exposé wird umgehend nach Fertigstellung des Energieausweises überarbeitet. Der Ausweis wird Ihnen spätestens bei einer Besichtigung übergeben.

Sie haben Fragen oder wünschen einen Besichtigungstermin?

Ihre Ansprechpartnerin:

Kim Lukaschewski

Tel: +49 (0)231 - 398 19 70

E-Mail: k.Lukaschewski@immoweb.de
Ansprechpartner/in: Frau Kim Lukaschewski
0231-3981970
immoweb AG
Dortmunder Strasse 5, 44536 Lünen
0231-3981970

Weitere Angebote in Dortmund