Frisch sanierte 2-Zimmer Wohnung mit Balkon

Fürstenwalder Straße 2 30629 Hannover, Niedersachsen
Frei ab: 15.04.2026
750 € Kaltmiete
13,70 € Preis/m² ca.
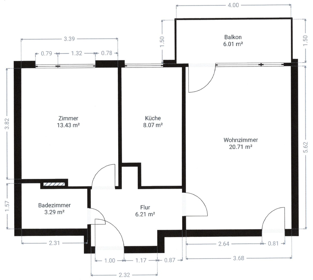
Wohnfläche
54,74 m²
Zimmer
2
Etage
2
Balkon
Terrasse
Keller

Mietpreis & Nebenkosten

Kaltmiete (netto)750 €
Nebenkosten 200 €
Heizkosten enthaltenJa
Kaution 2.250 €

Wohnfläche, Grundstück & Bausubstanz

Wohnfläche54,74 m²
Zimmer2
Stockwerk2
Baujahr1969
Verfügbar ab 15.04.2026
ZustandTeil Vollsaniert

Beschreibung der Immobilie

Im 2. Obergeschoss erwartet Sie eine moderne 2-Zimmer-Wohnung mit 54,74 m² Wohnfläche im Erstbezug nach Kernsanierung – hier wurde alles neu gemacht!

Die Wohnung präsentiert sich in hochwertigem, neuwertigem Zustand und bietet Ihnen den Komfort einer Neubau-Wohnung. Der Balkon erweitert Ihren Wohnraum nach draußen und lädt zum Entspannen im Freien ein.

Sie können direkt einziehen und müssen sich um nichts kümmern!

Objektzustand: Erstbezug nach Sanierung

Ausstattungsmerkmale

Bad1
Bad (Ausstattung)Dusche
BodenFliesen, Parkett
Balkone1
Terrassen0
KellerJa
Balkon, Keller, Duschbad, Parkett, Fliesen

Bemerkungen:
- Erstbezug nach Sanierung
- 2 Zimmer
- 54,74 qm Wohnfläche

- helle Wohnräume mit hochwertigem Echtholz Eichenparkett
- großzügige Zimmer
- neue Zimmertüren

- neue Elektrik
- neue Heizkörper
- großes Wohnzimmer
- alle Räume hell, weiß gestrichen
- verputzte glatte Wände

- schönes weißes Hamburger Leistenprofil in den Wohnräumen

- saniertes Badezimmer mit begehbarer Rainshower Dusche mit Glaselement

- Handtuchheizkörper
- genügend Steckdosen und TV-Anschlüsse in allen Räumen
- Beleuchtung durch Deckenspots im Flur, im Badezimmer und in der Küche

- zugehöriger Kellerraum

Energie

EnergieausweistypVerbrauch
Energieverbrauchkennwert121 kWh/(m²*a)
Heizungsart Zentralheizung
Energieträger/Befeuerung Öl

Karte wird geladen...
Fürstenwalder Straße 2
30629 Hannover – Niedersachsen

Lage & Infrastruktur

Die Immobilie befindet sich in angenehmer Wohnlage im Stadtteil Hannover-Misburg. Einkaufsmöglichkeiten des täglichen Bedarfs sind fußläufig erreichbar und sorgen für eine komfortable Nahversorgung.

Die Anbindung an den öffentlichen Personennahverkehr ist hervorragend: Die Straßenbahnhaltestelle der Linie 7 sowie eine Bushaltestelle befinden sich in unmittelbarer Nähe und ermöglichen eine schnelle und bequeme Verbindung in die Innenstadt und die umliegenden Stadtteile.

Insgesamt überzeugt die Lage durch ihre gute Infrastruktur, die sehr gute Erreichbarkeit und die Kombination aus urbanem Wohnen und praktischer Alltagsnähe.
Infrastruktur (im Umkreis von 5 km):
Apotheke, Lebensmittel-Discount, Allgemeinmediziner, Kindergarten, Grundschule, Hauptschule, Realschule, Gymnasium, Gesamtschule, Öffentliche Verkehrsmittel

Sonstige Informationen

Heizungsart: Zentralheizung
Energieträger: Öl

Bezugsfrei ab sofort.

Kaltmiete 750,-- €. Nebenkosten inkl. Heizkosten 200,-- €

Kaution 3 Monatskaltmieten



Bei Interesse schreiben Sie uns bitte

1) Ihren Namen,

2) Ihre Telefonnummer,
3) Was Sie beruflich machen,

4) Wie viele Personen einziehen.

Besichtigungen sind zeitnah möglich. Wir freuen uns auf Ihre Anfrage und kontaktieren Sie im Anschluss für einen Termin.

Die Wohnung befindet sich in der Fertigstellung. Die Bilder sind daher Fotos einer ähnlichen Wohnungen, die über die identische Ausstattung verfügt.

Makleranfragen nicht erwünscht. Nach § 7 UWG sind unaufgeforderte Kontaktaufnahmen durch Makler ohne ausdrückliche Einwilligung des Empfängers verboten!

ohne-makler (OM) ist weder Anbieter noch Vermittler der Immobilie. OM betreibt eine Plattform für Immobilieneigentümer, die unter anderem die gleichzeitige Veröffentlichung einzelner Inserate auf mehreren Immobilienportalen ermöglicht. Die Inhalte dieser Inserate werden ausschließlich von Dritten verantwortet. Für die Richtigkeit, Vollständigkeit oder Rechtmäßigkeit der Angaben übernimmt OM keine Haftung. Hinweise auf mögliche Rechtsverstöße können jederzeit gemeldet werden und werden nach Prüfung umgehend bearbeitet.
Ansprechpartner/in: Privat vom Eigentümer
OM PropTech GmbH
Humboldtstraße 25a, 21509 Glinde

Weitere Angebote in Hannover