Provisionsfrei: Baugrundstück mit Bebauungsplan für ca. 69 Häuser in Halle (Saale)

Kaiserlauterer Str 67 06128 Halle, Sachsen-Anhalt
Frei ab: nach Absprache
2.200.000 € Kaufpreis
Grundstücksfläche
34.911 m²

Kaufpreis

Kaufpreis 2.200.000 €
Maklerprovisionkeine Provision, courtagefrei

Wohnfläche, Grundstück & Bausubstanz

Grundstücksfläche34.911 m²
Verfügbar ab nach Absprache

Beschreibung der Immobilie

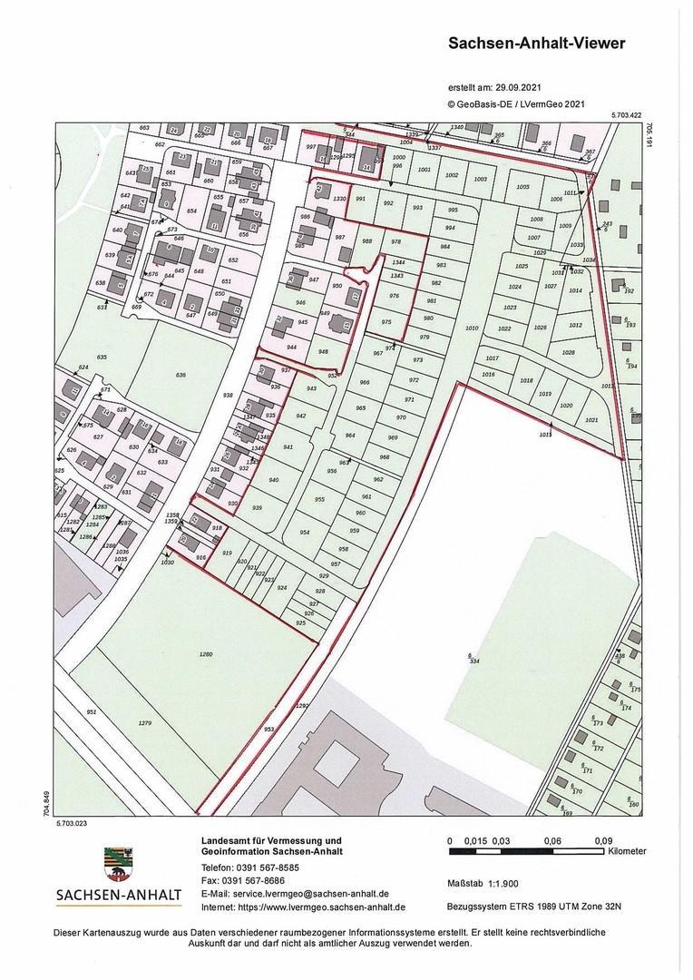
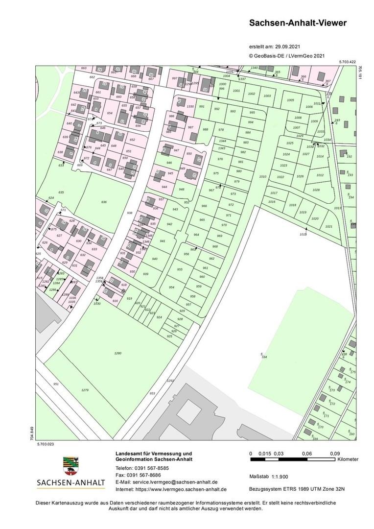
Zum Verkauf steht ein attraktives Baugrundstück in Halle (Saale) mit bereits vorhandenem und gültigem Bebauungsplan.

Das Grundstück bietet die Möglichkeit zur Errichtung von ca. 69 Wohneinheiten in Form von:

Einfamilienhäusern
Doppelhaushälften
Reihenhäusern

Die Gesamtfläche beträgt ca. 34.911 m², wovon rund 23.000 m² als bebaubare Fläche ausgewiesen sind. Das Grundstück ist bereits in einzelne Flurstücke unterteilt, was eine effiziente Projektentwicklung ermöglicht.

Gemäß Bebauungsplan sind Gebäude mit einer Firsthöhe von 9 bis 11 Metern sowie einer Grundflächenzahl (GRZ) von 0,4 zulässig.

Das Projekt eignet sich ideal für Bauträger und Investoren, die ein sofort entwickelbares Wohnbauprojekt in einer wachsenden Lage realisieren möchten.

Karte wird geladen...
Kaiserlauterer Str 67
06128 Halle – Sachsen-Anhalt

Lage & Infrastruktur

Das Baugrundstück befindet sich im Stadtteil Wörmlitz in Halle (Saale), in einer attraktiven und gewachsenen Wohnlage.

Die Umgebung ist geprägt von modernen Wohnsiedlungen, die in den letzten Jahren insbesondere Familien angezogen haben. Gleichzeitig bietet die Lage eine angenehme Kombination aus städtischer Infrastruktur und naturnaher Umgebung.

In unmittelbarer Nähe befinden sich die Saalearme mit vielfältigen Freizeit- und Erholungsmöglichkeiten wie Rad- und Wanderwegen.
Infrastruktur (im Umkreis von 5 km):
Apotheke, Lebensmittel-Discount, Allgemeinmediziner, Kindergarten, Grundschule, Hauptschule, Realschule, Gymnasium, Gesamtschule, Öffentliche Verkehrsmittel

Sonstige Informationen

Das Angebot richtet sich insbesondere an Bauträger und Projektentwickler, die ein großvolumiges Wohnprojekt in attraktiver Lage realisieren möchten.

Der Verkauf erfolgt provisionsfrei.

Weitere Unterlagen (Exposé, Flurkarten, Bebauungsplan) stellen wir Ihnen gerne auf Anfrage zur Verfügung.

Makleranfragen nicht erwünscht. Nach § 7 UWG sind unaufgeforderte Kontaktaufnahmen durch Makler ohne ausdrückliche Einwilligung des Empfängers verboten!

ohne-makler (OM) ist weder Anbieter noch Vermittler der Immobilie. OM betreibt eine Plattform für Immobilieneigentümer, die unter anderem die gleichzeitige Veröffentlichung einzelner Inserate auf mehreren Immobilienportalen ermöglicht. Die Inhalte dieser Inserate werden ausschließlich von Dritten verantwortet. Für die Richtigkeit, Vollständigkeit oder Rechtmäßigkeit der Angaben übernimmt OM keine Haftung. Hinweise auf mögliche Rechtsverstöße können jederzeit gemeldet werden und werden nach Prüfung umgehend bearbeitet.
Ansprechpartner/in: Privat von Peter Jugl
0170 9848571
OM PropTech GmbH
Humboldtstraße 25a, 21509 Glinde
0170 9848571