Großzügiges historisches Landhaus mit Studioatelier - familienfreundlich, Nähe Berlin, See & Wald

15377 Waldsieversdorf/ bei Buckow Märk.Schweiz, Brandenburg
Frei ab: nach Absprache
420.000 € Kaufpreis
Wohnfläche
230 m²
Zimmer
8
Einbauküche
Garten
Keller
Stellplatz

Kaufpreis

Kaufpreis 420.000 €
Maklerprovisionkeine Provision, courtagefrei

Wohnfläche, Grundstück & Bausubstanz

Wohnfläche230 m²
Grundstücksfläche567 m²
Zimmer8
Etagen2
Baujahr1909
Verfügbar ab nach Absprache
ZustandTeil Vollsaniert

Beschreibung der Immobilie

Privatverkauf/provisionsfrei:
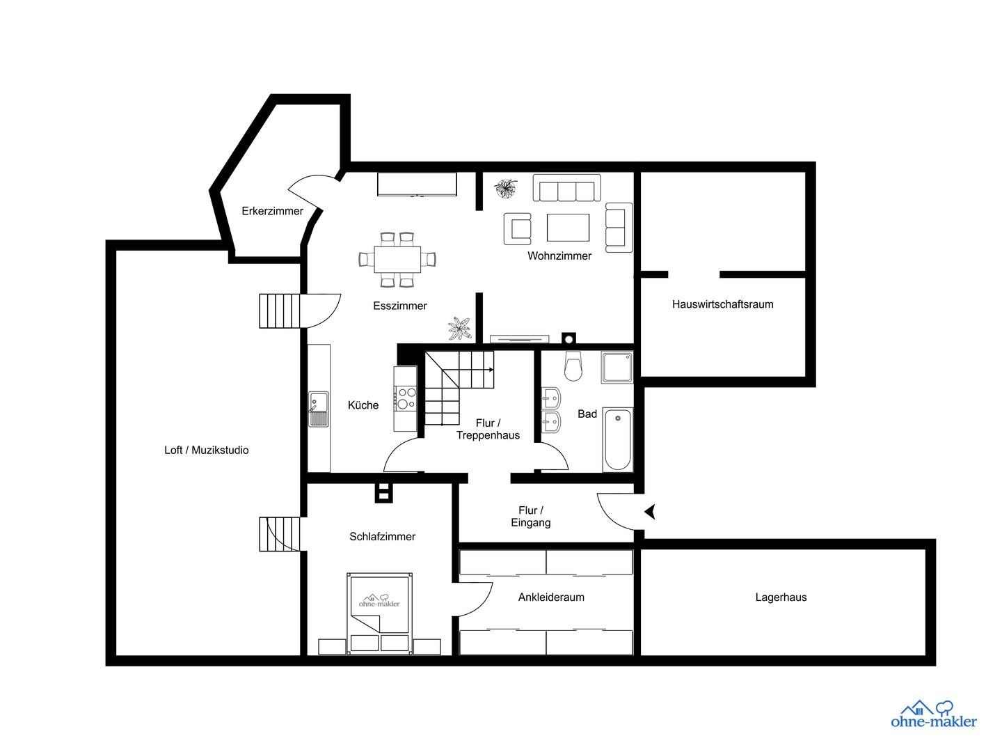
Das historische Landhaus liegt in der ruhigen Villenkolonie von Waldsieversdorf und bietet auf 230 qm Platz für Wohnen, Arbeiten und kreative Entfaltung.
Einst als Konditorei und Café genutzt in den 1920iger Jahren, besteht das Haus aus 2 Wohnungen auf zwei Etagen, die auch zusammengelegt werden können mit einer kleinen Halle/Loft. Das großzügige Loft ist flexibel nutzbar - z.B. als Atelier, für Sport, Fitness oder Yoga, als Ausstellungsraum, für kreative Zwecke sowie als individueller Wohnraum. Ein sonniger Innenhof und kleiner Garten runden das Ambiente ab. Das Haupthaus ist unterkellert, es gibt weiterhin einen Lagerraum (gefliest) und ein Backstein-Carport sowie 3 Stellplätze. Das Haus steht nicht unter Denkmalschutz. Die Wälder und der Große Däbersee zum Baden sind zu Fuß erreichbar. Der Bahnhof mit direktem Anschluss nach Berlin liegt nur ca. 5 km entfernt - passend für Familien und Kreative mit dem Wunsch nach einem Zuhause mit vielseitigen Nutzungsmöglichkeiten in einem der schönsten Orte der Märkischen Schweiz. Die Geschichte meines Hauses ist im Buch "Waldsieversdorf - EINST UND JETZT", von Kirsten Lauritsen, Karin Stein-Bachinger, Verlag CULTURCON medien, ISBN 978-3-7308-1715-5 beschrieben.

Dateien


Ausstattungsmerkmale

KücheEinbauküche
Bad2
Bad (Ausstattung)Dusche, Wanne
BodenFliesen, Parkett
GartenJa
KellerJa
Carport1
Garten, Keller, Vollbad, Duschbad, Einbauküche, Kamin, Parkett, Fliesen, Sonstiges (s. Text)

Bemerkungen:
- Historisches Landhaus in der Villenkolonie Waldsieversdorf, erbaut ca. 1909, ehemalige Konditorei und Café.
- 2 Wohnungen und ein Loft (bis zu 4m hoch, Stahlträger/Doppel-T Trägerdecke), z.Zt. Musikstudio, groß genug für Atelier, Kreativ- Freizeitraum oder als individueller Wohnraum
- Wohneinheiten können nach Bedarf zusammengelegt werden, gemeinsames Treppenhaus
- das Haus hat 8 Zimmer, 2 Küchen, 2 Bäder (ein Wannenbad, ein Duschbad), ein Kaminofen befindet sich im Wohnzimmer/EG; Wohnfläche 230 qum.
- orginaler Holzboden im Wohn/Essbereich im EG
- sonniger Innenhof und Garten
- zusätzliche Nutzflächen: ein kleines gefliestes Lager und ein beheiztes Nebengebäude mit Wasser/Abwasser als Hauswirtschaftsraum
- Keller: ca. 70 qm, unrenoviert, begehbar
- Carport für 1 Auto oder Camper (hoch/gemauert, ehemaliges Backhaus), Grundstück hat zusätzlich 3 Auto-Stellplätze
- alle Medien vorhanden (Wasser, Abwasser, Gas, Strom, Internet)
- Glasfaser neu 2024
- gesamter Wohnbereich mit Gasheizung (Buderus/Logomax Plus GB) eingebaut 2016, Fenster Isolierglas/doppelt
- laufend saniert/renoviert
- Kein Denkmalschutz
- Kaufpreis: 420 000,-€
- Bezugsfrei

Energie

G
Energieeffizienzklasse G · 229 kWh/(m²*a)
EnergieausweistypBedarfsausweis
EnergieeffizienzklasseG
Endenergiebedarf229
Heizungsart Zentralheizung
Energieträger/Befeuerung Gas

Karte wird geladen...
15377 Waldsieversdorf/ bei Buckow Märk.Schweiz – Brandenburg

Lage & Infrastruktur

Die Gemeinde Waldsieversdorf liegt inmitten des Naturparks Märkische Schweiz, ca.2 km von der Stadt Buckow entfernt und ist ein staatlich anerkannter Erholungsort. Die Gegend ist wald- und seenreich. Waldsieversdorf nahe Buckow ist besonders bei Familien beliebt: eine Schule, 2 Kitas, Bioladen, Bäcker, Cafés und Restaurants, ein Kino, ein Theater, Antiquariat, Apotheke und Ärztehaus gibt es in der Umgebung. Direkte Anbindung nach Berlin durch RB 26/Bahnhof Müncheberg und S-Bahn 5 in Strausberg.
Infrastruktur (im Umkreis von 5 km):
Apotheke, Allgemeinmediziner, Kindergarten, Grundschule, Öffentliche Verkehrsmittel

Sonstige Informationen

Heizungsart: Zentralheizung
Energieträger: Gas

Kein Denkmalschutz

ohne-makler (OM) ist weder Anbieter noch Vermittler der Immobilie. OM betreibt eine Plattform für Immobilieneigentümer, die unter anderem die gleichzeitige Veröffentlichung einzelner Inserate auf mehreren Immobilienportalen ermöglicht. Die Inhalte dieser Inserate werden ausschließlich von Dritten verantwortet. Für die Richtigkeit, Vollständigkeit oder Rechtmäßigkeit der Angaben übernimmt OM keine Haftung. Hinweise auf mögliche Rechtsverstöße können jederzeit gemeldet werden und werden nach Prüfung umgehend bearbeitet.
Ansprechpartner/in: Privat von Frau Schmidt, provisionsfrei
0152 28977503
OM PropTech GmbH
Humboldtstraße 25a, 21509 Glinde
0152 28977503

Weitere Angebote in Märkische Höhe