* sanierte 3 Zimmer Wohnung in Wiesbaden zu verkaufen *

Yorckstraße 12 65195 Wiesbaden, Hessen
Frei ab: sofort
389.000 € Kaufpreis
Wohnfläche
94,1 m²
Zimmer
3
Etage
0
Balkon
Terrasse
Keller

Kaufpreis

Kaufpreis 389.000 €
Hausgeld228 €
Maklerprovisionkeine Provision, courtagefrei

Wohnfläche, Grundstück & Bausubstanz

Wohnfläche94,1 m²
Zimmer3
Etagen3
Stockwerk0
Baujahr1903
Verfügbar ab sofort
ZustandTeil Vollsaniert

Beschreibung der Immobilie

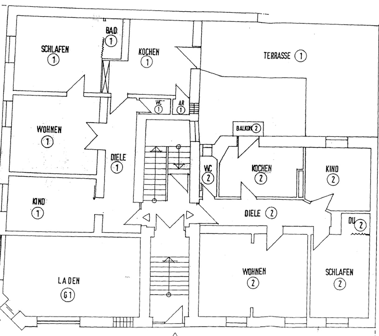
Wir verkaufen eine wunderschöne geschnitte 3-Zimmer Altbauwohnung im Feldherrenviertel von Wiesbaden.

Die Wohnung wurde komplett saniert. Alle Wände sind mit Malervlies versehen und ein Vinylboden in Holzoptik wurde in der gesamten Wohnung verlegt. Die überdurchschnittlichen hohen Decken schaffen eine tolle Wohnatmosphäre und auch der Grundriss lädt zu verschiedenen Konstellationen ein. Ob Home Office oder Kinderzimmer - hier können Sie der Wohnung Ihren eigenen Charakter verleihen.

Von der Küche haben Sie direkten Zugang zur großzügigen Terrasse im Innenhof.

Beide Bäder wurden neu gefliest und mit hochwertiger Badkeramik ausgestattet. Ein separates Gäste WC befindet sich im Flur, um das Hauptbad ausschließlich privat nutzen zu können.

Zur Wohnung gehören ebenfalls vier Mansarden im Dachgeschoss mit einer Gesamtfläche von ca. 31qm. Diese können vorbehaltlich baurechtlicher Beantragungen ausgebaut und entwickelt werden. Dies gilt vom zukünftigen Käufer zu überprüfen. Die zwei Kellerräume im Untergeschoss runden das Angebot ab.

Sollte Ihr Interesse geweckt sein, können Sie uns gerne jederzeit kontaktieren.

Familie Heinz

Objektzustand: Erstbezug nach Sanierung

Ausstattungsmerkmale

Bad2
BodenFliesen, Kunststoff
Balkone0
Terrassen1
KellerJa
Terrasse, Keller, Gäste-WC, Fliesen

Energie

Heizungsart Zentralheizung
Energieträger/Befeuerung Gas

Karte wird geladen...
Yorckstraße 12
65195 Wiesbaden – Hessen

Lage & Infrastruktur

Diese Wohnung liegt im westlichen Teil der Stadt Wiesbaden und ist umgeben von wunderschönen denkmalgeschützen Häusern und verleiht ein einzigartiges Flair. Das Haus präsentiert sich durch einen kleinen Turm und die Ecklage in vollster Pracht.

Zu Fuß erreichen Sie die Innenstadt in nur 15 Minuten. Die Nähe zum großen Treiben in der Stadt und der ruhigen Wohnlage bilden eine perfekte Kombination, um sich vom Alltag zu entspannen.
Infrastruktur (im Umkreis von 5 km):
Apotheke, Lebensmittel-Discount, Allgemeinmediziner, Kindergarten, Grundschule, Öffentliche Verkehrsmittel

Sonstige Informationen

Heizungsart: Zentralheizung
Energieträger: Gas


Makleranfragen nicht erwünscht. Nach § 7 UWG sind unaufgeforderte Kontaktaufnahmen durch Makler ohne ausdrückliche Einwilligung des Empfängers verboten!

ohne-makler (OM) ist weder Anbieter noch Vermittler der Immobilie. OM betreibt eine Plattform für Immobilieneigentümer, die unter anderem die gleichzeitige Veröffentlichung einzelner Inserate auf mehreren Immobilienportalen ermöglicht. Die Inhalte dieser Inserate werden ausschließlich von Dritten verantwortet. Für die Richtigkeit, Vollständigkeit oder Rechtmäßigkeit der Angaben übernimmt OM keine Haftung. Hinweise auf mögliche Rechtsverstöße können jederzeit gemeldet werden und werden nach Prüfung umgehend bearbeitet.
Ansprechpartner/in: Privat von Dana Heinz
OM PropTech GmbH
Humboldtstraße 25a, 21509 Glinde

Weitere Angebote in Wiesbaden