Exklusivität pur - ein tolles Raumkonzept mit Zukunft auf 150 m²!
933.550 €
Kaufpreis
150 m²
Wohnfläche
150 m²
Nutzfläche
4
Zimmer
immobilien.de Nr.: 9522758
Objektnummer: 9103
Kaufpreis
| Kaufpreis | 933.550 € |
Wohnfläche, Grundstück & Bausubstanz
| Wohnfläche | 150 m² |
| Nutzfläche | 150 m² |
| Grundstücksfläche | 805 m² |
| Zimmer | 4 |
| Baujahr | 2027 |
| Verfügbar ab | keine Angabe |
| Zustand | Projektiert |
Energie
| Energietyp | KfW-40 |
| Energieträger/Befeuerung | Luft-Wärme-Pumpe |
Beschreibung der Immobilie
Exklusive STREIF-Villa mit modernem Design und durchdachtem Grundriss
Diese zweigeschossige STREIF-Villa 1, besticht durch ihr modernes Flachdach und eine beeindruckende Glasfront, die den gesamten Gartenbereich aufwertet. Der Baukörper ist in einem kubistischen Stil gehalten und die Architektur clever gestaltet. Ein besonderes Highlight dieser Villa ist die weitläufige XXL-Glasfront, die sich über beide Etagen erstreckt und für ein außergewöhnliches Wohngefühl sorgt.
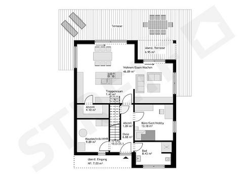
Zentraler Punkt der Villa ist die mittig platzierte Treppe, die den offenen Wohn- und Essbereich geschickt vom Kochbereich trennt. Die lichtdurchfluteten 45 m² bieten Raum zum Wohnen, Essen und Kochen und schaffen eine Atmosphäre voller Lebensfreude. Direkt neben der Küche befindet sich eine nützliche Speisekammer, während in einer separaten Nische Platz für eine Garderobe geschaffen wurde, um Jacken und Schuhe zu verstauen. Der großzügige Wohnbereich verfügt zudem über zwei Terrassentüren und bietet genügend Platz, um bei Bedarf eine zusätzliche Wand einzufügen, damit das Wohnen auf einer Ebene möglich wird - ideal für altersgerechtes Wohnen oder im Krankheitsfall. Ergänzt wird das Erdgeschoss durch ein Badezimmer sowie einen Hauswirtschaftsraum.
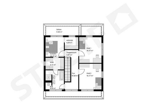
Im Obergeschoss der Villa mit Flachdach befinden sich zwei identisch große Kinderzimmer, ein geräumiges Familienbad sowie der Elternbereich, der mit einer Ankleide ausgestattet ist. Ein weiteres Highlight ist die Galerie, die dank der Glasfront einen herrlichen Ausblick ins Freie bietet. Diese 10 m² große Galerie kann vielseitig genutzt werden, sei es als Homeoffice, Spielecke oder als Rückzugsort für Erholung.
Diese Villa ist in drei verschiedenen Grundrissvarianten erhältlich, jeweils mit unterschiedlichen Größen.
STREIF-Villa 01
- Variante L: 150m² / Hausmaße 9,33 x 9,95 m
- Variante XL: 170 m² / Hausmaße 9,95 x 10,58 m
- Variante XXL: 190 m² / Hausmaße 10,58 x 11,205 m
Diese zweigeschossige STREIF-Villa 1, besticht durch ihr modernes Flachdach und eine beeindruckende Glasfront, die den gesamten Gartenbereich aufwertet. Der Baukörper ist in einem kubistischen Stil gehalten und die Architektur clever gestaltet. Ein besonderes Highlight dieser Villa ist die weitläufige XXL-Glasfront, die sich über beide Etagen erstreckt und für ein außergewöhnliches Wohngefühl sorgt.
Zentraler Punkt der Villa ist die mittig platzierte Treppe, die den offenen Wohn- und Essbereich geschickt vom Kochbereich trennt. Die lichtdurchfluteten 45 m² bieten Raum zum Wohnen, Essen und Kochen und schaffen eine Atmosphäre voller Lebensfreude. Direkt neben der Küche befindet sich eine nützliche Speisekammer, während in einer separaten Nische Platz für eine Garderobe geschaffen wurde, um Jacken und Schuhe zu verstauen. Der großzügige Wohnbereich verfügt zudem über zwei Terrassentüren und bietet genügend Platz, um bei Bedarf eine zusätzliche Wand einzufügen, damit das Wohnen auf einer Ebene möglich wird - ideal für altersgerechtes Wohnen oder im Krankheitsfall. Ergänzt wird das Erdgeschoss durch ein Badezimmer sowie einen Hauswirtschaftsraum.
Im Obergeschoss der Villa mit Flachdach befinden sich zwei identisch große Kinderzimmer, ein geräumiges Familienbad sowie der Elternbereich, der mit einer Ankleide ausgestattet ist. Ein weiteres Highlight ist die Galerie, die dank der Glasfront einen herrlichen Ausblick ins Freie bietet. Diese 10 m² große Galerie kann vielseitig genutzt werden, sei es als Homeoffice, Spielecke oder als Rückzugsort für Erholung.
Diese Villa ist in drei verschiedenen Grundrissvarianten erhältlich, jeweils mit unterschiedlichen Größen.
STREIF-Villa 01
- Variante L: 150m² / Hausmaße 9,33 x 9,95 m
- Variante XL: 170 m² / Hausmaße 9,95 x 10,58 m
- Variante XXL: 190 m² / Hausmaße 10,58 x 11,205 m
Ausstattungsmerkmale
| Anzahl der Etagen im Haus | 2 |
| Küche | Offene Küche |
| Bad | 1 |
| Bad | Dusche, Wanne, Fenster |
Das Streif City Haus wird im Standard KFW 40 PLUS ausgeführt. KfW Effizienshaus inkl. Haustechnik aus dem STREIF-Programm in der Ausbaustufe FF+ inklusive einer gedämmten Fundamentplatte.
■ Rohbau (geschlossene Gebäudehülle) mit Fenstern, Haustür, Dacheindeckung
■ Außenfassade inkl. Außenputz, vor Ort komplett fertiggestellt
■ Komplette Blechner-/Spenglerarbeiten
■ lnnen-/Außenwände wärme- und schallgedämmt und mit Gipsfaserplatten geschlossen
■ Geschosstreppe (außer Bungalow)
■ Decken wärme- und schallgedämmt und mit Gipskarton Bauplatten geschlossen
■ Elektroinstallation, einschließlich erforderlichem Zählerschrank und Inbetriebnahme
■ Heizungsanlage inkl. Inbetriebnahme
■ Innenfensterbänke Kunststeinbänke (Gussmarmorbänke) inkl. Einbau
■ Estrich
■ Sanitärräume mit Wand- und Bodenfliesen
■ Sanitärräume mit Sanitärobjekten
■ 6,23 kWp Photovoltaikanlage und 7,7 kWh Speicher
Die Innentüren sowie Wand-, Decken- und Bodenbeläge der übrigen Räume sind Eigenleistungen des Bauherren.
STREIF Frischluft-Wärmepumpen-Technologie - inklusive
- Heizen mit frischer Außenluft
- Kein Gasanschluss, kein Öl- oder Pelletlagerraum
- Keine Heizkörper
- Wärmetauscher mit bis zu 85% Wärmerückgewinnung
Die dargestellten Bilder können Sonderausstattungen beinhalten, die nicht im Preis enthalten sind!
zzgl. Ortüblicher Baunebenkosten
Selbstverständlich können wir Ihr Haus auch schlüsselfertig / bezugsfertig errichten.
■ Bodenbeläge, Sockelleisten verlegt
■ Maler- und Tapezierarbeiten
■ Innentüren inkl. Einbau
■ Rohbau (geschlossene Gebäudehülle) mit Fenstern, Haustür, Dacheindeckung
■ Außenfassade inkl. Außenputz, vor Ort komplett fertiggestellt
■ Komplette Blechner-/Spenglerarbeiten
■ lnnen-/Außenwände wärme- und schallgedämmt und mit Gipsfaserplatten geschlossen
■ Geschosstreppe (außer Bungalow)
■ Decken wärme- und schallgedämmt und mit Gipskarton Bauplatten geschlossen
■ Elektroinstallation, einschließlich erforderlichem Zählerschrank und Inbetriebnahme
■ Heizungsanlage inkl. Inbetriebnahme
■ Innenfensterbänke Kunststeinbänke (Gussmarmorbänke) inkl. Einbau
■ Estrich
■ Sanitärräume mit Wand- und Bodenfliesen
■ Sanitärräume mit Sanitärobjekten
■ 6,23 kWp Photovoltaikanlage und 7,7 kWh Speicher
Die Innentüren sowie Wand-, Decken- und Bodenbeläge der übrigen Räume sind Eigenleistungen des Bauherren.
STREIF Frischluft-Wärmepumpen-Technologie - inklusive
- Heizen mit frischer Außenluft
- Kein Gasanschluss, kein Öl- oder Pelletlagerraum
- Keine Heizkörper
- Wärmetauscher mit bis zu 85% Wärmerückgewinnung
Die dargestellten Bilder können Sonderausstattungen beinhalten, die nicht im Preis enthalten sind!
zzgl. Ortüblicher Baunebenkosten
Selbstverständlich können wir Ihr Haus auch schlüsselfertig / bezugsfertig errichten.
■ Bodenbeläge, Sockelleisten verlegt
■ Maler- und Tapezierarbeiten
■ Innentüren inkl. Einbau
Sonstige Informationen
Sie brauchen einen kompetenten und verlässlichen Baupartner? Wir stehen Ihnen von Anfang an zur Seite und begleiten Sie auf dem Weg in Ihr Eigenheim.
Mit großem Engagement, Persönlichkeit und der Fachfirma STREIF mit immensen Bau-Know-how, die seit 1929 auf über 90.000 realisierte Wohnträume zurückblicken kann.
Jedes Haus von STREIF wird individuell als Energiesparhaus geplant und gebaut. Eine nachhaltige, ökologische und wohngesunde Bauweise, eine zertifizierte Ausführungsqualität und eine kurze Bauzeit, dafür stehen wir.
Gerne beraten wir Sie nach Vereinbarung im Musterhaus Dresden Schönefeld oder ganz unkompliziert bei Ihnen zu Hause und erstellen Ihnen ein Angebot mit einer realistisch ermittelten Aufstellung der Gesamt-Investition.
Wir freuen uns auf Ihren Anruf / Nachricht!
Ihr STREIF Fachberater
Frank Strobel
E-Mail: frank.strobel@streif.de
Mobil: 0172 - 9374300
Hinweis:
Vorverkauf und Irrtümer vorbehalten. Bilder können Sonderbauteile darstellen, die im Preis nicht enthalten sind und abweichend von textlichen Inhalten sein.
zzgl. Baunebenkosten.
Der Grundstückserwerb stellt keine STREIF Leistung dar.
Hinweis zu den gesetzlichen Pflichtangaben gemäß der EnEV 2016: Bei dem hier angebotenen Haus handelt es sich um ein Neubauprojekt.
Wir weisen darauf hin, dass zu diesem projektierten Haus noch kein Energieausweis vorliegt. Der Energieausweis wird Ihnen spätestens im Rahmen der Erstellung des Objektes ausgehändigt
Mit großem Engagement, Persönlichkeit und der Fachfirma STREIF mit immensen Bau-Know-how, die seit 1929 auf über 90.000 realisierte Wohnträume zurückblicken kann.
Jedes Haus von STREIF wird individuell als Energiesparhaus geplant und gebaut. Eine nachhaltige, ökologische und wohngesunde Bauweise, eine zertifizierte Ausführungsqualität und eine kurze Bauzeit, dafür stehen wir.
Gerne beraten wir Sie nach Vereinbarung im Musterhaus Dresden Schönefeld oder ganz unkompliziert bei Ihnen zu Hause und erstellen Ihnen ein Angebot mit einer realistisch ermittelten Aufstellung der Gesamt-Investition.
Wir freuen uns auf Ihren Anruf / Nachricht!
Ihr STREIF Fachberater
Frank Strobel
E-Mail: frank.strobel@streif.de
Mobil: 0172 - 9374300
Hinweis:
Vorverkauf und Irrtümer vorbehalten. Bilder können Sonderbauteile darstellen, die im Preis nicht enthalten sind und abweichend von textlichen Inhalten sein.
zzgl. Baunebenkosten.
Der Grundstückserwerb stellt keine STREIF Leistung dar.
Hinweis zu den gesetzlichen Pflichtangaben gemäß der EnEV 2016: Bei dem hier angebotenen Haus handelt es sich um ein Neubauprojekt.
Wir weisen darauf hin, dass zu diesem projektierten Haus noch kein Energieausweis vorliegt. Der Energieausweis wird Ihnen spätestens im Rahmen der Erstellung des Objektes ausgehändigt
Karte wird geladen...
Objektstandort
01257 Dresden-Leuben
Lage & Infrastruktur
Objektstandort
01257 Dresden-Leuben
Dresden Leuben ist ein Stadtteil im Südosten von Dresden, der Landeshauptstadt des Freistaates Sachsen. Leuben zeichnet sich durch eine ruhige, überwiegend residentiale Atmosphäre aus und bietet eine angenehme Mischung aus urbanem Leben und naturnahen Erholungsmöglichkeiten.
Die Lage von Leuben ist besonders attraktiv, da der Stadtteil sowohl gut an das öffentliche Verkehrsnetz angebunden ist als auch in unmittelbarer Nähe zur Natur liegt. Die Straßenbahnlinien und Busverbindungen ermöglichen eine schnelle Erreichbarkeit des Stadtzentrums sowie anderer wichtiger Stadtteile.
In Leuben finden sich zahlreiche Einkaufsmöglichkeiten, Schulen und Kindergärten, die den Bedürfnissen von Familien gerecht werden. Der Stadtteil ist von einer Vielzahl von Grünflächen und Parks umgeben, die zu Spaziergängen, Sport und Freizeitaktivitäten einladen. Besonders hervorzuheben ist die Nähe zur Elbe, die schöne Rad- und Wanderwege bietet.
Die Architektur in Leuben ist vielfältig, mit einer Mischung aus historischen Gebäuden und modernen Wohnanlagen. Die ruhigen Wohnstraßen sind ideal für Familien und Menschen, die eine entspannte Wohnumgebung suchen, ohne auf die Annehmlichkeiten der Stadt verzichten zu müssen.
Insgesamt ist Dresden Leuben ein attraktiver Stadtteil, der sowohl die Vorzüge des städtischen Lebens als auch die Nähe zur Natur bietet und sich gut für alle eignet, die eine harmonische Lebensqualität suchen.
Die Lage von Leuben ist besonders attraktiv, da der Stadtteil sowohl gut an das öffentliche Verkehrsnetz angebunden ist als auch in unmittelbarer Nähe zur Natur liegt. Die Straßenbahnlinien und Busverbindungen ermöglichen eine schnelle Erreichbarkeit des Stadtzentrums sowie anderer wichtiger Stadtteile.
In Leuben finden sich zahlreiche Einkaufsmöglichkeiten, Schulen und Kindergärten, die den Bedürfnissen von Familien gerecht werden. Der Stadtteil ist von einer Vielzahl von Grünflächen und Parks umgeben, die zu Spaziergängen, Sport und Freizeitaktivitäten einladen. Besonders hervorzuheben ist die Nähe zur Elbe, die schöne Rad- und Wanderwege bietet.
Die Architektur in Leuben ist vielfältig, mit einer Mischung aus historischen Gebäuden und modernen Wohnanlagen. Die ruhigen Wohnstraßen sind ideal für Familien und Menschen, die eine entspannte Wohnumgebung suchen, ohne auf die Annehmlichkeiten der Stadt verzichten zu müssen.
Insgesamt ist Dresden Leuben ein attraktiver Stadtteil, der sowohl die Vorzüge des städtischen Lebens als auch die Nähe zur Natur bietet und sich gut für alle eignet, die eine harmonische Lebensqualität suchen.
Kontaktanfrage senden
Über den Anbieter
STREIF Haus GmbH
Josef-Streif-Straße 1
54595 Weinsheim
Kontakt
| Telefon | +49 351 8902538 |
| Mobil | +49 172 9374300 |
| Website | www.streif.de |
Ansprechpartner/in
Herr Frank Strobel
Weitere Angebote des Anbieters
14
Hier schlägt Ihre Zukunft Wurzeln: Grundstück und Haus ...
Haus
56841 Traben-Trarbach
Ein Haus auf dem Papier ist gut - es live zu erleben ist besser. Auch wenn dieses Haus noch nicht real ist, können Sie schon heute erleben, wie es sich anfühlen könnte: In unserem STREIF-Musterhaus in Mülheim-Kärlich ...
391.100 €
Kaufpreis
117,71 m²
Wohnfläche
4
Zimmer
18
Schluss mit Schrägen - 100% Wohnglück für Ihre Familie! ...
Haus
56743 Mendig
Erleben Sie großzügiges Wohnen mit stilvoller Architektur und individueller Raumplanung! Die City XL von STREIF begeistert auf ca. 144 m² Netto-Raumfläche mit klaren Linien, moderner Gestaltung und flexiblen ...
526.800 €
Kaufpreis
144 m²
Wohnfläche
5
Zimmer
15
Ihr exklusiver Neubau mit Platz für die ganze Familie.
Haus
56751 Polch
Großzügiges Wohnen für höchste Ansprüche - Ihr Streifhaus mit Gästezimmer, zwei Bädern und Ankleide: Willkommen in Ihrem neuen Zuhause, das modernen Lebensstil, Großzügigkeit und individuelle Planung perfekt vereint! ...
555.410 €
Kaufpreis
163,37 m²
Wohnfläche
4
Zimmer
17
Ihr Bungalow, individuell geplant und perfekt umgesetzt ...
Haus
56651 Niederzissen
Der Bungalow umfasst 2 Schlafzimmer sowie ein Badezimmer mit Dusche, Wanne und Fenster, ergänzt durch ein zusätzliches Gäste-WC. Die Wahl der Bodenbeläge liegt dabei ganz in Ihrem Ermessen - ob stilvolle Fliesen oder ...
521.100 €
Kaufpreis
117 m²
Wohnfläche
4
Zimmer
16
Hier schlägt Ihre Zukunft Wurzeln: Grundstück und Haus ...
Haus
56812 Valwig
Willkommen in Ihrem neuen Traumhaus! Dieses wunderschöne Einfamilienhaus, projektiert nach Ihren individuellen Wünschen, bietet Ihnen auf 142,92 m² Wohnfläche mit 4 Zimmern und 4 Schlafzimmern ausreichend Platz für ...
610.800 €
Kaufpreis
142,92 m²
Wohnfläche
4
Zimmer