Hier schlägt Ihre Zukunft Wurzeln: Grundstück und Haus im Paket.
610.800 €
Kaufpreis
142,92 m²
Wohnfläche
4
Zimmer
immobilien.de Nr.: 9524532
Objektnummer: 4431
Kaufpreis
| Kaufpreis | 610.800 € |
Wohnfläche, Grundstück & Bausubstanz
| Wohnfläche | 142,92 m² |
| Grundstücksfläche | 1.340 m² |
| Zimmer | 4 |
| Verfügbar ab | keine Angabe |
Energie
| Energietyp | KfW-40 |
Beschreibung der Immobilie
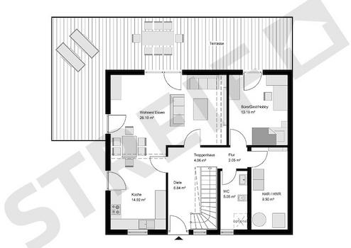
Willkommen in Ihrem neuen Traumhaus! Dieses wunderschöne Einfamilienhaus, projektiert nach Ihren individuellen Wünschen, bietet Ihnen auf 142,92 m² Wohnfläche mit 4 Zimmern und 4 Schlafzimmern ausreichend Platz für Ihre Familie. Der durchdachte Grundriss und die Möglichkeit zur Mitgestaltung beim Bau machen dieses Haus zu einem echten Unikat.
Die Ausbaustufe "FastFertigPlus" sorgt dafür, dass Sie die haustechnischen Gewerke, wie Heizung, Lüftung, Sanitär und Estrich, von Fachbetrieben erledigen lassen, während Sie bei anderen Aspekten aktiv mitwirken können.
Die Ausbaustufe "FastFertigPlus" sorgt dafür, dass Sie die haustechnischen Gewerke, wie Heizung, Lüftung, Sanitär und Estrich, von Fachbetrieben erledigen lassen, während Sie bei anderen Aspekten aktiv mitwirken können.
Ausstattungsmerkmale
| Anzahl der Etagen im Haus | 2 |
| Bad | 1 |
| Bad | Dusche |
| Keller |
Das Streif City Haus wird im Standard KFW 40 PLUS ausgeführt. Innenausstattung aus dem STREIF-Programm in der Ausbaustufe FF+ inklusive Fundamentplatte.
■ Rohbau (geschlossene Gebäudehülle) mit Fenstern, Haustür1 inkl. Dacheindeckung
■ Außenfassade inkl. Außenputz, vor Ort komplett fertiggestellt
■ Komplette Blechner-/Spenglerarbeiten
■ lnnen-/Außenwände wärme- und schallgedämmt und mit Rigidur Gipsfaserplatten geschlossen
■ Geschosstreppe (außer Bungalow)
■ Decken wärme- und schallgedämmt und mit Gipskartonbau platten geschlossen
■ Elektroinstallation, einschließlich erforderlichem Zählerschrank und Inbetriebnahme
■ Heizungsanlage inkl. Inbetriebnahme
■ Innenfensterbänke Kunststeinbänke (Gussmarmorbänke) inkl. Einbau
■ Estrich
■ Sanitärräume mit Wand- und Bodenfliesen
■ Sanitärräume mit Sanitärobjekten
■ 7,12 kWP Photovoltaikanlage und 7,7 kWh Batteriespeicher
Die Innentüren sowie Wand-, Decken- und Bodenbeläge der übrigen Räume sind Eigenleistungen des Bauherren.
STREIF Frischluft-Wärmepumpen-Technologie - inklusive
- Heizen mit frischer Außenluft
- Kein Gasanschluss, kein Öl- oder Pelletlagerraum
- Keine Heizkörper
- Wärmetauscher mit bis zu 85% Wärmerückgewinnung
Die dargestellten Bilder können Sonderausstattungen beinhalten, die nicht im Preis enthalten sind!
zzgl. Ortüblicher Baunebenkosten
Selbstverständlich können wir Ihr Haus auch schlüsselfertig / bezugsfertig errichten.
■ Bodenbeläge, Sockel leisten verlegt
■ Maler- und Tapezierarbeiten
■ Innentüren inkl. Einbau
■ Rohbau (geschlossene Gebäudehülle) mit Fenstern, Haustür1 inkl. Dacheindeckung
■ Außenfassade inkl. Außenputz, vor Ort komplett fertiggestellt
■ Komplette Blechner-/Spenglerarbeiten
■ lnnen-/Außenwände wärme- und schallgedämmt und mit Rigidur Gipsfaserplatten geschlossen
■ Geschosstreppe (außer Bungalow)
■ Decken wärme- und schallgedämmt und mit Gipskartonbau platten geschlossen
■ Elektroinstallation, einschließlich erforderlichem Zählerschrank und Inbetriebnahme
■ Heizungsanlage inkl. Inbetriebnahme
■ Innenfensterbänke Kunststeinbänke (Gussmarmorbänke) inkl. Einbau
■ Estrich
■ Sanitärräume mit Wand- und Bodenfliesen
■ Sanitärräume mit Sanitärobjekten
■ 7,12 kWP Photovoltaikanlage und 7,7 kWh Batteriespeicher
Die Innentüren sowie Wand-, Decken- und Bodenbeläge der übrigen Räume sind Eigenleistungen des Bauherren.
STREIF Frischluft-Wärmepumpen-Technologie - inklusive
- Heizen mit frischer Außenluft
- Kein Gasanschluss, kein Öl- oder Pelletlagerraum
- Keine Heizkörper
- Wärmetauscher mit bis zu 85% Wärmerückgewinnung
Die dargestellten Bilder können Sonderausstattungen beinhalten, die nicht im Preis enthalten sind!
zzgl. Ortüblicher Baunebenkosten
Selbstverständlich können wir Ihr Haus auch schlüsselfertig / bezugsfertig errichten.
■ Bodenbeläge, Sockel leisten verlegt
■ Maler- und Tapezierarbeiten
■ Innentüren inkl. Einbau
Sonstige Informationen
Mit STREIF haben Sie die Möglichkeit, Ihr Traumhaus in verschiedenen Ausbaustufen zu realisieren. Dieses Objekt umfasst die Ausbaustufe 3 - FastFertigPlus: Hierbei übernehmen Sie Eigenleistungen in Form einer Muskelhypothek und sparen dadurch Geld bei Zinsen oder verkürzen Kreditlaufzeiten. Die haustechnischen Gewerke wie Heizung, Lüftung, Sanitär und Estrich werden von Fachbetrieben erledigt. Vor jedem Bauprojekt steht eine umfassende Beratung, um Ihre Wünsche exakt zu ermitteln und in die maßgeschneiderte Planung Ihres Hauses einzubeziehen.
Karte wird geladen...
Objektstandort
56812 Valwig
Lage & Infrastruktur
Objektstandort
56812 Valwig
Hier verwirklichen Sie Ihre Wohnträume - auf einem soliden Fundament! Der ausgewiesene Preis beinhaltet das Grundstück, zuzüglich der Baunebenkosten, deren Höhe durch Lage und Größe beeinflusst wird.
Ihr Grundstück wartet bereits auf Ihre Ideen! Wir unterstützen Sie gerne dabei, Ihr Traumhaus optimal darauf zu planen und zu realisieren.
Ihr Grundstück wartet bereits auf Ihre Ideen! Wir unterstützen Sie gerne dabei, Ihr Traumhaus optimal darauf zu planen und zu realisieren.
Kontaktanfrage senden
Über den Anbieter
STREIF Haus GmbH
Josef-Streif-Straße 1
54595 Weinsheim
Kontakt
| Telefon | +49 (0) 65 51.12-00 |
| Mobil | +49 171 2225255 |
| Website | www.streif.de |
Ansprechpartner/in
Herr Markus Stemmler
Weitere Angebote des Anbieters
14
Hier schlägt Ihre Zukunft Wurzeln: Grundstück und Haus ...
Haus
56841 Traben-Trarbach
Ein Haus auf dem Papier ist gut - es live zu erleben ist besser. Auch wenn dieses Haus noch nicht real ist, können Sie schon heute erleben, wie es sich anfühlen könnte: In unserem STREIF-Musterhaus in Mülheim-Kärlich ...
391.100 €
Kaufpreis
117,71 m²
Wohnfläche
4
Zimmer
18
Schluss mit Schrägen - 100% Wohnglück für Ihre Familie! ...
Haus
56743 Mendig
Erleben Sie großzügiges Wohnen mit stilvoller Architektur und individueller Raumplanung! Die City XL von STREIF begeistert auf ca. 144 m² Netto-Raumfläche mit klaren Linien, moderner Gestaltung und flexiblen ...
526.800 €
Kaufpreis
144 m²
Wohnfläche
5
Zimmer
15
Ihr exklusiver Neubau mit Platz für die ganze Familie.
Haus
56751 Polch
Großzügiges Wohnen für höchste Ansprüche - Ihr Streifhaus mit Gästezimmer, zwei Bädern und Ankleide: Willkommen in Ihrem neuen Zuhause, das modernen Lebensstil, Großzügigkeit und individuelle Planung perfekt vereint! ...
555.410 €
Kaufpreis
163,37 m²
Wohnfläche
4
Zimmer
17
Ihr Bungalow, individuell geplant und perfekt umgesetzt ...
Haus
56651 Niederzissen
Der Bungalow umfasst 2 Schlafzimmer sowie ein Badezimmer mit Dusche, Wanne und Fenster, ergänzt durch ein zusätzliches Gäste-WC. Die Wahl der Bodenbeläge liegt dabei ganz in Ihrem Ermessen - ob stilvolle Fliesen oder ...
521.100 €
Kaufpreis
117 m²
Wohnfläche
4
Zimmer
16
Hier schlägt Ihre Zukunft Wurzeln: Grundstück und Haus ...
Haus
56812 Valwig
Willkommen in Ihrem neuen Traumhaus! Dieses wunderschöne Einfamilienhaus, projektiert nach Ihren individuellen Wünschen, bietet Ihnen auf 142,92 m² Wohnfläche mit 4 Zimmern und 4 Schlafzimmern ausreichend Platz für ...
610.800 €
Kaufpreis
142,92 m²
Wohnfläche
4
Zimmer