Verkauft - 3 Familienhaus mit großer, freier Eigentümerwohnung -Bestlage im Duisburger Uni-Viertel
645.000 €
Kaufpreis
305 m²
Wohnfläche
12
Zimmer
immobilien.de Nr.: 9237281
Objektnummer: 25KPL001MFH
Preise & Kosten
| Kaufpreis | 645.000 € |
| Nebenkosten | keine Angabe |
| Maklerprovision | 3,57% inkl. MwSt. |
| Stellplatz Freiplatz Miete} | 0 € |
| Stellplatz Garage Miete | 0 € |
Größe & Zustand
| Wohnfläche | 305 m² |
| Grundstücksfläche | 797 m² |
| Zimmer | 12 |
| Baujahr | 1937 |
| Letzte Modernisierung | 2002 |
| Verfügbar ab | sofort verfügbar |
| Zustand | Teil Vollrenoviert |
Energie
| Energieausweistyp | Bedarfsausweis |
| Gültig bis | 2035-09-13 |
| Energieeffizienzklasse | E |
| Endenergiebedarf | 152.80 |
| Heizungsart | Zentralheizung |
| Wesentlicher Energieträger | Oel |
| Energieträger/Befeuerung | Öl |
Objektbeschreibung
Das traumhafte, große 3-Parteienhaus mit freier Eigentümerwohnung - Hier werden Sie fündig, wenn Sie eine schicke Altbau-Wohnung als Selbstnutzer suchen und gleichzeitig solide Mieteinnahmen generieren möchten.
Das Haus aus dem Jahr 1937 steht auf einem 797m² großen Grundstück und besitzt großzügige 305m² Wohnfläche + zusätzlich nutzbare Fläche im Spitzboden und der Kellerfläche. Die Wohnfläche ist wie folgt aufgeteilt: EG = 101m², 1.OG = 105m², 2.OG = 98m². Die drei Wohnungen sind Anfang der 2000er zuletzt renoviert worden.
Sie betreten das Haus von der Frontseite und gelangen durch das charakteristische Altbau-Treppenhaus mit Rundbogen in alle drei Wohnungen, den Keller sowie den Spitzboden und ebenfalls geradeaus in den großen Garten.
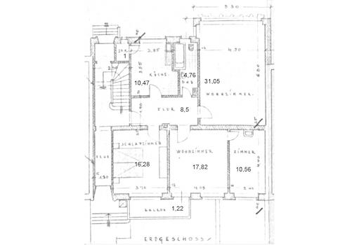
Im Erdgeschoss finden Sie eine schöne 4 Zimmer Wohnung mit 2 Schlafzimmern, einem Ankleidezimmer/Büro und einem großen Wohn-Esszimmer vor. Die Diele, wie auch die Schlafzimmer mit Ankleideraum sind mit Laminat ausgestattet und im großen Wohn-Esszimmer befindet sich ein edles Fischgräten-Parkett. Zur Erdgeschosswohnung gehört sowohl die Nutzung des Gartens wie auch der Garage.
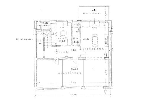
Die auf den Fotos dargestellte Wohnung im ersten OG bietet eine ähnliche Aufteilung wie die im Erdgeschoss. Hier besteht lediglich der Unterschied, dass neben dem Wohnzimmer drei sehr ähnliche Räume vorhanden sind, sodass diese Wohnung mit bis zu drei vollwertigen Schlafzimmern nutzbar wäre. Eine weitere Besonderheit bei dieser Wohnung ist, dass diese zum Großteil mit Parkettboden ausgestattet ist. Vom Balkon aus genießen Sie die perfekte Südlage mit grünem Ausblick in den sehr großen Hofbereich der umliegenden Häuser. Diese freie Wohnung wurde immer durch den Eigentümer genutzt und bietet sich nun erneut dafür an.
Die Wohnung im zweiten Obergeschoss bietet in der derzeitigen Aufteilung ein Schlafzimmer sowie ein großes Wohn- & Esszimmer mit zusätzlichem Abstellraum. Im Grundriss ist diese Aufteilung anders dargestellt. Die Wohnung ist durchgängig in allen Wohn- und Schlafbereichen mit Teppichboden ausgestattet.
Im Keller befinden sich neben den drei zugehörigen, privaten Kellerräumen noch ein großer Heizungs- & Trockenraum, ein großer Waschkeller, ein WC und die Garage der Erdgeschosswohnung.
Der sehr große Garten ist wunderschön angelegt und durch den unteren Mieter sehr gepflegt. Ein Highlight ist der zentral platzierte Kirschbaum und die befestigten Wege mit Grillplatz bzw. Terrasse. Auf dem Grundstück finden Sie des Weiteren ein Gartenhaus und einen Kompostbereich.
Kleinere Renovierungen sind noch sinnvoll.
Das Haus aus dem Jahr 1937 steht auf einem 797m² großen Grundstück und besitzt großzügige 305m² Wohnfläche + zusätzlich nutzbare Fläche im Spitzboden und der Kellerfläche. Die Wohnfläche ist wie folgt aufgeteilt: EG = 101m², 1.OG = 105m², 2.OG = 98m². Die drei Wohnungen sind Anfang der 2000er zuletzt renoviert worden.
Sie betreten das Haus von der Frontseite und gelangen durch das charakteristische Altbau-Treppenhaus mit Rundbogen in alle drei Wohnungen, den Keller sowie den Spitzboden und ebenfalls geradeaus in den großen Garten.
Im Erdgeschoss finden Sie eine schöne 4 Zimmer Wohnung mit 2 Schlafzimmern, einem Ankleidezimmer/Büro und einem großen Wohn-Esszimmer vor. Die Diele, wie auch die Schlafzimmer mit Ankleideraum sind mit Laminat ausgestattet und im großen Wohn-Esszimmer befindet sich ein edles Fischgräten-Parkett. Zur Erdgeschosswohnung gehört sowohl die Nutzung des Gartens wie auch der Garage.
Die auf den Fotos dargestellte Wohnung im ersten OG bietet eine ähnliche Aufteilung wie die im Erdgeschoss. Hier besteht lediglich der Unterschied, dass neben dem Wohnzimmer drei sehr ähnliche Räume vorhanden sind, sodass diese Wohnung mit bis zu drei vollwertigen Schlafzimmern nutzbar wäre. Eine weitere Besonderheit bei dieser Wohnung ist, dass diese zum Großteil mit Parkettboden ausgestattet ist. Vom Balkon aus genießen Sie die perfekte Südlage mit grünem Ausblick in den sehr großen Hofbereich der umliegenden Häuser. Diese freie Wohnung wurde immer durch den Eigentümer genutzt und bietet sich nun erneut dafür an.
Die Wohnung im zweiten Obergeschoss bietet in der derzeitigen Aufteilung ein Schlafzimmer sowie ein großes Wohn- & Esszimmer mit zusätzlichem Abstellraum. Im Grundriss ist diese Aufteilung anders dargestellt. Die Wohnung ist durchgängig in allen Wohn- und Schlafbereichen mit Teppichboden ausgestattet.
Im Keller befinden sich neben den drei zugehörigen, privaten Kellerräumen noch ein großer Heizungs- & Trockenraum, ein großer Waschkeller, ein WC und die Garage der Erdgeschosswohnung.
Der sehr große Garten ist wunderschön angelegt und durch den unteren Mieter sehr gepflegt. Ein Highlight ist der zentral platzierte Kirschbaum und die befestigten Wege mit Grillplatz bzw. Terrasse. Auf dem Grundstück finden Sie des Weiteren ein Gartenhaus und einen Kompostbereich.
Kleinere Renovierungen sind noch sinnvoll.
Ausstattung
| Bad | 3 |
| Boden | Fliesen, Teppich, Parkett |
| Garten | |
| Terrassen | 1 |
| Garage/Stellplätze | 1 |
| Keller |
Allgemein:
- Wohnungs-Innentüren weiß lackiert mit großen, zeitgenössischen Türzargen
Erdgeschoss:
- Parkettboden im Wohn-Esszimmer, Laminat in Wohnräumen und Diele, Fliesen in Bad und Küche
- Holzfenster weiß lackiert mit manuellen Rollläden
- Badezimmer mit Dusche und Handtuchheizkörper
Obergeschoss:
- Parkettboden in den Wohn- & Schlafräumen, Laminat in der Diele, Fliesen in Bad und Küche
- Holzfenster weiß lackiert mit manuellen Rollläden
- Badezimmer
- Bad mit Badewanne und zwei Waschbecken
Dachgeschoss:
- Teppichboden in Diele, Wohn- und Schlafräumen, Fliesen in Bad und Küche
- Holzfenster weiß lackiert
- Tageslichtbad mit Badewanne, Doppelwaschtisch und zusätzlicher Türe ins Schlafzimmer
Spitzboden:
- Dämmung der Dachfläche
- Estrich und teilweise Dämmung auf der oberen Geschossdecke
Keller:
- Großer Wasch- & Trockenraum
- Fenster im Waschkeller erneuert
- Kelleraußentreppe
- Garage mit Schwingtor und elektrischem Antrieb
- Großer Heizungsraum mit Abstellbereich
- 3 private Kellerräume
- 1 WC
- Wohnungs-Innentüren weiß lackiert mit großen, zeitgenössischen Türzargen
Erdgeschoss:
- Parkettboden im Wohn-Esszimmer, Laminat in Wohnräumen und Diele, Fliesen in Bad und Küche
- Holzfenster weiß lackiert mit manuellen Rollläden
- Badezimmer mit Dusche und Handtuchheizkörper
Obergeschoss:
- Parkettboden in den Wohn- & Schlafräumen, Laminat in der Diele, Fliesen in Bad und Küche
- Holzfenster weiß lackiert mit manuellen Rollläden
- Badezimmer
- Bad mit Badewanne und zwei Waschbecken
Dachgeschoss:
- Teppichboden in Diele, Wohn- und Schlafräumen, Fliesen in Bad und Küche
- Holzfenster weiß lackiert
- Tageslichtbad mit Badewanne, Doppelwaschtisch und zusätzlicher Türe ins Schlafzimmer
Spitzboden:
- Dämmung der Dachfläche
- Estrich und teilweise Dämmung auf der oberen Geschossdecke
Keller:
- Großer Wasch- & Trockenraum
- Fenster im Waschkeller erneuert
- Kelleraußentreppe
- Garage mit Schwingtor und elektrischem Antrieb
- Großer Heizungsraum mit Abstellbereich
- 3 private Kellerräume
- 1 WC
Sonstige Informationen
Selektive - Ihr Mehrwertmakler
Als besonderen Service bieten wir für Kaufinteressenten individuelle und unabhängige Finanzierungsberatungen an. Aus einer Vielzahl von Kreditgebern suchen wir für Sie das günstigste Angebot heraus und stellen Ihnen ein persönliches Konzept zusammen. Unsere Beratung ist für Sie selbstverständlich gebührenfrei.
Sie sind bereits Eigentümer einer Immobilie? Wir beraten Sie gerne und unverbindlich über Ihre Möglichkeiten. Ein Immobilienwertgutachten nach § 194 BauGB kann für Sie von unserem zertifizierten Gutachter erstellt werden. Besuchen Sie unsere Homepage www.selektive.de oder wenden Sie sich gleich an Ihren Immobilienprofi unter der Tel. 02841 88 99 60.
Als erstes etabliertes Maklerbüro am Niederrhein konnten wir den Qualitätsnachweis für IVD- Immobilienmakler und Hausverwalter die Verbandszertifizierung in Anlehnung an die DIN ISO 9000 ff erlangen. Seit 1994 sind wir Ihr verantwortungsbewusster Partner in Immobilienfragen.
Alle Angaben zum Objekt erfolgen im Namen unseres Auftraggebers und dienen einer ersten Information. Für die Richtigkeit und Vollständigkeit wird keine Haftung übernommen.
Als besonderen Service bieten wir für Kaufinteressenten individuelle und unabhängige Finanzierungsberatungen an. Aus einer Vielzahl von Kreditgebern suchen wir für Sie das günstigste Angebot heraus und stellen Ihnen ein persönliches Konzept zusammen. Unsere Beratung ist für Sie selbstverständlich gebührenfrei.
Sie sind bereits Eigentümer einer Immobilie? Wir beraten Sie gerne und unverbindlich über Ihre Möglichkeiten. Ein Immobilienwertgutachten nach § 194 BauGB kann für Sie von unserem zertifizierten Gutachter erstellt werden. Besuchen Sie unsere Homepage www.selektive.de oder wenden Sie sich gleich an Ihren Immobilienprofi unter der Tel. 02841 88 99 60.
Als erstes etabliertes Maklerbüro am Niederrhein konnten wir den Qualitätsnachweis für IVD- Immobilienmakler und Hausverwalter die Verbandszertifizierung in Anlehnung an die DIN ISO 9000 ff erlangen. Seit 1994 sind wir Ihr verantwortungsbewusster Partner in Immobilienfragen.
Alle Angaben zum Objekt erfolgen im Namen unseres Auftraggebers und dienen einer ersten Information. Für die Richtigkeit und Vollständigkeit wird keine Haftung übernommen.
Lage des Objektes
Das angebotene Mehrfamilienhaus befindet sich in einem lebendigen und gut angebundenen Stadtteil von Duisburg. Diese Gegend zeichnet sich durch ihre hervorragende Lage aus, da das Stadtzentrum nur etwa 2,75 Kilometer entfernt liegt.
Sämtliche Annehmlichkeiten und Einrichtungen des täglichen Bedarfs sind schnell und bequem zu erreichen. Die unmittelbare Umgebung bietet eine Vielzahl von Einkaufsmöglichkeiten, gastronomischen Angeboten sowie Freizeit- und Erholungsmöglichkeiten.
Die Anbindung an den öffentlichen Nahverkehr ist optimal, wodurch sich auch umliegende Bezirke und Städte bequem erkunden lassen. Die Autobahnauffahrt befindet sich lediglich 1,5km entfernt.
Diese stadtnahe Lage in einem begehrten Wohnviertel macht das Objekt sowohl für Kapitalanleger als auch für Familien und Singles gleichermaßen attraktiv. Genießen Sie die Vorzüge urbanen Lebens kombiniert mit der nötigen Ruhe im eigenen Zuhause.
Sämtliche Annehmlichkeiten und Einrichtungen des täglichen Bedarfs sind schnell und bequem zu erreichen. Die unmittelbare Umgebung bietet eine Vielzahl von Einkaufsmöglichkeiten, gastronomischen Angeboten sowie Freizeit- und Erholungsmöglichkeiten.
Die Anbindung an den öffentlichen Nahverkehr ist optimal, wodurch sich auch umliegende Bezirke und Städte bequem erkunden lassen. Die Autobahnauffahrt befindet sich lediglich 1,5km entfernt.
Diese stadtnahe Lage in einem begehrten Wohnviertel macht das Objekt sowohl für Kapitalanleger als auch für Familien und Singles gleichermaßen attraktiv. Genießen Sie die Vorzüge urbanen Lebens kombiniert mit der nötigen Ruhe im eigenen Zuhause.
Anbieter kontaktieren
Anbieter
Selektive Immobilien Service GmbH
Unterwallstr. 12
47441 Moers
Kontakt
| Telefon | 004928418899615 |
| Mobil | 004915144006691 |
| Fax | 004928418899610 |
| Website | www.selektive.de |
