Luxuriöses modernes Fachwerkhaus auf Grundstück mit Parkcharakter
1.190.000 €
Kaufpreis
315 m²
Wohnfläche
9
Zimmer
immobilien.de Nr.: 9194015
Objektnummer: 356949
Dateien
Preise & Kosten
| Kaufpreis | 1.190.000 € |
| Nebenkosten | keine Angabe |
| Maklerprovision | keine Provision, courtagefrei |
Größe & Zustand
| Wohnfläche | 315 m² |
| Grundstücksfläche | 1.845 m² |
| Zimmer | 9 |
| Baujahr | 1998 |
| Verfügbar ab | nach Absprache |
| Zustand | Neuwertig |
Energie
| Energieausweistyp | Verbrauch |
| Energieeffizienzklasse | B |
| Energieverbrauchkennwert | 65 kWh/(m²*a) |
| Heizungsart | Fußbodenheizung |
| Energieträger/Befeuerung | Öl |
Objektbeschreibung
Willkommen! Ein luxuriöser Haustraum mit Ausblick, Natur, Großzügigkeit und Design erwartet Sie. Ein architektonisches Statement aus Holz und Glas über 3 Ebenen mit einem Ausblick in den eigenen parkähnlichen und uneinsehbaren Süd-Garten mit leichter Hanglage.
Wir bieten Ihnen ein modernes Fachwerkhaus mit schwarzem Fachwerk und Ausfachungen in Glas bzw weissem Dämmputz.
Das Gebäude begrüßt sie stilvoll und leicht verschlossen mit einer großen Einfahrt, vielen Stellplätzen sowie einer großen Doppelgarage und einem Carport.
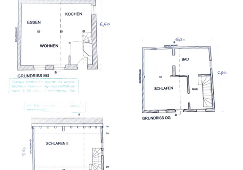
Von da geht es in das großzügige EG, welches sie dann mit einem traumhaften Blick über die komplett verglaste Südseite in den wunderschönen Garten verwöhnt.
Alles stilvoll und elegant. Der großzügige Wohnbereich hat einen Kamin vor der Glasfront, so hat man Alles im Blick. Neben einer offenen Küche findet man noch ein Gäste-WC und ein Zusatzzimmer im EG. Das EG geht über auf eine teilweise überdachte Bankirai-Terrasse von ca. 130 qm, welche den Wohnbereich nach draussen erweitert. Hier gibt es jederzeit einen Bereich in der Sonne sowie einen Bereich im Schatten.
Das Kellergeschoss wartet mit 2 Zimmern mit bodentiefer Verglasung, einem weiteren Zimmer sowie einem Duschbad auf. Weiterhin sind im Keller Vorratsraum, Hauswirtschaftsraum sowie der Technikraum installiert. Hier können 2-3 Büros entstehen oder Jugendzimmer, wenn die Nähe zu den Eltern nicht mehr im Fokus steht. Aktuell sind hier 2 Gästezimmer sowie ein Büro.
Im Obergeschoss warten weitere traumhafte Zimmer. 2 Kinderzimmer mit eigenem uneinsehbaren Balkon sowie ein Kinderbad auf der einen Seite.
Auf der anderen Seite befindet sich der Elternbereich. Abgeschlossen gibt es hier ein großes Schlafzimmer mit großzügigem Bad en Suite und ein Ankleidezimmer.
Das Grundstück umfasst 1845 QM und hat eine leichte Hanglage. Der nach Süden ausgerichtete Garten ist parkähnlich gestaltet, pflegeleicht und uneinsehbar. Neben der großen Holzterrasse gibt es ein kleines verstecktes Rondell für den Nachmittagskaffee.
Weiterhin gibt es tief versteckt ein Gartenhaus sowie eine überdachte Fläche für Gartengeräte.
Insgesamt stehen in dem Haus 5 Zimmer für Kinder/Jugend/Gäste/Büro zur Verfügung.
Das Haus ist technisch ohne Wartungsstau und regelmäßig gewartet.
Das Haus ist energieeffizient, siehe Energieausweis.
Weitere Informationen insbesondere Bilder senden wir Ihnen gerne nach persönlichem Kontakt.
Wir bieten Ihnen ein modernes Fachwerkhaus mit schwarzem Fachwerk und Ausfachungen in Glas bzw weissem Dämmputz.
Das Gebäude begrüßt sie stilvoll und leicht verschlossen mit einer großen Einfahrt, vielen Stellplätzen sowie einer großen Doppelgarage und einem Carport.
Von da geht es in das großzügige EG, welches sie dann mit einem traumhaften Blick über die komplett verglaste Südseite in den wunderschönen Garten verwöhnt.
Alles stilvoll und elegant. Der großzügige Wohnbereich hat einen Kamin vor der Glasfront, so hat man Alles im Blick. Neben einer offenen Küche findet man noch ein Gäste-WC und ein Zusatzzimmer im EG. Das EG geht über auf eine teilweise überdachte Bankirai-Terrasse von ca. 130 qm, welche den Wohnbereich nach draussen erweitert. Hier gibt es jederzeit einen Bereich in der Sonne sowie einen Bereich im Schatten.
Das Kellergeschoss wartet mit 2 Zimmern mit bodentiefer Verglasung, einem weiteren Zimmer sowie einem Duschbad auf. Weiterhin sind im Keller Vorratsraum, Hauswirtschaftsraum sowie der Technikraum installiert. Hier können 2-3 Büros entstehen oder Jugendzimmer, wenn die Nähe zu den Eltern nicht mehr im Fokus steht. Aktuell sind hier 2 Gästezimmer sowie ein Büro.
Im Obergeschoss warten weitere traumhafte Zimmer. 2 Kinderzimmer mit eigenem uneinsehbaren Balkon sowie ein Kinderbad auf der einen Seite.
Auf der anderen Seite befindet sich der Elternbereich. Abgeschlossen gibt es hier ein großes Schlafzimmer mit großzügigem Bad en Suite und ein Ankleidezimmer.
Das Grundstück umfasst 1845 QM und hat eine leichte Hanglage. Der nach Süden ausgerichtete Garten ist parkähnlich gestaltet, pflegeleicht und uneinsehbar. Neben der großen Holzterrasse gibt es ein kleines verstecktes Rondell für den Nachmittagskaffee.
Weiterhin gibt es tief versteckt ein Gartenhaus sowie eine überdachte Fläche für Gartengeräte.
Insgesamt stehen in dem Haus 5 Zimmer für Kinder/Jugend/Gäste/Büro zur Verfügung.
Das Haus ist technisch ohne Wartungsstau und regelmäßig gewartet.
Das Haus ist energieeffizient, siehe Energieausweis.
Weitere Informationen insbesondere Bilder senden wir Ihnen gerne nach persönlichem Kontakt.
Ausstattung
| Anzahl der Etagen im Haus | 3 |
| Küche | Einbauküche |
| Bad | 3 |
| Bad | Dusche, Wanne |
| Boden | Fliesen, Teppich |
| Balkone | 1 |
| Garten | |
| Terrassen | 1 |
| Garage/Stellplätze | 2 |
| Carport | 1 |
| Keller |
Balkon, Terrasse, Garten, Keller, Vollbad, Duschbad, Einbauküche, Gäste-WC, Kamin, Teppichboden, Fliesen
Bemerkungen:
Luxuriöse Ausstattung
1 Vollbad mit Dusche und Wanne
1 Bad mit Dusche (Kinder oben OG)
1 WC (EG)
1 Bad mit Dusche (Gäste/Jugend KG)
Große Fensterflächen
Jalousien
Zentralheizung mit Fussbodenheizung
Einbauküche modern
Design-Kamin
Überdachte Terrasse
Bankirai Holzdeck
Geflieste Doppelgarage mit zusätzlichem Platz für Motorräder
Carport
Bussystem
Bemerkungen:
Luxuriöse Ausstattung
1 Vollbad mit Dusche und Wanne
1 Bad mit Dusche (Kinder oben OG)
1 WC (EG)
1 Bad mit Dusche (Gäste/Jugend KG)
Große Fensterflächen
Jalousien
Zentralheizung mit Fussbodenheizung
Einbauküche modern
Design-Kamin
Überdachte Terrasse
Bankirai Holzdeck
Geflieste Doppelgarage mit zusätzlichem Platz für Motorräder
Carport
Bussystem
Sonstige Informationen
Heizungsart: Fußbodenheizung
Energieträger: Öl
Makleranfragen nicht erwünscht. Nach § 7 UWG sind unaufgeforderte Kontaktaufnahmen durch Makler ohne ausdrückliche Einwilligung des Empfängers verboten!
ohne-makler (OM) ist weder Anbieter noch Vermittler der Immobilie. OM betreibt eine Plattform für Immobilieneigentümer, die unter anderem die gleichzeitige Veröffentlichung einzelner Inserate auf mehreren Immobilienportalen ermöglicht. Die Inhalte dieser Inserate werden ausschließlich von Dritten verantwortet. Für die Richtigkeit, Vollständigkeit oder Rechtmäßigkeit der Angaben übernimmt OM keine Haftung. Hinweise auf mögliche Rechtsverstöße können jederzeit gemeldet werden und werden nach Prüfung umgehend bearbeitet.
Energieträger: Öl
Makleranfragen nicht erwünscht. Nach § 7 UWG sind unaufgeforderte Kontaktaufnahmen durch Makler ohne ausdrückliche Einwilligung des Empfängers verboten!
ohne-makler (OM) ist weder Anbieter noch Vermittler der Immobilie. OM betreibt eine Plattform für Immobilieneigentümer, die unter anderem die gleichzeitige Veröffentlichung einzelner Inserate auf mehreren Immobilienportalen ermöglicht. Die Inhalte dieser Inserate werden ausschließlich von Dritten verantwortet. Für die Richtigkeit, Vollständigkeit oder Rechtmäßigkeit der Angaben übernimmt OM keine Haftung. Hinweise auf mögliche Rechtsverstöße können jederzeit gemeldet werden und werden nach Prüfung umgehend bearbeitet.
Lage des Objektes
Das Fachwerkhaus steht in Detmold an einer Anliegerstraße (Sackgasse). Die Straße ist einseitig bebaut mit Wohnhäusern. Die andere Seite ist Feldrandlage. Das Naturschutzgebiet liegt in unmittelbarer Nähe. Alle Dinge des tägliches Bedarfs sind in direkter Umgebung.
Entfernungen bis…
-Apotheke 1,9 km
-Allgemeiner Arzt 1,2 km
-Tierarzt 1,7 km
-Bäcker 1,0 km
-Discounter mittel 1,0 km
-Discounter groß 3,6 km
-Bushaltestelle 0,5 km
-Tankstelle 1,6 km
-Grundschule 1,8 km
-Kindergarten 1,8 km
-Tennis 2,0 km
-Golf 2,1 km
-Realschule 2,7 km
-Hauptschule 2,8 km
-Fitness 3,4 km
-Gesamtschule 4,0 km
-Gymnasium 4,7 km
-Innenstadt Detmold 6,3 km
-Innenstadt Bielefeld 25 km
-Innenstadt Paderborn 40 km
-Flughafen Paderborn 50 km
Infrastruktur (im Umkreis von 5 km):
Apotheke, Lebensmittel-Discount, Allgemeinmediziner, Kindergarten, Grundschule, Hauptschule, Realschule, Gymnasium, Gesamtschule, Öffentliche Verkehrsmittel
Entfernungen bis…
-Apotheke 1,9 km
-Allgemeiner Arzt 1,2 km
-Tierarzt 1,7 km
-Bäcker 1,0 km
-Discounter mittel 1,0 km
-Discounter groß 3,6 km
-Bushaltestelle 0,5 km
-Tankstelle 1,6 km
-Grundschule 1,8 km
-Kindergarten 1,8 km
-Tennis 2,0 km
-Golf 2,1 km
-Realschule 2,7 km
-Hauptschule 2,8 km
-Fitness 3,4 km
-Gesamtschule 4,0 km
-Gymnasium 4,7 km
-Innenstadt Detmold 6,3 km
-Innenstadt Bielefeld 25 km
-Innenstadt Paderborn 40 km
-Flughafen Paderborn 50 km
Infrastruktur (im Umkreis von 5 km):
Apotheke, Lebensmittel-Discount, Allgemeinmediziner, Kindergarten, Grundschule, Hauptschule, Realschule, Gymnasium, Gesamtschule, Öffentliche Verkehrsmittel
