Gewerbe-/Lagergebäude provisionsfrei in Neudenau-Herbolzheim zu vermieten
6.500 €
Kaltmiete (netto)
immobilien.de Nr.: 8788225
Objektnummer: 317583
Preise & Kosten
| Kaltmiete (netto) | 6.500 € |
| Nebenkosten | keine Angabe |
| Maklerprovision | keine Provision, courtagefrei |
Größe & Zustand
| Gesamtfläche | 1.700 m² |
| Grundstücksfläche | 3.200 m² |
| Baujahr | 1950 |
| Verfügbar ab | 01.01.2025 |
| Zustand | Gepflegt |
Energie
| Heizungsart | Zentralheizung |
| Energieträger/Befeuerung | Gas |
Objektbeschreibung
Bedingt durch Geschäftsverlagerung wird zum 1.1.2025 ein Fabrikgebäude – und Gelände, Büro- oder Wohnhaus in Neudenau-Herbolzheim frei. Diese Gewerbeimmobilie , die bisher für Reparatur und Service von Antriebstechnik und Servomotoren genutzt wurde, ist unterteilbar, barrierefrei und vielfältig nutzbar, z.B. teilweise auch als Wohnung.
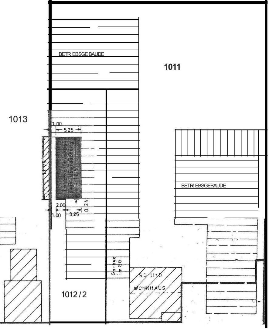
Die großzügige Fabrik-/Lagerhalle, mit einer Nutzfläche von ca. 1.150 m², befindet sich auf einem ca. 3.200 m² großen Grundstück und ist in mehrere Bereiche aufteilbar.
Ein an die Halle angebaute Bürokomplex verfügt über eine Fläche von ca. 110 m².
Die großzügige Fabrik-/Lagerhalle, mit einer Nutzfläche von ca. 1.150 m², befindet sich auf einem ca. 3.200 m² großen Grundstück und ist in mehrere Bereiche aufteilbar.
Ein an die Halle angebaute Bürokomplex verfügt über eine Fläche von ca. 110 m².
Ausstattung
| Anzahl der Etagen im Haus | 1 |
| Inserat befindet sich im Stockwerk | 1 |
| Barrierefrei | |
| Garage/Stellplätze | 1 |
| Carport | 1 |
Barrierefrei, Sonstiges (s. Text)
Bemerkungen:
- Büro komplett eingerichtet
- Besprechungsraum
- Archiv
- Kantinenküche (volleingerichtet)
- Aufenthaltsraum für Mitarbeiter mit Dusche, WC
- Viele Parkplätze für Mitarbeiter/Kunden
- Eine Laderampe für leichtes Be- und Entladen
- Großräumige Garage für zwei PKWs oder einen Transporter oder für Stauraum
- die Halle ist mit einer Gas-Direktheizung und teilweise Klimaanlage ausgestattet
- der Bürobereich wird mit einer Gastherme beheizt
- die Büroräume sind klimatisiert
- Internet Glasfaser-Anschluss verfügbar mit 200 Mbit
- Angrenzend an die Halle befindet sich ein Prüfraum (Klimaanlage)
- 3 x 0,5 Tonnen Kran im Hallen-/Werksatttbereich / 1x 1 Tonnen Kran im Hof
- Gas-Anschluss
- das ca. 3.200 qm groß Grundstück bietet weitere geteerte außenliegende Lagerfläche sowie Stellplätze
- Gut ausgebautes Stromnetz für den Betrieb von großen Maschinen/Anlagen
- Industriesektionaltore ca. 3,5m Höhe
- Höhe Halle 3,5 m / 4,5 m
- Im Aussenbereich ist ein Ölabscheider im Boden eingelassen
Bemerkungen:
- Büro komplett eingerichtet
- Besprechungsraum
- Archiv
- Kantinenküche (volleingerichtet)
- Aufenthaltsraum für Mitarbeiter mit Dusche, WC
- Viele Parkplätze für Mitarbeiter/Kunden
- Eine Laderampe für leichtes Be- und Entladen
- Großräumige Garage für zwei PKWs oder einen Transporter oder für Stauraum
- die Halle ist mit einer Gas-Direktheizung und teilweise Klimaanlage ausgestattet
- der Bürobereich wird mit einer Gastherme beheizt
- die Büroräume sind klimatisiert
- Internet Glasfaser-Anschluss verfügbar mit 200 Mbit
- Angrenzend an die Halle befindet sich ein Prüfraum (Klimaanlage)
- 3 x 0,5 Tonnen Kran im Hallen-/Werksatttbereich / 1x 1 Tonnen Kran im Hof
- Gas-Anschluss
- das ca. 3.200 qm groß Grundstück bietet weitere geteerte außenliegende Lagerfläche sowie Stellplätze
- Gut ausgebautes Stromnetz für den Betrieb von großen Maschinen/Anlagen
- Industriesektionaltore ca. 3,5m Höhe
- Höhe Halle 3,5 m / 4,5 m
- Im Aussenbereich ist ein Ölabscheider im Boden eingelassen
Sonstige Informationen
Heizungsart: Zentralheizung
Energieträger: Gas
Energieausweis nicht vorhanden
Die Halle kann vielfältig genutzt werden, z.B. als Produktionswerkstatt zur Montage, als Lagerraum, für Bürotätigkeiten uvm. Die Hallenbereiche können unterschiedlich aufgeteilt werden, so dass auch kleinere Bereiche entstehen. Ideal auch, um einzelne Produktionsabschnitte zu unterteilen. Provisionsfreie Vermietung.
Für weitere Informationen sowie einen persönliche Terminabsprache stehen Ihnen folgende Kontaktmöglichkeiten zur Verfügung:
Wolfgang Nenninger
E-Mail: info@nenninger.de
Telefon: +49 172 6189028
Makleranfragen nicht erwünscht. Nach § 7 UWG sind unaufgeforderte Kontaktaufnahmen durch Makler ohne ausdrückliche Einwilligung des Empfängers verboten!
Energieträger: Gas
Energieausweis nicht vorhanden
Die Halle kann vielfältig genutzt werden, z.B. als Produktionswerkstatt zur Montage, als Lagerraum, für Bürotätigkeiten uvm. Die Hallenbereiche können unterschiedlich aufgeteilt werden, so dass auch kleinere Bereiche entstehen. Ideal auch, um einzelne Produktionsabschnitte zu unterteilen. Provisionsfreie Vermietung.
Für weitere Informationen sowie einen persönliche Terminabsprache stehen Ihnen folgende Kontaktmöglichkeiten zur Verfügung:
Wolfgang Nenninger
E-Mail: info@nenninger.de
Telefon: +49 172 6189028
Makleranfragen nicht erwünscht. Nach § 7 UWG sind unaufgeforderte Kontaktaufnahmen durch Makler ohne ausdrückliche Einwilligung des Empfängers verboten!
Lage des Objektes
Herbolzheim liegt zwischen den Autobahnanbindungen zur A81 in Möckmühl und der A6 in Heilbronn. Zum nächsten Bahnhof in Richtung Stuttgart oder Würzburg sind es zu Fuß nur 10 Minuten. Vor Ort in der Straße gibt es einen Bäcker sowie in der näheren Umgebung gute Einkaufsmöglichkeiten.
Infrastruktur (im Umkreis von 5 km):
Apotheke, Lebensmittel-Discount, Allgemeinmediziner, Kindergarten, Grundschule, Öffentliche Verkehrsmittel
Infrastruktur (im Umkreis von 5 km):
Apotheke, Lebensmittel-Discount, Allgemeinmediziner, Kindergarten, Grundschule, Öffentliche Verkehrsmittel
Anbieter kontaktieren
Kontakt
| Telefon | - |
| Fax | - |
| Website | www.ohne-makler.net |
