Erstbezug - Kleine Büro-oder Praxisfläche in Dresden Loschwitz
2
Zimmer
immobilien.de Nr.: 8084799
Objektnummer: 263/E7/Eh2
Preise & Kosten
| Miete für das Objekt | Auf Anfrage |
| Nebenkosten | 190 € |
| Mietpreis pro m² | 15,5 € |
| Maklerprovision | provisionsfrei |
Größe & Zustand
| Bürofläche | 86 m² |
| Bürofläche | 86 m² |
| Fläche teilbar ab | 86 m² |
| Zimmer | 2 |
| Verfügbar ab | 01.04.22 |
Objektbeschreibung
Das denkmalgeschützte Wohn- und Büroensemble in der Krügerstraße besteht aus 3 Häusern die separat erschlossen sind. Aktuell wird das Haus C (Südbau) liebevoll saniert. Aus den großen Fenstern hat man einen wundervollen Blick in den grünen Garten mit Brunnen in welchem man sich wundervoll erholen kann. Die Flächen können individuell nach dem Raumprofil des Mieters ausgebaut und ausgestattet werden. Insgesamt entstehen 255 m² Flächen auf 3 Geschossen:
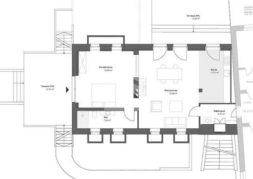
Gartengeschoss mit 106 m² mit separatem Zugang und Terrassen
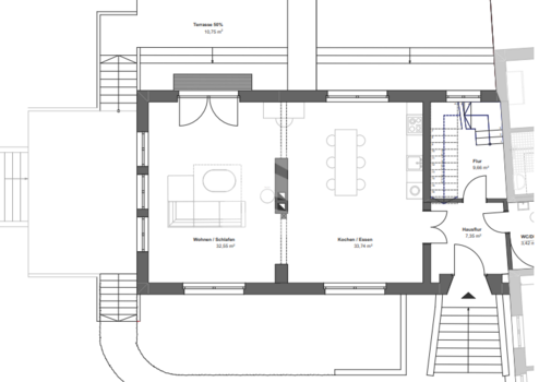
Erdgeschoss mit 86 m² mit Terrasse
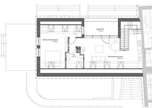
Dachgeschoss mit 67,20 m² mit Loggia
zusätzlich Hobbyraum/Archiv/Garage im Haus B ca. 70 m² anmietbar
Gartengeschoss mit 106 m² mit separatem Zugang und Terrassen
Erdgeschoss mit 86 m² mit Terrasse
Dachgeschoss mit 67,20 m² mit Loggia
zusätzlich Hobbyraum/Archiv/Garage im Haus B ca. 70 m² anmietbar
Sonstige Informationen
Der Mietpreis richtet sich nach der Lage im Objekt, Ausstattung sowie Vertragslaufzeit und liegt zwischen 15,70 EUR/m² und 17,70 EUR/m².
Flächenanmietung leicht gemacht?
Bitte sprechen Sie uns an, gern stellen wir Ihnen eine Auswahl geeigneter Büroflächenangebote zusammen. Für Fragen, ein persönliches Gespräch oder auch eine persönliche Terminvereinbarung stehen wir Ihnen gern telefonisch unter 041-5643000 zur Verfügung.
Flächenanmietung leicht gemacht?
Bitte sprechen Sie uns an, gern stellen wir Ihnen eine Auswahl geeigneter Büroflächenangebote zusammen. Für Fragen, ein persönliches Gespräch oder auch eine persönliche Terminvereinbarung stehen wir Ihnen gern telefonisch unter 041-5643000 zur Verfügung.
Lage des Objektes
Das Anwesen befindet sich im reinen Villenviertel Loschwitz in Dresden. Das ehemalige Winzer- und Fischerdorf schmiegt sich an die grünen Hänge östlich der Elbe und erstreckt sich von den drei Elbschlössern aus stromaufwärts über den Körnernplatz bis hin zum Wachwitzer Fernsehturm. Im Osten wird Loschwitz/Wachwitz von der Dresdner Heide, einem ausgedehnten Waldgebiet, begrenzt. Auf dem liebevoll angelegten Eckgrundstück mit ca. 1.575 m² Fläche und einem schönen Bewuchs stehen Stellplätze zur Anmietung zur Verfügung. Vor dem Grundstück können Gäste und Besucher öffentliche Stellplätze nutzen. Eine Buslinie verkehrt direkt vor dem Gebäude.
