4 Zimmerwohnung

63916 Amorbach, Bayern
Frei ab: Sofort
900 € Kaltmiete
9,89 € Preis/m² ca.
Wohnfläche
91 m²
Zimmer
4
Einbauküche

Mietpreis & Nebenkosten

Kaltmiete900 €
Nebenkosten 150 €
Heizkosten150 €
Kaution 2.700 €
Maklerprovision

Wohnfläche, Grundstück & Bausubstanz

Wohnfläche91 m²
Zimmer4
Baujahr1975
Letzte Modernisierung2004
Verfügbar ab Sofort
ZustandModernisiert

Beschreibung der Immobilie

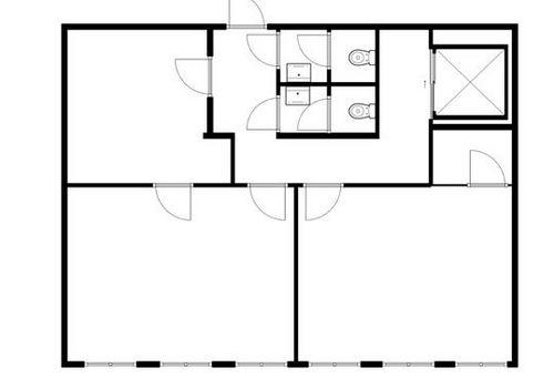
Wir haben eine Wohnung mit 4 Zimmer zu vermieten, die Wohnung befindet sich im EG links und verfügt über 91 m² Wohnfläche. Die Wohnung wurde im Detail 2004 sehr aufwendig renoviert. Es erwarten Sie vier geräumige und helle Zimmer, ein Tageslicht-Badezimmer sowie eine separate Gästetoilette. Die Gartennutzung ist Ihnen ebenfalls gestattet.

Ausstattungsmerkmale

KücheEinbauküche
Bad1
Bad (Ausstattung)Dusche, Wanne, Fenster
BodenFliesen
Die gesamte Bodenfläche sowie das Badezimmer als auch die Gästetoilette sind komplett mit hochwertige Fliesen gefliest und mit Fußbodenheizung ausgestattet.
Außerdem sind das Badezimmer und Gästetoilette vom Boden bis zur Decke gefliest.
Geheizt wird über eine Öl-Zentralheizung.
Der Balkon wurde während der Sanierung mit Fenster verkleidet und kann als Essbereich genutzt werden.

Energie

Heizungsart Zentralheizung, Fußbodenheizung
Energieträger/Befeuerung Öl

Karte wird geladen...
63916 Amorbach – Bayern

Lage & Infrastruktur

Willkommen in Amorbach. Einkaufsmöglichkeiten, Ärzte, Kindergärten, Schulen, etc. sind problemlos zu Fuß zu erreichen. Öffentliche Verkehrsmittel stehen in Amorbach selbstverständlich zur Verfügung.
Ansprechpartner/in: Privat von Selami Kaya
immo-for-less Privat vom Eigentümer
Bierweg 19, 99310 Arnstadt

Weitere Angebote in Amorbach