Exklusive Wohngegend in Dresden - Bauen mit STREIF Haus

01326 Dresden
1.349.500 € Kaufpreis
Wohnfläche
150 m²
Zimmer
4
Offene Küche

Kaufpreis

Kaufpreis 1.349.500 €

Wohnfläche, Grundstück & Bausubstanz

Wohnfläche150 m²
Nutzfläche150 m²
Grundstücksfläche927 m²
Zimmer4
Etagen2
Baujahr2027
Verfügbar ab Keine Angabe
ZustandProjektiert

Beschreibung der Immobilie

Exklusive STREIF-Villa mit modernem Design und durchdachtem Grundriss
Diese zweigeschossige STREIF-Villa 1, besticht durch ihr modernes Flachdach und eine beeindruckende Glasfront, die den gesamten Gartenbereich aufwertet. Der Baukörper ist in einem kubistischen Stil gehalten und die Architektur clever gestaltet. Ein besonderes Highlight dieser Villa ist die weitläufige XXL-Glasfront, die sich über beide Etagen erstreckt und für ein außergewöhnliches Wohngefühl sorgt.

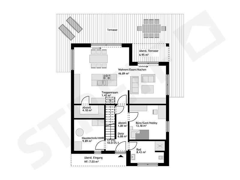
Zentraler Punkt der Villa ist die mittig platzierte Treppe, die den offenen Wohn- und Essbereich geschickt vom Kochbereich trennt. Die lichtdurchfluteten 45 m² bieten Raum zum Wohnen, Essen und Kochen und schaffen eine Atmosphäre voller Lebensfreude. Direkt neben der Küche befindet sich eine nützliche Speisekammer, während in einer separaten Nische Platz für eine Garderobe geschaffen wurde, um Jacken und Schuhe zu verstauen. Der großzügige Wohnbereich verfügt zudem über zwei Terrassentüren und bietet genügend Platz, um bei Bedarf eine zusätzliche Wand einzufügen, damit das Wohnen auf einer Ebene möglich wird - ideal für altersgerechtes Wohnen oder im Krankheitsfall. Ergänzt wird das Erdgeschoss durch ein Badezimmer sowie einen Hauswirtschaftsraum.

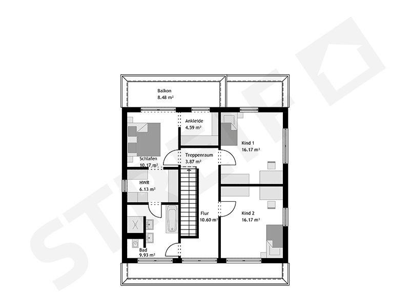
Im Obergeschoss der Villa mit Flachdach befinden sich zwei identisch große Kinderzimmer, ein geräumiges Familienbad sowie der Elternbereich, der mit einer Ankleide ausgestattet ist. Ein weiteres Highlight ist die Galerie, die dank der Glasfront einen herrlichen Ausblick ins Freie bietet. Diese 10 m² große Galerie kann vielseitig genutzt werden, sei es als Homeoffice, Spielecke oder als Rückzugsort für Erholung.

Diese Villa ist in drei verschiedenen Grundrissvarianten erhältlich, jeweils mit unterschiedlichen Größen.



STREIF-Villa 01
- Variante L: 150m² / Hausmaße 9,33 x 9,95 m
- Variante XL: 170 m² / Hausmaße 9,95 x 10,58 m
- Variante XXL: 190 m² / Hausmaße 10,58 x 11,205 m

Ausstattungsmerkmale

KücheOffene Küche
Bad1
Bad (Ausstattung)Dusche, Wanne, Fenster
Das Streif City Haus wird im Standard KFW 40 PLUS ausgeführt. Grundstück inkl. Innenausstattung aus dem STREIF-Programm in der Ausbaustufe FF+ inklusive Fundamentplatte.

■ Rohbau (geschlossene Gebäudehülle) mit Fenstern, Haustür1 inkl. Dacheindeckung
■ Außenfassade inkl. Außenputz, vor Ort komplett fertiggestellt
■ Komplette Blechner-/Spenglerarbeiten
■ lnnen-/Außenwände wärme- und schallgedämmt und mit Gipsfaserplatten geschlossen
■ Geschosstreppe (außer Bungalow)
■ Decken wärme- und schallgedämmt und mit Gipskartonbau platten geschlossen
■ Elektroinstallation, einschließlich erforderlichem Zählerschrank und Inbetriebnahme
■ Heizungsanlage inkl. Inbetriebnahme
■ Innenfensterbänke Kunststeinbänke (Gussmarmorbänke) inkl. Einbau
■ Estrich
■ Sanitärräume mit Wand- und Bodenfliesen
■ Sanitärräume mit Sanitärobjekten
■ 6,23 kWP Photovoltaikanlage und 7,7 kWh Speicher

Die Innentüren sowie Wand-, Decken- und Bodenbeläge der übrigen Räume sind Eigenleistungen des Bauherren.

STREIF Frischluft-Wärmepumpen-Technologie - inklusive
- Heizen mit frischer Außenluft
- Kein Gasanschluss, kein Öl- oder Pelletlagerraum
- Keine Heizkörper
- Wärmetauscher mit bis zu 85% Wärmerückgewinnung

Die dargestellten Bilder können Sonderausstattungen beinhalten, die nicht im Preis enthalten sind!

zzgl. Ortüblicher Baunebenkosten

Selbstverständlich können wir Ihr Haus auch schlüsselfertig / bezugsfertig errichten.
■ Bodenbeläge, Sockel leisten verlegt
■ Maler- und Tapezierarbeiten
■ Innentüren inkl. Einbau

Energie

Energietyp KfW-40
Energieträger/Befeuerung Luft-Wärme-Pumpe

Karte wird geladen...
01326 Dresden

Lage & Infrastruktur

Die PLZ 01326 gehört zum Stadtteil Loschwitz in Dresden, Deutschland. Loschwitz ist bekannt für seine malerische Lage an den Elbhängen und gilt als einer der schönsten Stadtteile Dresdens. Hier vereinen sich Natur und Kultur zu einer einzigartigen Atmosphäre.

Sonstige Informationen

Sie brauchen einen kompetenten und verlässlichen Baupartner? Wir stehen Ihnen von Anfang an zur Seite und begleiten Sie auf dem Weg in Ihr Eigenheim.

Mit großem Engagement, Persönlichkeit und der Fachfirma STREIF mit immensen Bau-Know-how, die seit 1929 auf über 90.000 realisierte Wohnträume zurückblicken kann.

Jedes Haus von STREIF wird individuell als Energiesparhaus geplant und gebaut. Eine nachhaltige, ökologische und wohngesunde Bauweise, eine zertifizierte Ausführungsqualität und eine kurze Bauzeit, dafür stehen wir.

Gerne beraten wir Sie nach Vereinbarung im Musterhaus Dresden Schönefeld oder ganz unkompliziert bei Ihnen zu Hause und erstellen Ihnen ein Angebot mit einer realistisch ermittelten Aufstellung der Gesamt-Investition.

Wir freuen uns auf Ihren Anruf / Nachricht!

Ihr STREIF Fachberater
Frank Strobel

E-Mail: frank.strobel@streif.de

Mobil: 0172 - 9374300





Hinweis:

Vorverkauf und Irrtümer vorbehalten. Bilder können Sonderbauteile darstellen, die im Preis nicht enthalten sind und abweichend von textlichen Inhalten sein.

zzgl. Baunebenkosten.

Der Grundstückserwerb stellt keine STREIF Leistung dar.

Hinweis zu den gesetzlichen Pflichtangaben gemäß der EnEV 2016: Bei dem hier angebotenen Haus handelt es sich um ein Neubauprojekt.

Wir weisen darauf hin, dass zu diesem projektierten Haus noch kein Energieausweis vorliegt. Der Energieausweis wird Ihnen spätestens im Rahmen der Erstellung des Objektes ausgehändigt
Ansprechpartner/in: Herr Frank Strobel
STREIF Haus GmbH
Josef-Streif-Straße 1, 54595 Weinsheim

Weitere Angebote in Dresden