Aigner - Lichtdurchflutete 2-Zimmer-Dachgeschosswohnung mit sonnigem Balkon in Laim

80686 München
Frei ab: nach Vereinbarung
595.000 € Kaufpreis
Wohnfläche
66,71 m²
Zimmer
2
Einbauküche
Fahrstuhl
Stellplatz

Kaufpreis

Kaufpreis 595.000 €
Kaufpreis pro m²8750 €
Hausgeld364 €
Maklerprovision3,57%
Stellplatz Garage Kaufpreis50.000 €

Wohnfläche, Grundstück & Bausubstanz

Wohnfläche66,71 m²
Zimmer2
Baujahr1964
Verfügbar ab nach Vereinbarung
ZustandGepflegt

Beschreibung der Immobilie

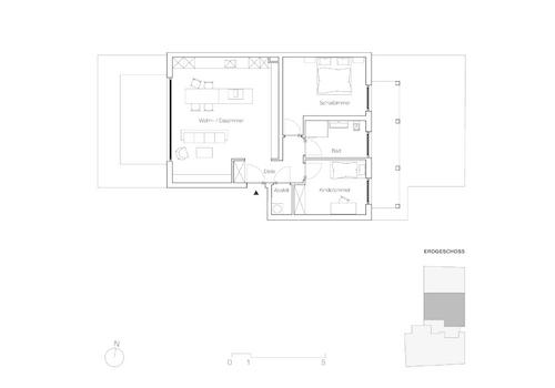
Die angebotene 2-Zimmer-Dachgeschosswohnung befindet sich in einem gepflegten Mehrfamilienhaus aus dem Jahr 1964 und bietet auf ca. 66,71 m² Wohnfläche ein durchdachtes Raumkonzept. Das Dachgeschoss, in dem sich die Wohnung befindet, wurde erst im Jahr 2006 ausgebaut. Im Jahr 2018 wurde die Wohnung vollständig renoviert, wodurch sie sich heute in einem modernen und gepflegten Zustand präsentiert.

Herzstück der Wohnung ist das großzügige Wohnzimmer mit direktem Zugang zum Balkon. Von hier aus genießen Sie sonnige Stunden im Freien – der ideale Ort, um den Tag entspannt ausklingen zu lassen. Die Dachgeschosslage verleiht der Wohnung ein besonderes, helles Wohnambiente mit charmantem Charakter. Das Schlafzimmer bietet ausreichend Platz für ein Doppelbett und einen geräumigen Kleiderschrank. Die separate Küche ist mit einer Einbauküche ausgestattet und funktional geschnitten – optimale Arbeitsabläufe und genügend Stauraum ermöglichen komfortables Kochen im Alltag.
Das Badezimmer präsentiert sich modern und funktional gestaltet. Es verfügt über eine großzügige Badewanne, die zum Entspannen einlädt, sowie einen praktischen Waschmaschinenanschluss, der Alltag und Komfort optimal vereint.
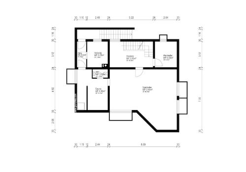
Abgerundet wird das Angebot durch zwei zur Wohnung gehörende Tiefgaragenstellplätze, die komfortables und witterungsgeschütztes Parken ermöglichen, sowie ein praktisches Kellerabteil, das zusätzlichen Stauraum bietet.

Die Wohnung besticht durch ihren funktionalen Schnitt, die lichtdurchflutete Dachgeschosslage sowie die praktischen Extras wie Balkon mit hochwertiger Markise, eigenes Kellerabteil und Tiefgaragenstellplätze – ideal für komfortables Wohnen in gefragter Lage.

Der Kaufpreis setzt sich wie folgt zusammen: Kaufpreis Dachgeschosswohnung 595.000 Euro + 50.000 Euro 2 TG-Stellplätze = 645.000 Euro Gesamt.

Ausstattungsmerkmale

KücheEinbauküche
Bad1
Fahrstuhl
Garage/Stellplätze2
- Heller offener Wohn-/Essbereich
- Stilvolle Nolte Einbauküche mit Marken-Elektrogeräten
- Modernes Bad mit Wanne
- Waschmaschinenanschluss im Bad
- Elektrische Rollläden an den großen Fenstern
- Jährlich gewartete, hochwertige Veluxfenster
- Sonniger West-Balkon mit unverbaubarem Blick in die Alpenregion
- Eigenes Kellerabteil
- 2 nebeneinander liegende Tiefgarageneinzelstellplätze
- Aufzug im Gebäude
- Echtholz-Parkett
- Hochwertige Fliesen

Energie

Heizungsart Zentralheizung
Energieträger/Befeuerung Gas

Karte wird geladen...
80686 München

Lage & Infrastruktur

Die Immobilie befindet sich in zentraler und hervorragend angebundener Lage im beliebten Münchner Stadtteil München-Laim. Das Umfeld ist geprägt von einer urbanen Wohnstruktur mit gewachsener Infrastruktur, vielfältigen Einkaufsmöglichkeiten und kurzen Wegen im Alltag.


In unmittelbarer Nähe finden sich zahlreiche Geschäfte des täglichen Bedarfs, Supermärkte, Bäckereien, Apotheken sowie Ärzte. Ergänzt wird das Angebot durch Cafés, Restaurants und diverse Dienstleister, die das Viertel lebendig und attraktiv machen. Alles, was man für das tägliche Leben benötigt, ist bequem erreichbar.


Die Verkehrsanbindung ist besonders hervorzuheben: Neben mehreren Bus- und Tramlinien befindet sich auch die U-Bahn-Station "Friedenheimer Straße" nur wenige Schritte entfernt und bietet eine schnelle, direkte Verbindung in die Münchner Innenstadt sowie zu weiteren wichtigen Knotenpunkten der Stadt. Zusätzlich sorgt die nahegelegene S-Bahn für eine optimale regionale Anbindung. Auch mit dem Pkw sind die wichtigsten Verkehrsachsen zügig erreichbar.


Trotz der zentralen und urbanen Lage stehen in der Umgebung verschiedene Grünflächen und Freizeitmöglichkeiten zur Verfügung, die Raum für Erholung und sportliche Aktivitäten bieten.


Insgesamt überzeugt die Lage durch ihre ausgezeichnete Infrastruktur, die unmittelbare Nähe zum öffentlichen Nahverkehr sowie die sehr gute Erreichbarkeit sämtlicher Einrichtungen des täglichen Bedarfs.

Sonstige Informationen

Befeuerung/Energieträger: Erdgas hoch
Energieausweistyp: Verbrauchsausweis
Energiekennwert: 100,1 kWh/(m²*a)
Energieeffizienzklasse: D
Baujahr: 1964
Heizungsart: Zentralheizung
Ansprechpartner/in: Herr Tim Bergmann
Aigner Immobilien GmbH
Ruffinistr. 26, 80637 München

Weitere Angebote in München