AIGNER - Exklusive Gartenwohnung in Bestlage Harlaching

81545 München
1.265.000 € Kaufpreis
Wohnfläche
84,83 m²
Zimmer
3
Garten
Fahrstuhl
Keller
Stellplatz

Kaufpreis

Kaufpreis 1.265.000 €
Maklerprovision0,0 %
Stellplatz Garage Kaufpreis37.500 €

Wohnfläche, Grundstück & Bausubstanz

Wohnfläche84,83 m²
Nutzfläche10 m²
Zimmer3
Baujahr2027
Verfügbar ab Keine Angabe
ZustandErstbezug

Beschreibung der Immobilie

Diese einzigartige Erdgeschosswohnung vereint luxuriöses Wohnen mit gehobenem Anspruch zu einer perfekten Symbiose. In einem repräsentativen Wohnhaus mit nur sechs Wohneinheiten entsteht in begehrter Bestlage von Harlaching ein Refugium zeitloser Eleganz und höchster Exklusivität.

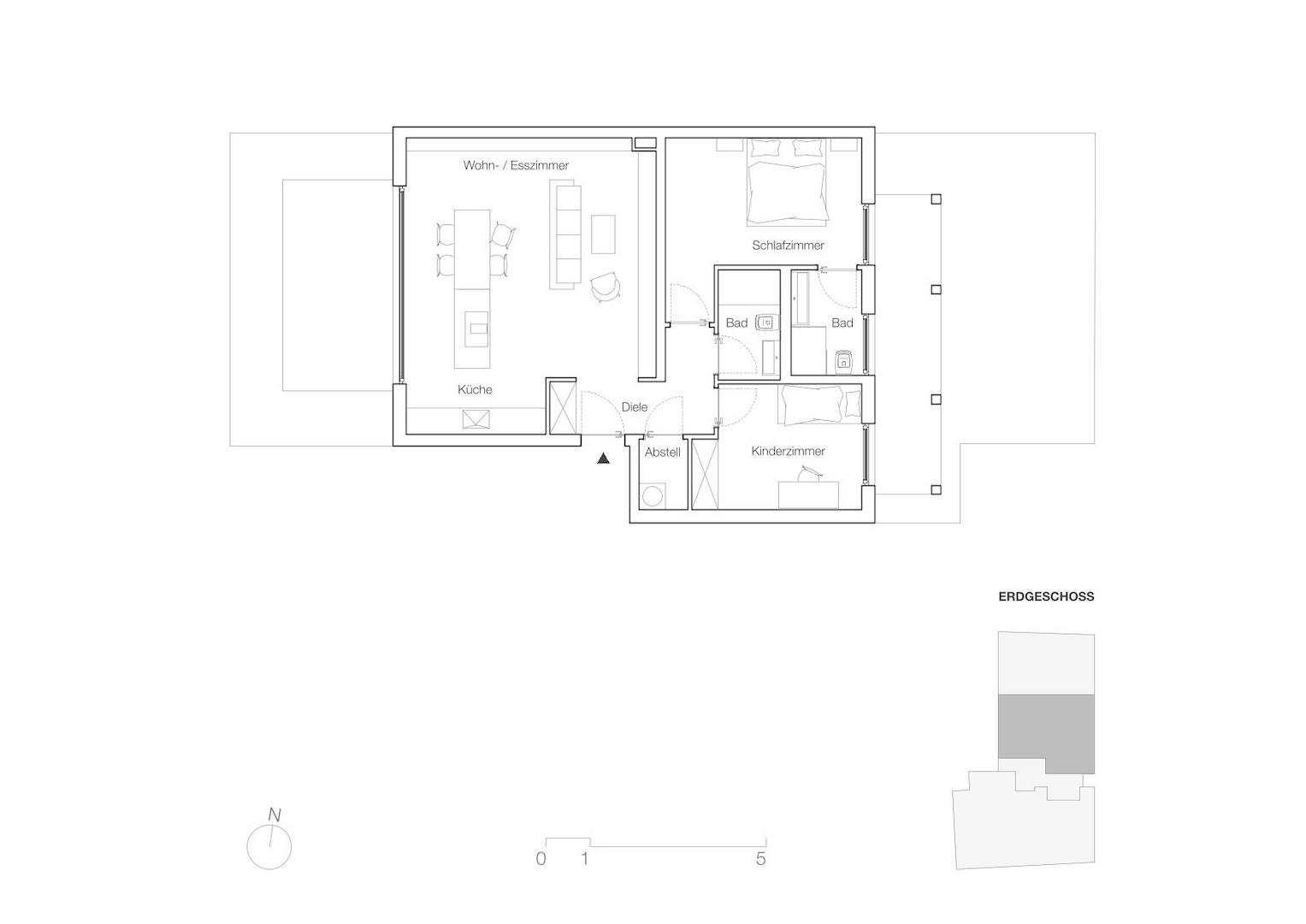
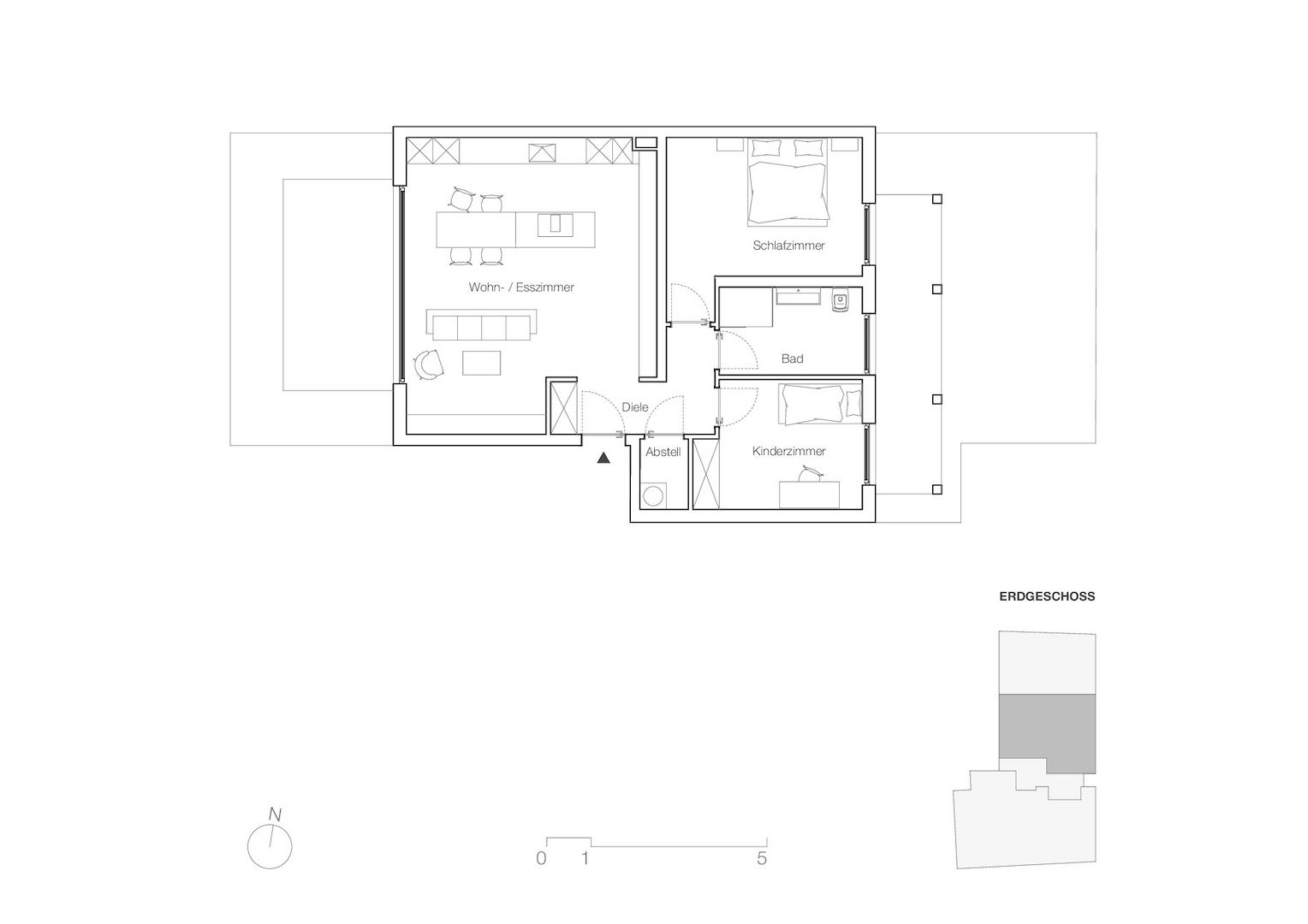
Mit einer Wohnfläche von ca. 84,83 m² und einem durchdachten, modernen sowie flexibel gestaltbaren Grundriss bietet diese Immobilie ein außergewöhnlich großzügiges Raumgefühl auf höchstem Niveau. Dabei stehen zwei Grundrissvarianten zur Auswahl: entweder ein großzügiges Badezimmer oder alternativ ein kleineres Bad in Kombination mit einem separaten Gäste-WC. Die Ausstattung der Bäder erfolgt in beiden Varianten mit hochwertiger Keramik von Villeroy & Boch und unterstreicht den gehobenen Wohnanspruch.

Modernste Smarthome-Technologie, eine hochwertige Videosprechanlage sowie eine Fußbodenheizung gewährleisten erstklassigen Wohnkomfort zu jeder Jahreszeit. Edles Echtholzparkett, stilvolle Vollspanntüren und hochwertige Holz-Alu-Fenster mit Dreifach-Isolierverglasung setzen ebenso Maßstäbe wie elektrische Rollläden und Raffstores, die höchsten Ansprüche an Komfort, Funktionalität und Wertbeständigkeit gerecht werden.

Ein besonderes Highlight ist der ca. 41,5 m² große Privatgarten, der als Sondereigentum ausgewiesen ist und zusätzlichen Raum für Erholung und Privatsphäre im Grünen bietet.

Abgerundet wird dieses exklusive Angebot durch einen komfortablen Tiefgaragen-Einzelstellplatz. Die Fertigstellung erfolgt Ende 2027.

Der Kaufpreis setzt sich wie folgt zusammen: Kaufpreis Erdgeschosswohnung 1.265.000 Euro + 37.500 Euro Tiefgarageneinzelstellplatz = 1.302.500 Euro Gesamtkaufpreis.

Ausstattungsmerkmale

Bad2
GartenJa
Fahrstuhl
KellerJa
Garage/Stellplätze1
-Exklusives Mehrfamilienhaus mit nur 6 Parteien
-Tiefgarageneinzelstellplatz
-Exklusive Badausstattung: Villeroy & Boch® + Gessi®
-Flexible Grundrissgestaltung mit bis zu zwei Bädern
-Smarthome / KNX
-Videosprechanlage
-Fußbodenheizung
-Holz-Alu-Fenster mir Dreifach-Isolierverglasung
-Elektrische Rollläden / Raffstore
-Vollspanntüren
-Echtholzparkett
-Massivbauweise; Außenwand – Mauerwerk Unipor Coriso®

Energie

Heizungsart Zentralheizung

Karte wird geladen...
81545 München

Lage & Infrastruktur

Harlaching gehört zweifellos zu den begehrtesten Stadtteilen der Isarmetropole, geprägt von gepflegten Straßen, altem Baumbestand und einer gewachsenen Nachbarschaft. Sämtliche Einkaufsmöglichkeiten des täglichen Bedarfs, Apotheken, Ärzte, Bäckereien sowie kleinere Fachgeschäfte sind fußläufig erreichbar. Auch eine Auswahl an charmanten Cafés und Restaurants, von bayerisch bis international, sorgt für kulinarische Abwechslung in direkter Umgebung.

In der familienfreundlichen Gegend befinden sich mehrere Kindergärten, zwei Gymnasien und eine Grundschule. Auch internationale Bildungseinrichtungen sind gut erreichbar.

Die Anbindung an den öffentlichen Nahverkehr ist optimal: In ca. 2 Gehminuten erreichen Sie die Trambahnlinie 25 an der Haltestelle "Authariplatz" ", die eine direkte Verbindung zum Max-Weber-Platz oder nach Grünwald bietet. Mit dem Bus 139 (ca. 1 Gehminuten zur Haltestelle Autharistraße) gelangen Sie in wenigen Minuten zur U-Bahnlinie U1 am Mangfallplatz und von dort aus direkt in die Innenstadt. Dank des nahen Autobahnzubringers A995 sind auch weiter entfernte Ziele wie die Alpen, der Starnberger See oder der Chiemsee in unter einer Stunde erreichbar. Unmittelbar vor der Haustür beginnen einige der schönsten Naherholungsgebiete Münchens: Der weitläufige Perlacher Forst lädt zu langen Spaziergängen oder Fahrradtouren ein, während der nahegelegene Flaucher an heißen Sommertagen eine idyllische Kulisse zum Entspannen in den Isarauen bietet.

Insgesamt bietet diese Lage alles, was man sich wünschen kann: eine ruhige, naturnahe Umgebung, eine exzellente Verkehrsanbindung und eine schnelle Erreichbarkeit der Autobahn – ideal für eine hohe Lebensqualität in einer der begehrtesten Lagen Münchens.

Sonstige Informationen

Baujahr: 2027
Heizungsart: Zentralheizung
Ansprechpartner/in: Herr Mario Mikic
Aigner Immobilien GmbH
Ruffinistr. 26, 80637 München

Weitere Angebote in München