AIGNER - Exklusives Einfamilienhaus mit traumhaftem Südgarten und Pool

82194 Gröbenzell
Frei ab: nach Vereinbarung
0 € Kaufpreis
Wohnfläche
202 m²
Zimmer
5,5
Einbauküche
Keller
Stellplatz

Kaufpreis

Kaufpreis 0 €
Maklerprovision3,57 %

Wohnfläche, Grundstück & Bausubstanz

Wohnfläche202 m²
Nutzfläche100 m²
Grundstücksfläche738 m²
Zimmer5,5
Baujahr1980
Verfügbar ab nach Vereinbarung
ZustandGepflegt

Beschreibung der Immobilie

Dieses exklusive Einfamilienhaus wurde im Jahr 1980 auf einem ca. 738 m² großen Grundstück errichtet und im Jahr 2007 umfassend modernisiert sowie erweitert.
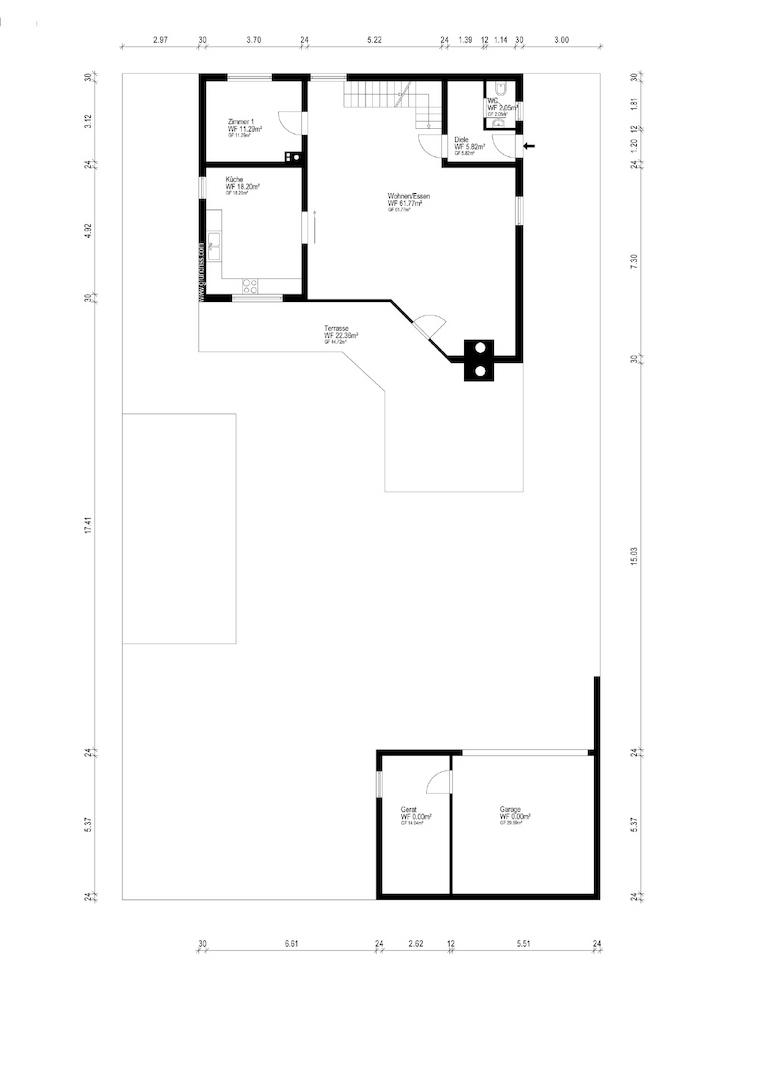
Beim Betreten des Hauses empfängt Sie ein großzügiger Eingangsbereich mit Garderobe. Von hier aus gelangen Sie, vorbei am Gäste-WC, direkt in das Herzstück des Hauses: das ca. 56 m² große Wohn- und Esszimmer, welches durch seinen durchdachten Schnitt überzeugt. Bodentiefe Fenster durchfluten den Wohnbereich mit Tageslicht und schaffen in Kombination mit dem hochwertigen Parkettboden eine warme und behagliche Atmosphäre. Ein besonderes Highlight ist der direkte Zugang in den liebevoll gestalteten Garten mit Terrasse, Kamin und Outdoorpool, der zum Entspannen und Verweilen einlädt.
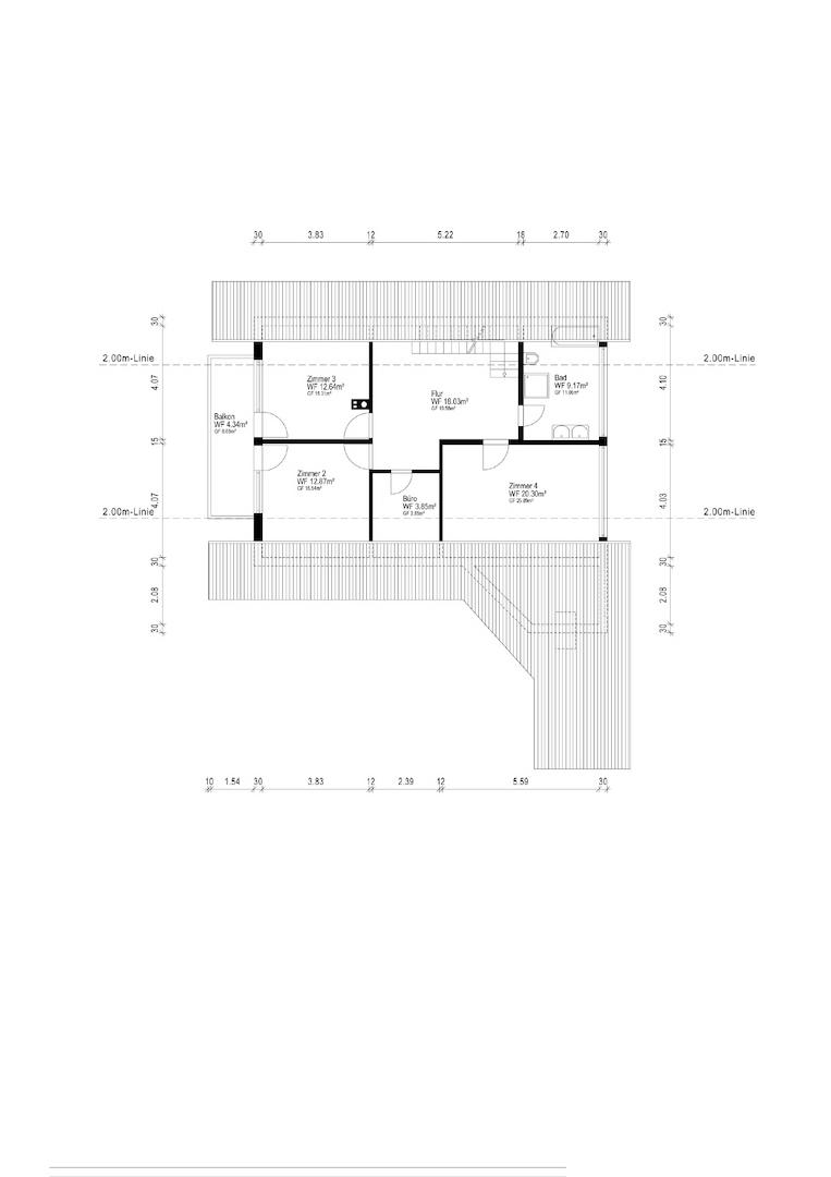
Die Küche ist stilvoll durch eine Glasschiebetür abgetrennt, modern verfliest und fügt sich mit ihrer weißen Gestaltung und der dunklen Arbeitsplatte harmonisch in den hellen Raum ein. Eine integrierte Bartheke rundet den Küchenbereich perfekt ab und schafft einen zusätzlichen kommunikativen Treffpunkt. Ergänzt wird das Erdgeschoss durch ein weiteres Zimmer, das flexibel als Büro, Gäste- oder Hobbyraum genutzt werden kann. Über eine klassische Holztreppe gelangen Sie in das Dachgeschoss, das drei Schlafzimmer sowie ein zusätzliches Arbeitszimmer bietet. Das stilvolle Tageslichtbad überzeugt mit großformatigen, eleganten Fliesen, einer Dusche, einer Badewanne sowie einem Doppelwaschbecken.
Das Untergeschoss rundet dieses attraktive Angebot mit weiteren Highlights ab. Neben einem Weinkeller und einem zusätzlichen Gästezimmer erwartet Sie hier ein exklusiver Spabereich mit Sauna Dusche und WC.

Ausstattungsmerkmale

KücheEinbauküche
Bad2
KellerJa
Garage/Stellplätze1
•Großzügiger Wohn- und Essbereich
•Bodentiefe Fenster
•Hochwertiger Parkettboden
•Tageslichtbadezimmer mit Badewanne und Dusche
•Spabereich im UG mit Sauna und Badezimmer
•Outdoorpool
•Großzügige Terrasse mit Kamin
•Weinkeller
•Massives Gartenhaus
•Pergola
•Solarthermieanlage auf dem Dach
•Doppelgarage & Außenstellplätze

Energie

Heizungsart Zentralheizung
Energieträger/Befeuerung Öl

Karte wird geladen...
82194 Gröbenzell

Lage & Infrastruktur

Gröbenzell, erstmals im 19. Jahrhundert als Siedlung entlang der Bahnlinie entstanden, entwickelte sich rasch zu einem beliebten Wohnort im Münchner Umland. Besonders nach dem Zweiten Weltkrieg wuchs die Gemeinde stark und etablierte sich als ruhige, familienfreundliche Vorstadt mit hohem Wohnwert.

Die Gemeinde bietet eine sehr gute Nahversorgung mit zahlreichen Supermärkten, Bäckereien und Fachgeschäften. Ergänzt wird dies durch eine vielfältige Auswahl an Restaurants und Cafés, die sowohl regionale als auch internationale Küche anbieten. Für Familien stehen mehrere Kindergärten sowie Grund- und weiterführende Schulen zur Verfügung, was den Standort besonders attraktiv macht.

Die Anbindung an den öffentlichen Nahverkehr ist hervorragend: Über die S-Bahn-Linie S3 besteht eine direkte Verbindung in die Münchner Innenstadt, ergänzt durch mehrere Buslinien, die das Gemeindegebiet und die umliegenden Orte erschließen.

Auch die Verkehrsanbindung mit dem Auto ist optimal: Die nahegelegenen Autobahnen A8 und A99 ermöglichen eine schnelle Erreichbarkeit der Münchner Innenstadt sowie der umliegenden Regionen und des Flughafens.

Sonstige Informationen

Heizungsart: Zentralheizung
Befeuerung/Energieträger: Öl
Baujahr: 1980
Energieausweistyp: Bedarfsausweis
Energiekennwert: 133,31 kWh/(m²*a)
Energieeffizienzklasse: E
Ansprechpartner/in: Frau Roya Mohadjer
Aigner Immobilien GmbH
Ruffinistr. 26, 80637 München

Weitere Angebote in Gröbenzell