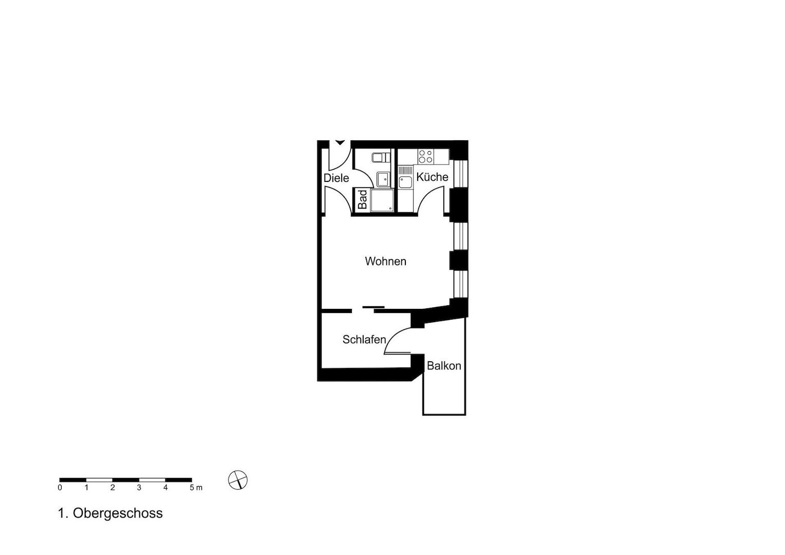
Kompakte Wohnung in Berlin-Mitte mit Balkon

Zionskirchstraße 51 10119 Berlin, Berlin
Frei ab: sofort
295.000 € Kaufpreis
Wohnfläche
39,05 m²
Zimmer
1,5
Etage
1
Balkon
Keller

Kaufpreis

Kaufpreis 295.000 €
Kaufpreis pro m²7564 €
Hausgeld190,35 €
Maklerprovision3,57% inkl. gesetzl. MwSt.

Wohnfläche, Grundstück & Bausubstanz

Wohnfläche39,05 m²
Zimmer1,5
Stockwerk1
Baujahr1900
Verfügbar ab sofort
ZustandGepflegt

Beschreibung der Immobilie

Diese 1,5-Zimmer-Wohnung befindet sich im ersten Obergeschoss des Seitenflügels eines gepflegten Altbaus aus dem Jahr 1900. Auf rund 39 m² Wohnfläche bietet sie eine durchdachte Raumaufteilung und einen angenehmen Rückzugsort in zentraler Lage.
Der Wohnbereich ist mit Parkettboden ausgestattet und verbindet Wohnen und Schlafen auf stimmige Weise. Die vorhandene Einbauküche ist funktional in die Wohnung integriert. Der Zugang zum Balkon erfolgt über den Schlafbereich und erweitert die Wohnung um eine zusätzliche Außenfläche. Das Badezimmer ist kompakt geschnitten und mit einer Dusche ausgestattet. Die Wohnung wird teilweise möbliert angeboten und ist derzeit nicht vermietet. Sie eignet sich sowohl zur Eigennutzung als auch als Kapitalanlage. Die Beheizung erfolgt über eine Gaszentralheizung. Das Gemeinschaftseigentum befindet sich in einem gepflegten Zustand.

Ausstattungsmerkmale

Balkone1
KellerJa

Energie

E
Energieeffizienzklasse E · 146.8 kWh/(m²*a)
EnergieausweistypBedarfsausweis
Ausstellungsdatum24. 04. 2025
Gültig bis23.04.2035
EnergieeffizienzklasseE
Endenergiebedarf146.8
Heizungsart Zentralheizung
Wesentlicher EnergieträgerGas
Energieträger/Befeuerung Gas

Karte wird geladen...
Zionskirchstraße 51
10119 Berlin – Berlin

Lage & Infrastruktur

Die Zionskirchstraße befindet sich im Berliner Bezirk Prenzlauer Berg, unweit der Grenze zu Berlin-Mitte. Das Wohnumfeld ist geprägt von gepflegten Altbauten, modernen Wohnhäusern und begrünten Innenhöfen. In der direkten Umgebung stehen zahlreiche Einkaufsmöglichkeiten für den täglichen Bedarf, Bäckereien, Cafés und Restaurants zur Verfügung. Besonders entlang der Kastanienallee, der Schönhauser Allee sowie rund um den Rosenthaler Platz findet sich ein vielfältiges gastronomisches Angebot. Der Zionskirchplatz liegt nur wenige Schritte entfernt und bietet eine ruhige Grünanlage mit Aufenthaltsqualität. Der Mauerpark ist ebenfalls gut zu Fuß erreichbar und ergänzt das Angebot an Erholungs- und Freizeitmöglichkeiten. Kindertagesstätten, Schulen sowie medizinische Einrichtungen sind in der Umgebung vorhanden und gut erreichbar. Die Anbindung an den öffentlichen Nahverkehr ist sehr gut. Mehrere Tram- und Buslinien verkehren in fußläufiger Entfernung. Der U-Bahnhof Rosenthaler Platz (U8) sowie der U-Bahnhof Eberswalder Straße (U2) sind ebenfalls schnell erreichbar. Die Lage bietet eine zentrale Wohnadresse mit sehr guter Infrastruktur und kurzen Wegen im Alltag.
Ansprechpartner/in: Dino Peters
David Borck Immobiliengesellschaft mbH
Schlüterstr. 45, 10707 Berlin

Weitere Angebote in Berlin