Moderne 5-Zimmer-Maisonette mit Galerie & 2 Stellplätzen in Mehring

84561 Mehring, Bayern
Frei ab: sofort
375.000 € Kaufpreis
Wohnfläche
120 m²
Zimmer
5
Etage
1
Einbauküche
Balkon
Terrasse
Keller
Stellplatz

Kaufpreis

Kaufpreis 375.000 €
Hausgeld350 €
Maklerprovisionkeine Provision, courtagefrei
Stellplatz Freiplatz Kaufpreis15.000 €
Stellplatz Garage Kaufpreis15.000 €

Wohnfläche, Grundstück & Bausubstanz

Wohnfläche120 m²
Zimmer5
Etagen2
Stockwerk1
Baujahr2014
Verfügbar ab sofort
ZustandNeuwertig

Beschreibung der Immobilie

Provisionsfrei: Moderne 5-Zimmer-Maisonette mit Galerie & Garage in Mehring

Objektbeschreibung

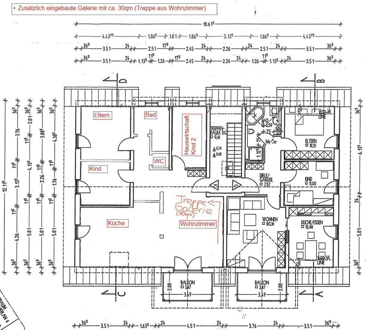
Zum Verkauf steht von privat eine großzügige und lichtdurchflutete Maisonette-Wohnung in einem sehr gepflegten 4-Parteien-Haus (Baujahr 2014) in ruhiger Lage von Mehring-Öd.
Auf ca. 125 m² Wohnfläche bietet diese Immobilie durch ihre intelligente Aufteilung über zwei Etagen inklusive offener Galerie ein Wohngefühl wie im eigenen Haus.

Ausstattung & Highlights
• Großzügiges Raumkonzept: 5 Zimmer, die flexibel als Schlaf-, Kinder- oder Home-Office-Bereiche genutzt werden können.
• Licht und Luft: Die offene Galerie sorgt für ein modernes, freies Wohnambiente.
• Nachhaltige Technik: Energieeffiziente Bauweise (Massivbau Schlagmann Poroton)
• Küche: Eine sehr hochwertige Einbauküche (NP ca. 30.000 €) mit Liebherr Kühl/Gefrierkombination und Keramik-Arbeitsplatte ist verbaut.

Bad: auf eine Badewanne wurde bewusst verzichtet und stattdessen eine große bodeneben geflieste Walk-In-Regendusche eingebaut.
Neben dem Hauptbad mit Dusche, WC und Waschtisch gibt es ein separates Gäste-WC.

• Parksituation: Zur Wohnung gehört eine Einzelgarage, vor der sich zusätzlich zwei eigene Außenstellplätze befinden.
• Keller: Ein eigenes, abgetrenntes Kellerabteil bietet zusätzlichen Stauraum und verfügt über praktische Anschlüsse für Waschmaschine und Trockner.

Lage
Die Wohnung liegt im idyllischen Mehring-Öd. Die Nähe zu Burghausen (ca. 5-10 Minuten) macht die Lage besonders für Mitarbeiter der dort ansässigen Industrieunternehmen sowie für Familien, die eine ruhige Umgebung bei gleichzeitig bester Anbindung suchen, äußerst attraktiv.

Finanzielle Eckdaten
• Kaufpreis Wohnung: 375.000 €
• Einzelgarage inkl. 2 Stellplätze (zusammen) für: 15.000 €
• Einbauküche (optional): 10.000 €
• Hausgeld: ca. 350 €/Monat (inkl. Heizkosten, Warm & Kalt-wasser, Hausverwaltung, Müllgebühren und Instandhaltungsrücklage laut Wirtschaftsplan 25/26).

Der Verkauf erfolgt von privat – es fällt keine Maklerprovision an!

Sonstiges:
Die Wohnung ist sofort bezugsfertig. Eine Besichtigung ist nach Rücksprach möglich.

Ausstattungsmerkmale

KücheEinbauküche
Bad2
Bad (Ausstattung)Dusche
BodenFliesen, Parkett
Balkone1
Terrassen0
KellerJa
Garage/Stellplätze1
Balkon, Keller, Duschbad, Einbauküche, Gäste-WC, Parkett, Fliesen

Bemerkungen:
siehe Fotos

Energie

Heizungsart Fußbodenheizung
Energieträger/Befeuerung Gas

Karte wird geladen...
84561 Mehring – Bayern

Sonstige Informationen

Heizungsart: Fußbodenheizung
Energieträger: Gas
Energieausweis nicht vorhanden


Makleranfragen nicht erwünscht. Nach § 7 UWG sind unaufgeforderte Kontaktaufnahmen durch Makler ohne ausdrückliche Einwilligung des Empfängers verboten!

ohne-makler (OM) ist weder Anbieter noch Vermittler der Immobilie. OM betreibt eine Plattform für Immobilieneigentümer, die unter anderem die gleichzeitige Veröffentlichung einzelner Inserate auf mehreren Immobilienportalen ermöglicht. Die Inhalte dieser Inserate werden ausschließlich von Dritten verantwortet. Für die Richtigkeit, Vollständigkeit oder Rechtmäßigkeit der Angaben übernimmt OM keine Haftung. Hinweise auf mögliche Rechtsverstöße können jederzeit gemeldet werden und werden nach Prüfung umgehend bearbeitet.
Ansprechpartner/in: Privat von FM
OM PropTech GmbH
Humboldtstraße 25a, 21509 Glinde

Weitere Angebote in Mehring