Neubauwohnung: 3/4-Zimmer-Familienwohnung nahe Maybachufer

12059 Berlin, Berlin
609.000 € Kaufpreis
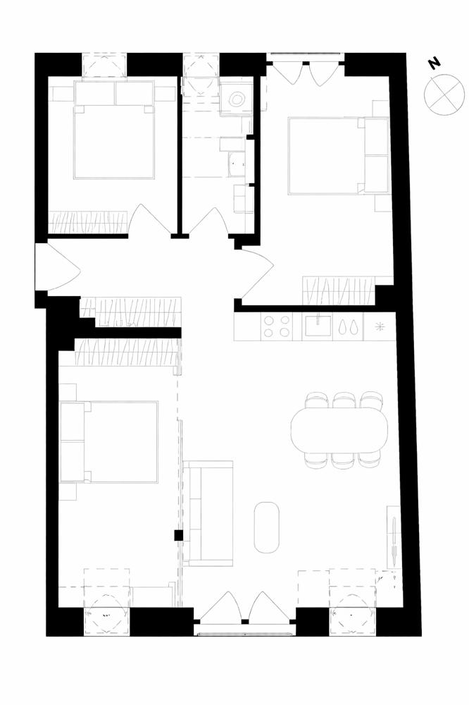
Wohnfläche
61,11 m²
Zimmer
4
Etage
5
Fahrstuhl

Kaufpreis

Kaufpreis 609.000 €
Kaufpreis pro m²9965,64 €
MaklerprovisionProvisionsfrei

Wohnfläche, Grundstück & Bausubstanz

Wohnfläche61,11 m²
Nutzfläche64,71 m²
Zimmer4
Stockwerk5
Baujahr2027
Verfügbar ab Keine Angabe
ZustandErstbezug

Beschreibung der Immobilie

Der Wohngarten entsteht in einem der vielversprechendsten Viertel Berlins. Direkt am Kanal am Kiehlufer und nur wenige Schritte vom Treptower Park entfernt vereint dieses Neubauprojekt nachhaltige Architektur, modernen Komfort und eine lebendige Kiezatmosphäre – ein Wohnumfeld, in dem Gemeinschaft, Natur und urbanes Leben harmonisch zusammenkommen.

Mit dem exklusiven Home Designer-Tool können Käufer jedes Detail individuell gestalten – von Bodenbelägen und Wandoberflächen bis hin zu Küchenfronten und Arbeitsplatten – und so ein hochwertiges, maßgeschneidertes Zuhause schaffen. Die Anlage umfasst 24 helle Wohnungen, von smarten Studios bis zu großzügigen Vierzimmerwohnungen. Jede Einheit bietet flexible Grundrisse, bodentiefe Fenster und private Außenbereiche wie Balkone oder Terrassen – mit grünen Ausblicken und reichlich Tageslicht.

Das Projekt überzeugt durch seine Holz-Hybrid-Bauweise, energieeffiziente Systeme wie Photovoltaikanlagen und Luftwärmepumpen sowie einen liebevoll gestalteten Gemeinschaftsgarten mit Pergola und Glaspavillon. Eine Tiefgarage bietet Stellplätze für Autos, Fahrräder und E-Mobilität.

In einer ruhigen Seitenstraße gelegen, bietet der Wohngarten einen entspannten Rückzugsort, während er von einer lebendigen urbanen Umgebung umgeben ist. Das Viertel kombiniert den Charme eines traditionellen Berliner Kiezes mit der Dynamik eines wachsenden Start-up-Hubs. Trendige Cafés, Restaurants, Bioläden, Schulen und kulturelle Einrichtungen sind bequem zu Fuß erreichbar, und die Anbindung an den öffentlichen Nahverkehr (S-Bahn, U-Bahn, Bus) ermöglicht schnelle Wege ins Stadtzentrum.

Ob als stilvolles Zuhause oder als sichere Kapitalanlage – der Wohngarten bietet eine seltene Gelegenheit, in eines der attraktivsten Wohnprojekte Berlins zu investieren.

Unser Team von First Citiz Berlin steht Ihnen gerne für weitere Informationen oder zur Vereinbarung eines kostenlosen Beratungstermins zur Verfügung.

Ausstattungsmerkmale

Fahrstuhl
✅ Keine Käuferprovision
✅ KfW-40-freundlich
✅ Top-Lage direkt am Maybachufer, Dreiländereck & Alt-Treptow
✅ Südwest-ausgerichtete Balkone mit bodentiefen Fenstern
✅ Gesundes & energieeffizientes Wohnkonzept dank moderner Holz-Hybrid-Bauweise
✅ Hochwertige Individualisierungsmöglichkeiten & flexible Grundrisse für ein Zuhause nach Ihren Wünschen
✅ Architektur von hoher Qualität mit zeitloser Fassadengestaltung und bodentiefen Fenstern
✅ Alle Einheiten mit Balkon oder Terrasse und grünen Ausblicken
✅ Ruhige Wohnlage mit lebendiger Nachbarschaft, Cafés, Schulen & Kultur in fußläufiger Entfernung
✅ Exzellente Verkehrsanbindung: S-Bahn, U-Bahn & Busse in wenigen Minuten erreichbar
✅ Tiefgarage für Autos, Fahrräder & E-Mobilität (optional erwerbbar)

Energie

A+
Energieeffizienzklasse A+ · 15.00 kWh/(m²*a)
EnergieausweistypBedarfsausweis
Gültig bis2034-11-27
Baujahr (laut Energieausweis)2025
EnergieeffizienzklasseA+
Endenergiebedarf15.00
Heizungsart Fußbodenheizung
Wesentlicher EnergieträgerElectricity

Karte wird geladen...
12059 Berlin – Berlin

Lage & Infrastruktur

Neukölln ist ein sehr bunter Bezirk, in dem Multi-Kulti und ein künstlerischer Lebensstil gepflegt werden. Typisch für den Bezirk ist die Karl-Marx-Straße, die vor allem von kleinen Einzelhandelsgeschäften geprägt ist. Seit einigen Jahren sind zudem die Neukölln-Arkaden mit diversen Einkaufsmöglichkeiten und einem Kino hier vertreten. In Neukölln herrscht eine sehr kreative Stimmung vor, weswegen sich hier verschiedene Start-Ups angesiedelt haben. Die Hasenheide ist ein großer Park, in dem verschiedene Tiere bewundert und Picknicks veranstaltet werden können und in dem regelmäßig ein Rummelplatz gastiert.

Sonstige Informationen

Alle Angaben zu dieser Immobilie und diesem Immobilienprojekt beruhen auf Angaben der Verkäufer und / oder ihrer Vertreter. Wir übernehmen keine Haftung für die Richtigkeit oder Vollständigkeit. Irrtum und Zwischenverkauf sind zu erwarten. Alle Visualisierungen sind unverbindlich. Dieses Angebot ist vertraulich und ausschließlich für den Empfänger bestimmt. Jede Weitergabe muss von der First Citiz GmbH genehmigt werden. Dieses Angebot umfasst alle Einheiten desselben Immobilienprojekts, für die die First Citiz GmbH alle relevanten Informationen zur Verfügung stellt, einschließlich Preislisten, Grundrisse und Liste der zum Verkauf stehenden Einheiten. Der Empfänger dieses Angebots ist verpflichtet, die First Citiz GmbH über den Abschluss eines Kaufvertrags für diese Immobilie oder eine andere Immobilie im selben Immobilienprojekt zu informieren.
Ansprechpartner/in: First Citiz Berlin Team
First Citiz GmbH
Pappelallee 11, 10437 Berlin

Weitere Angebote in Berlin