Mehrgenerationenhaus jetzt noch als Aktionsangebot bei STREIF Haus

02977 Hoyerswerda
Frei ab: 2027
465.800 € Kaufpreis
Wohnfläche
167 m²
Zimmer
4
Offene Küche

Kaufpreis

Kaufpreis 465.800 €

Wohnfläche, Grundstück & Bausubstanz

Wohnfläche167 m²
Nutzfläche167 m²
Grundstücksfläche998 m²
Zimmer4
Etagen2
Baujahr2027
Verfügbar ab 2027

Beschreibung der Immobilie

Das klassisch geplante Einfamilienhaus mit Satteldach bietet zwei Hauseingänge, einmal an
der Frontseite und einmal seitlich. Der Haustechnikraum kann bei diesem Entwurf von außen
von beiden Wohnparteien betreten werden. Die Einliegerwohnung könnte für eine
Vermietung, ein Familienmitglied oder auch für eine Selbstständigkeit genutzt werden. Der
Wohn-/Ess-/Kochbereich der "Hauptwohnung" ist sehr praktikabel und lichterfüllt angelegt.
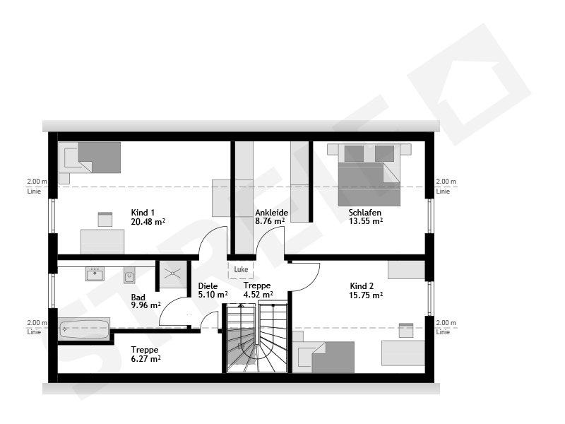
Unterm Dach befinden sich ein schöner Elternschlafbereich, zwei große Kinderzimmer sowie
ein Familienbad und ein Abstellraum. Insgesamt bietet das Haus eine Netto-Raumfläche von
167,66 m².

Objektart: Einfamilienhaus mit Einliegerwohnung, Variante B
Dachform: Satteldach, Kniestock 1 m
Hausmaße: 12,455 m x 8,08 m
Netto-Raumfläche: 167,66 m²

Ausstattungsmerkmale

KücheOffene Küche
Bad1
Bad (Ausstattung)Dusche, Wanne, Fenster
Das Streif City Haus wird im Standard KFW 40 PLUS ausgeführt. Grundstück inkl. Innenausstattung aus dem STREIF-Programm in der Ausbaustufe FF+ inklusive Fundamentplatte.

■ Rohbau (geschlossene Gebäudehülle) mit Fenstern, Haustür1 inkl. Dacheindeckung
■ Außenfassade inkl. Außenputz, vor Ort komplett fertiggestellt
■ Komplette Blechner-/Spenglerarbeiten
■ lnnen-/Außenwände wärme- und schallgedämmt und mit Gipsfaserplatten geschlossen
■ Geschosstreppe (außer Bungalow)
■ Decken wärme- und schallgedämmt und mit Gipskartonbau platten geschlossen
■ Elektroinstallation, einschließlich erforderlichem Zählerschrank und Inbetriebnahme
■ Heizungsanlage inkl. Inbetriebnahme
■ Innenfensterbänke Kunststeinbänke (Gussmarmorbänke) inkl. Einbau
■ Estrich
■ Sanitärräume mit Wand- und Bodenfliesen
■ Sanitärräume mit Sanitärobjekten
■ 6,23 kWP Photovoltaikanlage und 7,7 kWh Speicher

Die Innentüren sowie Wand-, Decken- und Bodenbeläge der übrigen Räume sind Eigenleistungen des Bauherren.

STREIF Frischluft-Wärmepumpen-Technologie - inklusive
- Heizen mit frischer Außenluft
- Kein Gasanschluss, kein Öl- oder Pelletlagerraum
- Keine Heizkörper
- Wärmetauscher mit bis zu 85% Wärmerückgewinnung

Die dargestellten Bilder können Sonderausstattungen beinhalten, die nicht im Preis enthalten sind!

zzgl. Ortüblicher Baunebenkosten

Selbstverständlich können wir Ihr Haus auch schlüsselfertig / bezugsfertig errichten.
■ Bodenbeläge, Sockel leisten verlegt
■ Maler- und Tapezierarbeiten
■ Innentüren inkl. Einbau

Energie

Energietyp KfW-40
Energieträger/Befeuerung Luft-Wärme-Pumpe

Karte wird geladen...
02977 Hoyerswerda

Lage & Infrastruktur

Hoyerswerda ist eine Stadt im Bundesland Sachsen, gelegen im Landkreis Bautzen. Sie befindet sich etwa 40 Kilometer nordöstlich von Dresden und ist gut erreichbar über die Autobahn A13 sowie die Bundesstraßen B97 und B96. Die Stadt liegt in einer reizvollen Umgebung, die von einer Mischung aus urbanen und ländlichen Landschaften geprägt ist.

Hoyerswerda ist von einer Vielzahl von Seen und Naturschutzgebieten umgeben, die zahlreiche Freizeitmöglichkeiten bieten, darunter Wandern, Radfahren und Wassersport. Die Stadt selbst hat eine interessante Geschichte, die sich in ihrer Architektur und den verschiedenen Stadtteilen widerspiegelt.

In Hoyerswerda finden sich zahlreiche Einkaufsmöglichkeiten, Schulen, medizinische Einrichtungen und kulturelle Angebote, die den Bedürfnissen der Einwohner gerecht werden. Die Stadt hat eine gute Anbindung an den öffentlichen Nahverkehr, was Pendlern und Besuchern zugutekommt.

Insgesamt bietet Hoyerswerda eine attraktive Lebensqualität mit einer harmonischen Verbindung von Natur und urbanem Leben, ideal für Familien, Senioren und Naturliebhaber.

Sonstige Informationen

Sie brauchen einen kompetenten und verlässlichen Baupartner? Wir stehen Ihnen von Anfang an zur Seite und begleiten Sie auf dem Weg in Ihr Eigenheim.

Mit großem Engagement, Persönlichkeit und der Fachfirma STREIF mit immensen Bau-Know-how, die seit 1929 auf über 90.000 realisierte Wohnträume zurückblicken kann.

Jedes Haus von STREIF wird individuell als Energiesparhaus geplant und gebaut. Eine nachhaltige, ökologische und wohngesunde Bauweise, eine zertifizierte Ausführungsqualität und eine kurze Bauzeit, dafür stehen wir.

Gerne beraten wir Sie nach Vereinbarung im Musterhaus Dresden Schönefeld oder ganz unkompliziert bei Ihnen zu Hause und erstellen Ihnen ein Angebot mit einer realistisch ermittelten Aufstellung der Gesamt-Investition.

Wir freuen uns auf Ihren Anruf / Nachricht!

Ihr STREIF Fachberater
Frank Strobel

E-Mail: frank.strobel@streif.de

Mobil: 0172 - 9374300





Hinweis:

Vorverkauf und Irrtümer vorbehalten. Bilder können Sonderbauteile darstellen, die im Preis nicht enthalten sind und abweichend von textlichen Inhalten sein.

zzgl. Baunebenkosten.

Der Grundstückserwerb stellt keine STREIF Leistung dar.

Hinweis zu den gesetzlichen Pflichtangaben gemäß der EnEV 2016: Bei dem hier angebotenen Haus handelt es sich um ein Neubauprojekt.

Wir weisen darauf hin, dass zu diesem projektierten Haus noch kein Energieausweis vorliegt. Der Energieausweis wird Ihnen spätestens im Rahmen der Erstellung des Objektes ausgehändigt
Ansprechpartner/in: Herr Frank Strobel
STREIF Haus GmbH
Josef-Streif-Straße 1, 54595 Weinsheim

Weitere Angebote in Hoyerswerda