Generationshaus mit PV-Anlage

85051 Karlskron
990.000 € Kaufpreis
Wohnfläche
143 m²
Zimmer
5

Kaufpreis

Kaufpreis 990.000 €

Wohnfläche, Grundstück & Bausubstanz

Wohnfläche143 m²
Grundstücksfläche928 m²
Zimmer5
Verfügbar ab Keine Angabe

Beschreibung der Immobilie

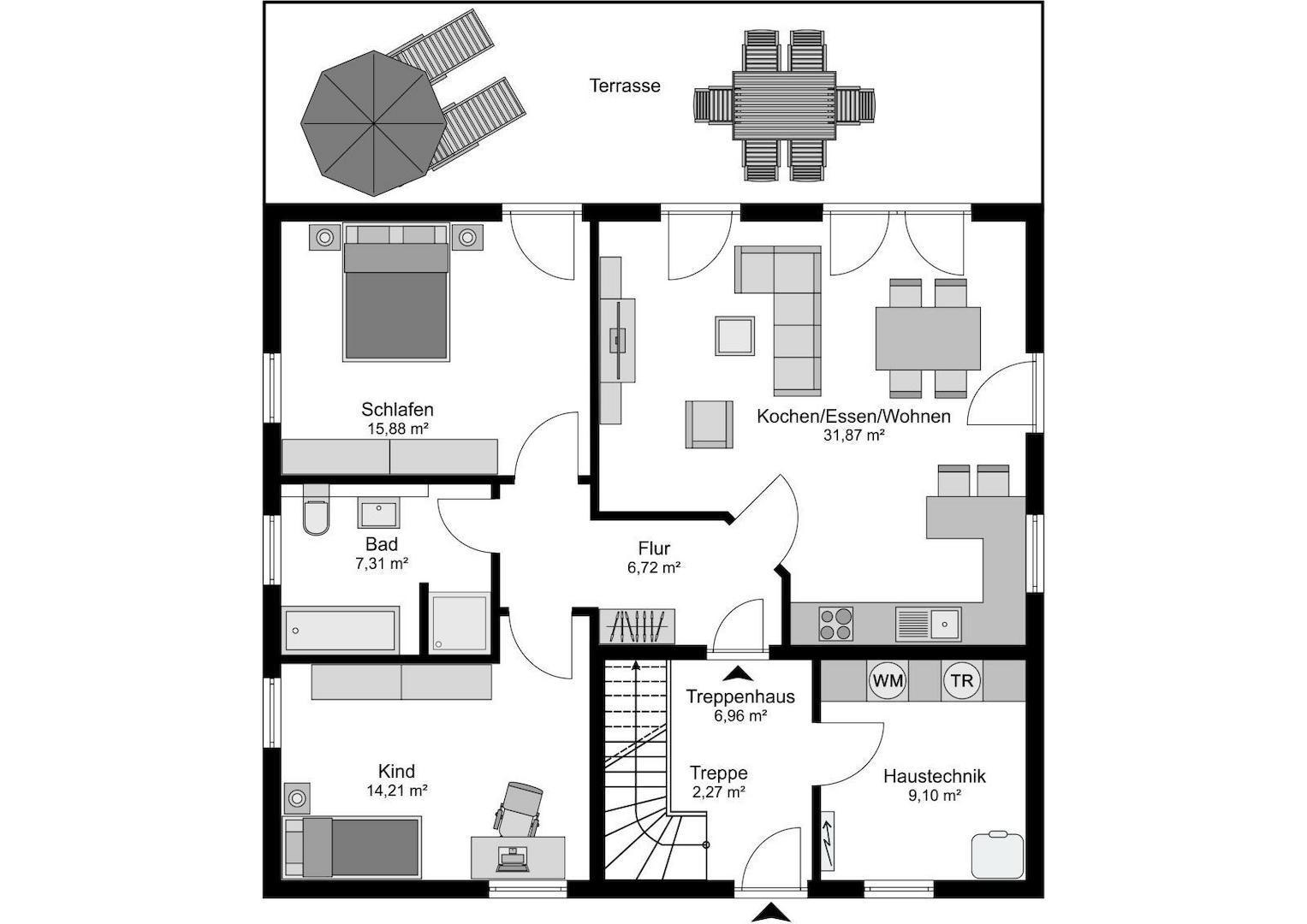
Das zweigeschossige Mehrfamilienhaus mit vier Wohnungen überzeugt mit einer klassisch eleganten Architektur mit Walmdach und Gebäudeversätzen, die behagliche Terrassen übereck als Rückzugsmöglichkeit bieten. Der Hausentwurf kann mit Stahlbalkonen an der Gartenseite, die ebenfalls übereck geplant werden können, aufgewertet werden.

Die Grundrissgestaltung bietet im Entwurf vier verschiedene Varianten an Wohnungszuschnitten. Die Wohnungen im Erdgeschoss können je nach Anforderung und Bauvorschriften barrierearm oder barrierefrei geplant werden. Die Grundrisse sind für Singles, Paare oder eine Kleinfamilie konzipiert. Die Wohn-/Ess- und Kochbereiche sind in einer offenen Raumplanung angelegt. Je nach Wohneinheit/-größe kann ein Zusatzzimmer, das als Kinder-/Arbeits- oder Hobbyraum nutzbar ist, eingeplant werden. Die Haustechnik und ein Hauswirtschaftsraum befinden sich im Erdgeschoss. Im Obergeschoss sind zwei Abstellräume eingeplant.

Auf Wunsch ist ein Aufzug, Balkone oder ein zusätzliches Kellergeschoss planbar.

Ausstattungsmerkmale

STREIF-Energiespar-Häuser sind für die Effizienzhaus-Klasse 40* vorbereitet. (*In Abhängigkeit von Gebäudestandort, Gebäudeausrichtung, Fensterflächenanteile, Haustechnik usw. können zusätzliche oder abweichende Leistungen erforderlich werden, die im Zuge der Bauantragsbewertung/-erstellung bewertet werden.)

Gegen Aufpreis erstellen wir eine Ökobilanzierung für Ihr Haus oder führen eine vollständige Nachhaltigkeitszertifizierung nach QNG durch. Für das Erreichen der Vorgaben des Qualitätssiegels Nachhaltiges Gebäude (QNG) für eine Ökobilanzierung oder eine Nachhaltigkeitszertifizierung wird zusätzlich eine Photovoltaik-Anlage mit Batteriespeicher benötigt. Mit dem Erfüllen dieser und weiterer Anforderungen wird Ihr Haus nach den neuen KfW-Förderrichtlinien für den Klimafreundlichen Neubau (KFN) förderfähig.

Die Außenwände im Passiv-Haus-Standard und eine sparsame Heiztechnik mit integrierter Wohnraumlüftung und Wärmerückgewinnung, garantieren einen geringen Energieverbrauch und ein fantastisches Raumklima, das insbesondere Allergiker aufatmen lässt.

STREIF Leistungen sind MEHR WERT - schon im Grundpreis enthalten!
- 16-monatige Festpreisgarantie
- Inkl. individuelle Grundrissgestaltung und Raumaufteilung
- Inkl. Fundamentplatte, gegen Aufpreis auch mit Thermofundamentplatte
- Inkl. effizientem Luft-Wasser-Wärmepumpensystem (als Außeneinheit) mit Fußbodenheizung
- Inkl. Haustür von KERA und Fenster von Porta/Kömmerling
- Inkl. Sanitärobjekte von Markenherstellern
- Inkl. Lüftungsgerät je Wohneinheit
- Inkl. Metallinnentreppe mit geklebtem Vinylboden auf den Stufen
- Inkl. Elektroinstallation u.v.m.

Die hohe Wertigkeit und Langlebigkeit eines STREIF-Energiespar-Hauses wird durch zahlreiche Auszeichnungen, Qualitäts- und Gütesiegel unabhängiger Institute und Verbände dokumentiert.

Der Angebotspreis ist inklusive Grundstück und bezieht sich auf die Ausbaustufe fast fertig plus. Ihre Eigenleistungen: Spachtel-, Tapezier- und Malerarbeiten, Bodenbeläge, Innentüren.
(Gegen Aufpreis kann auch die Ausbaustufe schlüsselfertig angeboten werden.)
Baunebenkosten fallen zuzüglich an.

Der Verkauf des Grundstücks erfolgt über einen unserer Netzwerkpartner.

Bilder können evtl. Anbauteile, Carports, Balkone, Gauben usw. zeigen, die nicht im Angebotspreis enthalten sind. Änderungen und Irrtümer vorbehalten.

Karte wird geladen...
85051 Karlskron

Lage & Infrastruktur

Die Ortschaft Karlskron liegt grundsätzlich erst einmal ruhig und ländlich gelegen. Wer hier wohnt, genießt die Ruhe des Landes und nutzt aber gleichzeitig die Nähe zur Stadt. Das stetige und beständige Wachstum der Ortschaft, sowohl wirtschaftlich als auch in der Anzahl der Einwohner, der letzten Jahre hat seine guten Gründe:

Zum einen gibt es innerorts alle Geschäfte des täglichen Bedarfs wie:

- Bäcker mit Frischwursttheke, NETTO Supermarkt vollsortiert, eine Zahnärztin, ein Ärztehaus (in Planung), Physiotherapie, Heilpraktiker, Gasthof mit 100jähriger Tradition, Boardinghaus und natürlich einen großen Sportverein mit ca. 30 verschiedenen Sportarten

Andererseits wird nachhaltig für den Nachwuchs gesorgt:

- neuer Kindergarten, neue Kita´s, moderne Grundschule, weiterführende Schule

Infrastrukturell ist Karlskron fast ein Knotenpunkt!

Innerhalb von 5 Kilometern finden Sie Anschluss:

- mit dem Auto auf die B13, B16, B300, A9 München-Nürnberg, Großstadt Ingolstadt

- mit dem Zug (Bahnhof ca. 5 Minuten entfernt) nach München, Nürnberg oder Augsburg

- mit dem Bus nach Ingolstadt und weiter in den Norden von Ingolstadt

Die beiden größten Arbeitgeber der Region AUDI und AIRBUS sind ebenfalls mit allen öffentlichen oder dem Auto schnell und gut erreichbar...

Kurzum, kurze Wege zu allen wichtigen und neuralgischen Punkten.

Und zuletzt, wohnen im Einzugsgebiet von München zu Preisen wie auf dem Land!
Ansprechpartner/in: Herr Jakob Lutz
STREIF Haus GmbH
Josef-Streif-Straße 1, 54595 Weinsheim

Weitere Angebote in Ingolstadt