Aktionshaus-Alarm! Sichern Sie sich Ihr Traumhaus und sparen Sie

58791 Werdohl
390.550 € Kaufpreis
Wohnfläche
142,92 m²
Zimmer
4

Kaufpreis

Kaufpreis 390.550 €

Wohnfläche, Grundstück & Bausubstanz

Wohnfläche142,92 m²
Grundstücksfläche501 m²
Zimmer4
Etagen1
Verfügbar ab Keine Angabe

Beschreibung der Immobilie

Mehr Raum für Ihre Ideen - modernes Familyhaus mit flexibler Planung und zusätzlichem Gästezimmer
Willkommen in Ihrem neuen Zuhause, das Ihnen auf jeder Ebene mehr Möglichkeiten eröffnet!
Das Aktionshaus XL von STREIF begeistert auf großzügigen ca. 143 m² Netto-Raumfläche mit einem flexiblen Wohnkonzept, das sich perfekt an Ihre individuellen Bedürfnisse anpasst.
Ein besonderes Highlight: Sie wählen aus drei verschiedenen Treppenvarianten - gradläufig, viertelgewendelt oder doppelt gewendelt.
Jede Treppenart schafft ein eigenes Raumgefühl und ermöglicht ein individuelles Wohnkonzept, das genau zu Ihrem Lebensstil passt.
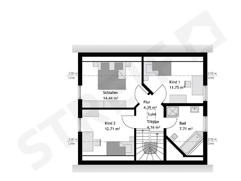
Im Erdgeschoss öffnet sich ein großzügiger, lichtdurchfluteter Wohn-/Ess- und Küchenbereich, der mit bodentiefen Fenstern zur Terrassenseite ein offenes, freundliches Ambiente schafft.
Ein Gäste-WC ist ebenfalls integriert.
Auf Wunsch können Sie im Erdgeschoss zusätzlich ein Gästezimmer oder ein komfortables Home-Office einplanen - perfekt für berufliche Flexibilität oder Besuch.
Im Obergeschoss bietet das Family XL weitere Anpassungsoptionen:
Je nach Wunsch gestalten Sie zwei oder drei Schlafzimmer, ergänzt um großzügige Zuschnitte für Ankleide, Büro oder individuelle Bedürfnisse.
Zur hochwertigen Ausstattung gehört eine energieeffiziente Haustechnik für nachhaltiges, modernes Wohnen.
Ihre Vorteile auf einen Blick:
Ca. 143 m² großzügige Netto-Raumfläche
Flexible Raumkonzepte durch Auswahl zwischen drei Treppenvarianten
Optional zusätzliches Gästezimmer oder Büro im Erdgeschoss möglich
Großer, lichtdurchfluteter Wohn-/Ess-/Küchenbereich
Bodentiefe Fenster zur Terrassenseite
Zwei oder drei Schlafzimmer im Obergeschoss möglich
Gäste-WC im Erdgeschoss
Energieeffiziente Haustechnik für nachhaltiges Bauen
Mehr Raum, mehr Möglichkeiten - gestalten Sie Ihr Zuhause individuell mit dem STREIF Aktionshaus XL.

Ausstattungsmerkmale

Bad1
Das Streif City Haus wird im Standard KFW 40 PLUS ausgeführt. KfW Effizienshaus inkl. Haustechnik aus dem STREIF-Programm in der Ausbaustufe FF+ inklusive einer gedämmten Fundamentplatte.

■ Rohbau (geschlossene Gebäudehülle) mit Fenstern, Haustür, Dacheindeckung
■ Außenfassade inkl. Außenputz, vor Ort komplett fertiggestellt
■ Komplette Blechner-/Spenglerarbeiten
■ lnnen-/Außenwände wärme- und schallgedämmt und mit Gipsfaserplatten geschlossen
■ Geschosstreppe (außer Bungalow)
■ Decken wärme- und schallgedämmt und mit Gipskarton Bauplatten geschlossen
■ Elektroinstallation, einschließlich erforderlichem Zählerschrank und Inbetriebnahme
■ Heizungsanlage inkl. Inbetriebnahme
■ Innenfensterbänke Kunststeinbänke (Gussmarmorbänke) inkl. Einbau
■ Estrich
■ Sanitärräume mit Wand- und Bodenfliesen
■ Sanitärräume mit Sanitärobjekten
■ 6,23 kWp Photovoltaikanlage und 7,7 kWh Speicher

Die Innentüren sowie Wand-, Decken- und Bodenbeläge der übrigen Räume sind Eigenleistungen des Bauherren.

STREIF Frischluft-Wärmepumpen-Technologie - inklusive
- Heizen mit frischer Außenluft
- Kein Gasanschluss, kein Öl- oder Pelletlagerraum
- Keine Heizkörper
- Wärmetauscher mit bis zu 85% Wärmerückgewinnung

Die dargestellten Bilder können Sonderausstattungen beinhalten, die nicht im Preis enthalten sind!

zzgl. Ortüblicher Baunebenkosten

Selbstverständlich können wir Ihr Haus auch schlüsselfertig / bezugsfertig errichten.
■ Bodenbeläge, Sockelleisten verlegt
■ Maler- und Tapezierarbeiten
■ Innentüren inkl. Einbau

Karte wird geladen...
58791 Werdohl

Lage & Infrastruktur

Unsere Grundstücke befinden sich in ausgewählten, attraktiven Lagen und erfüllen höchste Ansprüche an Lebensqualität und Wertbeständigkeit.

Aus Diskretions- und Datenschutzgründen bitten wir um Verständnis, dass Grundstücksdaten ausschließlich im Rahmen eines persönlichen Beratungstermins und ausschließlich für unsere Kunden weitergegeben werden.

Sonstige Informationen

Sie wünschen Bauplanung und Begleitung aus einer Hand? Dann sind wir Ihr Baupartner! Wir stehen Ihnen von Anfang an zur Seite und führen Sie auf dem Weg in Ihr neues perfektes Zuhause!

Mit STREIF haben Sie einen Baupartner mit Bau-Know-how, der seit 1929 auf fast 100 Jahre und 100.000 realisierte Wohnträume zurückblicken kann.

Jedes Haus von STREIF wird individuell als Energiesparhaus geplant und gebaut. Eine nachhaltige, ökologische und wohngesunde Bauweise, eine zertifizierte Ausführungsqualität und eine kurze Bauzeit, dafür stehen wir.

Im Anschluss der gemeinsamen Bedarfsermittlung erstellen wir Ihnen Ihren individuellen Planungsvorschlag mit einer detaillierten & realistisch ermittelten Aufstellung der Gesamt-Investition.

Wir freuen uns auf Ihren Anruf / Nachricht:
Ansprechpartner/in: Herr Andreas Rogge
STREIF Haus GmbH
Josef-Streif-Straße 1, 54595 Weinsheim

Weitere Angebote in Werdohl