Schöne, vom Innenarchitekten gestaltete 3-Zimmer Wohnung in besonderem Quartier in Hannover-List

30655 Hannover, Niedersachsen
Frei ab: 01.07.2026
385.000 € Kaufpreis
Wohnfläche
112 m²
Zimmer
3
Etage
4
Einbauküche
Garten
Keller

Kaufpreis

Kaufpreis 385.000 €
Hausgeld270 €
Maklerprovisionkeine Provision, courtagefrei

Wohnfläche, Grundstück & Bausubstanz

Wohnfläche112 m²
Zimmer3
Etagen4
Stockwerk4
Baujahr1907
Verfügbar ab 01.07.2026
ZustandGepflegt

Beschreibung der Immobilie

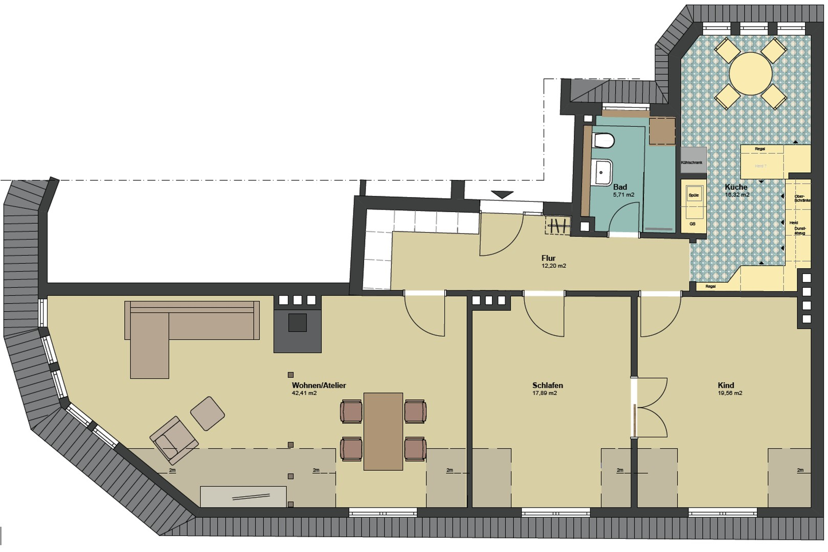
Attraktive, durch Innenarchitekt gestaltete 3-Zimmer Wohnung mit gut 112 m² Wohnfläche im 4. Obergeschoss eines gepflegten Mehrfamilienhauses in der List.
Individuell geplante Einbauküche (Fa. Rosenowski, Miele-Geräte), Glasmosaik-Fliesen Bisazza im Bad, Eichen-Echtholz-Parket (der Fa. Husnik) in der ganzen Wohnung, drehbarer Kaminofen im großen Turm-Wohnzimmer (42,4 qm) mit freigelegten Dachbalken. 2017 umfassende Kernsanierung - neu: Elektro, Heizkörper und Rohre, Wände, Fußböden, Fußleisten, Fensterbänke u.a. 2024 neue, hochwertige Doppelverglasung 2024 (UG-Wert 1,1) und neue Schließanlage.

Ausstattungsmerkmale

KücheEinbauküche
Bad1
Bad (Ausstattung)Dusche
BodenFliesen, Parkett
GartenJa
KellerJa
Garten, Keller, Duschbad, Einbauküche, Kamin, Parkett, Fliesen

Bemerkungen:
Individuelle EBK (Miele-Geräte) und Bad, Eichenparkett, Kaminofen, Einbauschränke, besondere Fliesen in Küche und Bad, LAN in jedem Raum, hochwertige Doppelverglasung, 1,5 Kellerräume.

Energie

Heizungsart Etagenheizung
Energieträger/Befeuerung Gas

Karte wird geladen...
30655 Hannover – Niedersachsen

Lage & Infrastruktur

Die Wohnung ist Teil des denkmalgeschützten Altbau-Quartiers Spannhagengarten (Baujahr 1907, List) - mit schönem als Garten gestaltetem Innenhof, sehr geeignet zum Spielen und Verweilen. Das Appartement ist zwei Gehminuten vom Stadtwald Eilenriede entfernt. In der Nähe befinden sich Restaurants, Einkaufsmöglichkeiten, Fitnessstudios, Ärzte, MHH u.a..

Die verkehrstechnische Anbindung ist sehr gut: sowohl was Öffentliche Verkehrsmittel angeht - mehrere U-Bahn-, Bus-, Straßenbahnlinien (Linien 3 und 7), die in wenigen Minuten ins Stadtzentrum bringen -, als auch für die PKW-Nutzung: Nähe zum Messe-Schnellweg (A2, A 7). In dieser Gegend findet man neben Mehrfamilienhäusern, auch Einfamilienhäuser.
Infrastruktur (im Umkreis von 5 km):
Apotheke, Lebensmittel-Discount, Allgemeinmediziner, Kindergarten, Grundschule, Realschule, Gymnasium, Gesamtschule, Öffentliche Verkehrsmittel

Sonstige Informationen

Heizungsart: Etagenheizung
Energieträger: Gas

Ich ziehe mit meinen Zwillingen in ein Reihenhaus nach Hannover Kleefeld um, daher verkaufen wir unsere schöne Wohnung.

Makleranfragen nicht erwünscht. Nach § 7 UWG sind unaufgeforderte Kontaktaufnahmen durch Makler ohne ausdrückliche Einwilligung des Empfängers verboten!

ohne-makler (OM) ist weder Anbieter noch Vermittler der Immobilie. OM betreibt eine Plattform für Immobilieneigentümer, die unter anderem die gleichzeitige Veröffentlichung einzelner Inserate auf mehreren Immobilienportalen ermöglicht. Die Inhalte dieser Inserate werden ausschließlich von Dritten verantwortet. Für die Richtigkeit, Vollständigkeit oder Rechtmäßigkeit der Angaben übernimmt OM keine Haftung. Hinweise auf mögliche Rechtsverstöße können jederzeit gemeldet werden und werden nach Prüfung umgehend bearbeitet.
Ansprechpartner/in: Privat von Dr. Achim Sohns
OM PropTech GmbH
Humboldtstraße 25a, 21509 Glinde

Weitere Angebote in Hannover