Neubaukomfort im Denkmal – Erstbezug mit Terrasse zum grünen Innenhof

Angerstraße 11 04177 Leipzig, Sachsen
Frei ab: 01.05.2026
800 € Kaltmiete
15,09 € Preis/m² ca.
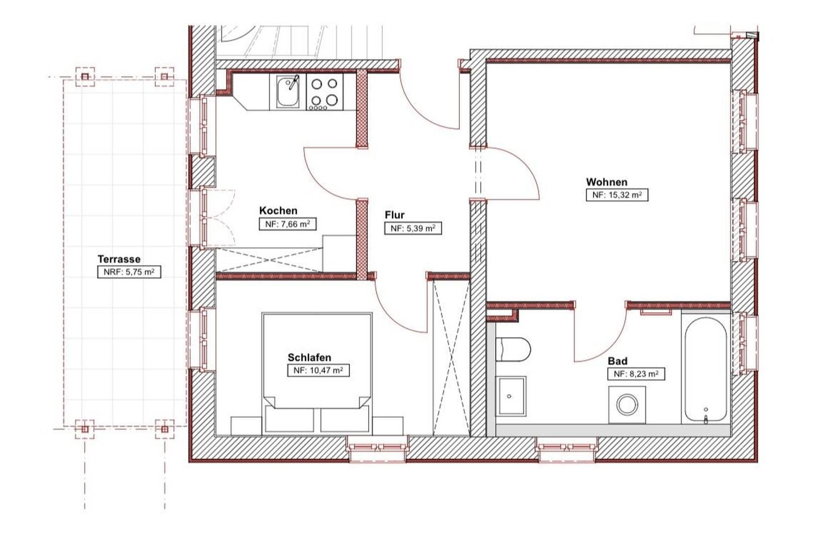
Wohnfläche
53 m²
Zimmer
2
Etage
0
Balkon
Terrasse
Garten
Keller

Mietpreis & Nebenkosten

Kaltmiete (netto)800 €
Nebenkosten 120 €
Heizkosten enthaltenJa

Wohnfläche, Grundstück & Bausubstanz

Wohnfläche53 m²
Zimmer2
Etagen3
Stockwerk0
Baujahr2026
Verfügbar ab 01.05.2026
ZustandTeil Vollsaniert

Beschreibung der Immobilie

Bei dieser hochwertigen 2-Zimmer-Wohnung im Erdgeschoss handelt es sich um einen Erstbezug nach umfassendem denkmalgerechtem Ausbau. Die Wohnung entspricht damit einem Neubau im Bestand und bietet modernen Wohnkomfort bei gleichzeitigem Altbaucharakter.

Auf ca. 52,82 m² Wohnfläche überzeugt ein durchdachter Grundriss mit hellen Wohnräumen und direktem Zugang zur großzügigen Terrasse in den ruhigen, begrünten Innenhof. Die Wohnung und ist hell, sonnig und hochwertig fertiggestellt.

Das Gebäude umfasst lediglich fünf Wohneinheiten und bietet eine ruhige, überschaubare Hausgemeinschaft.

Das Haus wird über eine moderne Wärmepumpe beheizt (Energieeffizienzklasse A), wodurch langfristig niedrige und stabile Heizkosten zu erwarten sind.

Die Wohnung wird ohne Einbauküche vermietet und ermöglicht somit eine individuelle Gestaltung.

Die im Inserat gezeigten Fotos der Wohnung zeigen den aktuellen, fast fertigen Zustand. Grundreinignung und Fertigstellung der Terrasse sind gerade in Gange.

Objektzustand: Erstbezug nach Sanierung

Ausstattungsmerkmale

Bad1
BodenFliesen, Parkett
Balkone0
Terrassen1
GartenJa
KellerJa
Terrasse, Garten, Keller, Parkett, Fliesen

Bemerkungen:
•Erstbezug nach hochwertigem denkmalgerechtem Ausbau (Neubau im Bestand)
•Echtholzparkett in allen Wohnräumen
•Modernes Badezimmer mit modernen großformatigen Fliesen
•Energieeffizienzklasse A
•Beheizung über energieeffiziente Wärmepumpe (niedrigere Nebenkosten)
•Großzügige Terrasse mit Zugang zum ruhigen Innenhof und kleinem Garten
•Kleine Hausgemeinschaft mit nur fünf Wohneinheiten
•Praktischer, ebenerdiger Abstellbereich im Haus
•Moderne Gebäudetechnik und zeitgemäßer Wohnstandard (Z.B. Fußbodenheizung)

Energie

A
Energieeffizienzklasse A · 34 kWh/(m²*a)
EnergieausweistypBedarfsausweis
EnergieeffizienzklasseA
Endenergiebedarf34
Heizungsart Fußbodenheizung
Energieträger/Befeuerung Luft-Wärme-Pumpe

Karte wird geladen...
Angerstraße 11
04177 Leipzig – Sachsen

Lage & Infrastruktur

Die Wohnung befindet sich in Alt-Lindenau, einer der gefragtesten Wohnlagen im Leipziger Westen. Der Stadtteil verbindet urbanes Leben, gewachsene Nachbarschaft und viel Grün mit einer ausgezeichneten Infrastruktur.

Der Alt-Lindenauer Markt ist in nur ca. 3 Gehminuten erreichbar und bildet das lebendige Zentrum des Viertels mit Cafés, Restaurants, Wochenmarkt sowie vielfältigen Einkaufsmöglichkeiten für den täglichen Bedarf (Z.B. Kaufland).

Die Straßenbahnhaltestelle liegt lediglich etwa 1 Minute fußläufig entfernt und ermöglicht eine schnelle Anbindung in die Leipziger Innenstadt sowie zu den umliegenden Stadtteilen.

Ein besonderer Vorteil ist die direkt angrenzende Grünfläche neben dem Gebäude, die dauerhaft unbebaut bleibt und für Ruhe, freien Blick sowie ein angenehmes, grünes Wohnumfeld sorgt.

Alt-Lindenau zählt seit Jahren zu den besonders nachgefragten Leipziger Wohnquartieren. Einkaufsmöglichkeiten, Ärzte, Schulen, Kitas und Freizeitangebote befinden sich in unmittelbarer Umgebung und machen die Lage äußerst attraktiv.
Infrastruktur (im Umkreis von 5 km):
Apotheke, Lebensmittel-Discount, Allgemeinmediziner, Kindergarten, Grundschule, Hauptschule, Realschule, Gymnasium, Gesamtschule, Öffentliche Verkehrsmittel

Sonstige Informationen

Heizungsart: Fußbodenheizung
Energieträger: Luft-/Wasserwärme

Erstbezug mit hochwertigem denkmalgerechtem Ausbau und Neubauqualität. Wärmepumpe und somit langfristig niedrigere Nebenkosten. Terrasse, ruhiger grüner Innenhof, angrenzende Grünfläche und kleine Hausgemeinschaft machen diese Wohnung zu einer seltenen Gelegenheit in Alt-Lindenau.

Makleranfragen nicht erwünscht. Nach § 7 UWG sind unaufgeforderte Kontaktaufnahmen durch Makler ohne ausdrückliche Einwilligung des Empfängers verboten!

ohne-makler (OM) ist weder Anbieter noch Vermittler der Immobilie. OM betreibt eine Plattform für Immobilieneigentümer, die unter anderem die gleichzeitige Veröffentlichung einzelner Inserate auf mehreren Immobilienportalen ermöglicht. Die Inhalte dieser Inserate werden ausschließlich von Dritten verantwortet. Für die Richtigkeit, Vollständigkeit oder Rechtmäßigkeit der Angaben übernimmt OM keine Haftung. Hinweise auf mögliche Rechtsverstöße können jederzeit gemeldet werden und werden nach Prüfung umgehend bearbeitet.
Ansprechpartner/in: Privat von Claudia Puschner
OM PropTech GmbH
Humboldtstraße 25a, 21509 Glinde

Weitere Angebote in Leipzig