STREIF Haus - Exklusive Villa (schlüsselfertig)

53332 Bornheim
Frei ab: 2027
1.120.560 € Kaufpreis
Wohnfläche
170 m²
Zimmer
6
Terrasse

Kaufpreis

Kaufpreis 1.120.560 €
MaklerprovisionGrundstückspreis

Wohnfläche, Grundstück & Bausubstanz

Wohnfläche170 m²
Grundstücksfläche800 m²
Zimmer6
Etagen2
Baujahr2027
Verfügbar ab 2027
ZustandProjektiert

Beschreibung der Immobilie

Exklusive STREIF-Villa mit modernem Design und durchdachtem Grundriss
Diese zweigeschossige STREIF-Villa 1, besticht durch ihr modernes Flachdach und eine beeindruckende Glasfront, die den gesamten Gartenbereich aufwertet. Der Baukörper ist in einem kubistischen Stil gehalten und die Architektur clever gestaltet. Ein besonderes Highlight dieser Villa ist die weitläufige XXL-Glasfront, die sich über beide Etagen erstreckt und für ein außergewöhnliches Wohngefühl sorgt.

Zentraler Punkt der Villa ist die mittig platzierte Treppe, die den offenen Wohn- und Essbereich geschickt vom Kochbereich trennt. Die lichtdurchfluteten 45 m² bieten Raum zum Wohnen, Essen und Kochen und schaffen eine Atmosphäre voller Lebensfreude. Direkt neben der Küche befindet sich eine nützliche Speisekammer, während in einer separaten Nische Platz für eine Garderobe geschaffen wurde, um Jacken und Schuhe zu verstauen. Der großzügige Wohnbereich verfügt zudem über zwei Terrassentüren und bietet genügend Platz, um bei Bedarf eine zusätzliche Wand einzufügen, damit das Wohnen auf einer Ebene möglich wird - ideal für altersgerechtes Wohnen oder im Krankheitsfall. Ergänzt wird das Erdgeschoss durch ein Badezimmer sowie einen Hauswirtschaftsraum.

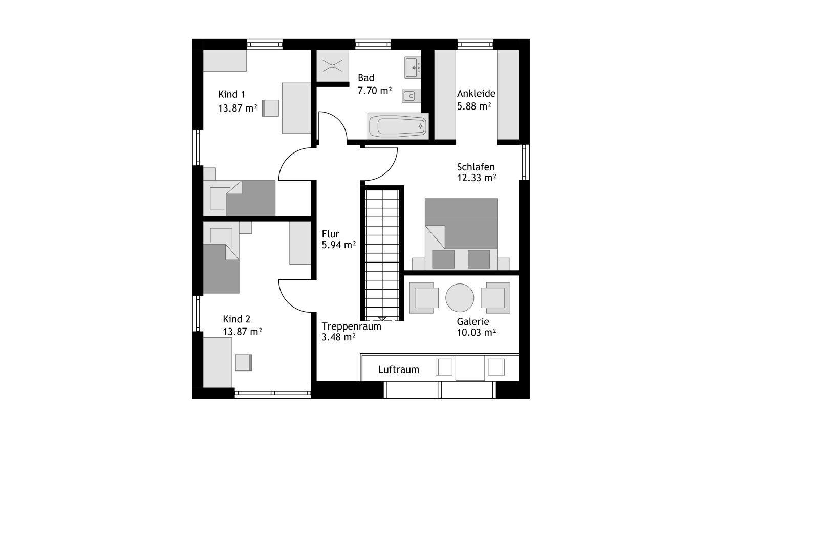
Im Obergeschoss der Villa mit Flachdach befinden sich zwei identisch große Kinderzimmer, ein geräumiges Familienbad sowie der Elternbereich, der mit einer Ankleide ausgestattet ist. Ein weiteres Highlight ist die Galerie, die dank der Glasfront einen herrlichen Ausblick ins Freie bietet. Diese 10 m² große Galerie kann vielseitig genutzt werden, sei es als Homeoffice, Spielecke oder als Rückzugsort für Erholung.

Diese Villa ist in drei verschiedenen Grundrissvarianten erhältlich, jeweils mit unterschiedlichen Größen.



STREIF-Villa 01 (drei Ausführungsvarianten)
- Variante L: 150m² / Hausmaße 9,33 x 9,95 m
- Variante XL: 170 m² / Hausmaße 9,95 x 10,58 m
- Variante XXL: 190 m² / Hausmaße 10,58 x 11,205 m

Ausstattungsmerkmale

Bad2
Terrassen1
Ein Haus überzeugt nicht durch Prospekte. Es überzeugt morgens im Bad. Abends im Wohnzimmer. Im Raumklima. In den Nebenkosten. Im Gefühl, dass alles stimmig ist.

Ihr Streif Haus wird grundsätzlich als hocheffizientes KfW-40-Haus realisiert. Das bedeutet nicht nur niedrigen Energieverbrauch, sondern langfristige Sicherheit, Förderfähigkeit und echte Zukunftstauglichkeit. Modernste Wärmepumpentechnik, zentral gesteuerte Be- und Entlüftung mit Wärmerückgewinnung und auf Wunsch eine leistungsstarke Photovoltaikanlage mit Batteriespeicher und Wallbox. Technik, die leise im Hintergrund arbeitet und Ihren Alltag spürbar angenehmer macht.

Sie entscheiden, wie viel Sie selbst übernehmen möchten. Vom Ausbauhaus bis zur schlüsselfertigen Übergabe. Im Exposé in der Ausbaustufe Fast-Fertig-Plus kalkuliert, ist dieses technisch fertiggestellt inklusive Bäder. Ideal für alle, die Eigenleistung einbringen möchten, ohne auf Qualität und Planungssicherheit zu verzichten.

Auch bei der Ausstattung gibt es keine starren Linien. Mit verschiedenen Ausstattungspaketen, von gehoben bis exklusiv gestalten Sie Ihr Zuhause nach Ihrem Anspruch. Hochwertige Materialien namhafter Markenhersteller, eine große Auswahl an Oberflächen, Sanitärobjekten, Türen, Treppen und technischen Lösungen. Dazu eine regionale Ausstellung, in der Sie sehen, fühlen und vergleichen können, statt nur zu blättern.

Gedämmte Bodenplatte mit Frostschürze ist bereits inklusive. Auf Wunsch realisieren wir Ihr Haus auch mit Nutz- oder Wohnkeller. Die Treppen entstehen in der hauseigenen Produktion in Weinsheim. Die Fassade gestalten Sie modern mit Putz, Holz oder Klinker, inklusive vollflächiger Gewebearmierung für dauerhafte Substanz.

Ob klare Architektur oder warme Wohnlichkeit. Ob technisch reduziert oder maximal ausgestattet. Ihr Haus entsteht so, wie es zu Ihrem Leben passt.

Wenn Sie ein Zuhause wollen, das heute begeistert und morgen noch überzeugt, dann lassen Sie uns über Ihre Ausstattung sprechen.
Ich berate Sie persönlich und transparent.

Die gezeigten Bilder können Anbauteile zeigen, welche nicht im angegebenen Preis enthalten sind. Es besteht kein Rechtsanspruch.

Energie

Energietyp KfW-40
Heizungsart Fußbodenheizung
Energieträger/Befeuerung Luft-Wärme-Pumpe

Karte wird geladen...
53332 Bornheim

Lage & Infrastruktur

Top Lage und top Nachbarschaft im Ortsteil BN-Schweinheim

Sonstige Informationen

Grundstück in Kooperation mit Makler (Zwischenverkauf vorbehalten / kein Rechtsanspruch)
Ansprechpartner/in: Herr Jörg Demmerath
STREIF Haus GmbH
Josef-Streif-Straße 1, 54595 Weinsheim

Weitere Angebote in Bornheim