Frisch renovierte 2,5-Zimmer-Altbauwohnung in Bestlage von Mönchengladbach + Garage
890 €
Kaltmiete (netto)
73 m²
Wohnfläche
2,5
Zimmer
immobilien.de Nr.: 9528614
Objektnummer: 439915
Mietpreis & Nebenkosten
| Kaltmiete (netto) | 890 € |
| Nebenkosten | 280 € |
| Heizkosten enthalten | Ja |
| Kaution | 2.600 € |
| Stellplatz Garage Miete | 80 € |
Wohnfläche, Grundstück & Bausubstanz
| Wohnfläche | 73 m² |
| Zimmer | 2,5 |
| Baujahr | 1930 |
| Verfügbar ab | sofort |
| Zustand | Teil Vollrenoviert |
Energie
| Energieausweistyp | Bedarfsausweis |
| Endenergiebedarf | 117 |
| Heizungsart | Etagenheizung |
| Energieträger/Befeuerung | Gas |
Beschreibung der Immobilie
Willkommen in Ihrem neuen Zuhause im Herzen von Mönchengladbach! Diese helle und frisch renovierte 2,5-Zimmer-Altbauwohnung mit ca. 73 m² Wohnfläche befindet sich im Erdgeschoss eines gepflegten Altbaus und überzeugt durch ihren gelungenen Mix aus klassischem Charme und modernen Ausstattungsdetails.
Typische Altbaumerkmale wie großzügige Deckenhöhen und große Fensterflächen sorgen für ein angenehmes, lichtdurchflutetes Wohnambiente. Im Zuge der Renovierung wurde der Boden komplett neu verlegt, frisch gestrichen, Schönheitsreparaturen vorgenommen und zudem ein modernes Tageslichtbad geschaffen, das zeitgemäßen Wohnkomfort bietet.
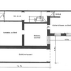
Der Grundriss umfasst eine Küche (inkl. EBK) mit integriertem Essbereich, ein Wohnzimmer sowie ein Schlafzimmer. Aufgrund eines Durchgangszimmers ist die Wohnung eher nicht WG-geeignet. Ein Kellerabteil bietet zusätzlichen Stauraum und optional steht auch eine Garage zur Verfügung.
Haustiere sind nach Absprache erlaubt und die Wohnung ist ab sofort bezugsfrei.
Wenn Sie Interesse haben oder weitere Informationen wünschen, freuen wir uns über Ihre Kontaktaufnahme!
Typische Altbaumerkmale wie großzügige Deckenhöhen und große Fensterflächen sorgen für ein angenehmes, lichtdurchflutetes Wohnambiente. Im Zuge der Renovierung wurde der Boden komplett neu verlegt, frisch gestrichen, Schönheitsreparaturen vorgenommen und zudem ein modernes Tageslichtbad geschaffen, das zeitgemäßen Wohnkomfort bietet.
Der Grundriss umfasst eine Küche (inkl. EBK) mit integriertem Essbereich, ein Wohnzimmer sowie ein Schlafzimmer. Aufgrund eines Durchgangszimmers ist die Wohnung eher nicht WG-geeignet. Ein Kellerabteil bietet zusätzlichen Stauraum und optional steht auch eine Garage zur Verfügung.
Haustiere sind nach Absprache erlaubt und die Wohnung ist ab sofort bezugsfrei.
Wenn Sie Interesse haben oder weitere Informationen wünschen, freuen wir uns über Ihre Kontaktaufnahme!
Ausstattungsmerkmale
| Inserat befindet sich im Stockwerk | 0 |
| Küche | Einbauküche |
| Bad | 1 |
| Boden | Fliesen, Kunststoff |
| Barrierefrei | |
| Garage/Stellplätze | 1 |
Einbauküche, Barrierefrei, Fliesen
Sonstige Informationen
Heizungsart: Etagenheizung
Energieträger: Gas
Makleranfragen nicht erwünscht. Nach § 7 UWG sind unaufgeforderte Kontaktaufnahmen durch Makler ohne ausdrückliche Einwilligung des Empfängers verboten!
ohne-makler (OM) ist weder Anbieter noch Vermittler der Immobilie. OM betreibt eine Plattform für Immobilieneigentümer, die unter anderem die gleichzeitige Veröffentlichung einzelner Inserate auf mehreren Immobilienportalen ermöglicht. Die Inhalte dieser Inserate werden ausschließlich von Dritten verantwortet. Für die Richtigkeit, Vollständigkeit oder Rechtmäßigkeit der Angaben übernimmt OM keine Haftung. Hinweise auf mögliche Rechtsverstöße können jederzeit gemeldet werden und werden nach Prüfung umgehend bearbeitet.
Energieträger: Gas
Makleranfragen nicht erwünscht. Nach § 7 UWG sind unaufgeforderte Kontaktaufnahmen durch Makler ohne ausdrückliche Einwilligung des Empfängers verboten!
ohne-makler (OM) ist weder Anbieter noch Vermittler der Immobilie. OM betreibt eine Plattform für Immobilieneigentümer, die unter anderem die gleichzeitige Veröffentlichung einzelner Inserate auf mehreren Immobilienportalen ermöglicht. Die Inhalte dieser Inserate werden ausschließlich von Dritten verantwortet. Für die Richtigkeit, Vollständigkeit oder Rechtmäßigkeit der Angaben übernimmt OM keine Haftung. Hinweise auf mögliche Rechtsverstöße können jederzeit gemeldet werden und werden nach Prüfung umgehend bearbeitet.
Karte wird geladen...
Objektstandort
Viersener Straße 72
41061 Mönchengladbach
- Nordrhein-Westfalen
Lage & Infrastruktur
Objektstandort
Viersener Straße 72
41061 Mönchengladbach
- Nordrhein-Westfalen
Die Wohnung befindet sich in zentraler und äußerst begehrter Lage im Villenviertel von Mönchengladbach. Zahlreiche Einrichtungen des täglichen Bedarfs wie Krankenhaus, Arztpraxen sowie der bekannte Wasserturm befinden sich in unmittelbarer Nähe und sind bequem zu Fuß erreichbar.
Die Innenstadt erreichen Sie ebenfalls in wenigen Gehminuten. Die Umgebung bietet ein vielfältiges Freizeitangebot mit Parks, Cafés, Restaurants und Fitnessstudios.
Dank der hervorragenden Anbindung an den öffentlichen Nahverkehr sowie der schnellen Erreichbarkeit der Autobahn ist eine optimale Mobilität in alle Richtungen gewährleistet.
Infrastruktur (im Umkreis von 5 km):
Apotheke, Lebensmittel-Discount, Allgemeinmediziner, Öffentliche Verkehrsmittel
Die Innenstadt erreichen Sie ebenfalls in wenigen Gehminuten. Die Umgebung bietet ein vielfältiges Freizeitangebot mit Parks, Cafés, Restaurants und Fitnessstudios.
Dank der hervorragenden Anbindung an den öffentlichen Nahverkehr sowie der schnellen Erreichbarkeit der Autobahn ist eine optimale Mobilität in alle Richtungen gewährleistet.
Infrastruktur (im Umkreis von 5 km):
Apotheke, Lebensmittel-Discount, Allgemeinmediziner, Öffentliche Verkehrsmittel
Kontaktanfrage senden
Über den Anbieter
OM PropTech GmbH
Humboldtstraße 25a
21509 Glinde
Kontakt
| Telefon | - |
| Fax | - |
| Website | www.ohne-makler.net |
Ansprechpartner/in
Privat von Tara Müller
Weitere Angebote des Anbieters
5
Möblierte 1 Zimmer Wohnung mit Einbauküche und ...
Wohnung
96052 Bamberg
WILLKOMMEN IN DEN SUN SHINE LOFTS! Stellen Sie sich vor, Sie werden Teil eines der innovativsten Stadtentwicklungsprojekte Europas! Auf dem Gelände der ehemaligen Lagarde-Kaserne in Bamberg, die über 69 Jahre lang Teil ...
559 €
Kaltmiete (netto)
32,55 m²
Wohnfläche
1
Zimmer
16
Erstbezug: 2 bis 4 Zimmer Wohnungen ab 750,- Kaltmiete ...
Wohnung
56269 Dierdorf
Tolle 2 bis 4-Zimmer Wohnungen in Energieeffizientem KFW55 Haus, Fußbodenheizung, zentrale Luft-Wärmepumpe, kontrollierte Wohnraumlüftung durch dezentrale in den Wohnungen installierte, moderne Einbauküchen in ...
750 €
Kaltmiete (netto)
55 m²
Wohnfläche
2
Zimmer
50
Außergewöhnlich gepflegter Resthof mit zwei ...
Haus
24816 Luhnstedt
Dieser außergewöhnlich gepflegte Resthof richtet sich an Käufer mit Anspruch, die Wert auf Substanz, Großzügigkeit und flexible Nutzungsmöglichkeiten legen. In ruhiger, ländlicher Lage in Luhnstedt bietet dieses ...
429.000 €
Kaufpreis
268,4 m²
Wohnfläche
6
Zimmer
22
Moderne Büroflächen ab 32–90 m² | barrierefrei | 9 ...
Büro / Praxen
44149 Dortmund
Moderne Büroflächen in einem vollständig modernisierten Gebäude (ehemalige Sparkasse) in Dortmund-Oespel. Das Objekt wurde im Jahr 2026 umfassend erneuert und bietet eine moderne und funktionale Arbeitsumgebung für ...
663 €
Kaltmiete (netto)
460 m²
Gesamtfläche
15
Große, helle 1 Zimmer Wohnung in Souterrain
Wohnung
70619 Stuttgart
Das 1983 gebaute Haus wurde 2026 mit einem Vollwärmeschutz versehen, die Fassade neu gestrichen und die Fenster mit einer 3-fach Verglasung erneuert . Der Energieausweis wird gerade neu erstellt. Die großzügig ...
610 €
Kaltmiete (netto)
48 m²
Wohnfläche
1
Zimmer