2-Familienhaus mit flexiblen Nutzungsmöglichkeiten
448.000 €
Kaufpreis
291 m²
Wohnfläche
14
Zimmer
immobilien.de Nr.: 9524821
Objektnummer: 439830
Kaufpreis
| Kaufpreis | 448.000 € |
| Maklerprovision | keine Provision, courtagefrei |
Wohnfläche, Grundstück & Bausubstanz
| Wohnfläche | 291 m² |
| Grundstücksfläche | 292 m² |
| Zimmer | 14 |
| Verfügbar ab | nach Absprache |
| Zustand | Teil Vollrenovierungsbed |
Energie
| Heizungsart | Zentralheizung |
| Energieträger/Befeuerung | Öl |
Beschreibung der Immobilie
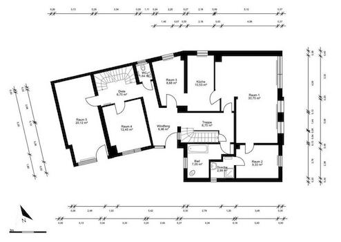
Dieses interessante Haus mit ca. 291 m² Wohnfläche und 14 Zimmern befindet sich im alten Ortskern von Stockstadt am Rhein. Das Objekt besteht aus einem sanierungsbedürftigen Altbau mit zwei Etagen und Dachgeschoss ( rund 181 m²), sowie einem gepflegten Anbau (rund 110 m²) aus den 80er Jahren. Im Anbau sind 4 Zimmer mit Balkon, Küche, Bad und Gäste-WC nach geringen Schönheitsreparaturen sofort beziehbar. Der Altbau kann mit einfachen Maßnahmen vom Anbau getrennt werden, dann erhält man zwei vollwertige Wohneinheiten mit viel Platz für diverse Nutzungskonzepte. Bisher wurde es zusammen als ein großes Wohnhaus genutzt.
Der geschützte Hof bietet Platz für einen Freisitz und auch Parkmöglichkeiten.
Eine Garage ist ebenfalls vorhanden. Das Haus ist unterkellert und bietet somit weiteren Stauraum. Das Haus ist ab sofort verfügbar und eignet sich ideal für Familien, als Mehrgenerationenhaus oder zum Abteilen in zwei getrennte Wohnhäuser ähnlich einem Doppelhaus.
Der geschützte Hof bietet Platz für einen Freisitz und auch Parkmöglichkeiten.
Eine Garage ist ebenfalls vorhanden. Das Haus ist unterkellert und bietet somit weiteren Stauraum. Das Haus ist ab sofort verfügbar und eignet sich ideal für Familien, als Mehrgenerationenhaus oder zum Abteilen in zwei getrennte Wohnhäuser ähnlich einem Doppelhaus.
Ausstattungsmerkmale
| Anzahl der Etagen im Haus | 2 |
| Bad | 2 |
| Bad | Dusche, Wanne |
| Boden | Fliesen, Teppich, Laminat |
| Balkone | 1 |
| Terrassen | 1 |
| Garage/Stellplätze | 1 |
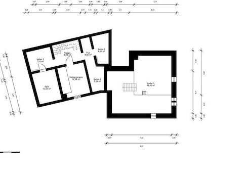
| Keller |
Balkon, Terrasse, Keller, Vollbad, Duschbad, Gäste-WC, Laminat, Teppichboden, Fliesen
Bemerkungen:
Der Altbau bedarf einer Vollsanierung.
Die Ausstattung im Anbau entspricht dem Standard der 80er Jahre und ist grundsätzlich sofort nutzbar.
Bemerkungen:
Der Altbau bedarf einer Vollsanierung.
Die Ausstattung im Anbau entspricht dem Standard der 80er Jahre und ist grundsätzlich sofort nutzbar.
Sonstige Informationen
Heizungsart: Zentralheizung
Energieträger: Öl
Energieausweis nicht vorhanden
Makleranfragen nicht erwünscht. Nach § 7 UWG sind unaufgeforderte Kontaktaufnahmen durch Makler ohne ausdrückliche Einwilligung des Empfängers verboten!
ohne-makler (OM) ist weder Anbieter noch Vermittler der Immobilie. OM betreibt eine Plattform für Immobilieneigentümer, die unter anderem die gleichzeitige Veröffentlichung einzelner Inserate auf mehreren Immobilienportalen ermöglicht. Die Inhalte dieser Inserate werden ausschließlich von Dritten verantwortet. Für die Richtigkeit, Vollständigkeit oder Rechtmäßigkeit der Angaben übernimmt OM keine Haftung. Hinweise auf mögliche Rechtsverstöße können jederzeit gemeldet werden und werden nach Prüfung umgehend bearbeitet.
Energieträger: Öl
Energieausweis nicht vorhanden
Makleranfragen nicht erwünscht. Nach § 7 UWG sind unaufgeforderte Kontaktaufnahmen durch Makler ohne ausdrückliche Einwilligung des Empfängers verboten!
ohne-makler (OM) ist weder Anbieter noch Vermittler der Immobilie. OM betreibt eine Plattform für Immobilieneigentümer, die unter anderem die gleichzeitige Veröffentlichung einzelner Inserate auf mehreren Immobilienportalen ermöglicht. Die Inhalte dieser Inserate werden ausschließlich von Dritten verantwortet. Für die Richtigkeit, Vollständigkeit oder Rechtmäßigkeit der Angaben übernimmt OM keine Haftung. Hinweise auf mögliche Rechtsverstöße können jederzeit gemeldet werden und werden nach Prüfung umgehend bearbeitet.
Karte wird geladen...
Objektstandort
64589 Stockstadt
- Hessen
Lage & Infrastruktur
Objektstandort
64589 Stockstadt
- Hessen
Stockstadt am Rhein ist eine Gemeinde im Landkreis Groß-Gerau in Hessen. Die Lage bietet eine gute Anbindung an umliegende Städte und eine solide Nahversorgung. Einkaufsmöglichkeiten für den täglichen Bedarf sowie Ärzte und Schulen sind in der Nähe vorhanden. Die Umgebung lädt zu Freizeitaktivitäten im Grünen ein, durch die Nähe zum Naturschutzgebiet Kühkopf-Knoblochsaue.
Die Gemeinde ist Haltepunkt der Riedbahn Frankfurt–Mannheim, nach Darmstadt besteht eine Busverbindung.
Infrastruktur (im Umkreis von 5 km):
Apotheke, Lebensmittel-Discount, Allgemeinmediziner, Kindergarten, Grundschule, Öffentliche Verkehrsmittel
Die Gemeinde ist Haltepunkt der Riedbahn Frankfurt–Mannheim, nach Darmstadt besteht eine Busverbindung.
Infrastruktur (im Umkreis von 5 km):
Apotheke, Lebensmittel-Discount, Allgemeinmediziner, Kindergarten, Grundschule, Öffentliche Verkehrsmittel
Kontaktanfrage senden
Über den Anbieter
OM PropTech GmbH
Humboldtstraße 25a
21509 Glinde
Kontakt
| Telefon | - |
| Fax | - |
| Website | www.ohne-makler.net |
Ansprechpartner/in
Privat vom Eigentümer
Weitere Angebote des Anbieters
8
Großzügige 3-Zimmer-Wohnung, frisch modernisiert, ...
Wohnung
39108 Magdeburg
Großzügige 3-Zimmer-Altbauwohnung – frisch modernisiert, mit Stuck, Wannenbad, Duschbad und Gäste-WC – ideal für Familien Diese großzügige Vierzimmerwohnung in einem klassischen Altbau steht ab 01.04.2026 zur Verfügung ...
870 €
Kaltmiete (netto)
92 m²
Wohnfläche
3
Zimmer
12
Kernsaniert 2025: 3 Zi (96,5 m²) mit EBK, 2 Bädern, ...
Wohnung
16321 Berlin
Bei der Immobilie handelt es sich um eine 3-Zimmer-Wohnung mit hohen Decken aus dem Jahr 1932, welche in 2025 kernsaniert wurde. Die Wohnung befindet sich im EG (Hochparterre), ist modern und offen gestaltet. In der ...
1.400 €
Kaltmiete (netto)
96,5 m²
Wohnfläche
4
Zimmer
42
Einfamilienhaus mit 6 Zimmern - 126m2 - zentrale Lage ...
Haus
91327 Gößweinstein
Von privat – keine Maklerprovision Einfamilienhaus in zentraler Lage von Gössweinstein – nur ca. 300 Meter zur Basilika und zum Ortszentrum. Die Immobilie bietet ca. 126 m² Wohnfläche auf 3 Etagen sowie ca. 25 m² ...
99.000 €
Kaufpreis
126 m²
Wohnfläche
6
Zimmer
25
Exklusive Doppelhaushälfte - modern & ruhig
Haus
82166 Gräfelfing
Diese ansprechende Doppelhaushälfte besticht durch ihre ruhige Lage in einem gewachsenen Wohnumfeld sowie durch ihren nahezu neuwertigen Zustand. Eine durchdachte und großzügige Raumgestaltung sorgt in Kombination mit ...
3.500 €
Kaltmiete (netto)
180 m²
Wohnfläche
6
Zimmer
9
Traumhafte 3-Zi-EG-Whg. mit 2 Terrassen
Wohnung
60599 Frankfurt am Main
In einem sehr gepflegten 4 Parteienhaus mit exzellenter Mieterstruktur befindet sich im Erdgeschoß diese perfekt geschnittene 3 Zimmerwohnung mit 80 m² sowie einer Süd- und einer Nordterrasse mit insgesamt 12 m². Sie ...
1.490 €
Kaltmiete (netto)
80 m²
Wohnfläche
3
Zimmer