5-Zimmer-Traumwohnung in Baisingen: 170 qm, 2 Bäder, Schwedenofen, Aussicht
479.000 €
Kaufpreis
170 m²
Wohnfläche
5
Zimmer
immobilien.de Nr.: 9524777
Objektnummer: 437234
Kaufpreis
| Kaufpreis | 479.000 € |
| Hausgeld | 100 € |
| Maklerprovision | keine Provision, courtagefrei |
Wohnfläche, Grundstück & Bausubstanz
| Wohnfläche | 170 m² |
| Zimmer | 5 |
| Baujahr | 1998 |
| Verfügbar ab | 01.08.2026 |
| Zustand | Gepflegt |
Energie
| Energieausweistyp | Bedarfsausweis |
| Energieeffizienzklasse | D |
| Endenergiebedarf | 122 |
| Heizungsart | Zentralheizung |
| Energieträger/Befeuerung | Öl |
Beschreibung der Immobilie
Zum Verkauf steht eine gepflegte 5-Zimmer-Wohnung im 1. Obergeschoss eines charmanten Dreifamilienhauses. Das Gebäude wurde ursprünglich im Jahr 1820 errichtet und im Jahr 1998 umfassend ausgebaut sowie modernisiert. Seitdem präsentiert sich die Immobilie in einem gepflegten Zustand und erfüllt die Anforderungen an komfortables, modernes Wohnen.
Mit einer großzügigen Wohnfläche von ca. 170 m² bietet die Wohnung viel Platz und eignet sich ideal für größere Familien, die Wert auf Raum, Funktionalität und eine angenehme Wohnatmosphäre legen.
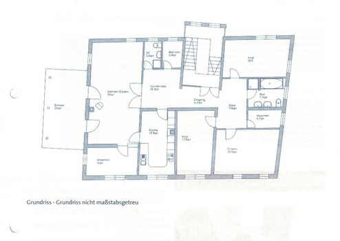
Der durchdachte Grundriss verteilt sich auf einen großen und hellen Wohn- und Essbereich mit Zugang zum großzügigen Balkon, eine geräumige Küche mit zusätzlichem Essplatz, drei Schlafzimmer, ein Arbeits- bzw. Gästezimmer, einen Flur, einen Hauswirtschaftsraum, eine praktische Speisekammer, ein großes Badezimmer sowie ein Gäste-Badezimmer, beide mit Tageslicht.
Ein Schwedenofen im Wohnbereich sorgt besonders in den kälteren Monaten für eine gemütliche Atmosphäre und kann zusätzlich zur Energieeffizienz beitragen.
Neben dem Hauswirtschaftsraum und der Speisekammer innerhalb der Wohnung stehen weitere großzügige Abstellmöglichkeiten zur Verfügung: ein Kellerraum im Erdgeschoss, ein anteiliger Gewölbekeller im Untergeschoss sowie ein anteiliger Dachboden bieten reichlich Platz für Vorräte, Hobby oder saisonale Gegenstände. Zusätzlich kann ein separater Teil der Scheune auf dem Grundstück genutzt werden, der weiteren Stauraum oder Nutzungsmöglichkeiten bietet.
Für Fahrzeuge stehen ein Stellplatz in der Doppelgarage sowie ein weiterer Stellplatz im Freien zur Verfügung, sodass auch für Besucher ausreichend Parkmöglichkeiten vorhanden sind.
Der Garten auf dem 1.077 m² großen Grundstück steht zur gemeinschaftlichen Mitbenutzung zur Verfügung und bietet viel Platz zum Entspannen im Grünen.
Mit einer großzügigen Wohnfläche von ca. 170 m² bietet die Wohnung viel Platz und eignet sich ideal für größere Familien, die Wert auf Raum, Funktionalität und eine angenehme Wohnatmosphäre legen.
Der durchdachte Grundriss verteilt sich auf einen großen und hellen Wohn- und Essbereich mit Zugang zum großzügigen Balkon, eine geräumige Küche mit zusätzlichem Essplatz, drei Schlafzimmer, ein Arbeits- bzw. Gästezimmer, einen Flur, einen Hauswirtschaftsraum, eine praktische Speisekammer, ein großes Badezimmer sowie ein Gäste-Badezimmer, beide mit Tageslicht.
Ein Schwedenofen im Wohnbereich sorgt besonders in den kälteren Monaten für eine gemütliche Atmosphäre und kann zusätzlich zur Energieeffizienz beitragen.
Neben dem Hauswirtschaftsraum und der Speisekammer innerhalb der Wohnung stehen weitere großzügige Abstellmöglichkeiten zur Verfügung: ein Kellerraum im Erdgeschoss, ein anteiliger Gewölbekeller im Untergeschoss sowie ein anteiliger Dachboden bieten reichlich Platz für Vorräte, Hobby oder saisonale Gegenstände. Zusätzlich kann ein separater Teil der Scheune auf dem Grundstück genutzt werden, der weiteren Stauraum oder Nutzungsmöglichkeiten bietet.
Für Fahrzeuge stehen ein Stellplatz in der Doppelgarage sowie ein weiterer Stellplatz im Freien zur Verfügung, sodass auch für Besucher ausreichend Parkmöglichkeiten vorhanden sind.
Der Garten auf dem 1.077 m² großen Grundstück steht zur gemeinschaftlichen Mitbenutzung zur Verfügung und bietet viel Platz zum Entspannen im Grünen.
Ausstattungsmerkmale
| Anzahl der Etagen im Haus | 3 |
| Inserat befindet sich im Stockwerk | 1 |
| Küche | Einbauküche |
| Bad | 2 |
| Bad | Dusche, Wanne |
| Boden | Fliesen, Laminat |
| Balkone | 1 |
| Garten | |
| Terrassen | 0 |
| Garage/Stellplätze | 1 |
| Keller |
Balkon, Garten, Keller, Vollbad, Duschbad, Einbauküche, Gäste-WC, Kamin, Laminat, Fliesen
Bemerkungen:
Highligths:
- nur 3 Parteien in der Wohneinheit
- großzügiges, lichtdurchflutetes und mit Granit ausgelegtes Treppenhaus
- Schwedenofen im Wohn- Essbereich
- teilweise Fußbodenheizung
- Tageslichtbad mit Dusche, Badewanne, WC, 2 Waschbecken und Handtuchwärmer
- separates Tageslicht-Gäste-WC mit vollwertiger Duschkabine
- Hauswirtschaftsraum mit Waschmaschinenanschluss und Platz für einen Trockner
- Speisekammer
- Fliesen und Laminat in der gesamten Wohnung
- Holzisolierglasfenster mit Kunststoffrolläden
- moderne, zeitlose Einbauten in Küche, Bad und WC
- teilweise Holzdecke bzw. sichtbaren Holzbalken
- Zimmertüren aus Holz, teilweise mit Glaseinsatz
- Keller im UG, EG und zugewiesene Abstellfläche auf dem Dachboden
- Nutzfläche im separaten Scheunenanteil
Bemerkungen:
Highligths:
- nur 3 Parteien in der Wohneinheit
- großzügiges, lichtdurchflutetes und mit Granit ausgelegtes Treppenhaus
- Schwedenofen im Wohn- Essbereich
- teilweise Fußbodenheizung
- Tageslichtbad mit Dusche, Badewanne, WC, 2 Waschbecken und Handtuchwärmer
- separates Tageslicht-Gäste-WC mit vollwertiger Duschkabine
- Hauswirtschaftsraum mit Waschmaschinenanschluss und Platz für einen Trockner
- Speisekammer
- Fliesen und Laminat in der gesamten Wohnung
- Holzisolierglasfenster mit Kunststoffrolläden
- moderne, zeitlose Einbauten in Küche, Bad und WC
- teilweise Holzdecke bzw. sichtbaren Holzbalken
- Zimmertüren aus Holz, teilweise mit Glaseinsatz
- Keller im UG, EG und zugewiesene Abstellfläche auf dem Dachboden
- Nutzfläche im separaten Scheunenanteil
Sonstige Informationen
Heizungsart: Zentralheizung
Energieträger: Öl
Uns ist ein respektvolles Miteinander wichtig. Daher freuen wir uns über Anfragen von Interessenten unabhängig von Herkunft, Nationalität, Religion oder Lebenssituation.
Makleranfragen nicht erwünscht. Nach § 7 UWG sind unaufgeforderte Kontaktaufnahmen durch Makler ohne ausdrückliche Einwilligung des Empfängers verboten!
ohne-makler (OM) ist weder Anbieter noch Vermittler der Immobilie. OM betreibt eine Plattform für Immobilieneigentümer, die unter anderem die gleichzeitige Veröffentlichung einzelner Inserate auf mehreren Immobilienportalen ermöglicht. Die Inhalte dieser Inserate werden ausschließlich von Dritten verantwortet. Für die Richtigkeit, Vollständigkeit oder Rechtmäßigkeit der Angaben übernimmt OM keine Haftung. Hinweise auf mögliche Rechtsverstöße können jederzeit gemeldet werden und werden nach Prüfung umgehend bearbeitet.
Energieträger: Öl
Uns ist ein respektvolles Miteinander wichtig. Daher freuen wir uns über Anfragen von Interessenten unabhängig von Herkunft, Nationalität, Religion oder Lebenssituation.
Makleranfragen nicht erwünscht. Nach § 7 UWG sind unaufgeforderte Kontaktaufnahmen durch Makler ohne ausdrückliche Einwilligung des Empfängers verboten!
ohne-makler (OM) ist weder Anbieter noch Vermittler der Immobilie. OM betreibt eine Plattform für Immobilieneigentümer, die unter anderem die gleichzeitige Veröffentlichung einzelner Inserate auf mehreren Immobilienportalen ermöglicht. Die Inhalte dieser Inserate werden ausschließlich von Dritten verantwortet. Für die Richtigkeit, Vollständigkeit oder Rechtmäßigkeit der Angaben übernimmt OM keine Haftung. Hinweise auf mögliche Rechtsverstöße können jederzeit gemeldet werden und werden nach Prüfung umgehend bearbeitet.
Karte wird geladen...
Objektstandort
72108 Rottenburg am Neckar
- Baden-Württemberg
Lage & Infrastruktur
Objektstandort
72108 Rottenburg am Neckar
- Baden-Württemberg
Die Wohnung befindet sich in ruhiger Lage im Ortskern von Rottenburg-Baisingen. Trotz der zentralen Lage zeichnet sich das Umfeld durch eine angenehme, familienfreundliche Wohnatmosphäre mit kurzen Wegen im Alltag aus.
Zur Autobahn Anschlussstelle Rottenburg A81 sind es nur 6 Minuten Fahrtzeit.
Eine Bushaltestelle befindet sich nur etwa 30 Meter vom Hauseingang entfernt und ermöglicht eine bequeme Anbindung an die umliegenden Orte sowie direkt nach Rottenburg am Neckar. Besonders für Familien mit Kindern ist die Lage praktisch: Kindergarten und Grundschule sind in weniger als 100 Metern Entfernung und damit bequem zu Fuß erreichbar.
Auch die Nahversorgung im Ort ist gegeben. Ein Metzger befindet sich nur wenige Gehminuten entfernt und ermöglicht kurze Wege für den täglichen Einkauf.
Weitere umfangreiche Einkaufsmöglichkeiten und Dienstleistungen finden sich im nur ca. 3–4 km entfernten Nachbarort. Dort stehen unter anderem Lidl, Netto Marken-Discount und Rossmann sowie Bäckereien, Apotheken, Ärzte, Friseure und Restaurants zur Verfügung.
Das Gebäude selbst liegt etwas zurückversetzt von der Straße und ist über eine eigene Zufahrt erreichbar, wodurch eine angenehm ruhige Wohnsituation entsteht. Gleichzeitig befinden sich Felder, Natur und Spazierwege in unmittelbarer Umgebung – ideal für Familien, Spaziergänge oder Freizeitaktivitäten im Grünen.
Insgesamt verbindet die Lage ruhiges Wohnen im gewachsenen Ortsteil mit kurzen Wegen, guter Infrastruktur und einer sehr familienfreundlichen Umgebung.
Infrastruktur (im Umkreis von 5 km):
Apotheke, Lebensmittel-Discount, Allgemeinmediziner, Kindergarten, Grundschule, Hauptschule, Realschule, Gesamtschule, Öffentliche Verkehrsmittel
Zur Autobahn Anschlussstelle Rottenburg A81 sind es nur 6 Minuten Fahrtzeit.
Eine Bushaltestelle befindet sich nur etwa 30 Meter vom Hauseingang entfernt und ermöglicht eine bequeme Anbindung an die umliegenden Orte sowie direkt nach Rottenburg am Neckar. Besonders für Familien mit Kindern ist die Lage praktisch: Kindergarten und Grundschule sind in weniger als 100 Metern Entfernung und damit bequem zu Fuß erreichbar.
Auch die Nahversorgung im Ort ist gegeben. Ein Metzger befindet sich nur wenige Gehminuten entfernt und ermöglicht kurze Wege für den täglichen Einkauf.
Weitere umfangreiche Einkaufsmöglichkeiten und Dienstleistungen finden sich im nur ca. 3–4 km entfernten Nachbarort. Dort stehen unter anderem Lidl, Netto Marken-Discount und Rossmann sowie Bäckereien, Apotheken, Ärzte, Friseure und Restaurants zur Verfügung.
Das Gebäude selbst liegt etwas zurückversetzt von der Straße und ist über eine eigene Zufahrt erreichbar, wodurch eine angenehm ruhige Wohnsituation entsteht. Gleichzeitig befinden sich Felder, Natur und Spazierwege in unmittelbarer Umgebung – ideal für Familien, Spaziergänge oder Freizeitaktivitäten im Grünen.
Insgesamt verbindet die Lage ruhiges Wohnen im gewachsenen Ortsteil mit kurzen Wegen, guter Infrastruktur und einer sehr familienfreundlichen Umgebung.
Infrastruktur (im Umkreis von 5 km):
Apotheke, Lebensmittel-Discount, Allgemeinmediziner, Kindergarten, Grundschule, Hauptschule, Realschule, Gesamtschule, Öffentliche Verkehrsmittel
Kontaktanfrage senden
Über den Anbieter
OM PropTech GmbH
Humboldtstraße 25a
21509 Glinde
Kontakt
| Telefon | - |
| Fax | - |
| Website | www.ohne-makler.net |
Ansprechpartner/in
Privat von Alexander Wolf
Weitere Angebote des Anbieters
8
Großzügige 3-Zimmer-Wohnung, frisch modernisiert, ...
Wohnung
39108 Magdeburg
Großzügige 3-Zimmer-Altbauwohnung – frisch modernisiert, mit Stuck, Wannenbad, Duschbad und Gäste-WC – ideal für Familien Diese großzügige Vierzimmerwohnung in einem klassischen Altbau steht ab 01.04.2026 zur Verfügung ...
870 €
Kaltmiete (netto)
92 m²
Wohnfläche
3
Zimmer
12
Kernsaniert 2025: 3 Zi (96,5 m²) mit EBK, 2 Bädern, ...
Wohnung
16321 Berlin
Bei der Immobilie handelt es sich um eine 3-Zimmer-Wohnung mit hohen Decken aus dem Jahr 1932, welche in 2025 kernsaniert wurde. Die Wohnung befindet sich im EG (Hochparterre), ist modern und offen gestaltet. In der ...
1.400 €
Kaltmiete (netto)
96,5 m²
Wohnfläche
4
Zimmer
42
Einfamilienhaus mit 6 Zimmern - 126m2 - zentrale Lage ...
Haus
91327 Gößweinstein
Von privat – keine Maklerprovision Einfamilienhaus in zentraler Lage von Gössweinstein – nur ca. 300 Meter zur Basilika und zum Ortszentrum. Die Immobilie bietet ca. 126 m² Wohnfläche auf 3 Etagen sowie ca. 25 m² ...
99.000 €
Kaufpreis
126 m²
Wohnfläche
6
Zimmer
25
Exklusive Doppelhaushälfte - modern & ruhig
Haus
82166 Gräfelfing
Diese ansprechende Doppelhaushälfte besticht durch ihre ruhige Lage in einem gewachsenen Wohnumfeld sowie durch ihren nahezu neuwertigen Zustand. Eine durchdachte und großzügige Raumgestaltung sorgt in Kombination mit ...
3.500 €
Kaltmiete (netto)
180 m²
Wohnfläche
6
Zimmer
9
Traumhafte 3-Zi-EG-Whg. mit 2 Terrassen
Wohnung
60599 Frankfurt am Main
In einem sehr gepflegten 4 Parteienhaus mit exzellenter Mieterstruktur befindet sich im Erdgeschoß diese perfekt geschnittene 3 Zimmerwohnung mit 80 m² sowie einer Süd- und einer Nordterrasse mit insgesamt 12 m². Sie ...
1.490 €
Kaltmiete (netto)
80 m²
Wohnfläche
3
Zimmer