***Zeitlos schön - Zweifamilienhaus als DHH_Zusammen bauen gemeinsam wohnen 2. Hausanteil ***
597.380 €
Kaufpreis
160 m²
Wohnfläche
50 m²
Nutzfläche
5
Zimmer
immobilien.de Nr.: 9524096
Objektnummer: AMA_260321_La2
Kaufpreis
| Kaufpreis | 597.380 € |
Wohnfläche, Grundstück & Bausubstanz
| Wohnfläche | 160 m² |
| Nutzfläche | 50 m² |
| Grundstücksfläche | 380 m² |
| Zimmer | 5 |
| Baujahr | 2026 |
| Verfügbar ab | 2026 |
| Zustand | Projektiert |
Energie
| Energietyp | KfW-40 |
| Heizungsart | Zentralheizung |
| Energieträger/Befeuerung | Luft-Wärme-Pumpe |
Beschreibung der Immobilie
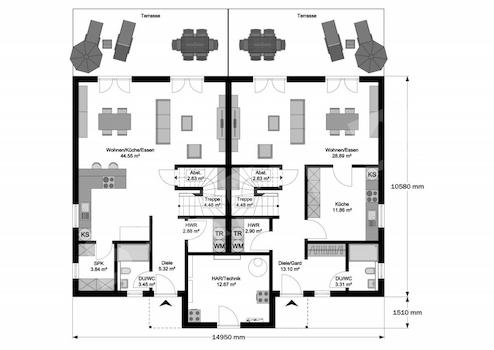
Das hier angebotene Haus hat eine Netto-Raumfläche von insgesamt ca. 155 m², Effizienzhaus-Klasse 40 plus, inkl. Photovoltaikanlage und Batteriespeicher. Es handelt sich um den Anteil rechts. Sie haben dann einen gemeinsamen Technikraums und profitieren vom besseren Kaufpreis.
Der Haustyp DOPPELHAUS - so baut man heute. Geplant als Zweifamilienhaus, Sie können dabei den 2. Anteil dazu kaufen, vermieten, oder gemeinsam mit Freunden/Familie bauen. Der Kaufpreis ist für das Haus als fastfertiges Haus inkl. Grundstücksanteil.
Sie benötigen für den finalen Hausbau einen Partner, da dieses Haus als Zweifamilienhaus gebaut wird.
In vielen Neubaugebieten werden vermehrt Grundstücke für eine Doppelhausbebauung ausgeschrieben. Damit Sie hier die vollen Synergien nutzen können, planen und bauen wir für Sie Ihr Doppelhaus ganz nach Ihren Wünschen und Vorstellungen - auf kleinstem Raum mit größtmöglicher Platzausnutzung. Sie haben für den Bau Ihrer Doppelhaushälfte eine große Auswahl an Möglichkeiten, wie der Stil Ihres Hauses innen und außen gestaltet sein soll.
Der STREIF-Ratenzuschuss im Überblick:
12 Monate x 10 Jahre x 200,00 EUR STREIF-Ratenzuschuss
Wir unterstützen Sie beim Kauf Ihres Eigenheimes.
Sichern Sie sich jetzt den STREIF-Ratenzuschuss beim Hauskauf. Mit dem STREIF-Ratenzuschuss beteiligt STREIF sich 10 Jahre lang mit 200,00 EUR an Ihrer monatlichen Finanzierungsrate.
STREIF-Energiespar-Häuser sind für die Effizienzhaus-Klasse 40 plus ausgestattet. Gerne stellen wir für Ihr Haus eine Ökobilanz (KFWG) aus.
Das Haus ist als QNG mit den 5 Zimmern geplant. Sie erhalten dann Sonderkonditionen für Ihren Bau. Informieren Sie sich gerne dazu.
Wir beraten Sie gerne beim Hauskauf! Sprechen Sie uns an: 0176-34990349
Der Haustyp DOPPELHAUS - so baut man heute. Geplant als Zweifamilienhaus, Sie können dabei den 2. Anteil dazu kaufen, vermieten, oder gemeinsam mit Freunden/Familie bauen. Der Kaufpreis ist für das Haus als fastfertiges Haus inkl. Grundstücksanteil.
Sie benötigen für den finalen Hausbau einen Partner, da dieses Haus als Zweifamilienhaus gebaut wird.
In vielen Neubaugebieten werden vermehrt Grundstücke für eine Doppelhausbebauung ausgeschrieben. Damit Sie hier die vollen Synergien nutzen können, planen und bauen wir für Sie Ihr Doppelhaus ganz nach Ihren Wünschen und Vorstellungen - auf kleinstem Raum mit größtmöglicher Platzausnutzung. Sie haben für den Bau Ihrer Doppelhaushälfte eine große Auswahl an Möglichkeiten, wie der Stil Ihres Hauses innen und außen gestaltet sein soll.
Der STREIF-Ratenzuschuss im Überblick:
12 Monate x 10 Jahre x 200,00 EUR STREIF-Ratenzuschuss
Wir unterstützen Sie beim Kauf Ihres Eigenheimes.
Sichern Sie sich jetzt den STREIF-Ratenzuschuss beim Hauskauf. Mit dem STREIF-Ratenzuschuss beteiligt STREIF sich 10 Jahre lang mit 200,00 EUR an Ihrer monatlichen Finanzierungsrate.
STREIF-Energiespar-Häuser sind für die Effizienzhaus-Klasse 40 plus ausgestattet. Gerne stellen wir für Ihr Haus eine Ökobilanz (KFWG) aus.
Das Haus ist als QNG mit den 5 Zimmern geplant. Sie erhalten dann Sonderkonditionen für Ihren Bau. Informieren Sie sich gerne dazu.
Wir beraten Sie gerne beim Hauskauf! Sprechen Sie uns an: 0176-34990349
Ausstattungsmerkmale
| Anzahl der Etagen im Haus | 2 |
| Küche | Offene Küche |
| Bad | 2 |
| Bad | Dusche, Wanne, Fenster |
| Boden | Fliesen |
| Terrassen | 1 |
| Barrierefrei |
Die gehobene Ausstattung dieses Doppelhauses lässt keine Wünsche offen. Sie profitieren von einer modernen Fußbodenheizung, die mit einer umweltfreundlichen Wärmepumpe betrieben wird - eine nachhaltige Befeuerungsart, die nicht nur Ihre Energiekosten senkt, sondern auch Ihr Zuhause angenehm temperiert. Die Auswahl der Bodenbeläge aus Fliesen und individuellen Wünschen sorgt nicht nur für eine ansprechende Optik, sondern auch für eine einfache Pflege und Langlebigkeit. Die Bäder sind mit einer Dusche, einer Wanne und einem Fenster ausgestattet, und zusätzlich steht Ihnen ein Gäste-WC zur Verfügung, was den Komfort für Ihre Familie und Gäste erhöht.
STREIF-Häuser erfüllen bereits im Standard die Effizienzhaus-Klasse KfW40PLUS.
Die STREIF-Passiv-Haus-Wände, eine effiziente Heiztechnik mit integrierter Wohnraumlüftung und Wärmerückgewinnung garantieren einen geringen Energieverbrauch und ein fantastisches Raumklima, das insbesondere Allergiker aufatmen lässt.
STREIF Leistungen sind MEHR WERT - schon im Grundpreis enthalten!
- 22-monatige Festpreisgarantie
- inkl. individuelle Grundrissgestaltung und Raumaufteilung
- inkl. gedämmte Fundamentplatte
- inkl. Photovoltaikanlage (6,72 kWp) inkl. Batteriespeicher
- inkl. Wärmepumpen-Technologie mit integrierter Lüftungsanlage mit Wärmerückgewinnung
- inkl. Haustür von KERA und Fenster von Porta/Kömmerling
- inkl. Massivholz-Geschosstreppe aus eigener Produktion
- inkl. Sanitärobjekte von Markenherstellern
- inkl. Elektroinstallation
- inkl. Gütesiegel vom TÜV Rheinland- (schadstoffgeprüfte Materialien)
- inkl.. KfW-Berechnungen, Nachweise & Anträge
Was wir Ihnen sonst noch bieten:
Kostenlose Bauberatung inkl. Grundrissplanung
Ermittlung der Gesamt-Investition Ihres Bauvorhabens
Finanzierungs - & Fördermittelberatung
Die hohe Wertigkeit und Langlebigkeit eines STREIF-Energiespar-Hauses wird durch zahlreiche Auszeichnungen, Qualitäts- und Gütesiegel unabhängiger Institute und Verbände dokumentiert.
Der Angebotspreis ist inklusive Grundstück und bezieht sich auf die Standard-Ausbaustufe Fast-Fertig-Plus (Technikfertig inkl. Bäder). Somit wären Ihre Eigenleistungen: Malerarbeiten, Bodenbeläge und die Innentüren. Selbstverständlich können wir Ihr Haus auch schlüsselfertig / bezugsfertig errichten.
STREIF-Häuser erfüllen bereits im Standard die Effizienzhaus-Klasse KfW40PLUS.
Die STREIF-Passiv-Haus-Wände, eine effiziente Heiztechnik mit integrierter Wohnraumlüftung und Wärmerückgewinnung garantieren einen geringen Energieverbrauch und ein fantastisches Raumklima, das insbesondere Allergiker aufatmen lässt.
STREIF Leistungen sind MEHR WERT - schon im Grundpreis enthalten!
- 22-monatige Festpreisgarantie
- inkl. individuelle Grundrissgestaltung und Raumaufteilung
- inkl. gedämmte Fundamentplatte
- inkl. Photovoltaikanlage (6,72 kWp) inkl. Batteriespeicher
- inkl. Wärmepumpen-Technologie mit integrierter Lüftungsanlage mit Wärmerückgewinnung
- inkl. Haustür von KERA und Fenster von Porta/Kömmerling
- inkl. Massivholz-Geschosstreppe aus eigener Produktion
- inkl. Sanitärobjekte von Markenherstellern
- inkl. Elektroinstallation
- inkl. Gütesiegel vom TÜV Rheinland- (schadstoffgeprüfte Materialien)
- inkl.. KfW-Berechnungen, Nachweise & Anträge
Was wir Ihnen sonst noch bieten:
Kostenlose Bauberatung inkl. Grundrissplanung
Ermittlung der Gesamt-Investition Ihres Bauvorhabens
Finanzierungs - & Fördermittelberatung
Die hohe Wertigkeit und Langlebigkeit eines STREIF-Energiespar-Hauses wird durch zahlreiche Auszeichnungen, Qualitäts- und Gütesiegel unabhängiger Institute und Verbände dokumentiert.
Der Angebotspreis ist inklusive Grundstück und bezieht sich auf die Standard-Ausbaustufe Fast-Fertig-Plus (Technikfertig inkl. Bäder). Somit wären Ihre Eigenleistungen: Malerarbeiten, Bodenbeläge und die Innentüren. Selbstverständlich können wir Ihr Haus auch schlüsselfertig / bezugsfertig errichten.
Sonstige Informationen
Achtung: Klinkeraktion ist verlängert!
Jetzt mit Fördermitteln ab 1,57% ins Eigenheim mit Ratenzuschuss.
Sie brauchen mehr Platz.
STREIF Haus - der Pionier der deutschen Fertighausbranche
Die langjährige Firmentradition des Unternehmens reicht bis in das Jahr 1929 zurück. In den 50er und 60er Jahren wurde in Deutschland schnell und viel Wohnraum für Familien benötigt, seitdem konzentrierte sich das Unternehmen auf die Entwicklung und Produktion von Fertighaustypen, die im Werk in großen Stückzahlen hergestellt werden konnten. So kann das Unternehmen auf 90.000 gebaute Hausobjekte zurückblicken und sich zu Recht als Pionier der deutschen Fertighausbranche bezeichnen.
Die neuen Energiesparhäuser - So baut man heute.
Unser Anspruch ist es, in enger Partnerschaft mit unseren Kunden langlebige Häuser zu bauen, mit einer hohen architektonischen Qualität, individuell geplant und dabei energieeffizient und ressourcenschonend. Jedes STREIF-Haus ist einzigartig und wird speziell für jeden Kunden "maßgeschneidert" und gebaut. Passend zu den persönlichen Wünschen, dem vorgegebenen Budget und dem vorhandenen Grundstück planen und bauen wir jedes Haus mit viel Liebe zum Detail.
Jetzt mit Fördermitteln ab 1,57% ins Eigenheim mit Ratenzuschuss.
Sie brauchen mehr Platz.
STREIF Haus - der Pionier der deutschen Fertighausbranche
Die langjährige Firmentradition des Unternehmens reicht bis in das Jahr 1929 zurück. In den 50er und 60er Jahren wurde in Deutschland schnell und viel Wohnraum für Familien benötigt, seitdem konzentrierte sich das Unternehmen auf die Entwicklung und Produktion von Fertighaustypen, die im Werk in großen Stückzahlen hergestellt werden konnten. So kann das Unternehmen auf 90.000 gebaute Hausobjekte zurückblicken und sich zu Recht als Pionier der deutschen Fertighausbranche bezeichnen.
Die neuen Energiesparhäuser - So baut man heute.
Unser Anspruch ist es, in enger Partnerschaft mit unseren Kunden langlebige Häuser zu bauen, mit einer hohen architektonischen Qualität, individuell geplant und dabei energieeffizient und ressourcenschonend. Jedes STREIF-Haus ist einzigartig und wird speziell für jeden Kunden "maßgeschneidert" und gebaut. Passend zu den persönlichen Wünschen, dem vorgegebenen Budget und dem vorhandenen Grundstück planen und bauen wir jedes Haus mit viel Liebe zum Detail.
Karte wird geladen...
Objektstandort
30659 Hannover
Lage & Infrastruktur
Objektstandort
30659 Hannover
Dieses familienfreundliche Grundstück liegt in einer ruhigen und etablierten Wohngegend im grünen Hannover Lahe -. Die Umgebung zeichnet sich durch eine harmonische Nachbarschaft, viel Natur und ein angenehmes Wohnumfeld aus - perfekt für Familien, die Wert auf Lebensqualität und ein sicheres Zuhause legen.
Die weitläufigen Grünflächen und das nahegelegene Naherholungsgebiet laden zu Spaziergängen, Radtouren oder entspannten Nachmittagen im Freien ein - ideal für Kinder und naturverbundene Familien. Spielplätze und Freizeitmöglichkeiten befinden sich ebenfalls in der Umgebung.
Auch die Infrastruktur lässt keine Wünsche offen: Schulen, Kitas, Sportvereine und Einkaufsmöglichkeiten sind schnell erreichbar. Die Anbindung an den öffentlichen Nahverkehr sowie die Nähe zu wichtigen Verkehrsachsen sorgen für eine unkomplizierte Erreichbarkeit der Innenstadt und des Umlands.
Ein idealer Ort, um Wurzeln zu schlagen und der Familie ein Zuhause mit hoher Lebensqualität zu bieten - naturnah, ruhig und dennoch gut angebunden.
Genießen Sie die Vorzüge eines ruhigen Wohnviertels mit einer freundlichen Nachbarschaft, ohne auf die Annehmlichkeiten der Stadt verzichten zu müssen. Das Grundstück bietet Ihnen somit die perfekte Kombination aus Komfort, Natur und hervorragender Infrastruktur - Ihr neues Zuhause wartet auf Sie!
.
Bebauung gemäß Umgebungsbebauung. 1,5-geschossige Bauweise möglich. Siehe auch die andere Anzeige. Es fällt keine Maklercourtage an
Die weitläufigen Grünflächen und das nahegelegene Naherholungsgebiet laden zu Spaziergängen, Radtouren oder entspannten Nachmittagen im Freien ein - ideal für Kinder und naturverbundene Familien. Spielplätze und Freizeitmöglichkeiten befinden sich ebenfalls in der Umgebung.
Auch die Infrastruktur lässt keine Wünsche offen: Schulen, Kitas, Sportvereine und Einkaufsmöglichkeiten sind schnell erreichbar. Die Anbindung an den öffentlichen Nahverkehr sowie die Nähe zu wichtigen Verkehrsachsen sorgen für eine unkomplizierte Erreichbarkeit der Innenstadt und des Umlands.
Ein idealer Ort, um Wurzeln zu schlagen und der Familie ein Zuhause mit hoher Lebensqualität zu bieten - naturnah, ruhig und dennoch gut angebunden.
Genießen Sie die Vorzüge eines ruhigen Wohnviertels mit einer freundlichen Nachbarschaft, ohne auf die Annehmlichkeiten der Stadt verzichten zu müssen. Das Grundstück bietet Ihnen somit die perfekte Kombination aus Komfort, Natur und hervorragender Infrastruktur - Ihr neues Zuhause wartet auf Sie!
.
Bebauung gemäß Umgebungsbebauung. 1,5-geschossige Bauweise möglich. Siehe auch die andere Anzeige. Es fällt keine Maklercourtage an
Kontaktanfrage senden
Über den Anbieter
STREIF Haus GmbH
Josef-Streif-Straße 1
54595 Weinsheim
Kontakt
| Telefon | 06551 12 00 |
| Mobil | +49 174 6403310 |
| Website | www.streif.de |
Ansprechpartner/in
Herr Andreas Maurer
Weitere Angebote des Anbieters
33
***Zeitlos schön - Zweifamilienhaus als Investition ...
Haus
30659 Hannover
Das hier angebotene Haus hat eine Netto-Raumfläche von insgesamt ca. 220 m², Effizienzhaus-Klasse 40 plus, inkl. Photovoltaikanlage und Batteriespeicher. Der Haustyp GENERATION als Individuelle Planung bietet Ihnen ein ...
973.680 €
Kaufpreis
220 m²
Wohnfläche
8
Zimmer
38
***Zeitlos schön - Zweifamilienhaus als DHH_Zusammen ...
Haus
30659 Hannover
Das hier angebotene Haus hat eine Netto-Raumfläche von insgesamt ca. 155 m², Effizienzhaus-Klasse 40 plus, inkl. Photovoltaikanlage und Batteriespeicher. Es handelt sich um den Anteil rechts. Sie haben dann einen ...
597.380 €
Kaufpreis
160 m²
Wohnfläche
5
Zimmer
38
***Zeitlos schön - Zweifamilienhaus als DHH_Zusammen ...
Haus
30659 Hannover
Das hier angebotene Haus hat eine Netto-Raumfläche von insgesamt ca. 155 m², Effizienzhaus-Klasse 40 plus, inkl. Photovoltaikanlage und Batteriespeicher. Es handelt sich um den Anteil links. Der Haustyp DOPPELHAUS - so ...
597.380 €
Kaufpreis
160 m²
Wohnfläche
5
Zimmer
13
Stadtnah & grün wohnen
Haus
90480 Nürnberg
Auf 143 m² präsentiert sich das behagliche und moderne Familien-Zuhause. Im Obergeschoss punktet die Grundrissplanung mit zwei großen Kindernzimmern, einem Schlafzimmer mit Ankleide und einem Familienbad. Auf 40 m² ...
1.034.795 €
Kaufpreis
143 m²
Wohnfläche
5
Zimmer
7
Familienfreundlich & naturnah wohnen - Heroldsberg
Haus
90562 Heroldsberg
Erfüllen Sie sich Ihren Traum vom Wohnen! Der Wohn-/Ess- und Kochbereich bietet auf 34 m² viel Platz zum Wohnen und Leben. Ein Zusatzraum, der als Büro, Gäste- oder Hobbyraum genutzt werden kann, ermöglicht Ihnen eine ...
854.512 €
Kaufpreis
143 m²
Wohnfläche
5
Zimmer