Familienglück im Erstbezug: Modernes EFH in naturnaher Lage bei Aichach
599.000 €
Kaufpreis
165 m²
Wohnfläche
5
Zimmer
immobilien.de Nr.: 9522624
Objektnummer: hl123
Kaufpreis
| Kaufpreis | 599.000 € |
| Maklerprovision | 2,38% |
| Stellplatz Carport Kaufpreis | 0 € |
Wohnfläche, Grundstück & Bausubstanz
| Wohnfläche | 165 m² |
| Gesamtfläche | 165 m² |
| Grundstücksfläche | 318 m² |
| Zimmer | 5 |
| Baujahr | 2024 |
| Verfügbar ab | nach Vereinbarung |
| Zustand | Erstbezug |
Energie
| Energieausweistyp | Bedarfsausweis |
| Gültig bis | 2034-05-15 |
| Baujahr (laut Energieausweis) | 2024 |
| Energieeffizienzklasse | A+ |
| Endenergiebedarf | 11.10 |
| Heizungsart | Fußbodenheizung |
| Wesentlicher Energieträger | Umweltwaerme |
Beschreibung der Immobilie
In ruhiger Ortsrandlage von Oberschneitbach bei Aichach liegt dieses charmante Einfamilienhaus zum Erstbezug auf einem ca. 318 m² sonnigen Grundstück. Die ca. 160 m² Wohnfläche verteilen sich auf zwei Etagen mit 5 Zimmern und 2 ausgebauten Räumen im Untergeschoss – ideal für Paare oder Familien.
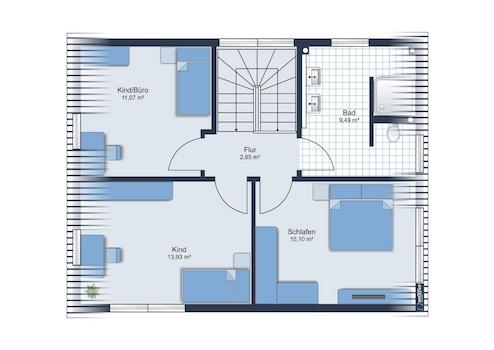
Im Erdgeschoss befinden sich der Flur, ein separates WC, ein Abstellraum, ein Arbeitszimmer sowie der helle Wohn-/Essbereich mit offener Küche und Zugang zur Terrasse und in den Garten. Im Obergeschoss erwarten Sie ein großzügiges Badezimmer sowie drei flexibel nutzbare Zimmer.
2 Carportstellplätze sind vorhanden.
Im Erdgeschoss befinden sich der Flur, ein separates WC, ein Abstellraum, ein Arbeitszimmer sowie der helle Wohn-/Essbereich mit offener Küche und Zugang zur Terrasse und in den Garten. Im Obergeschoss erwarten Sie ein großzügiges Badezimmer sowie drei flexibel nutzbare Zimmer.
2 Carportstellplätze sind vorhanden.
Ausstattungsmerkmale
| Anzahl der Etagen im Haus | 3 |
| Küche | Offene Küche |
| Bad | Dusche, Fenster |
| Boden | Fliesen |
| Garten | |
| Terrassen | 1 |
| Carport | 2 |
| Keller |
- freistehendes Einfamilienhaus (Holzhaus verkleidet, voll unterkellert)
- ca. 165 m² Wohnfläche auf einem ca. 318 m² sonnigen Grundstück
- ländliche und ruhige Lage
- lichtdurchfluteter Ess- und Wohnbereich mit offen geplanter Küche
- inklusive Einbauküche
- durchdachte Raumaufteilung
- Wärmepumpe mit Fußbodenheizung
- Lüftungsanlage
- 3fach verglaste Fenster
- 2 Carportstellplätze
- Erstbezug
- ca. 165 m² Wohnfläche auf einem ca. 318 m² sonnigen Grundstück
- ländliche und ruhige Lage
- lichtdurchfluteter Ess- und Wohnbereich mit offen geplanter Küche
- inklusive Einbauküche
- durchdachte Raumaufteilung
- Wärmepumpe mit Fußbodenheizung
- Lüftungsanlage
- 3fach verglaste Fenster
- 2 Carportstellplätze
- Erstbezug
Sonstige Informationen
Kontaktieren Sie uns gerne für einen Besichtigungstermin oder weitere Informationen.
Karte wird geladen...
Objektstandort
86551 Aichach / Oberschneitbach
Lage & Infrastruktur
Objektstandort
86551 Aichach / Oberschneitbach
Oberschneitbach liegt im Landkreis Aichach-Friedberg, mittig im Städtedreieck München-Augsburg-Ingolstadt, und ist ein Ortsteil von Aichach.
Die Kreisstadt Aichach erreichen Sie bequem in ca. 8 Autominuten. Die von einer Vielzahl an historischen Sehenswürdigkeiten durch die Wittelsbacher geprägte Aichacher Altstadt und Umgebung lädt mit zahlreichen Gasthäusern, Biergärten, Restaurants und Cafés zum Verweilen ein. Vieles für den täglichen Bedarf finden Sie in unmittelbarer Nähe und auch die ärztliche Versorgung durch ein großes Angebot von Fachärzten und dem Aichacher Krankenhaus ist gewährleistet.
Auch für alle Sportbegeisterten finden sich in und um Aichach zahlreiche Angebote, um in Eigeninitiative oder im Verein organisiert die Freizeit zu gestalten.
Die A8 (München - Stuttgart) erreichen Sie zügig über nah gelegene B300 und die Regionalbahn bringt Sie komfortabel in die Universitätsstadt Augsburg oder nach Ingolstadt.
Die Kreisstadt Aichach erreichen Sie bequem in ca. 8 Autominuten. Die von einer Vielzahl an historischen Sehenswürdigkeiten durch die Wittelsbacher geprägte Aichacher Altstadt und Umgebung lädt mit zahlreichen Gasthäusern, Biergärten, Restaurants und Cafés zum Verweilen ein. Vieles für den täglichen Bedarf finden Sie in unmittelbarer Nähe und auch die ärztliche Versorgung durch ein großes Angebot von Fachärzten und dem Aichacher Krankenhaus ist gewährleistet.
Auch für alle Sportbegeisterten finden sich in und um Aichach zahlreiche Angebote, um in Eigeninitiative oder im Verein organisiert die Freizeit zu gestalten.
Die A8 (München - Stuttgart) erreichen Sie zügig über nah gelegene B300 und die Regionalbahn bringt Sie komfortabel in die Universitätsstadt Augsburg oder nach Ingolstadt.
Kontaktanfrage senden
Kontakt
| Telefon | 004982518653622 |
| Mobil | 00491751183305 |
| Website | www.immo8.de |
Ansprechpartner/in
Frau Heidi Lohberger
Weitere Angebote des Anbieters
15
Hier überzeugen Lage und Preis. Erdgeschosswohnung mit ...
Wohnung
86529 Schrobenhausen
Diese schön geschnittene 5-Zimmer-Wohnung im Erdgeschoss in sehr ruhiger Wohngegend von Schrobenhausen besticht neben vielen weiteren Vorzügen vor allem durch ihren attraktiven Preis und ihre tolle Lage. Bei dieser ...
350.000 €
Kaufpreis
101 m²
Wohnfläche
5
Zimmer
17
Familienglück im Erstbezug: Modernes EFH in naturnaher ...
Haus
86551 Aichach / Oberschneitbach
In ruhiger Ortsrandlage von Oberschneitbach bei Aichach liegt dieses charmante Einfamilienhaus zum Erstbezug auf einem ca. 318 m² sonnigen Grundstück. Die ca. 160 m² Wohnfläche verteilen sich auf zwei Etagen mit 5 ...
599.000 €
Kaufpreis
165 m²
Wohnfläche
5
Zimmer
16
Natur pur! Hier verwirklicht sich Ihr Traum vom ...
Haus
86551 Aichach / Oberschneitbach
In ruhiger Ortsrandlage von Oberschneitbach bei Aichach liegt dieses charmante Einfamilienhaus zum Erstbezug auf einem ca. 287 m² sonnigen Grundstück. Die ca. 110 m² Wohnfläche verteilen sich auf zwei Etagen mit 4 ...
499.000 €
Kaufpreis
110 m²
Wohnfläche
4
Zimmer
22
Perfekt für Familien: Sonniges Reihenendhaus in ...
Haus
85276 Pfaffenhofen an der Ilm
Dieses charmante Reiheneckhaus liegt in einer ruhigen, familienfreundlichen Gegend. Auf einem ca. 214 m² großen Grundstück befinden sich ca. 130 m² Wohnfläche über drei Etagen. Das 1991 erbaute, massive und voll ...
749.000 €
Kaufpreis
130 m²
Wohnfläche
5
Zimmer
14
Familienglück & Kapitalanlage: Großzügiges Zuhause mit ...
Haus
86565 Gachenbach / Peutenhausen
Willkommen in Ihrem neuen Zuhause in Gachenbach / Peutenhausen! Dieses charmante Einfamilienhaus mit Einliegerwohnung auf einem großzügigen Grundstück von ca. 843 m² verbindet klassischen Stil mit moderner ...
549.000 €
Kaufpreis
169 m²
Wohnfläche
6
Zimmer