*** Interessante Immobilie mit vielfältigen Nutzungsmöglichkeiten! ***
686.000 €
Kaufpreis
292 m²
Wohnfläche
9
Zimmer
immobilien.de Nr.: 9522089
Objektnummer: 796509
Kaufpreis
| Kaufpreis | 686.000 € |
| Maklerprovision | 3,57 % (inkl. MwSt.) |
Wohnfläche, Grundstück & Bausubstanz
| Wohnfläche | 292 m² |
| Grundstücksfläche | 769 m² |
| Zimmer | 9 |
| Baujahr | 2015 |
| Verfügbar ab | nach Absprache |
| Zustand | Gepflegt |
Energie
| Energieausweistyp | Bedarfsausweis |
| Ausstellungsdatum | 09. 10. 2025 |
| Baujahr (laut Energieausweis) | 2015 |
| Energieeffizienzklasse | A |
| Endenergiebedarf | 45.5 |
| Wesentlicher Energieträger | Strom |
| Energieträger/Befeuerung | Elektro |
Beschreibung der Immobilie
Diese Immobilie punktet mit außergewöhnlich viel Platz und vielen Nutzungsmöglichkeiten.
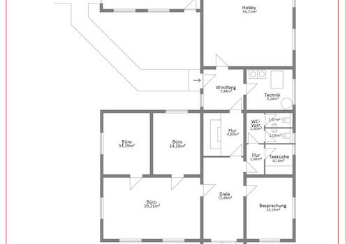
Im Erdgeschoss befindet sich derzeit ein Büro. Durch einen separaten, ebenerdigen Eingang eignet sich dieser Teil des Hauses ideal für Praxisräume oder ähnliches. Auch eine separate Wohnung zur Vermietung oder Wohnen mit den Eltern ist hier realisierbar.
Über einen zweiten Eingang gelangt man in den privaten Bereich.
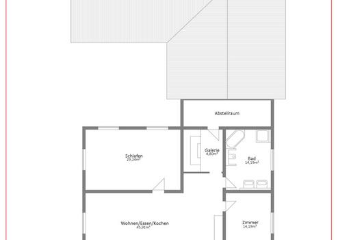
Die Wohnung im Obergeschoss präsentiert sich mit sehr großzügig geschnittenen Räumen und bietet Wohngenuss auf einer Ebene.
Das Dachgeschoss ist komplett ausgebaut und verfügt über einen offenen Wohnbereich mit einem großzügiges Bad, ideal für Ihre Teenager oder Ihre Gäste. Beide Wohneinheiten sind durch eine Tür miteinander verbunden.
Ein besonderes Highlight ist der im Erdgeschoss gelegene, überdimensional große Wellness- und Hobbyraum mit Sauna, Salzgrotte und Wellnessdusche. Dort gibt es auch noch Platz für einen Whirlpool, eine Tischtennisplatte oder einen Billardtisch.
Zur Immobilie gehört eine Doppelgarage mit großzügigem Stauraum im Dachgeschoss.
Der Garten ist sehr pflegeleicht angelegt und erfordert wenig Zeitaufwand.
Die naturnahe Randlage ist ideal für Vierbeiner und Sportbegeisterte. Direkt neben dem Hauseingangsbereich sind Sie im Grünen.
Weitere Angebote unter www.GARANT-IMMO.de
Im Erdgeschoss befindet sich derzeit ein Büro. Durch einen separaten, ebenerdigen Eingang eignet sich dieser Teil des Hauses ideal für Praxisräume oder ähnliches. Auch eine separate Wohnung zur Vermietung oder Wohnen mit den Eltern ist hier realisierbar.
Über einen zweiten Eingang gelangt man in den privaten Bereich.
Die Wohnung im Obergeschoss präsentiert sich mit sehr großzügig geschnittenen Räumen und bietet Wohngenuss auf einer Ebene.
Das Dachgeschoss ist komplett ausgebaut und verfügt über einen offenen Wohnbereich mit einem großzügiges Bad, ideal für Ihre Teenager oder Ihre Gäste. Beide Wohneinheiten sind durch eine Tür miteinander verbunden.
Ein besonderes Highlight ist der im Erdgeschoss gelegene, überdimensional große Wellness- und Hobbyraum mit Sauna, Salzgrotte und Wellnessdusche. Dort gibt es auch noch Platz für einen Whirlpool, eine Tischtennisplatte oder einen Billardtisch.
Zur Immobilie gehört eine Doppelgarage mit großzügigem Stauraum im Dachgeschoss.
Der Garten ist sehr pflegeleicht angelegt und erfordert wenig Zeitaufwand.
Die naturnahe Randlage ist ideal für Vierbeiner und Sportbegeisterte. Direkt neben dem Hauseingangsbereich sind Sie im Grünen.
Weitere Angebote unter www.GARANT-IMMO.de
Ausstattungsmerkmale
| Küche | Einbauküche |
| Bad | 3 |
| Boden | Fliesen |
EG: Eingang Süd, Diele, 3 Büroräume, Besprechungsraum,
Teeküche, zwei WC's, davon eins mit Dusche
Eingang West, Windfang, Technikraum/Waschküche,
Hobby/Wellnessraum mit Sauna, Dusche, Salzgrotte
OG: Galerie, Wohnraum mit offener Küche, Kinderzimmer,
Schlafzimmer, Bad, Abstellraum
DG: großer, offener Wohnbereich, Bad
Teeküche, zwei WC's, davon eins mit Dusche
Eingang West, Windfang, Technikraum/Waschküche,
Hobby/Wellnessraum mit Sauna, Dusche, Salzgrotte
OG: Galerie, Wohnraum mit offener Küche, Kinderzimmer,
Schlafzimmer, Bad, Abstellraum
DG: großer, offener Wohnbereich, Bad
Sonstige Informationen
* zwei Hauseingänge
* große Doppelgarage mit viel Stauraum im Dach
* Hobby-/Wellnessraum ca. 56 qm mit Salzgrotte, Sauna und
Wellnessdusche
* Entsalzungsanlage
* Luft-/Wärmepumpe, Fußbodenheizung
* große Doppelgarage mit viel Stauraum im Dach
* Hobby-/Wellnessraum ca. 56 qm mit Salzgrotte, Sauna und
Wellnessdusche
* Entsalzungsanlage
* Luft-/Wärmepumpe, Fußbodenheizung
Karte wird geladen...
Objektstandort
88483 Burgrieden
Lage & Infrastruktur
Objektstandort
88483 Burgrieden
Rot ist eine Ortschaft der Gemeinde Burgrieden im nördlichen Landkreis Biberach in Baden-Württemberg.
Das Wohn-/Geschäftshaus ist zentral gelegen.
In unmittelbarer Nähe gibt es einen Hofladen und eine Bäckerei mit Lebensmitteln für den täglichen Bedarf. Ein Kindergarten, eine Grundschule und Ärzte sind vor Ort.
Durch die nahe gelegene B30 sind Sie schnell in Ulm, Biberach oder sogar am Bodensee.
Das Wohn-/Geschäftshaus ist zentral gelegen.
In unmittelbarer Nähe gibt es einen Hofladen und eine Bäckerei mit Lebensmitteln für den täglichen Bedarf. Ein Kindergarten, eine Grundschule und Ärzte sind vor Ort.
Durch die nahe gelegene B30 sind Sie schnell in Ulm, Biberach oder sogar am Bodensee.
Kontaktanfrage senden
Über den Anbieter
Garant Immobilien AG
Wilhelmstr.5
70182 Stuttgart
Kontakt
| Telefon | 07348/40 740-0 |
| Fax | 07348/40 740-20 |
| Website | www.garant-immo.de |
Ansprechpartner/in
Büro Dornstadt
Weitere Angebote des Anbieters
14
Über den Dingen
Haus
97762 Hammelburg
Die beste Aussicht hat der, der ganz oben ist! Da stört kein Haus, da stört kein Baum. Man hat die Welt um sich herum im Blick und sieht schon sehr zeitig, wenn die Schwiegermutter im Anflug ist. Also, egal ob das gut ...
250.000 €
Kaufpreis
165 m²
Wohnfläche
4
Zimmer
30
Charaktervolles Mehrfamilienhaus, eingebettet in einen ...
Haus
79669 Zell im Wiesental
Dieses wunderschöne Mehrfamilienhaus mit einer faszinierenden Geschichte liegt auf einer sonnigen Hochebene im Naturpark Südschwarzwald und erstreckt sich über ein großzügiges Grundstück von rund 4.303 qm. Die Lage im ...
2.500.000 €
Kaufpreis
740 m²
Wohnfläche
32
Zimmer
5
Moderne Doppelhaushälfte in Top-Lage!!
Haus
79379 Müllheim
Diese moderne Doppelhaushälfte wurde im Jahr 2017 in hochwertiger Fertigbauweise erstellt und bietet Platz für die ganze Familie. Das Haus überzeugt durch eine durchdachte Raumaufteilung sowie ein offenes und ...
585.000 €
Kaufpreis
120 m²
Wohnfläche
4
Zimmer
1
Vielseitig nutzbare Wiesenfläche in Kesselbrunn - ...
Grundstück
86415 Mering
Das angebotene Grundstück ist eine Grünfläche mit der Flurnummer 4825, gelegen im Gewann *Kesselbrunn* in 86415 Mering - Landkreis Aichach-Friedberg. Die Fläche umfasst ca. 13.563 qm und umfasst eine Gesamtgröße von ca ...
keine Angabe
Preis
13.563 m²
Grundstücksfläche
12
Schöne, ansprechende 1 Zimmer-Wohnung
Wohnung
72639 Neuffen
Im Zentrum von Neuffen befindet sich diese kleine besondere Wohneinheit. Gepflegt, gemütlich und mit kleinem Balkon. Gute Lage, mit viel Licht und guter Aussicht. Eine kleine Küchenzeile, ein helles Bad mit Dusche und ...
125.000 €
Kaufpreis
23 m²
Wohnfläche
1
Zimmer