Charaktervolles Mehrfamilienhaus, eingebettet in einen großzügigen Park - geniale Kapitalanlage!
2.500.000 €
Kaufpreis
740 m²
Wohnfläche
32
Zimmer
immobilien.de Nr.: 9523304
Objektnummer: 131127
Kaufpreis
| Kaufpreis | 2.500.000 € |
| Maklerprovision | 4,76 % (inkl. MwSt.) |
Wohnfläche, Grundstück & Bausubstanz
| Wohnfläche | 740 m² |
| Grundstücksfläche | 4.303 m² |
| Zimmer | 32 |
| Baujahr | 1774 |
| Verfügbar ab | vermietet |
| Zustand | Teil Vollsaniert |
Beschreibung der Immobilie
Dieses wunderschöne Mehrfamilienhaus mit einer faszinierenden Geschichte liegt auf einer sonnigen Hochebene im Naturpark Südschwarzwald und erstreckt sich über ein großzügiges Grundstück von rund 4.303 qm. Die Lage im Naturpark bietet ein wahres Paradies für Erholungssuchende und Naturliebhaber.
Die beeindruckende Außenanlage mit weitläufigem Garten, malerischem Weiher und eigener Quelle schafft eine einzigartige Atmosphäre zum Entspannen und Genießen.
Auch die Historie des Hauses ist bemerkenswert: Ursprünglich als Mühle erbaut, wurde das Gebäude im Laufe der Jahrzehnte mehrfach umgenutzt, bevor es Ende der 1990er Jahre mit viel Hingabe umfassend saniert, modernisiert und schließlich zu einem Mehrfamilienhaus umgestaltet wurde.
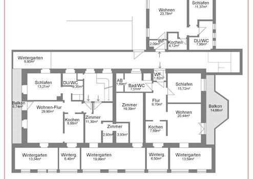
Das Objekt befindet sich heute in einem hervorragenden Zustand und umfasst insgesamt zehn Wohneinheiten mit unterschiedlichen Größen und Zimmeranzahlen.
Die Nutzungsmöglichkeiten sind vielseitig: Derzeit sind sieben Wohnungen fest vermietet, drei weitere werden erfolgreich als Ferienunterkünfte betrieben.
Mit einer Wohnfläche von ca. 736 qm, 15 Außenstellplätzen sowie großzügigen Kellerräumen bietet diese Immobilie ein äußerst attraktives Gesamtpaket.
Das gut ausgelastete Objekt erzielt aktuell jährliche Mieteinnahmen von rund 86.000 Euro zzgl. Nebenkosten - mit weiterem Potenzial nach oben, insbesondere durch Anpassungen an das aktuelle Marktniveau sowie die perspektivische Optimierung der Ferienvermietung.
Ein besonderes Highlight: Zusätzlich zum parkähnlichen Hauptgrundstück gehört ein weiteres Flurstück mit ca. 2.000 qm zur Immobilie. Diese Erweiterung eröffnet zusätzliche Nutzungsmöglichkeiten und steigert das Investitionspotenzial erheblich.
Nutzen Sie diese seltene Gelegenheit und überzeugen Sie sich bei einer unverbindlichen Besichtigung von der Einzigartigkeit dieses außergewöhnlichen Anwesens.
Weitere Angebote unter www.GARANT-IMMO.de
Die beeindruckende Außenanlage mit weitläufigem Garten, malerischem Weiher und eigener Quelle schafft eine einzigartige Atmosphäre zum Entspannen und Genießen.
Auch die Historie des Hauses ist bemerkenswert: Ursprünglich als Mühle erbaut, wurde das Gebäude im Laufe der Jahrzehnte mehrfach umgenutzt, bevor es Ende der 1990er Jahre mit viel Hingabe umfassend saniert, modernisiert und schließlich zu einem Mehrfamilienhaus umgestaltet wurde.
Das Objekt befindet sich heute in einem hervorragenden Zustand und umfasst insgesamt zehn Wohneinheiten mit unterschiedlichen Größen und Zimmeranzahlen.
Die Nutzungsmöglichkeiten sind vielseitig: Derzeit sind sieben Wohnungen fest vermietet, drei weitere werden erfolgreich als Ferienunterkünfte betrieben.
Mit einer Wohnfläche von ca. 736 qm, 15 Außenstellplätzen sowie großzügigen Kellerräumen bietet diese Immobilie ein äußerst attraktives Gesamtpaket.
Das gut ausgelastete Objekt erzielt aktuell jährliche Mieteinnahmen von rund 86.000 Euro zzgl. Nebenkosten - mit weiterem Potenzial nach oben, insbesondere durch Anpassungen an das aktuelle Marktniveau sowie die perspektivische Optimierung der Ferienvermietung.
Ein besonderes Highlight: Zusätzlich zum parkähnlichen Hauptgrundstück gehört ein weiteres Flurstück mit ca. 2.000 qm zur Immobilie. Diese Erweiterung eröffnet zusätzliche Nutzungsmöglichkeiten und steigert das Investitionspotenzial erheblich.
Nutzen Sie diese seltene Gelegenheit und überzeugen Sie sich bei einer unverbindlichen Besichtigung von der Einzigartigkeit dieses außergewöhnlichen Anwesens.
Weitere Angebote unter www.GARANT-IMMO.de
Ausstattungsmerkmale
| Anzahl der Etagen im Haus | 4 |
| Küche | Einbauküche |
| Bad | 32 |
| Boden | Fliesen, Parkett, Laminat |
| Balkone | 1 |
10 Wohneinheiten
* Wohnung 1: ca. 91,57 qm
* Wohnung 2: ca. 47,65 qm
* Wohnung 3: ca. 78,76 qm
* Wohnung 4: ca. 73,80 qm
* Wohnung 5: ca. 44,55 qm
* Wohnung 6: ca. 78,08 qm
* Wohnung 7: ca. 49,34 qm
* Wohnung 8: ca. 82,70 qm
* Wohnung 9: ca. 68,95 qm
* Wohnung 10:ca. 121,10 qm
* 10 Einbauküchen
* Quelle mit Weiher
* parkähnliches Grundstück (Anlage Feng Shui)
* Elektroheizungen
* Wohnung 1: ca. 91,57 qm
* Wohnung 2: ca. 47,65 qm
* Wohnung 3: ca. 78,76 qm
* Wohnung 4: ca. 73,80 qm
* Wohnung 5: ca. 44,55 qm
* Wohnung 6: ca. 78,08 qm
* Wohnung 7: ca. 49,34 qm
* Wohnung 8: ca. 82,70 qm
* Wohnung 9: ca. 68,95 qm
* Wohnung 10:ca. 121,10 qm
* 10 Einbauküchen
* Quelle mit Weiher
* parkähnliches Grundstück (Anlage Feng Shui)
* Elektroheizungen
Sonstige Informationen
* KEIN Denkmalschutz!
* umfangreiche Sanierung des Gebäudes Ende der 1990er Jahre
* Wohnungen überwiegend mit Balkon oder Wintergarten
* Umsetzung einer Photovoltaikanlage möglich (Leitungen
bereits vorhanden)
* 1997: Fenster: Holz, zweifach verglast (Sprossenfenster),
Dachfenster: Kunststoff innen, Alu außen
* 1997: Dachsanierung
* Ende der 90er Jahre: komplette Sanierung Elektroinstallationen,
inklusive Elektroheizung
* 2000: alle Bäder saniert, überwiegend mit Fenstern
* umfangreiche Sanierung des Gebäudes Ende der 1990er Jahre
* Wohnungen überwiegend mit Balkon oder Wintergarten
* Umsetzung einer Photovoltaikanlage möglich (Leitungen
bereits vorhanden)
* 1997: Fenster: Holz, zweifach verglast (Sprossenfenster),
Dachfenster: Kunststoff innen, Alu außen
* 1997: Dachsanierung
* Ende der 90er Jahre: komplette Sanierung Elektroinstallationen,
inklusive Elektroheizung
* 2000: alle Bäder saniert, überwiegend mit Fenstern
Karte wird geladen...
Objektstandort
79669 Zell im Wiesental
Lage & Infrastruktur
Objektstandort
79669 Zell im Wiesental
Gresgen ist ein idyllischer Ortsteil von Zell im Wiesental und liegt auf etwa 700 Metern Höhe.
Die Anbindung ist komfortabel: Mit dem Auto oder der Buslinie gelangen Sie von Gresgen entweder ins Kleine Wiesental (Tegernau) oder ins Große Wiesental nach Zell. Von dort besteht ein sehr guter Bahnanschluss über Schopfheim und Lörrach bis ins nahegelegene Basel (Schweiz).
Die Infrastruktur mit Einkaufsmöglichkeiten, Ärzten, Therapeuten und weiteren Versorgungseinrichtungen finden Sie im rund 6 km entfernten Zell im Wiesental.
Gresgen steht für naturnahes Wohnen in einer herrlichen Umgebung - ein anerkannter Erholungsort, der Ruhe, Natur und Lebensqualität auf besondere Weise verbindet.
Die Anbindung ist komfortabel: Mit dem Auto oder der Buslinie gelangen Sie von Gresgen entweder ins Kleine Wiesental (Tegernau) oder ins Große Wiesental nach Zell. Von dort besteht ein sehr guter Bahnanschluss über Schopfheim und Lörrach bis ins nahegelegene Basel (Schweiz).
Die Infrastruktur mit Einkaufsmöglichkeiten, Ärzten, Therapeuten und weiteren Versorgungseinrichtungen finden Sie im rund 6 km entfernten Zell im Wiesental.
Gresgen steht für naturnahes Wohnen in einer herrlichen Umgebung - ein anerkannter Erholungsort, der Ruhe, Natur und Lebensqualität auf besondere Weise verbindet.
Kontaktanfrage senden
Über den Anbieter
Garant Immobilien AG
Wilhelmstr.5
70182 Stuttgart
Kontakt
| Telefon | 07751/91 82 5-0 |
| Fax | 07751/91 82 5-20 |
| Website | www.garant-immo.de |
Ansprechpartner/in
Büro Waldshut
Weitere Angebote des Anbieters
30
Charaktervolles Mehrfamilienhaus, eingebettet in einen ...
Haus
79669 Zell im Wiesental
Dieses wunderschöne Mehrfamilienhaus mit einer faszinierenden Geschichte liegt auf einer sonnigen Hochebene im Naturpark Südschwarzwald und erstreckt sich über ein großzügiges Grundstück von rund 4.303 qm. Die Lage im ...
2.500.000 €
Kaufpreis
740 m²
Wohnfläche
32
Zimmer
5
Moderne Doppelhaushälfte in Top-Lage!!
Haus
79379 Müllheim
Diese moderne Doppelhaushälfte wurde im Jahr 2017 in hochwertiger Fertigbauweise erstellt und bietet Platz für die ganze Familie. Das Haus überzeugt durch eine durchdachte Raumaufteilung sowie ein offenes und ...
585.000 €
Kaufpreis
120 m²
Wohnfläche
4
Zimmer
1
Vielseitig nutzbare Wiesenfläche in Kesselbrunn - ...
Grundstück
86415 Mering
Das angebotene Grundstück ist eine Grünfläche mit der Flurnummer 4825, gelegen im Gewann *Kesselbrunn* in 86415 Mering - Landkreis Aichach-Friedberg. Die Fläche umfasst ca. 13.563 qm und umfasst eine Gesamtgröße von ca ...
keine Angabe
Preis
13.563 m²
Grundstücksfläche
12
Schöne, ansprechende 1 Zimmer-Wohnung
Wohnung
72639 Neuffen
Im Zentrum von Neuffen befindet sich diese kleine besondere Wohneinheit. Gepflegt, gemütlich und mit kleinem Balkon. Gute Lage, mit viel Licht und guter Aussicht. Eine kleine Küchenzeile, ein helles Bad mit Dusche und ...
125.000 €
Kaufpreis
23 m²
Wohnfläche
1
Zimmer
2
Erschlossenes Grundstück für ein Einfamilienhaus am ...
Grundstück
94535 Eging a.See
Suchen Sie den perfekten Platz für Ihr Familiendomizil? Dieses idyllische Baugrundstück bietet eine seltene Gelegenheit, in einer der begehrtesten Lagen des Dreiburgenlandes zu bauen. In einem ruhigen, äußerst ...
150.000 €
Kaufpreis
750 m²
Grundstücksfläche