"Eigener Herd ist Gold Wert"! Gut geschnittene 3-Zimmer-ETW in zentrumsnaher Lage von Ingolstadt
298.000 €
Kaufpreis
72 m²
Wohnfläche
3
Zimmer
immobilien.de Nr.: 9508545
Objektnummer: 06833
Kaufpreis
| Kaufpreis | 298.000 € |
| Hausgeld | 413 € |
| Maklerprovision | 2,38 % Käuferprovision inkl. MwSt. |
Wohnfläche, Grundstück & Bausubstanz
| Wohnfläche | 72 m² |
| Fläche teilbar ab | 72 m² |
| Zimmer | 3 |
| Baujahr | 1965 |
| Letzte Modernisierung | 2008 |
| Verfügbar ab | nach Vereinbarung |
| Zustand | Gepflegt |
Energie
| Energieausweistyp | Verbrauch |
| Ausstellungsdatum | 05. 02. 2018 |
| Gültig bis | 05.02.2028 |
| Baujahr (laut Energieausweis) | 1965 |
| Energieeffizienzklasse | D |
| Energieverbrauchkennwert | 126,00 kWh/(m²*a) |
| Heizungsart | Zentralheizung |
| Wesentlicher Energieträger | Gas |
| Energieträger/Befeuerung | Gas |
Beschreibung der Immobilie
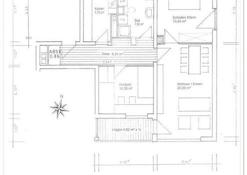
Die gut geschnittene 3-Zimmer-Wohnung befindet sich im 5. Obergeschoss eines 1965 in solider Massivbauweise errichteten Wohngebäudes, zentrumsnah im nördlichen Stadtbereich gelegen, unweit der Audi AG. Die Wohnfläche beträgt ca. 72 m², das Wohnzimmer und ein weiteres Zimmer zeigen nach Süden, ebenso der gut nutzbare Balkon. Das Elternschlafzimmer geht nach Osten, und Küche und Bad haben Nordausrichtung.
Die Wohnung befindet sich in gutem Zustand, wie Sie auf unseren Bildern sehen können.
Die Fenster wurden im Jahr 2008 erneuert (Isolierglasfenster mit guten Dämmwerten und Rollos), das Bad hat neben Wanne und Dusche auch Platz für Waschmaschine und Trockner. Wenn Sie diesen Platz lieber anderweitig verwenden möchten, so ist dies auch kein Problem: in der obersten Etage des Hauses gibt es einen Waschraum mit Geräten im Münzbetrieb, sowie einen Trockenraum. Der Lift fährt bis zur vorletzten Etage, so dass Sie lediglich eine Treppe bis zu dieser Etage zu steigen hätten.
Zur Wohnung gehören ein Kellerabteil, sowie ein Stellplatz in der Tiefgarage, in den sich sehr gut ein- und ausfahren lässt (kein Duplexparker!).
Das monatliche Wohngeld beträgt aktuell EUR 413,-; hierin sind u.a. die Heizungs- und Warmwasser-kosten, der Hausmeister und die Rücklagenzuführung enthalten.
Die Wohnung ist bereits frei geworden, die Übergabe ist daher individuell und einfach zu vereinbaren.
Die Wohnung befindet sich in gutem Zustand, wie Sie auf unseren Bildern sehen können.
Die Fenster wurden im Jahr 2008 erneuert (Isolierglasfenster mit guten Dämmwerten und Rollos), das Bad hat neben Wanne und Dusche auch Platz für Waschmaschine und Trockner. Wenn Sie diesen Platz lieber anderweitig verwenden möchten, so ist dies auch kein Problem: in der obersten Etage des Hauses gibt es einen Waschraum mit Geräten im Münzbetrieb, sowie einen Trockenraum. Der Lift fährt bis zur vorletzten Etage, so dass Sie lediglich eine Treppe bis zu dieser Etage zu steigen hätten.
Zur Wohnung gehören ein Kellerabteil, sowie ein Stellplatz in der Tiefgarage, in den sich sehr gut ein- und ausfahren lässt (kein Duplexparker!).
Das monatliche Wohngeld beträgt aktuell EUR 413,-; hierin sind u.a. die Heizungs- und Warmwasser-kosten, der Hausmeister und die Rücklagenzuführung enthalten.
Die Wohnung ist bereits frei geworden, die Übergabe ist daher individuell und einfach zu vereinbaren.
Ausstattungsmerkmale
| Anzahl der Etagen im Haus | 8 |
| Inserat befindet sich im Stockwerk | 5 |
| Küche | Einbauküche |
| Bad | 1 |
| Bad | Dusche, Wanne, Fenster |
| Boden | Laminat |
| Balkone | 1 |
Küche mit Einbauküche; Bad mit Wanne, Dusche, Fenster, Stellplätze für Waschmaschine und Trockner; Lift; Südbalkon; Laminatboden in den Wohnräumen und der Diele; Bad gefliest; Garderoben-Einbauschrank; Kellerabteil; TG-Stellplatz normal (d.h. kein Duplexparker)
Sonstige Informationen
Der Kaufpreis für die Wohnung beträgt EUR 298.000,- plus EUR 12.000,- für den TG-Stellplatz,
Gesamtkaufpreis EUR 310.000,-.
Beim Abschluss des notariellen Kaufvertrages stellen wir dem Käufer eine Nachweis- und/oder Vermittlungsprovision in Höhe von 2,38 % inkl. ges. MwSt. in Rechnung.
Wir haben einen provisionspflichtigen Maklervertrag mit dem Verkäufer in gleicher Höhe geschlossen.
Gesamtkaufpreis EUR 310.000,-.
Beim Abschluss des notariellen Kaufvertrages stellen wir dem Käufer eine Nachweis- und/oder Vermittlungsprovision in Höhe von 2,38 % inkl. ges. MwSt. in Rechnung.
Wir haben einen provisionspflichtigen Maklervertrag mit dem Verkäufer in gleicher Höhe geschlossen.
Karte wird geladen...
Objektstandort
85057 Ingolstadt
Lage & Infrastruktur
Objektstandort
85057 Ingolstadt
Ingolstadt, das im Jahre 806 erstmals urkundlich erwähnt wurde, ist in vieler Hinsicht eine bemerkenswerte Stadt. So ziemlich in der Mitte Bayerns gelegen (nur wenige Kilometer vom geografischen Mittelpunkt Bayerns entfernt), ist die mittlerweile auf über 133.000 Einwohner angewachsene Großstadt ein begehrter Ort zum Arbeiten und Wohnen geworden. Dies dank zahlreicher Arbeitgeber, an Platz 1 natürlich Audi, an Platz 2 das Klinikum Ingolstadt, das viertgrößte Bayerns, und vieler weiterer Betriebe, die gute und sichere Arbeitsplätze bieten. Mit seiner ausgezeichneten Infrastruktur, sowohl bildungstechnisch als auch die vielfältigen Einkaufsmöglich-keiten betreffend, ist Ingolstadt erste Wahl.
Weithin bekannt ist das Stadttheater Ingolstadt, aber auch 13 Museen und viele altehrwürdige Bauwerke der historischen Altstadt sind Teil dessen, was Ingolstadt zur charmanten liebenswerten Stadt an der Donau macht.
Viele Einrichtungen zur Deckung des täglichen Bedarfs können Sie von der aus Wohnung zu Fuß erreichen, auch in die Innenstadt gehen Sie nur etwa 15 Minuten.
Sportliche Aktivitäten und Ihre Freizeit können Sie in den zahlreichen Parks und an den Baggerseen verbringen, die in wenigen Minuten per Rad zu erreichen sind.
Audi ist von der Wohnung auch nur ein paar Minuten entfernt, das Audi Forum Ingolstadt befindet sich in nur 300 Metern Entfernung.
Hier eine Immobilie zu erwerben, ist eine absolut erstrebenswerte Sache, ist Ingolstadt, und darüber hinaus die Lage der Wohnung, doch ein Garant für langfristigen Werterhalt.
Weithin bekannt ist das Stadttheater Ingolstadt, aber auch 13 Museen und viele altehrwürdige Bauwerke der historischen Altstadt sind Teil dessen, was Ingolstadt zur charmanten liebenswerten Stadt an der Donau macht.
Viele Einrichtungen zur Deckung des täglichen Bedarfs können Sie von der aus Wohnung zu Fuß erreichen, auch in die Innenstadt gehen Sie nur etwa 15 Minuten.
Sportliche Aktivitäten und Ihre Freizeit können Sie in den zahlreichen Parks und an den Baggerseen verbringen, die in wenigen Minuten per Rad zu erreichen sind.
Audi ist von der Wohnung auch nur ein paar Minuten entfernt, das Audi Forum Ingolstadt befindet sich in nur 300 Metern Entfernung.
Hier eine Immobilie zu erwerben, ist eine absolut erstrebenswerte Sache, ist Ingolstadt, und darüber hinaus die Lage der Wohnung, doch ein Garant für langfristigen Werterhalt.
Kontaktanfrage senden
Über den Anbieter
tell Immobilien e.K.
Am Pfanderling 54
85778 Haimhausen
Kontakt
| Telefon | +49 8133 444210 |
| Mobil | +49 172 8460088 |
| Fax | +49 8133 4442129 |
| Website | www.tell-immobilien.de |
Ansprechpartner/in
Herr Bernhard Umstädter
Weitere Angebote des Anbieters
3
918 m² Grundstück für zwei Doppelhaushälften!
Grundstück
85778 Haimhausen
Mit den vorliegenden Unterlagen offerieren wir Ihnen ein 918 m² großes Baugrundstück in sehr schöner ruhiger Lage von Haimhausen bei Unterschleißheim. Die Gemeinde Haimhausen hat für dieses Gebiet einen Bebauungsplan ...
870.000 €
Kaufpreis
918 m²
Grundstücksfläche
10
2 Zi.Wohnung über den Dächern Unterschleißheims
Wohnung
85716 Unterschleißheim
Diese lichtdurchflutete 2-Zimmer-Wohnung mit ca. 60m² befindet sich im 6 Stock eines Mehrparteienhauses. Mit Ihrem nach Süden ausgerichteten Balkon (ca. 10m²) können Sie tagsüber die Sonne über den Dächern von ...
340.000 €
Kaufpreis
57,52 m²
Wohnfläche
2
Zimmer
12
Kapitalanlage in ruhiger Lage von Steinhöring bei ...
Haus
85643 Steinhöring
Das Wichtigste in Kürze: Das Gebäude wurde im Jahr 1973 in solider Ziegel-Massivbauweise errichtet, und erhielt 2011 eine 38 Felder große Photovoltaik-Anlage und erst 2025 eine neue Heizanlage, betrieben wie der ...
1.980.000 €
Kaufpreis
438 m²
Wohnfläche
16
Zimmer
2
Grundstück für ein geräumiges Einfamilienhaus in ...
Grundstück
85778 Haimhausen
Mit den vorliegenden Unterlagen offerieren wir Ihnen ein 480 m² großes Baugrundstück in sehr schöner ruhiger Lage von Haimhausen bei Unterschleißheim. Die Gemeinde Haimhausen hat für dieses Gebiet einen Bebauungsplan ...
612.500 €
Kaufpreis
480 m²
Grundstücksfläche
13
Einzigartiges Anwesen auf über 5.000 m²
Grundstück
85293 Reichertshausen
Willkommen in Ihrem zukünftigen Zuhause, das Großzügigkeit, gehobenen Komfort und eine unvergleichliche Lage in einer einzigartigen Naturkulisse vereint. Dieses repräsentative Einfamilienhaus, strategisch platziert auf ...
990.000 €
Kaufpreis
5.129 m²
Grundstücksfläche