Kapitalanlage in ruhiger Lage von Steinhöring bei Ebersberg: Mehrfamilienhaus mit 6 solide vermieteten Wohnungen
1.980.000 €
Kaufpreis
438 m²
Wohnfläche
16
Zimmer
immobilien.de Nr.: 9513140
Objektnummer: 06830
Kaufpreis
| Kaufpreis | 1.980.000 € |
| Maklerprovision | 3,57 % inkl. MwSt. Käuferprovision |
Wohnfläche, Grundstück & Bausubstanz
| Wohnfläche | 438 m² |
| Grundstücksfläche | 1.397 m² |
| Fläche teilbar ab | 438 m² |
| Zimmer | 16 |
| Baujahr | 1973 |
| Letzte Modernisierung | 2025 |
| Verfügbar ab | keine Angabe |
| Zustand | Gepflegt |
Energie
| Heizungsart | Zentralheizung |
| Energieträger/Befeuerung | Öl |
Beschreibung der Immobilie
Das Wichtigste in Kürze:
Das Gebäude wurde im Jahr 1973 in solider Ziegel-Massivbauweise errichtet, und erhielt 2011 eine 38 Felder große Photovoltaik-Anlage und erst 2025 eine neue Heizanlage, betrieben wie der Vorgänger mit Heizöl.
Die gesamte Wohnfläche beträgt ca. 438 m², die Grundstücksgröße beträgt stattliche 1.397 m².
Alle Wohnungen haben eigene Strom- und Heizungsverbrauchs-Zähler.
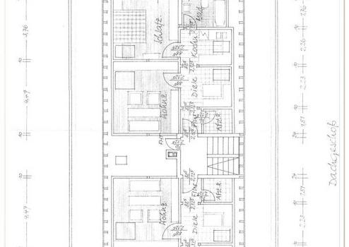
Zurzeit sind alle 6 Wohnungen solide vermietet, hier die Wohnungsgrößen im Einzelnen:
Erdgeschoss:
2 Dreizimmer-Wohnungen mit jeweils 85,70 m² Wohnfläche und Südbalkon;
1. Obergeschoss:
2 Dreizimmer-Wohnungen mit jeweils 85,70 m² Wohnfläche und Südbalkon;
Dachgeschoss:
2 Zweizimmer-Wohnungen mit jeweils 47,60 m² Wohnfläche;
Im Keller stehen den Mietern Kellerabteile zur Verfügung; es gibt einen Wasch- und Trockenraum für die eigenen Geräte der Mieter.
Die monatliche Nettomiete beträgt gesamt: EUR 5.985,00
Einkünfte aus dem Betrieb der PV-Anlage, monatlich ca. EUR 250,00
Jahresnettomiete somit rund EUR 74.800,00 *)
*) Bei Vollfinanzierung des Kaufpreises beträgt die anfängliche monatliche Zinsbelastung (ange-nommen 4% Effektivzins bei 10-jähriger Zinsfestschreibung) EUR 6.600,-, Sie haben also lediglich eine Differenz zu den Mieteinnahmen von EUR 365,-, zu Beginn der Finanzierung, wie gesagt.
Für eine steuerliche Betrachtung empfehlen wie die Beratung Ihres Steuerberaters.
Das Gebäude wurde im Jahr 1973 in solider Ziegel-Massivbauweise errichtet, und erhielt 2011 eine 38 Felder große Photovoltaik-Anlage und erst 2025 eine neue Heizanlage, betrieben wie der Vorgänger mit Heizöl.
Die gesamte Wohnfläche beträgt ca. 438 m², die Grundstücksgröße beträgt stattliche 1.397 m².
Alle Wohnungen haben eigene Strom- und Heizungsverbrauchs-Zähler.
Zurzeit sind alle 6 Wohnungen solide vermietet, hier die Wohnungsgrößen im Einzelnen:
Erdgeschoss:
2 Dreizimmer-Wohnungen mit jeweils 85,70 m² Wohnfläche und Südbalkon;
1. Obergeschoss:
2 Dreizimmer-Wohnungen mit jeweils 85,70 m² Wohnfläche und Südbalkon;
Dachgeschoss:
2 Zweizimmer-Wohnungen mit jeweils 47,60 m² Wohnfläche;
Im Keller stehen den Mietern Kellerabteile zur Verfügung; es gibt einen Wasch- und Trockenraum für die eigenen Geräte der Mieter.
Die monatliche Nettomiete beträgt gesamt: EUR 5.985,00
Einkünfte aus dem Betrieb der PV-Anlage, monatlich ca. EUR 250,00
Jahresnettomiete somit rund EUR 74.800,00 *)
*) Bei Vollfinanzierung des Kaufpreises beträgt die anfängliche monatliche Zinsbelastung (ange-nommen 4% Effektivzins bei 10-jähriger Zinsfestschreibung) EUR 6.600,-, Sie haben also lediglich eine Differenz zu den Mieteinnahmen von EUR 365,-, zu Beginn der Finanzierung, wie gesagt.
Für eine steuerliche Betrachtung empfehlen wie die Beratung Ihres Steuerberaters.
Ausstattungsmerkmale
| Anzahl der Etagen im Haus | 3 |
| Bad | 6 |
| Balkone | 4 |
6 Bäder, 6 Küchen, Wasch- und Trockenraum, 4 Garagen und 2 Stellplätze, PV-Anlage, großer Südgarten
Sonstige Informationen
Der Kaufpreis beträgt EUR 1.980.000,-.
Beim Abschluss des notariellen Kaufvertrages stellen wir dem Käufer eine Nachweis- und/oder Vermittlungsprovision in Höhe von 3,57 % inkl. ges. MwSt. des Kaufpreises in Rechnung.
Beim Abschluss des notariellen Kaufvertrages stellen wir dem Käufer eine Nachweis- und/oder Vermittlungsprovision in Höhe von 3,57 % inkl. ges. MwSt. des Kaufpreises in Rechnung.
Karte wird geladen...
Objektstandort
85643 Steinhöring
Lage & Infrastruktur
Objektstandort
85643 Steinhöring
Die Gemeinde Steinhöring befindet sich im Landkreis Ebersberg, ca. 7 Kilometer östlich der Kreisstadt an der B304 gelegen, mit den Ortsteilen zusammen zählt die Gemeinde rund 4.200 Einwohner. In Steinhöring gibt es eine Grundschule, 3 Kindergärten (mit Krippe und Hort), ein Jugendzentrum, eine Bücherei und das Betreuungszentrum 'EVS Steinhöring'. Die Lage zeichnet sich durch eine gute Balance zwischen ländlicher Idylle und urbaner Nähe aus und ist eingebettet in eine attraktive oberbayerische Voralpen-Landschaft.
Einkaufsmöglichkeiten für den täglichen Bedarf und auch die ärztliche Betreuung sind vor Ort vorhanden, eine Klinik und Behörden sind in der Kreisstadt Ebersberg zu finden. Ein Sportzentrum, Fußball- und Tennisplätze, zwei überregional bekannte Golfclubs, ein kleiner Badesee und viele Rad- und Wanderwege laden zu sportlichen Aktivitäten ein. Über die nahe B304 (Zufahrt in ca. 400 Meter Entfernung) erreicht man rasch Ebersberg, Grafing, Wasserburg (16 km) und München (Stadtrand 30 km = 25 Minuten, Innenstadt 45 km = 40 Minuten). Über die A94, Auffahrt 'Hohenlinden', 17 Kilometer bzw. 15 Fahrminuten entfernt gelangt man zum Flughafen und zur Messe München im Stadtteil 'Riem'. Nur 500 Meter bzw. 6 Gehminuten entfernt befindet sich der Bahnhof des 'Filzenexpress', der im Stundentakt zwischen Wasserburg und München verkehrt. Bis zum Ostbahnhof in München dauert die Fahrt rund 40 Minuten. Ab Ebersberg besteht Umsteigemöglichkeit zur S4/S6 nach München. Außerdem gibt es eine Rufbuslinie, die die außenliegenden Ortsteile verbindet.
Für Naturfreunde gibt es in der Umgebung viele Möglichkeiten zum Wandern, Radfahren, Reiten und Golfen. Es befinden sich mehrere Reitpensionen und zwei Golfplätze im nahen Umkreis. Ein beliebtes Ausflugsziel ist der nahegelegene Ebersberger Forst, der eine Fläche von über 6.000 Hektar umfasst und zahlreiche Wanderwege und Radlrouten bietet. Auch der nahegelegene Klostersee lädt zum Baden und Entspannen ein.
Einkaufsmöglichkeiten für den täglichen Bedarf und auch die ärztliche Betreuung sind vor Ort vorhanden, eine Klinik und Behörden sind in der Kreisstadt Ebersberg zu finden. Ein Sportzentrum, Fußball- und Tennisplätze, zwei überregional bekannte Golfclubs, ein kleiner Badesee und viele Rad- und Wanderwege laden zu sportlichen Aktivitäten ein. Über die nahe B304 (Zufahrt in ca. 400 Meter Entfernung) erreicht man rasch Ebersberg, Grafing, Wasserburg (16 km) und München (Stadtrand 30 km = 25 Minuten, Innenstadt 45 km = 40 Minuten). Über die A94, Auffahrt 'Hohenlinden', 17 Kilometer bzw. 15 Fahrminuten entfernt gelangt man zum Flughafen und zur Messe München im Stadtteil 'Riem'. Nur 500 Meter bzw. 6 Gehminuten entfernt befindet sich der Bahnhof des 'Filzenexpress', der im Stundentakt zwischen Wasserburg und München verkehrt. Bis zum Ostbahnhof in München dauert die Fahrt rund 40 Minuten. Ab Ebersberg besteht Umsteigemöglichkeit zur S4/S6 nach München. Außerdem gibt es eine Rufbuslinie, die die außenliegenden Ortsteile verbindet.
Für Naturfreunde gibt es in der Umgebung viele Möglichkeiten zum Wandern, Radfahren, Reiten und Golfen. Es befinden sich mehrere Reitpensionen und zwei Golfplätze im nahen Umkreis. Ein beliebtes Ausflugsziel ist der nahegelegene Ebersberger Forst, der eine Fläche von über 6.000 Hektar umfasst und zahlreiche Wanderwege und Radlrouten bietet. Auch der nahegelegene Klostersee lädt zum Baden und Entspannen ein.
Kontaktanfrage senden
Über den Anbieter
tell Immobilien e.K.
Am Pfanderling 54
85778 Haimhausen
Kontakt
| Telefon | +49 8133 444210 |
| Mobil | +49 172 8460088 |
| Fax | +49 8133 4442129 |
| Website | www.tell-immobilien.de |
Ansprechpartner/in
Herr Bernhard Umstädter
Weitere Angebote des Anbieters
3
918 m² Grundstück für zwei Doppelhaushälften!
Grundstück
85778 Haimhausen
Mit den vorliegenden Unterlagen offerieren wir Ihnen ein 918 m² großes Baugrundstück in sehr schöner ruhiger Lage von Haimhausen bei Unterschleißheim. Die Gemeinde Haimhausen hat für dieses Gebiet einen Bebauungsplan ...
870.000 €
Kaufpreis
918 m²
Grundstücksfläche
10
2 Zi.Wohnung über den Dächern Unterschleißheims
Wohnung
85716 Unterschleißheim
Diese lichtdurchflutete 2-Zimmer-Wohnung mit ca. 60m² befindet sich im 6 Stock eines Mehrparteienhauses. Mit Ihrem nach Süden ausgerichteten Balkon (ca. 10m²) können Sie tagsüber die Sonne über den Dächern von ...
340.000 €
Kaufpreis
57,52 m²
Wohnfläche
2
Zimmer
12
Kapitalanlage in ruhiger Lage von Steinhöring bei ...
Haus
85643 Steinhöring
Das Wichtigste in Kürze: Das Gebäude wurde im Jahr 1973 in solider Ziegel-Massivbauweise errichtet, und erhielt 2011 eine 38 Felder große Photovoltaik-Anlage und erst 2025 eine neue Heizanlage, betrieben wie der ...
1.980.000 €
Kaufpreis
438 m²
Wohnfläche
16
Zimmer
2
Grundstück für ein geräumiges Einfamilienhaus in ...
Grundstück
85778 Haimhausen
Mit den vorliegenden Unterlagen offerieren wir Ihnen ein 480 m² großes Baugrundstück in sehr schöner ruhiger Lage von Haimhausen bei Unterschleißheim. Die Gemeinde Haimhausen hat für dieses Gebiet einen Bebauungsplan ...
612.500 €
Kaufpreis
480 m²
Grundstücksfläche
13
Einzigartiges Anwesen auf über 5.000 m²
Grundstück
85293 Reichertshausen
Willkommen in Ihrem zukünftigen Zuhause, das Großzügigkeit, gehobenen Komfort und eine unvergleichliche Lage in einer einzigartigen Naturkulisse vereint. Dieses repräsentative Einfamilienhaus, strategisch platziert auf ...
990.000 €
Kaufpreis
5.129 m²
Grundstücksfläche