Hofgebäude auf 52 m² mit Ausbaupotenzial in begehrter Lage von Mainz-Neustadt, Nähe Rheinufer
135.000 €
Kaufpreis
45 m²
Wohnfläche
7 m²
Nutzfläche
2
Zimmer
immobilien.de Nr.: 9494675
Objektnummer: 5517#da0Td
Kaufpreis
| Kaufpreis | 135.000 € |
| Hausgeld | 258 € |
| Maklerprovision | 2,98 % |
Wohnfläche, Grundstück & Bausubstanz
| Wohnfläche | 45 m² |
| Nutzfläche | 7 m² |
| Zimmer | 2 |
| Baujahr | 1903 |
| Verfügbar ab | sofort |
| Zustand | Sanierungsbeduerftig |
Beschreibung der Immobilie
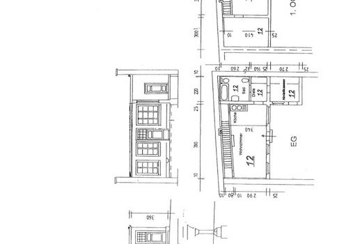
Im Hinterhof eines denkmalgeschützten Mehrfamilienhauses steht ein Hofgebäude/Einheit Nr. 12 mit ca. 52 m² Grundfläche, zum Verkauf.
Das Gebäude wurde bisher als Lagerraum genutzt und ist bereits freigestellt. Daher kann es sofort zu einer 2 Zimmer-Eigentumswohnung Nr. 12, wie in der Teilungserklärung ausgewiesen, ausgebaut werden.
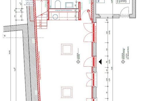
Eine Nutzungsänderung sowie eine Baugenehmigung mit aktuellen Ausbauplänen vom Architekten liegen bereits vor. Individuelle Wünsche können noch berücksichtigt werden.
Das denkmalgeschützte Mehrfamilienhaus wurde in den letzten Jahren stets modernisiert und auf einen modernen technischen Stand gebracht:
- 1998/1999 komplett saniert und restauriert: Aufzug eingebaut
- 2018 Fassade zum Innenhof angelegt, Balkone renoviert
- 2018 Dacherneuerung zum Teil und 2 Feuertreppen montiert
- 2025 Sanierungsmaßnahmen in Gewölbekeller Nr. 13
- 2025 Sanierung der 2 Dachgeschoss-Gaupen
- 2026 Hofsanierung (Beginn voraussichtlich ab Februar)
Das Gebäude wurde bisher als Lagerraum genutzt und ist bereits freigestellt. Daher kann es sofort zu einer 2 Zimmer-Eigentumswohnung Nr. 12, wie in der Teilungserklärung ausgewiesen, ausgebaut werden.
Eine Nutzungsänderung sowie eine Baugenehmigung mit aktuellen Ausbauplänen vom Architekten liegen bereits vor. Individuelle Wünsche können noch berücksichtigt werden.
Das denkmalgeschützte Mehrfamilienhaus wurde in den letzten Jahren stets modernisiert und auf einen modernen technischen Stand gebracht:
- 1998/1999 komplett saniert und restauriert: Aufzug eingebaut
- 2018 Fassade zum Innenhof angelegt, Balkone renoviert
- 2018 Dacherneuerung zum Teil und 2 Feuertreppen montiert
- 2025 Sanierungsmaßnahmen in Gewölbekeller Nr. 13
- 2025 Sanierung der 2 Dachgeschoss-Gaupen
- 2026 Hofsanierung (Beginn voraussichtlich ab Februar)
Ausstattungsmerkmale
| Inserat befindet sich im Stockwerk | 0 |
| Boden | Dielen |
| Terrassen | 0 |
Der Lagerraum bzw. das Hofgebäude ist mit Holz-Dielenboden versehen. Die Wände und Decken sind nicht verputzt. Das Dach des Hofgebäudes wurde 2009 erneuert.
Das Gebäude befindet sich in einem Rohbauzustand und ist mit Strom jedoch ohne Heizung ausgestattet. Die Zu- und Ableitungen für Wasser sind im Boden des Innenhofs vorhanden.
Das Hausgeld beträgt aktuell ca. 258,- €/ Monat (ohne Heizung- und Wasserverbrauch).
Die vorhandene Baugenehmigung, beantragt durch Architekturbüro Lessing in Mainz, ist für eine 2 Zimmer-Wohnung mit großzügigem Wohn-/Esszimmer und ca. 10 m² Schlafbereich auf der zweiten Ebene, großes Bad mit Dusche sowie einen Abstellraum für die Technik (Wärmepumpe, Strom- und Wasserzähler) erteilt worden. Das Dach mit 2 Dachfenstern soll begrünt werden.
Hinweis: Im Kaufpreis sind die Kosten für die Baugenehmigung, die bisherige Planung des Architekten sowie die Sonderumlagen für Keller-, Gaupen- und Hofsanierung bereits enthalten.
Das Gebäude befindet sich in einem Rohbauzustand und ist mit Strom jedoch ohne Heizung ausgestattet. Die Zu- und Ableitungen für Wasser sind im Boden des Innenhofs vorhanden.
Das Hausgeld beträgt aktuell ca. 258,- €/ Monat (ohne Heizung- und Wasserverbrauch).
Die vorhandene Baugenehmigung, beantragt durch Architekturbüro Lessing in Mainz, ist für eine 2 Zimmer-Wohnung mit großzügigem Wohn-/Esszimmer und ca. 10 m² Schlafbereich auf der zweiten Ebene, großes Bad mit Dusche sowie einen Abstellraum für die Technik (Wärmepumpe, Strom- und Wasserzähler) erteilt worden. Das Dach mit 2 Dachfenstern soll begrünt werden.
Hinweis: Im Kaufpreis sind die Kosten für die Baugenehmigung, die bisherige Planung des Architekten sowie die Sonderumlagen für Keller-, Gaupen- und Hofsanierung bereits enthalten.
Sonstige Informationen
Überzeugen Sie sich vor Ort von den Vorteilen dieser interessanten Immobilie. Eine Besichtigung ist nach Rücksprache möglich.
Hinweis:
Sollten Sie Interesse an der o.g. Immobilie haben, dann hinterlassen Sie bitte bei Ihrer E-Mail-Anfrage Ihre Telefonnummer, damit wir direkt mit Ihnen Kontakt aufnehmen können.
Hinweis:
Sollten Sie Interesse an der o.g. Immobilie haben, dann hinterlassen Sie bitte bei Ihrer E-Mail-Anfrage Ihre Telefonnummer, damit wir direkt mit Ihnen Kontakt aufnehmen können.
Karte wird geladen...
Objektstandort
Adam-Karrillon-Straße 0
55118 Mainz
Lage & Infrastruktur
Objektstandort
Adam-Karrillon-Straße 0
55118 Mainz
Zentral und ruhig gelegen, direkte Nähe zum Hauptbahnhof und zum Rheinufer, alle Einkaufsmöglichkeiten im näheren Umfeld zu Fuß zu erreichen. Öffentliche Verkehrsmittel in unmittelbarer Nähe, gute BAB-Anschlussmöglichkeit in nur 3 km Entfernung.
Kontaktanfrage senden
Über den Anbieter
Villa Immobilien
Greiffenklaustraße 9
55116 Mainz
Kontakt
| Telefon | +49 6131 231427 |
| Website | www.villa-immobilien.de |
Ansprechpartner/in
Frau Dipl.-Ing.Ginka Gerster
Weitere Angebote des Anbieters
13
Hofgebäude auf 52 m² mit Ausbaupotenzial in begehrter ...
Wohnung
55118 Mainz
Im Hinterhof eines denkmalgeschützten Mehrfamilienhauses steht ein Hofgebäude/Einheit Nr. 12 mit ca. 52 m² Grundfläche, zum Verkauf. Das Gebäude wurde bisher als Lagerraum genutzt und ist bereits freigestellt. Daher ...
135.000 €
Kaufpreis
45 m²
Wohnfläche
2
Zimmer
32
Gemütliche 2 Zimmer-ETW mit Balkon und TG in ruhiger ...
Wohnung
55246 Wiesbaden
In einem sehr gepflegten Mehrfamilienhaus mit 32 Einheiten, erbaut 1973, befindet sich im 3. Obergeschoss diese gut geschnittene 2 Zimmer-Eigentumswohnung Nr. 134 mit Balkon in einer ruhigen Lage von Mainz-Kostheim. Im ...
249.000 €
Kaufpreis
62 m²
Wohnfläche
2
Zimmer
41
Reserviert: Renovierte 4,5 Zimmer-Maisonette-ETW mit ...
Wohnung
55128 Mainz
In dem beliebten Mainzer Stadtteil Bretzenheim befindet sich in einem sehr gepflegten Mehrfamilienhaus im 2. Obergeschoss/ Dachgeschoss diese lichtdurchflutete 4,5 Zimmer-Maisonette- Eigentumswohnung Nr. 44 mit ...
359.000 €
Kaufpreis
102 m²
Wohnfläche
4,5
Zimmer
38
Seltene 4,5 Zimmer-ETW mit TG-Stellplatz im begehrten ...
Wohnung
55128 Mainz
In einem sehr gepflegten Mehrfamilienhaus mit Tiefgarage, erbaut 1983, befindet sich im 3. und zugleich letzten Obergeschoss diese gemütliche 4,5 Zimmer-Eigentumswohnung Nr. 14 mit sonnigem Balkon und herrlichem Blick ...
375.000 €
Kaufpreis
91,31 m²
Wohnfläche
4,5
Zimmer
41
Super Kapitalanlage in Mainz-Altstadt: MFH mit 4 ...
Haus
55116 Mainz
Das stilvolle Altbau-Mehrfamilienhaus wurde im Jahr 1864 im Herzen der Mainzer Innenstadt erbaut und befindet sich in einer geschützten Denkmalzone. Das Haus wurde im Jahr 1987/1988 kernsaniert und verfügt über einen ...
1.550.000 €
Kaufpreis
363 m²
Wohnfläche
13
Zimmer