Neuwertiges 6-Zimmer-Reihenhaus (Bj. 2021) mit Garten & 2 TG-Stellplätzen – energieeffizient
799.000 €
Kaufpreis
139 m²
Wohnfläche
6
Zimmer
immobilien.de Nr.: 9493921
Objektnummer: 251154
Kaufpreis
| Kaufpreis | 799.000 € |
| Maklerprovision | keine Provision, courtagefrei |
Wohnfläche, Grundstück & Bausubstanz
| Wohnfläche | 139 m² |
| Grundstücksfläche | 122 m² |
| Zimmer | 6 |
| Baujahr | 2021 |
| Verfügbar ab | sofort |
| Zustand | Neuwertig |
Energie
| Energieausweistyp | Bedarfsausweis |
| Energieeffizienzklasse | A |
| Endenergiebedarf | 32 |
| Heizungsart | Fußbodenheizung |
| Energieträger/Befeuerung | Luft-Wärme-Pumpe |
Beschreibung der Immobilie
Angeboten wird ein neuwertiges, gepflegtes, liebevoll ausgestattetes und energieeffizientes Reihenmittelhaus mit Luft-Wärmepumpe in sehr guter Wohnlage von Wiesbaden-Nordenstadt.
Das Haus überzeugt neben seiner durchdachten Raumaufteilung mit insgesamt 6 Zimmern auch durch eine schöne, nach Süden ausgerichtete Terrasse sowie einen liebevoll gestalteten und pflegeleichten Garten inklusive praktischem Gartenschrank.
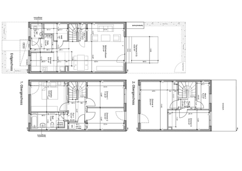
Im Erdgeschoss verfügt Ihr neues Zuhause – neben der modernen Einbauküche – über ein gemütliches Wohn- und Esszimmer. Von hier aus gelangen Sie direkt auf die sonnige Terrasse und in den schönen Garten. Das Erdgeschoss ist großzügig und offen konzipiert – Kochen, Essen und Wohnen bilden den kommunikativen Mittelpunkt des Familienlebens. Die große Fenstertür integriert den Garten harmonisch in den Wohnbereich und schafft eine helle, freundliche Atmosphäre. Raumhohe Türen im gesamten Haus vermitteln dabei ein besonders angenehmes und großzügiges Raumgefühl.
Im 1. Obergeschoss befinden sich ein Tageslichtbad mit Badewanne und bodengleicher Dusche, ein Schlafzimmer sowie zwei weitere Zimmer.
Das 2. Obergeschoss – vollständig ohne Schrägen – bietet zwei zusätzliche Zimmer, eines davon mit knapp 20 m², ideal als Homeoffice, Gästezimmer oder individuell nutzbarer Wohnraum. Zudem befindet sich hier einer der insgesamt drei praktischen Abstellräume des Hauses. Ob als Paar oder Familie – auf den beiden oberen Etagen findet jeder seinen persönlichen Rückzugsort, und auch Gäste können komfortabel untergebracht werden.
Im Erdgeschoss befindet sich außerdem der Hausanschlussraum mit moderner Luft-Wärmepumpen-Heizung, der zugleich zusätzliche Abstellfläche bietet.
Der Grundriss ist perfekt auf die Bedürfnisse einer Familie abgestimmt: 139 m² Wohnfläche auf drei Ebenen, verteilt auf 6 Zimmer, bieten vielseitige Nutzungsmöglichkeiten. Kinderzimmer, Arbeitszimmer, Spielzimmer oder Gästezimmer – hier findet jeder seinen Platz zur Entfaltung.
Willkommen in Ihrem neuen Zuhause!
Das Haus überzeugt neben seiner durchdachten Raumaufteilung mit insgesamt 6 Zimmern auch durch eine schöne, nach Süden ausgerichtete Terrasse sowie einen liebevoll gestalteten und pflegeleichten Garten inklusive praktischem Gartenschrank.
Im Erdgeschoss verfügt Ihr neues Zuhause – neben der modernen Einbauküche – über ein gemütliches Wohn- und Esszimmer. Von hier aus gelangen Sie direkt auf die sonnige Terrasse und in den schönen Garten. Das Erdgeschoss ist großzügig und offen konzipiert – Kochen, Essen und Wohnen bilden den kommunikativen Mittelpunkt des Familienlebens. Die große Fenstertür integriert den Garten harmonisch in den Wohnbereich und schafft eine helle, freundliche Atmosphäre. Raumhohe Türen im gesamten Haus vermitteln dabei ein besonders angenehmes und großzügiges Raumgefühl.
Im 1. Obergeschoss befinden sich ein Tageslichtbad mit Badewanne und bodengleicher Dusche, ein Schlafzimmer sowie zwei weitere Zimmer.
Das 2. Obergeschoss – vollständig ohne Schrägen – bietet zwei zusätzliche Zimmer, eines davon mit knapp 20 m², ideal als Homeoffice, Gästezimmer oder individuell nutzbarer Wohnraum. Zudem befindet sich hier einer der insgesamt drei praktischen Abstellräume des Hauses. Ob als Paar oder Familie – auf den beiden oberen Etagen findet jeder seinen persönlichen Rückzugsort, und auch Gäste können komfortabel untergebracht werden.
Im Erdgeschoss befindet sich außerdem der Hausanschlussraum mit moderner Luft-Wärmepumpen-Heizung, der zugleich zusätzliche Abstellfläche bietet.
Der Grundriss ist perfekt auf die Bedürfnisse einer Familie abgestimmt: 139 m² Wohnfläche auf drei Ebenen, verteilt auf 6 Zimmer, bieten vielseitige Nutzungsmöglichkeiten. Kinderzimmer, Arbeitszimmer, Spielzimmer oder Gästezimmer – hier findet jeder seinen Platz zur Entfaltung.
Willkommen in Ihrem neuen Zuhause!
Ausstattungsmerkmale
| Anzahl der Etagen im Haus | 3 |
| Küche | Einbauküche |
| Bad | 1 |
| Bad | Dusche, Wanne |
| Boden | Fliesen, Parkett |
| Balkone | 0 |
| Garten | |
| Terrassen | 1 |
| Garage/Stellplätze | 2 |
Terrasse, Garten, Vollbad, Duschbad, Einbauküche, Gäste-WC, Parkett, Fliesen
Bemerkungen:
- Großer Wohn-Ess-Bereich
- Moderne Einbauküche
- Tageslichtbad mit Dusche, Badewanne
- Extra Gäste-WC
- 3-fach isolierverglaste Fenster und Fenstertüren
- Raumhohe Innentüren in den Regelgeschossen
- Echtholzparkett (FSC-zertifizierte geölte Eiche)
- Fußbodenheizung
- Hochwertige Fliesen und Sanitärprodukte von namhaften Markenherstellern
- Einfacher Einstieg in Ihre Dusche dank bodengleich gefliester Dusche
- Echtglas-Duschabtrennung (Einscheibensicherheitsglas ESG)
- Hauswirtschaftsraum
- 3 Abstellräume
- Gartenterrasse
- Pflegeleichter Garten mit Gartenschrank
- Extensiv begrünte Dachflächen
- Modernster Highspeed-Internet Anschluss (Vodafone)
- Reihenhaus ist real geteilt mit Terrasse und Garten
- Kaufpreis Reihenhaus: 759.000 € + 2 Tiefgaragenstellplätze (obligatorisch): 40.000 € = Gesamtkaufpreis: 799.000 €
Bemerkungen:
- Großer Wohn-Ess-Bereich
- Moderne Einbauküche
- Tageslichtbad mit Dusche, Badewanne
- Extra Gäste-WC
- 3-fach isolierverglaste Fenster und Fenstertüren
- Raumhohe Innentüren in den Regelgeschossen
- Echtholzparkett (FSC-zertifizierte geölte Eiche)
- Fußbodenheizung
- Hochwertige Fliesen und Sanitärprodukte von namhaften Markenherstellern
- Einfacher Einstieg in Ihre Dusche dank bodengleich gefliester Dusche
- Echtglas-Duschabtrennung (Einscheibensicherheitsglas ESG)
- Hauswirtschaftsraum
- 3 Abstellräume
- Gartenterrasse
- Pflegeleichter Garten mit Gartenschrank
- Extensiv begrünte Dachflächen
- Modernster Highspeed-Internet Anschluss (Vodafone)
- Reihenhaus ist real geteilt mit Terrasse und Garten
- Kaufpreis Reihenhaus: 759.000 € + 2 Tiefgaragenstellplätze (obligatorisch): 40.000 € = Gesamtkaufpreis: 799.000 €
Sonstige Informationen
Heizungsart: Fußbodenheizung
Energieträger: Luft-/Wasserwärme
Haftung: Es wird darauf hingewiesen, dass die Objektinformationen, Unterlagen, Pläne, Flächenberechnungen etc. vom Errichter bzw. von Bauunterlagen stammen. Eine Haftung für die Richtigkeit oder Vollständigkeit der Angaben bzw. Unterlagen wird nicht übernommen. Es obliegt daher Ihnen, die darin enthaltenen Objektinformationen und Angaben auf ihre Richtigkeit hin zu überprüfen. Das Immobilienangebot ist freibleibend und vorbehaltlich Irrtümer. Es handelt sich um einen Privatverkauf.
Es wird darauf hingewiesen, dass Grundrissgrafiken nicht maßstabsgetreu sind.
Makleranfragen nicht erwünscht. Nach § 7 UWG sind unaufgeforderte Kontaktaufnahmen durch Makler ohne ausdrückliche Einwilligung des Empfängers verboten!
ohne-makler (OM) ist weder Anbieter noch Vermittler der Immobilie. OM betreibt eine Plattform für Immobilieneigentümer, die unter anderem die gleichzeitige Veröffentlichung einzelner Inserate auf mehreren Immobilienportalen ermöglicht. Die Inhalte dieser Inserate werden ausschließlich von Dritten verantwortet. Für die Richtigkeit, Vollständigkeit oder Rechtmäßigkeit der Angaben übernimmt OM keine Haftung. Hinweise auf mögliche Rechtsverstöße können jederzeit gemeldet werden und werden nach Prüfung umgehend bearbeitet.
Energieträger: Luft-/Wasserwärme
Haftung: Es wird darauf hingewiesen, dass die Objektinformationen, Unterlagen, Pläne, Flächenberechnungen etc. vom Errichter bzw. von Bauunterlagen stammen. Eine Haftung für die Richtigkeit oder Vollständigkeit der Angaben bzw. Unterlagen wird nicht übernommen. Es obliegt daher Ihnen, die darin enthaltenen Objektinformationen und Angaben auf ihre Richtigkeit hin zu überprüfen. Das Immobilienangebot ist freibleibend und vorbehaltlich Irrtümer. Es handelt sich um einen Privatverkauf.
Es wird darauf hingewiesen, dass Grundrissgrafiken nicht maßstabsgetreu sind.
Makleranfragen nicht erwünscht. Nach § 7 UWG sind unaufgeforderte Kontaktaufnahmen durch Makler ohne ausdrückliche Einwilligung des Empfängers verboten!
ohne-makler (OM) ist weder Anbieter noch Vermittler der Immobilie. OM betreibt eine Plattform für Immobilieneigentümer, die unter anderem die gleichzeitige Veröffentlichung einzelner Inserate auf mehreren Immobilienportalen ermöglicht. Die Inhalte dieser Inserate werden ausschließlich von Dritten verantwortet. Für die Richtigkeit, Vollständigkeit oder Rechtmäßigkeit der Angaben übernimmt OM keine Haftung. Hinweise auf mögliche Rechtsverstöße können jederzeit gemeldet werden und werden nach Prüfung umgehend bearbeitet.
Karte wird geladen...
Objektstandort
Rotkehlchenweg 134
65205 Wiesbaden-Nordenstadt
- Hessen
Lage & Infrastruktur
Objektstandort
Rotkehlchenweg 134
65205 Wiesbaden-Nordenstadt
- Hessen
Wohnen im Neubaugebiet Hainweg in Wiesbaden-Nordenstadt!
Das Neubaugebiet Hainweg im beliebten Wiesbadener Stadtteil Wiesbaden-Nordenstadt verbindet naturnahes Wohnen mit urbanem Komfort und hervorragender Anbindung innerhalb der Metropolregion Rhein-Main.
Hier genießen Sie die Ruhe eines modernen, familienfreundlichen Wohngebiets mit direkter Nähe zu Feldern und Grünflächen – und profitieren gleichzeitig von einer sehr guten Infrastruktur sowie kurzen Wegen in die Wiesbadener Innenstadt.
Lebensqualität zwischen Natur und Stadt:
Nordenstadt zählt zu den gefragten Wohnlagen im Rhein-Main-Gebiet und vereint historischen Charme mit moderner Wohnqualität.
Das Haus liegt in einem besonders familienfreundlichen Umfeld: Drei Kindergärten befinden sich in unmittelbarer Nähe. Ebenso ein modernes Seniorenheim nahe eines großen Spielplatzes – hier kommen Jung und Alt ganz selbstverständlich zusammen und es entsteht ein lebendiges, gewachsenes Wohnumfeld.
Direkt am Spielplatz, am Beginn des Hainparks, lädt ein Eiscafé mit großer Sonnenterrasse zum Verweilen ein – ein beliebter Treffpunkt im Quartier.
Weitläufige Felder sowie Spazier- und Radwege beginnen fußläufig vom Haus aus und bieten ideale Möglichkeiten zur Erholung. Das Freizeitangebot ist vielfältig: Ein Fußballverein, zwei Tennisvereine (T2 und TC Nordenstadt), mehrere Fitnessstudios sowie ein Musikverein sorgen für zahlreiche Aktivitäten. Auch Taunus, Rheingau und der beliebte Opel-Zoo sind schnell erreichbar.
Infrastruktur – alles in unmittelbarer Nähe:
Nordenstadt bietet eine ausgezeichnete Nahversorgung mit kurzen Wegen:
Einkaufen & Versorgung
•Aldi, Lidl, Netto, Globus, Rewe
•dm-Drogeriemarkt
•Bäcker Lüning
•Weitere Geschäfte, Banken und Dienstleister
Gesundheit & Betreuung
•Allgemeinmediziner und Fachärzte
•Apotheke und Gesundheitszentrum
•Neues DRK-Seniorenzentrum mit vielfältigen Angeboten, u. a. Physiotherapie
Familie & Bildung
•Drei Kindergärten
•Grundschule vor Ort
•Weiterführende Schulen in Wiesbaden
Freizeit & Sport
•Sportzentrum (Tennis, Fitness, Schwimmen)
•Sportanlagen, Tennisclubs, Fitnessstudios
•Spielplätze und Golfclub
•Restaurants und Gastronomieangebote
Der Standort eignet sich ideal für Familien, Pendler, Paare und Senioren.
Hervorragende Verkehrsanbindung
•Autobahn A66/A3: ca. 2 Minuten
•Wiesbaden Zentrum: ca. 13 Min. (Bus), 15 Min. (PKW)
•Frankfurt Zentrum: ca. 25 Min.
•Flughafen Frankfurt: ca. 15 Min.
•Mainz Zentrum: ca. 30 Min.
•S-Bahn Hochheim: ca. 13 Min.
Frankfurt am Main, Mainz sowie der Flughafen sind schnell erreichbar.
Zukunftsperspektive
Die geplante Schnellbahntrasse „Wallauer Spange“ mit S-Bahn-Station in Delkenheim/Wallau wird die Verbindung Richtung Frankfurt weiter verbessern – ein zusätzlicher Standortvorteil.
Fazit
✔ Ruhige, naturnahe Lage
✔ Familienfreundliches Umfeld
✔ Sehr gute Infrastruktur
✔ Vielfältige Freizeitmöglichkeiten
✔ Optimale Verkehrsanbindung
Hier wohnen Sie entspannt im Grünen – und dennoch zentral im Rhein-Main-Gebiet.
Infrastruktur (im Umkreis von 5 km):
Apotheke, Lebensmittel-Discount, Allgemeinmediziner, Kindergarten, Grundschule, Gesamtschule, Öffentliche Verkehrsmittel
Das Neubaugebiet Hainweg im beliebten Wiesbadener Stadtteil Wiesbaden-Nordenstadt verbindet naturnahes Wohnen mit urbanem Komfort und hervorragender Anbindung innerhalb der Metropolregion Rhein-Main.
Hier genießen Sie die Ruhe eines modernen, familienfreundlichen Wohngebiets mit direkter Nähe zu Feldern und Grünflächen – und profitieren gleichzeitig von einer sehr guten Infrastruktur sowie kurzen Wegen in die Wiesbadener Innenstadt.
Lebensqualität zwischen Natur und Stadt:
Nordenstadt zählt zu den gefragten Wohnlagen im Rhein-Main-Gebiet und vereint historischen Charme mit moderner Wohnqualität.
Das Haus liegt in einem besonders familienfreundlichen Umfeld: Drei Kindergärten befinden sich in unmittelbarer Nähe. Ebenso ein modernes Seniorenheim nahe eines großen Spielplatzes – hier kommen Jung und Alt ganz selbstverständlich zusammen und es entsteht ein lebendiges, gewachsenes Wohnumfeld.
Direkt am Spielplatz, am Beginn des Hainparks, lädt ein Eiscafé mit großer Sonnenterrasse zum Verweilen ein – ein beliebter Treffpunkt im Quartier.
Weitläufige Felder sowie Spazier- und Radwege beginnen fußläufig vom Haus aus und bieten ideale Möglichkeiten zur Erholung. Das Freizeitangebot ist vielfältig: Ein Fußballverein, zwei Tennisvereine (T2 und TC Nordenstadt), mehrere Fitnessstudios sowie ein Musikverein sorgen für zahlreiche Aktivitäten. Auch Taunus, Rheingau und der beliebte Opel-Zoo sind schnell erreichbar.
Infrastruktur – alles in unmittelbarer Nähe:
Nordenstadt bietet eine ausgezeichnete Nahversorgung mit kurzen Wegen:
Einkaufen & Versorgung
•Aldi, Lidl, Netto, Globus, Rewe
•dm-Drogeriemarkt
•Bäcker Lüning
•Weitere Geschäfte, Banken und Dienstleister
Gesundheit & Betreuung
•Allgemeinmediziner und Fachärzte
•Apotheke und Gesundheitszentrum
•Neues DRK-Seniorenzentrum mit vielfältigen Angeboten, u. a. Physiotherapie
Familie & Bildung
•Drei Kindergärten
•Grundschule vor Ort
•Weiterführende Schulen in Wiesbaden
Freizeit & Sport
•Sportzentrum (Tennis, Fitness, Schwimmen)
•Sportanlagen, Tennisclubs, Fitnessstudios
•Spielplätze und Golfclub
•Restaurants und Gastronomieangebote
Der Standort eignet sich ideal für Familien, Pendler, Paare und Senioren.
Hervorragende Verkehrsanbindung
•Autobahn A66/A3: ca. 2 Minuten
•Wiesbaden Zentrum: ca. 13 Min. (Bus), 15 Min. (PKW)
•Frankfurt Zentrum: ca. 25 Min.
•Flughafen Frankfurt: ca. 15 Min.
•Mainz Zentrum: ca. 30 Min.
•S-Bahn Hochheim: ca. 13 Min.
Frankfurt am Main, Mainz sowie der Flughafen sind schnell erreichbar.
Zukunftsperspektive
Die geplante Schnellbahntrasse „Wallauer Spange“ mit S-Bahn-Station in Delkenheim/Wallau wird die Verbindung Richtung Frankfurt weiter verbessern – ein zusätzlicher Standortvorteil.
Fazit
✔ Ruhige, naturnahe Lage
✔ Familienfreundliches Umfeld
✔ Sehr gute Infrastruktur
✔ Vielfältige Freizeitmöglichkeiten
✔ Optimale Verkehrsanbindung
Hier wohnen Sie entspannt im Grünen – und dennoch zentral im Rhein-Main-Gebiet.
Infrastruktur (im Umkreis von 5 km):
Apotheke, Lebensmittel-Discount, Allgemeinmediziner, Kindergarten, Grundschule, Gesamtschule, Öffentliche Verkehrsmittel
Kontaktanfrage senden
Über den Anbieter
OM PropTech GmbH
Humboldtstraße 25a
21509 Glinde
Kontakt
| Telefon | - |
| Fax | - |
| Website | www.ohne-makler.net |
Ansprechpartner/in
Privat von Herrn Biwer
Weitere Angebote des Anbieters
17
Barrierefreie 2-Zimmer Wohnung mit Aufzug (KfW 55)
Wohnung
56626 Andernach
Sie beziehen eine energieeffiziente, helle, barrierefreie und altersgerechte 2-Zimmer Wohnung. Das im Jahre 2024 komplett umgebaute und erweiterte Wohnhaus verfügt über die neuste Wärmepumpentechnik. Eine dezentrale ...
780 €
Kaltmiete (netto)
52 m²
Wohnfläche
2
Zimmer
17
Traumhafte sonnenverwöhnte Dachterrassenwohnung
Wohnung
79639 79639 Grenzach Wyhlen
Genießen Sie exklusives Wohnen in dieser bezaubernden Dachterrassenwohnung. Auf insgesamt großzügigen 155 m2 erwartet Sie eine sonnige Südseitenterrasse und viel Platz zum wohlfühlen und entspannen. Ein echtes ...
1.950 €
Kaltmiete (netto)
155 m²
Wohnfläche
4
Zimmer
36
Neuwertiges 6-Zimmer-Reihenhaus (Bj. 2021) mit Garten ...
Haus
65205 Wiesbaden-Nordenstadt
Angeboten wird ein neuwertiges, gepflegtes, liebevoll ausgestattetes und energieeffizientes Reihenmittelhaus mit Luft-Wärmepumpe in sehr guter Wohnlage von Wiesbaden-Nordenstadt. Das Haus überzeugt neben seiner ...
799.000 €
Kaufpreis
139 m²
Wohnfläche
6
Zimmer
30
Panoramablick über Bad Harzburg: Exklusive ...
Wohnung
38667 Bad Harzburg
LAGE – WILLKOMMEN IM SONNENWEG Der Sonnenweg liegt auf der sonnigen Südseite des Bad Harzburger Butterbergs und bietet einen beeindruckenden Weitblick über die Stadt. Das Gebäude aus dem Baujahr 1961 wurde im Jahr 2014 ...
1.290 €
Kaltmiete (netto)
115 m²
Wohnfläche
3
Zimmer
16
TOP vermietete 3-Zimmer-Wohnung in bester, zentraler ...
Wohnung
69190 Walldorf
Die 3-Zimmer-Wohnung befindet sich im Dachgeschoß in einer kleinen Wohneinheit mit 3 Parteien. Sie ist bestens geeignet zur Eigennutzung und Vermietung. Die Wohnung verfügt über einen großzügigen Wohn- und Essbereich ...
345.000 €
Kaufpreis
90 m²
Wohnfläche
3
Zimmer