Mehrgenerationenhaus – Gemeinsam leben und eigenständig wohnen
550.000 €
Kaufpreis
226,46 m²
Wohnfläche
6
Zimmer
immobilien.de Nr.: 9488173
Objektnummer: FALC-PRi-81838
Kaufpreis
| Kaufpreis | 550.000 € |
| Maklerprovision | keine Käuferprovision |
Wohnfläche, Grundstück & Bausubstanz
| Wohnfläche | 226,46 m² |
| Gesamtfläche | 694 m² |
| Grundstücksfläche | 694 m² |
| Zimmer | 6 |
| Verfügbar ab | keine Angabe |
| Zustand | Erstbezug |
Beschreibung der Immobilie
Mehrgenerationenhaus – Gemeinsam leben und eigenständig wohnen.
Dieses durchdacht geplante Mehrgenerationenhaus vereint Großzügigkeit, Energieeffizienz und Flexibilität in idealer Weise für Familien, die gemeinsam mit Eltern oder Schwiegereltern unter einem Dach leben möchten.
Die Gesamtwohnfläche von 226,46m² teilt sich wie folgt auf:
Hauptwohneinheit: 175,46 m² über zwei Stockwerke
Separate Wohneinheit: 51 m² im Erdgeschoss mit eigenem Eingang
Die Hauptwohneinheit mit 175,46 m² bietet großzügige Wohn- und Essbereiche, mehrere Schlafzimmer für Eltern und Kinder sowie flexible Räume für Homeoffice, Hobby oder Gäste. Hier entfaltet sich das Familienleben mit ausreichend Platz für jedes Familienmitglied. Die Raumstruktur ermöglicht sowohl gemeinschaftliche Bereiche als auch individuelle Rückzugsmöglichkeiten.
Die Einliegerwohnung eignet sich ideal für Großeltern, die die Nähe zu ihren Kindern und Enkeln genießen möchten und gleichzeitig ihre Eigenständigkeit bewahren wollen. Das Konzept ermöglicht ein harmonisches Miteinander mit klarer Privatsphäre und Unabhängigkeit.
Als Niedrigenergiehaus überzeugt die Immobilie durch:
- Reduzierte Energiekosten
- Zeitgemäße Bauweise
- Hohe Dämmstandards
- Nachhaltige Wertstabilität
Gerade bei einem Mehrpersonenhaushalt wirkt sich die energieeffiziente Bauweise positiv auf die laufenden Kosten aus und bietet langfristige Planungssicherheit.
Ein besonderer Vorteil liegt in der langfristigen Flexibilität der zweiten Wohneinheit. Sollte diese zu einem späteren Zeitpunkt nicht mehr durch die Großeltern genutzt werden, bestehen folgende Optionen:
- Wohnraum für heranwachsende oder erwachsene Kinder
- Separater Homeoffice- oder Praxisbereich
- Vermietung zur Generierung zusätzlicher Einnahmen
- Nutzung für Pflegekraft oder Betreuungsperson
Das Mehrgenerationenhaus bietet somit nicht nur ein Zuhause für heute, sondern ein nachhaltiges Wohnkonzept für verschiedene Lebensphasen.
Mehrgenerationenwohnen schafft:
- Gemeinsame Kinderbetreuung im Alltag
- Gegenseitige Unterstützung innerhalb der Familie
- Emotionale Nähe und Sicherheit
- Entlastung bei Pflege- oder Betreuungsbedarf
- Stärkung familiärer Bindungen
Dieses Haus richtet sich an Familien, die Verantwortung füreinander übernehmen möchten, ohne auf Wohnqualität, Komfort und Selbstbestimmung zu verzichten. Die Kombination aus 175,46 m² Hauptwohneinheit und 51 m² separater Wohneinheit bietet ein zukunftsfähiges, energieeffizientes und wirtschaftlich durchdachtes Wohnkonzept mit langfristiger Perspektive.
Dieses durchdacht geplante Mehrgenerationenhaus vereint Großzügigkeit, Energieeffizienz und Flexibilität in idealer Weise für Familien, die gemeinsam mit Eltern oder Schwiegereltern unter einem Dach leben möchten.
Die Gesamtwohnfläche von 226,46m² teilt sich wie folgt auf:
Hauptwohneinheit: 175,46 m² über zwei Stockwerke
Separate Wohneinheit: 51 m² im Erdgeschoss mit eigenem Eingang
Die Hauptwohneinheit mit 175,46 m² bietet großzügige Wohn- und Essbereiche, mehrere Schlafzimmer für Eltern und Kinder sowie flexible Räume für Homeoffice, Hobby oder Gäste. Hier entfaltet sich das Familienleben mit ausreichend Platz für jedes Familienmitglied. Die Raumstruktur ermöglicht sowohl gemeinschaftliche Bereiche als auch individuelle Rückzugsmöglichkeiten.
Die Einliegerwohnung eignet sich ideal für Großeltern, die die Nähe zu ihren Kindern und Enkeln genießen möchten und gleichzeitig ihre Eigenständigkeit bewahren wollen. Das Konzept ermöglicht ein harmonisches Miteinander mit klarer Privatsphäre und Unabhängigkeit.
Als Niedrigenergiehaus überzeugt die Immobilie durch:
- Reduzierte Energiekosten
- Zeitgemäße Bauweise
- Hohe Dämmstandards
- Nachhaltige Wertstabilität
Gerade bei einem Mehrpersonenhaushalt wirkt sich die energieeffiziente Bauweise positiv auf die laufenden Kosten aus und bietet langfristige Planungssicherheit.
Ein besonderer Vorteil liegt in der langfristigen Flexibilität der zweiten Wohneinheit. Sollte diese zu einem späteren Zeitpunkt nicht mehr durch die Großeltern genutzt werden, bestehen folgende Optionen:
- Wohnraum für heranwachsende oder erwachsene Kinder
- Separater Homeoffice- oder Praxisbereich
- Vermietung zur Generierung zusätzlicher Einnahmen
- Nutzung für Pflegekraft oder Betreuungsperson
Das Mehrgenerationenhaus bietet somit nicht nur ein Zuhause für heute, sondern ein nachhaltiges Wohnkonzept für verschiedene Lebensphasen.
Mehrgenerationenwohnen schafft:
- Gemeinsame Kinderbetreuung im Alltag
- Gegenseitige Unterstützung innerhalb der Familie
- Emotionale Nähe und Sicherheit
- Entlastung bei Pflege- oder Betreuungsbedarf
- Stärkung familiärer Bindungen
Dieses Haus richtet sich an Familien, die Verantwortung füreinander übernehmen möchten, ohne auf Wohnqualität, Komfort und Selbstbestimmung zu verzichten. Die Kombination aus 175,46 m² Hauptwohneinheit und 51 m² separater Wohneinheit bietet ein zukunftsfähiges, energieeffizientes und wirtschaftlich durchdachtes Wohnkonzept mit langfristiger Perspektive.
Ausstattungsmerkmale
| Bad | 3 |
| Balkone | 1 |
| Garten |
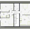
Hauptwohneinheit mit ca. 176m² über EG und OG
Erdgeschoss
- Eingangsbereich
- Wohn- und Essbereich mit Küche
- Hauswirtschafts- & Hausanschlussraum
Obergeschoss
- Elternschlafzimmer
- 2 Kinderzimmer/Büros
- Badezimmer Kinder
- Badezimmer Eltern
- Hauswirtschaftsraum
Die Einliegerwohnung mit 51 m² separat im EG mit eigenem Eingang
- Wohn- und Schlafbereich mit Küche
- Badezimmer
Ausreichend Bewegungsfläche für komfortables Wohnen im Alter.
Die Grundrisse sind individuell veränderbar und können an Ihre Bedürfnisse angepasst werden.
Als Ausbauhaus erhalten Sie alles was Sie benötigen und können so aktiv Kosten sparen.
Das Grundstück in Neuhausen-Schellbronn befindet sich durch den Anbieter im Privatbesitz. Bei Kauf wird das Grundstück vom Eigentümer erworben und das Haus durch den Fertighaushersteller.
Erdgeschoss
- Eingangsbereich
- Wohn- und Essbereich mit Küche
- Hauswirtschafts- & Hausanschlussraum
Obergeschoss
- Elternschlafzimmer
- 2 Kinderzimmer/Büros
- Badezimmer Kinder
- Badezimmer Eltern
- Hauswirtschaftsraum
Die Einliegerwohnung mit 51 m² separat im EG mit eigenem Eingang
- Wohn- und Schlafbereich mit Küche
- Badezimmer
Ausreichend Bewegungsfläche für komfortables Wohnen im Alter.
Die Grundrisse sind individuell veränderbar und können an Ihre Bedürfnisse angepasst werden.
Als Ausbauhaus erhalten Sie alles was Sie benötigen und können so aktiv Kosten sparen.
Das Grundstück in Neuhausen-Schellbronn befindet sich durch den Anbieter im Privatbesitz. Bei Kauf wird das Grundstück vom Eigentümer erworben und das Haus durch den Fertighaushersteller.
Sonstige Informationen
Der Angebotspreis enthält das Grundstück und das Haus als Ausbauhaus inkl. der wichtigsten Baunebenkosten.
Die Bilder können Anbauteile enthalten die zusätzliche Kosten verursachen.
Die Beschreibung beruht ganz oder zum Teil auf Angaben des Eigentümers. Für die Richtigkeit oder Vollständigkeit übernehmen wir keine Gewähr.
Vereinbaren Sie noch heute einen unverbindlichen Besichtigungstermin und überzeugen Sie sich selbst! Da wir die Termine für Besichtigungen mit größter Sorgfalt planen, bitten wir Sie um Verständnis dafür, dass Termine ausschließlich per E-Mail vereinbart werden können. Um fair und gerecht gegenüber jedem unserer Interessenten zu werden, ist dies unumgänglich. Wir freuen uns über Ihre Kontaktaufnahme! Geben Sie bitte immer die vollständige ADRESSE und RUFNUMMER an!
Ihr Ansprechpartner:
Philipp Ringwald
Mail: pforzheim(a)falcimmo.de
Tel.: +49 174 3133 125
Die Bilder können Anbauteile enthalten die zusätzliche Kosten verursachen.
Die Beschreibung beruht ganz oder zum Teil auf Angaben des Eigentümers. Für die Richtigkeit oder Vollständigkeit übernehmen wir keine Gewähr.
Vereinbaren Sie noch heute einen unverbindlichen Besichtigungstermin und überzeugen Sie sich selbst! Da wir die Termine für Besichtigungen mit größter Sorgfalt planen, bitten wir Sie um Verständnis dafür, dass Termine ausschließlich per E-Mail vereinbart werden können. Um fair und gerecht gegenüber jedem unserer Interessenten zu werden, ist dies unumgänglich. Wir freuen uns über Ihre Kontaktaufnahme! Geben Sie bitte immer die vollständige ADRESSE und RUFNUMMER an!
Ihr Ansprechpartner:
Philipp Ringwald
Mail: pforzheim(a)falcimmo.de
Tel.: +49 174 3133 125
Karte wird geladen...
Objektstandort
75242 Neuhausen
- Baden-Württemberg
Lage & Infrastruktur
Objektstandort
75242 Neuhausen
- Baden-Württemberg
Die Lage in Neuhausen im Enzkreis verbindet ruhiges Wohnen im Grünen mit kurzen Wegen in eine der stärksten Wirtschaftsregionen Deutschlands. Wer hier lebt, profitiert von einer spürbar entspannteren Alltagslogistik als im direkten Stuttgarter Stadtgebiet und bleibt dennoch nah an den großen Arbeitgebern.
Alltag und Familienleben
Direkt im Umfeld finden sich Angebote, die den Tagesablauf unkompliziert machen: Der Kindergarten Schellbronn sowie eine Kinderkrippe liegen in der Nähe, ebenso ein Spielplatz, der schnell zu Fuß erreichbar ist. Für den täglichen Einkauf stehen Supermärkte wie Lidl und Netto in der Umgebung zur Verfügung. Ergänzt wird das durch eine gute medizinische Basis mit Arztpraxen und Apotheken im nahen Umkreis.
Mobilität und Anbindung
Die nächste Bushaltestelle Schwanen liegt praktisch um die Ecke, weitere Haltepunkte sind ebenfalls schnell erreichbar. Für Pendler ist die Nähe zur Autobahn A 8 ein klarer Vorteil, die Auffahrt ist in wenigen Minuten erreichbar und verbindet zügig Richtung Stuttgart und Karlsruhe. Auch der Flughafen Stuttgart ist über die A 8 gut angebunden und je nach Verkehr in etwa 30 bis 40 Minuten erreichbar.
Arbeiten in der Region, ohne in Stuttgart wohnen zu müssen
Im Umkreis von rund 35 Minuten mit dem Auto erreichen Sie mehrere große Arbeitgeber und Entwicklungsstandorte der Region. Dazu zählen unter anderem Porsche in Stuttgart Zuffenhausen sowie das Porsche Entwicklungszentrum in Weissach. Auch wichtige Technologie und Entwicklungsstandorte wie Bosch in Renningen liegen in gut erreichbarer Distanz. Damit eignet sich die Lage besonders für Berufstätige, die in der Automobilindustrie oder in angrenzenden Technologiefeldern arbeiten und dennoch ein ruhigeres Wohnumfeld bevorzugen.
Vorteile gegenüber dem Wohnen im Stuttgarter Nahbereich
Im Vergleich zu vielen Lagen rund um Stuttgart bietet Neuhausen im Enzkreis mehr Ruhe, weniger innerstädtischen Verkehrsdruck und ein Umfeld, das stärker auf Wohnen und Natur ausgerichtet ist. Gleichzeitig bleiben Sie durch die A 8 und die regionale ÖPNV Anbindung flexibel. Das Ergebnis ist ein Standort, der Beruf und Privatleben besser entkoppeln kann: tagsüber schnell bei den Arbeitgebern, abends ankommen in einer entspannteren Umgebung mit kurzen Wegen zu Betreuung, Spielmöglichkeiten und Nahversorgung.
Alltag und Familienleben
Direkt im Umfeld finden sich Angebote, die den Tagesablauf unkompliziert machen: Der Kindergarten Schellbronn sowie eine Kinderkrippe liegen in der Nähe, ebenso ein Spielplatz, der schnell zu Fuß erreichbar ist. Für den täglichen Einkauf stehen Supermärkte wie Lidl und Netto in der Umgebung zur Verfügung. Ergänzt wird das durch eine gute medizinische Basis mit Arztpraxen und Apotheken im nahen Umkreis.
Mobilität und Anbindung
Die nächste Bushaltestelle Schwanen liegt praktisch um die Ecke, weitere Haltepunkte sind ebenfalls schnell erreichbar. Für Pendler ist die Nähe zur Autobahn A 8 ein klarer Vorteil, die Auffahrt ist in wenigen Minuten erreichbar und verbindet zügig Richtung Stuttgart und Karlsruhe. Auch der Flughafen Stuttgart ist über die A 8 gut angebunden und je nach Verkehr in etwa 30 bis 40 Minuten erreichbar.
Arbeiten in der Region, ohne in Stuttgart wohnen zu müssen
Im Umkreis von rund 35 Minuten mit dem Auto erreichen Sie mehrere große Arbeitgeber und Entwicklungsstandorte der Region. Dazu zählen unter anderem Porsche in Stuttgart Zuffenhausen sowie das Porsche Entwicklungszentrum in Weissach. Auch wichtige Technologie und Entwicklungsstandorte wie Bosch in Renningen liegen in gut erreichbarer Distanz. Damit eignet sich die Lage besonders für Berufstätige, die in der Automobilindustrie oder in angrenzenden Technologiefeldern arbeiten und dennoch ein ruhigeres Wohnumfeld bevorzugen.
Vorteile gegenüber dem Wohnen im Stuttgarter Nahbereich
Im Vergleich zu vielen Lagen rund um Stuttgart bietet Neuhausen im Enzkreis mehr Ruhe, weniger innerstädtischen Verkehrsdruck und ein Umfeld, das stärker auf Wohnen und Natur ausgerichtet ist. Gleichzeitig bleiben Sie durch die A 8 und die regionale ÖPNV Anbindung flexibel. Das Ergebnis ist ein Standort, der Beruf und Privatleben besser entkoppeln kann: tagsüber schnell bei den Arbeitgebern, abends ankommen in einer entspannteren Umgebung mit kurzen Wegen zu Betreuung, Spielmöglichkeiten und Nahversorgung.
Kontaktanfrage senden
Über den Anbieter
FALC Immobilien GmbH & Co. KG
Humperdickstr. 3
53773 Hennef (Sieg)
Kontakt
| Telefon | +49 800 6460646 |
| Mobil | +49 174 3133125 |
| Fax | +49 2242 9010319 |
| Website | www.falcimmo.de |
Ansprechpartner/in
Herr Philipp Ringwald
Weitere Angebote des Anbieters
49
Unser Platz im Grünen!
Haus
53578 Windhagen
Bitte sehen Sie sich unsere virtuelle 360° Besichtigung unter folgendem Link an, bevor Sie mit uns einen Besichtigungstermin vereinbaren: https://tour.ogulo.com/w3pC Sie sind auf der Suche nach einer Immobilie in der ...
485.000 €
Kaufpreis
157,23 m²
Wohnfläche
7
Zimmer
5
(A-A) Baugrundstück am Ortsrand in ruhiger Wohnlage
Grundstück
8551 Nagygyimót
Baugrundstück ortsüblich erschlossen in einem Vorort von Pápa. An dieser letzten Straße am nördlichen Ortsrand des kleinen Ortes können Sie wunderbar ruhig leben und sind doch in 10 Minuten in Pápa, wo alle Geschäfte, ...
14.950 €
Kaufpreis
2.309 m²
Grundstücksfläche
12
Dein neues Zuhause in Essen-Altenessen wartet auf Dich! ...
Wohnung
45326 Essen
Willkommen in dieser attraktiven Mietwohnung in Essen-Altenessen, die mit einer großzügigen Wohnfläche von 73,66m² überzeugt. Die Wohnung befindet sich im Dachgeschoss links eines gepflegten Mehrfamilienhauses und ist ...
620 €
Kaltmiete
8,42 €
Mietpreis pro m²
73,66 m²
Wohnfläche
3
Zimmer
22
Seltene Gelegenheit: Großzügiges Mehrgenerationenhaus ...
Haus
53177 Bonn
Eine Gelegenheit wie diese kommt in dieser Lage faktisch nicht zweimal auf den Markt. Dieses historische Mehrfamilienhaus aus dem Jahr 1902 wird zu Konditionen angeboten, die sich realistisch betrachtet auf ...
599.000 €
Kaufpreis
1976,9 €
Kaufpreis pro m²
303 m²
Wohnfläche
16
Zimmer
22
Toppreis, Nahezu Bodenpreis – EINMALIGE CHANCE IN ...
Zinshaus Renditeobjekt
53177 Bonn / Muffendorf
Eine Gelegenheit wie diese kommt in dieser Lage faktisch nicht zweimal auf den Markt. Dieses historische Mehrfamilienhaus aus dem Jahr 1902 wird zu Konditionen angeboten, die sich realistisch betrachtet auf ...
599.000 €
Kaufpreis
1976,9 €
Kaufpreis pro m²
303 m²
Wohnfläche
16
Zimmer