Luxuriöse 5-Zi.-Whg. mit Terrasse, Souterrain und TG-Stellplatz
1.389.000 €
Kaufpreis
125 m²
Wohnfläche
164 m²
Nutzfläche
5
Zimmer
immobilien.de Nr.: 9486844
Objektnummer: 01KJFC2THK0RR89P43B9ZED5YC
Kaufpreis
| Kaufpreis | 1.389.000 € |
| Hausgeld | 550 € |
| Maklerprovision | 3,57% inkl. 19.00% MwSt. |
Wohnfläche, Grundstück & Bausubstanz
| Wohnfläche | 125 m² |
| Nutzfläche | 164 m² |
| Grundstücksfläche | 0 m² |
| Zimmer | 5 |
| Baujahr | 2018 |
| Verfügbar ab | keine Angabe |
Energie
| Energieausweistyp | Bedarfsausweis |
| Ausstellungsdatum | 20. 12. 2018 |
| Gültig bis | 19/12/2028 |
| Baujahr (laut Energieausweis) | 2018 |
| Energieeffizienzklasse | B |
| Endenergiebedarf | 56.2 |
| Wesentlicher Energieträger | Fernwärme |
Beschreibung der Immobilie
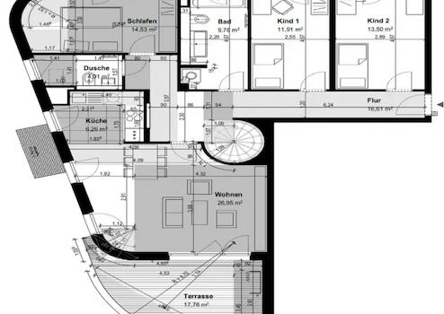
Zum Verkauf steht eine neuwertige 5-Zimmer-Wohnung in einer exklusiven Wohnanlage (Fertigstellung: 2019).
Die Wohnung verfügt über ca. 125 m² Wohnfläche sowie über eine Gesamtnutzfläche von ca. 164 m², einschließlich einer zusätzlichen Souterrainfläche mit integriertem Kellerraum.
Sie bietet einen großzügigen Wohn-/Essbereich mit offener Küche, drei weitere Schlafzimmer, eine zusätzliche Lounge im Souterrain, zwei Bäder sowie eine ca. 18 m² große Südterrasse.
Die Raumaufteilung ist klar strukturiert und vielseitig nutzbar – ideal sowohl für Familien als auch für Paare mit erhöhtem Platzbedarf.
Die Ausstattung entspricht einem gehobenen Neubaustandard und umfasst unter anderem Fußbodenheizung, bodentiefe Fenster sowie maßgefertigte Einbauten.
Ein Tiefgaragen-Einzelstellplatz kann für 30.000 Euro zusätzlich erworben werden.
Für das Gemeinschaftseigentum hat die Gewährleistungsfrist noch nicht begonnen und beträgt ab Beginn weitere fünf Jahre.
Die Wohnung verfügt über ca. 125 m² Wohnfläche sowie über eine Gesamtnutzfläche von ca. 164 m², einschließlich einer zusätzlichen Souterrainfläche mit integriertem Kellerraum.
Sie bietet einen großzügigen Wohn-/Essbereich mit offener Küche, drei weitere Schlafzimmer, eine zusätzliche Lounge im Souterrain, zwei Bäder sowie eine ca. 18 m² große Südterrasse.
Die Raumaufteilung ist klar strukturiert und vielseitig nutzbar – ideal sowohl für Familien als auch für Paare mit erhöhtem Platzbedarf.
Die Ausstattung entspricht einem gehobenen Neubaustandard und umfasst unter anderem Fußbodenheizung, bodentiefe Fenster sowie maßgefertigte Einbauten.
Ein Tiefgaragen-Einzelstellplatz kann für 30.000 Euro zusätzlich erworben werden.
Für das Gemeinschaftseigentum hat die Gewährleistungsfrist noch nicht begonnen und beträgt ab Beginn weitere fünf Jahre.
Ausstattungsmerkmale
| Küche | Einbauküche |
| Bad | 2 |
| Bad | Dusche, Fenster |
| Boden | Parkett, Dielen |
| Fahrstuhl | |
| Barrierefrei | |
| Keller |
Karte wird geladen...
Objektstandort
81673 München
Lage & Infrastruktur
Objektstandort
81673 München
Das Wohnquartier zählt zu den qualitativ hochwertigsten Neubauentwicklungen Münchens der letzten Jahre und wurde für seine städtebauliche sowie landschaftsarchitektonische Gestaltung mehrfach ausgezeichnet.
Die Kombination aus moderner Infrastruktur, durchdachter Quartiersplanung und einem hochwertigen Wohnumfeld schafft ideale Voraussetzungen für eine nachhaltige Wertentwicklung.
Die Kombination aus moderner Infrastruktur, durchdachter Quartiersplanung und einem hochwertigen Wohnumfeld schafft ideale Voraussetzungen für eine nachhaltige Wertentwicklung.
Kontaktanfrage senden
Über den Anbieter
Golden Home Ltd & Co KG
Unter den Linden 10
10117 Berlin
Kontakt
| Telefon | 00491716933306 |
| Mobil | 00491716933306 |
Ansprechpartner/in
Benjamin Steflbauer
Weitere Angebote des Anbieters
12
Ihr neues Zuhause an der Havel
Haus
14089 Berlin
In idyllischer, grüner Lage und nur wenige Schritte von der Havel entfernt befindet sich dieses massiv gebaute Einfamilienhaus mit klassischem Satteldach. Das ca. 630 m² große Hanggrundstück eröffnet einen traumhaften ...
750.000 €
Kaufpreis
130 m²
Wohnfläche
5
Zimmer
5
Bezugsfreies Dachgeschoss mit Potenzial
Wohnung
13587 Berlin
Diese rund 62 m² große Dachgeschosswohnung liegt in einer beliebten Wohngegend und ist angenehm ruhig. Sie eignet sich gleichermaßen für Kapitalanleger wie für Eigennutzer. Da die Einheit leerstehend und sofort ...
200.000 €
Kaufpreis
62 m²
Wohnfläche
2
Zimmer
6
Ihr neues Zuhause im Grünen
Wohnung
13593 Berlin
In gefragter, familienfreundlicher Lage von Wilhelmstadt entsteht ein modernes Mehrfamilienhaus mit acht hochwertig geplanten Eigentumswohnungen – drei Einheiten sind bereits reserviert. Das Neubauprojekt überzeugt ...
655.000 €
Kaufpreis
76,83 m²
Wohnfläche
3
Zimmer
7
Kapitalanlage mit Zukunft an der Havel
Wohnung
13593 Berlin
In gefragter Wohnlage von Wilhelmstadt entsteht ein modernes Neubauprojekt mit acht hochwertig ausgestatteten Eigentumswohnungen – drei Einheiten sind bereits reserviert. Die Immobilie vereint nachhaltige Bauweise mit ...
530.000 €
Kaufpreis
76,63 m²
Wohnfläche
3
Zimmer
13
Stilvoll saniert – einziehen und wohlfühlen
Wohnung
10625 Berlin
Diese hochwertig modernisierte Wohnung begeistert durch klare Linien, eine durchdachte Raumaufteilung und ein harmonisches Gesamtbild. Im Jahr 2024 wurde sie mit großem Qualitätsanspruch umfassend saniert. Bad, Küche, ...
635.000 €
Kaufpreis
72,46 m²
Wohnfläche
3
Zimmer