Streif Effizienzhaus KFW40 +
760.000 €
Kaufpreis
205 m²
Wohnfläche
205 m²
Nutzfläche
5
Zimmer
immobilien.de Nr.: 9477510
Objektnummer: BV25648524
Kaufpreis
| Kaufpreis | 760.000 € |
Wohnfläche, Grundstück & Bausubstanz
| Wohnfläche | 205 m² |
| Nutzfläche | 205 m² |
| Grundstücksfläche | 460 m² |
| Zimmer | 5 |
| Baujahr | 2026 |
| Verfügbar ab | keine Angabe |
Energie
| Energietyp | KfW-40 |
| Heizungsart | Zentralheizung |
| Energieträger/Befeuerung | Luft-Wärme-Pumpe |
Beschreibung der Immobilie
Willkommen in Ihrer zukünftigen Stadtvillal!
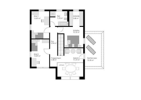
Mit einer großzügigen Wohnfläche von 205 m² und einem durchdachten Grundriss, der Ihnen 5 Zimmer für individuelles Wohnen bietet, ist dieses Objekt der ideale Ort für Familien oder Paare, die Wert auf Raum und Komfort legen. Die Stadtvilla erstreckt sich über zwei Etagen und umfasst drei einladende Schlafzimmer, ein stilvolles Badezimmer sowie einen offenen Wohn- und Essbereich, der zum Verweilen und Entspannen einlädt. Der Außenbereich mit einem Grundstück von 460 m² bietet ausreichend Platz für Ihren persönlichen Garten oder eine Terrasse für gesellige Abende im Freien. Hier gestalten Sie Ihr Leben nach Ihren Vorstellungen!
Mit einer großzügigen Wohnfläche von 205 m² und einem durchdachten Grundriss, der Ihnen 5 Zimmer für individuelles Wohnen bietet, ist dieses Objekt der ideale Ort für Familien oder Paare, die Wert auf Raum und Komfort legen. Die Stadtvilla erstreckt sich über zwei Etagen und umfasst drei einladende Schlafzimmer, ein stilvolles Badezimmer sowie einen offenen Wohn- und Essbereich, der zum Verweilen und Entspannen einlädt. Der Außenbereich mit einem Grundstück von 460 m² bietet ausreichend Platz für Ihren persönlichen Garten oder eine Terrasse für gesellige Abende im Freien. Hier gestalten Sie Ihr Leben nach Ihren Vorstellungen!
Ausstattungsmerkmale
| Anzahl der Etagen im Haus | 2 |
| Bad | 1 |
Die Stadtvilla entspricht dem modernen KFW40 Standard und wird durch eine effiziente Wärmepumpe beheizt. Diese Befeuerungsart ist nicht nur umweltfreundlich, sondern sorgt auch für niedrige Energiekosten. Mit der Ausbaustufe 'FastFertigPlus' sind die haustechnischen Gewerke wie Heizung, Lüftung und Sanitär bereits durch einen Fachbetrieb installiert, während Sie die Möglichkeit haben, bei der Gestaltung Ihres Zuhauses aktiv mitzuarbeiten. Die Standardausstattung bietet Ihnen eine hervorragende Grundlage, die Sie nach Belieben erweitern können.
Sonstige Informationen
Die Ausbaustufe 'FastFertigPlus' ermöglicht es Ihnen, aktiv an der Erstellung Ihres Traumhauses mitzuwirken. Darin enthalten sind alle wesentlichen Leistungen zur Grundausstattung des Hauses - ideal für Bauherren, die handwerklich begabt sind und Eigenleistungen erbringen möchten. Bei STREIF haben Sie zudem eine große Auswahl an Gestaltungsmöglichkeiten: Ob mit Keller oder ohne, Flachdach oder Walmdach - Ihre persönliche STREIF-Bauberatung vor Ort wird all Ihre Wünsche berücksichtigen und zahlreiche Gestaltungsmöglichkeiten aufzeigen.
Karte wird geladen...
Objektstandort
64521 Groß-Gerau
Lage & Infrastruktur
Objektstandort
64521 Groß-Gerau
Die Stadtvilla befindet sich in einer ruhigen und familienfreundlichen Gegend von Groß-Geraul. Die Lage vereint idyllisches Wohnen mit guter Anbindung an das städtische Leben. Genießen Sie die Vorteile einer naturnahen Umgebung mit Parks und Grünflächen in unmittelbarer Nähe, während Sie gleichzeitig von den Annehmlichkeiten des urbanen Lebens profitieren: Einkaufsmöglichkeiten, Schulen und Freizeitangebote sind bequem erreichbar. Ein perfekter Standort für Ihr neues Zuhause!
Kontaktanfrage senden
Über den Anbieter
STREIF Haus GmbH
Josef-Streif-Straße 1
54595 Weinsheim
Kontakt
| Mobil | +49 176 61370032 |
| Website | www.streif.de |
Ansprechpartner/in
Herr Frank Kress - STREIF Handelsvertreter
Weitere Angebote des Anbieters
31
**Luxuriöses Wohnen: Entdecken Sie die Stadtvilla ...
Haus
38176 Wendeburg
Willkommen in Ihrer zukünftigen Traumstadtvilla in Wendeburg/ Neubrück, die mit STREIF nach Ihren individuellen Wünschen projektiert wird. Diese exklusive Residenz bietet Ihnen auf 190,29 m² Wohnfläche ein geräumiges ...
713.782,2 €
Kaufpreis
190,29 m²
Wohnfläche
6
Zimmer
35
**Endlich raus aus der Miete - jetzt starten mit ...
Haus
31688 Nienstädt
Willkommen in Ihrem Traumhaus! Dieses Einfamilienhaus, projektiert nach Ihren individuellen Wünschen, bietet Ihnen die perfekte Kombination aus modernem Design und höchstem Wohnkomfort. Mit einer großzügigen Wohnfläche ...
481.229 €
Kaufpreis
143,84 m²
Wohnfläche
4
Zimmer
32
**Familienfreundlicher Bungalow mit perfekter ...
Haus
31226 Peine
Tauchen Sie ein in die Welt des modernen Wohnens mit unserem projektierten Bungalow, der individuell nach Ihren Wünschen gestaltet wird. Auf einer großzügigen Wohnfläche von 93,51 m² verteilen sich geschmackvoll 3,0 ...
495.050 €
Kaufpreis
93,51 m²
Wohnfläche
3
Zimmer
9
Vorankündigung - Wohnen next Level by STREIF DHH
Haus
53844 Troisdorf
Hochwertiges Effizienzhaus-40-PLUS >> Planung nach modernsten Wohnkriterien.
649.800 €
Kaufpreis
149 m²
Wohnfläche
6
Zimmer
8
-inkl. Grundstück-Ihre neue STREIF Doppelhaushälfte in ...
Haus
38108 Braunschweig
Der Preis bezieht sich auf das Haus inkl. Baunebenkosten und einschließlich Grundstück. Die Grunderwerbsteuer fällt nur auf die Grundstückskosten an. Herzlich willkommen bei STREIF, Ihrem zuverlässigen Partner für den ...
620.000 €
Kaufpreis
140 m²
Wohnfläche
4
Zimmer