Heute Kapitalanlage – morgen Zuhause: 2 Zimmer im sanierten Gründerzeithaus
150.000 €
Kaufpreis
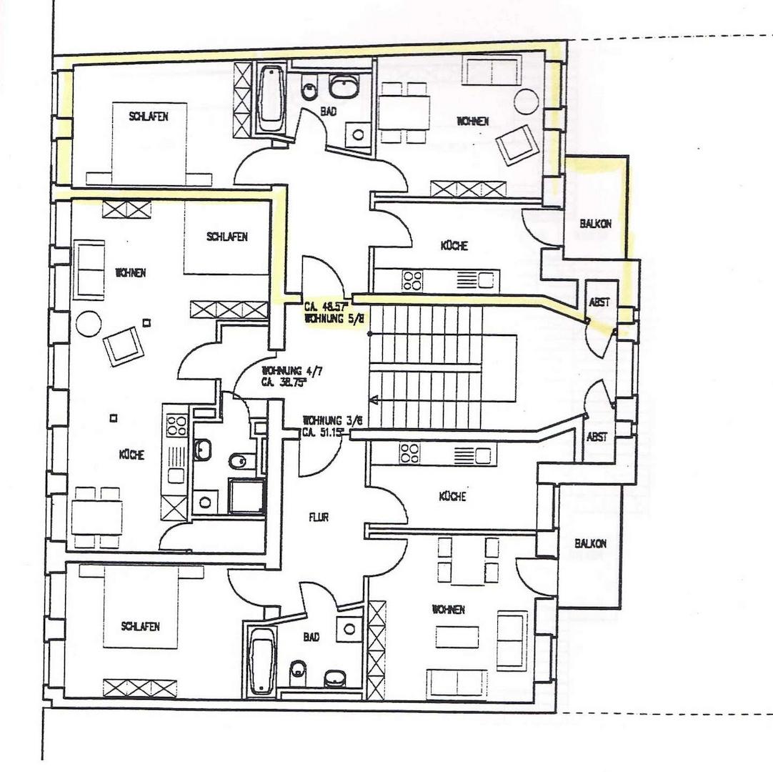
48,57 m²
Wohnfläche
2
Zimmer
immobilien.de Nr.: 9465589
Objektnummer: 606060
Kaufpreis
| Kaufpreis | 150.000 € |
| Kaufpreis pro m² | 3088,32 € |
| Maklerprovision | 5.355,-€ |
Wohnfläche, Grundstück & Bausubstanz
| Wohnfläche | 48,57 m² |
| Zimmer | 2 |
| Baujahr | 1906 |
| Letzte Modernisierung | 1996 |
| Verfügbar ab | keine Angabe |
| Zustand | Voll Saniert |
Energie
| Heizungsart | Zentralheizung |
| Wesentlicher Energieträger | Gas |
| Energieträger/Befeuerung | Gas |
Beschreibung der Immobilie
Die angebotene 2-Zimmer-Wohnung befindet sich im Vorderhaus eines denkmalgeschützten Mehrfamilienhauses aus dem Jahr 1906, das 1996 umfassend kernsaniert wurde.
Auf ca. 48,6 m² verteilen sich zwei gut geschnittene Zimmer, Küche und Bad. In den Wohnräumen ist Eiche-Parkett verlegt, Küche, Flur und Bad sind gefliest. Vom Küchenbereich aus gelangt man auf den Balkon. Das Bad verfügt über Wanne, Handtuchheizkörper und Waschmaschinenanschluss. Ein separater Abstellraum sowie ein Kellerabteil ergänzen das Platzangebot.
Ein gemeinschaftlich nutzbarer, begrünter Innenhof steht den Bewohnern ebenfalls zur Verfügung und bietet unter anderem Abstellmöglichkeiten für Fahrräder.
Weitere Informationen erhalten Sie gerne auf Anfrage.
" frisch, engagiert, solide "
Die Künne Immobilien Gruppe ist professioneller Dienstleister der Immobilienbranche und steht Ihnen in den Bereichen Projektentwicklung, Verkauf, Vermietung, Verwaltung und Facility Management zur Verfügung.
Für weitere Informationen und Einblicke besuchen Sie unsere Homepage: www.kuenne-gruppe.de Sie wollen Ihre Immobilie verkaufen? Egal ob Mehrfamilien- oder Einfamilienhaus, Eigentumswohnung, Grundstück oder Neubau- bzw. Bauträgerprojekt. Wir vermitteln kompetent, transparent und zügig Ihre Immobilie, bundesweit.
Auf ca. 48,6 m² verteilen sich zwei gut geschnittene Zimmer, Küche und Bad. In den Wohnräumen ist Eiche-Parkett verlegt, Küche, Flur und Bad sind gefliest. Vom Küchenbereich aus gelangt man auf den Balkon. Das Bad verfügt über Wanne, Handtuchheizkörper und Waschmaschinenanschluss. Ein separater Abstellraum sowie ein Kellerabteil ergänzen das Platzangebot.
Ein gemeinschaftlich nutzbarer, begrünter Innenhof steht den Bewohnern ebenfalls zur Verfügung und bietet unter anderem Abstellmöglichkeiten für Fahrräder.
Weitere Informationen erhalten Sie gerne auf Anfrage.
" frisch, engagiert, solide "
Die Künne Immobilien Gruppe ist professioneller Dienstleister der Immobilienbranche und steht Ihnen in den Bereichen Projektentwicklung, Verkauf, Vermietung, Verwaltung und Facility Management zur Verfügung.
Für weitere Informationen und Einblicke besuchen Sie unsere Homepage: www.kuenne-gruppe.de Sie wollen Ihre Immobilie verkaufen? Egal ob Mehrfamilien- oder Einfamilienhaus, Eigentumswohnung, Grundstück oder Neubau- bzw. Bauträgerprojekt. Wir vermitteln kompetent, transparent und zügig Ihre Immobilie, bundesweit.
Ausstattungsmerkmale
| Anzahl der Etagen im Haus | 4 |
| Inserat befindet sich im Stockwerk | 2 |
| Küche | Einbauküche |
| Bad | 1 |
| Bad | Wanne |
| Boden | Fliesen, Parkett |
| Balkone | 1 |
| Keller |
Sonstige Informationen
Alle Angaben sind ohne Gewähr und basieren ausschließlich auf Informationen, die uns von unserem Auftraggeber zur Verfügung gestellt wurden. Wir übernehmen keine Gewähr für die Vollständigkeit, Richtigkeit und Aktualität dieser Angaben.
Karte wird geladen...
Objektstandort
04177 Leipzig
- Sachsen
Lage & Infrastruktur
Objektstandort
04177 Leipzig
- Sachsen
Altlindenau ist ein zentral gelegener Stadtteil im Westen Leipzigs, nur knapp 2 km vom Stadtzentrum entfernt. Der Stadtteil zeichnet sich durch gut erhaltene Gründerzeitarchitektur, eine ruhige Wohnatmosphäre und eine stetige Aufwertung aus.
Durch die Nähe zum Leipziger Auenwald sowie zum Lindenauer Markt mit seinem kulturellen Angebot bietet Altlindenau sowohl Erholung als auch urbanes Leben. Die Anbindung an den öffentlichen Nahverkehr ist außerdem sehr gut – mehrere Straßenbahn- und Buslinien verbinden den Stadtteil direkt mit der Innenstadt.
Durch die Nähe zum Leipziger Auenwald sowie zum Lindenauer Markt mit seinem kulturellen Angebot bietet Altlindenau sowohl Erholung als auch urbanes Leben. Die Anbindung an den öffentlichen Nahverkehr ist außerdem sehr gut – mehrere Straßenbahn- und Buslinien verbinden den Stadtteil direkt mit der Innenstadt.
Kontaktanfrage senden
Über den Anbieter
Marko Künne Immobilien
Käthe-Kollwitz-Str. 58c
04109 Leipzig
Kontakt
| Telefon | 0341 442 9566 |
| Fax | 0341 2253930 |
| Website | www.kuenne-immobilien.de |