Lichtdurchflutete 3,5-Zimmer-Wohnung in Gelsenkirchen-Horst
240.000 €
Kaufpreis
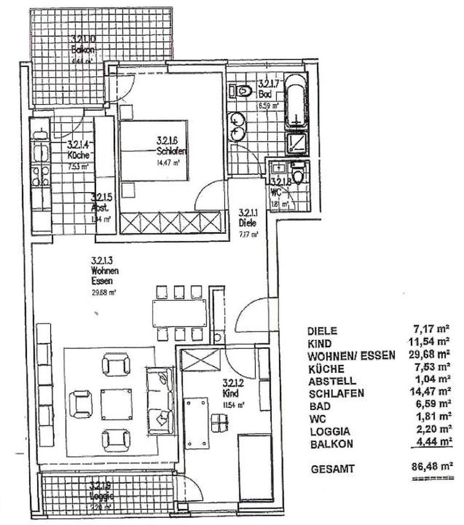
86,48 m²
Wohnfläche
3,5
Zimmer
immobilien.de Nr.: 9460146
Objektnummer: 419410
Kaufpreis
| Kaufpreis | 240.000 € |
| Hausgeld | 476 € |
| Maklerprovision | keine Provision, courtagefrei |
Wohnfläche, Grundstück & Bausubstanz
| Wohnfläche | 86,48 m² |
| Zimmer | 3,5 |
| Baujahr | 2001 |
| Verfügbar ab | nach Absprache |
| Zustand | Gepflegt |
Energie
| Energieausweistyp | Verbrauch |
| Energieeffizienzklasse | C |
| Energieverbrauchkennwert | 79 kWh/(m²*a) |
| Heizungsart | Fußbodenheizung |
| Energieträger/Befeuerung | Gas |
Beschreibung der Immobilie
Willkommen in Ihrem neuen Zuhause in Gelsenkirchen-Horst – einer modernen, barrierefreien 3,5-Zimmer-Wohnung, die Licht, Komfort und Funktionalität auf ideale Weise verbindet. Zwei überdachte Balkone (Balkon + Loggia), eine hochwertige Fußbodenheizung und bodentiefe Fenster schaffen ein angenehmes Wohngefühl mit viel Tageslicht und Raum zum Entspannen.
Hier genießen Sie ruhiges Wohnen mit kurzen Wegen – perfekt für Paare, kleine Familien oder Menschen, die Wert auf barrierefreies, komfortables Wohnen legen.
Raumaufteilung & Ausstattung
Die Wohnung umfasst 86,48 m² und überzeugt durch eine durchdachte Aufteilung:
• Großzügiges Wohnzimmer mit Essbereich – hell, offen und mit Zugang zum kleinen Balkon
• Schlafzimmer mit bodentiefen Fenstern und Zugang zum großen Balkon
• Kinder- oder Gästezimmer mit Balkontür
• Separate Küche (mit Elektrogeräten, Umluft-Abzugshaube, Außenabzug vorhanden)
• Tageslichtbad mit Dusche (Grohe Regendusche, 2021), Badewanne mit Massagefunktion und zwei Fenstern
• Gäste-WC mit Abluftventilator
• Flur mit komfortabler Aufteilung
Die gesamte Wohnung ist mit Fußbodenheizung ausgestattet.
Alle Fenster verfügen über elektrische Rollläden (neu 2021), das Bad über manuelle Rolläden mit Gurt.
Zwei Balkone für jeden Moment des Tages
Die überdachten Balkone erweitern Ihren Wohnraum ins Freie:
• Der kleinere Balkon (Wohn- & Kinderzimmer) ist ideal für den Morgenkaffee.
• Der große Balkon (Küche & Schlafzimmer) bietet Platz für eine gemütliche Sitzecke oder einen Esstisch für vier Personen – perfekt für laue Sommerabende.
Komfort im Alltag
• Tiefgaragenstellplatz mit Wallbox (11 kW, 2023) direkt am Eingang – bequemes Ein- und Aussteigen garantiert
• Kellerraum (5,48 m²) sowie Waschmaschinen- und Trocknerstellplatz
• Gemeinschaftsgarten mit Sandkasten und Sitzgelegenheiten
• Fahrradkeller und Aufzug vorhanden
• DSL & Kabelanschluss inklusive Funkablesung der Zähler
Modernisierungen & Zustand
Die Wohnung wurde regelmäßig modernisiert und befindet sich in einem gepflegten, sofort bezugsfertigen Zustand:
• 2021: elektrische Rollläden, neue Fußböden (Wohn-, Schlaf-, Kinderzimmer), Regendusche (Grohe)
• 2023: Wallbox in der Tiefgarage
• 2025: digitaler Stromzähler
• Antrag auf Balkonkraftwerk (Ostausrichtung, ca. 500–600 kWh p.a.) gestellt – zur eigenen Nutzung möglich
Die Eigentümergemeinschaft ist bestens aufgestellt:
Eine sehr gute Instandhaltungsrücklage sorgt für langfristige Sicherheit.
Das monatliche Hausgeld (inkl. Heizung, Wasser, Rücklage, Aufzug, Flurreinigung, Tiefgaragenreinigung, Winterdienst, Gartenpflege) beträgt 476,00 € bei aktuell drei Personen.
Fazit
Diese Wohnung verbindet Komfort, Qualität und eine hervorragende Lage.
Barrierefreiheit, moderne Ausstattung, zwei Balkone und ein Tiefgaragenstellplatz mit Wallbox machen sie zu einem idealen Zuhause für anspruchsvolle Käufer, die Wert auf gepflegtes, sorgenfreies Wohnen legen.
Hier erwartet Sie kein Kompromiss, sondern eine Wohnung, die Komfort und Lebensfreude vereint.
Hier genießen Sie ruhiges Wohnen mit kurzen Wegen – perfekt für Paare, kleine Familien oder Menschen, die Wert auf barrierefreies, komfortables Wohnen legen.
Raumaufteilung & Ausstattung
Die Wohnung umfasst 86,48 m² und überzeugt durch eine durchdachte Aufteilung:
• Großzügiges Wohnzimmer mit Essbereich – hell, offen und mit Zugang zum kleinen Balkon
• Schlafzimmer mit bodentiefen Fenstern und Zugang zum großen Balkon
• Kinder- oder Gästezimmer mit Balkontür
• Separate Küche (mit Elektrogeräten, Umluft-Abzugshaube, Außenabzug vorhanden)
• Tageslichtbad mit Dusche (Grohe Regendusche, 2021), Badewanne mit Massagefunktion und zwei Fenstern
• Gäste-WC mit Abluftventilator
• Flur mit komfortabler Aufteilung
Die gesamte Wohnung ist mit Fußbodenheizung ausgestattet.
Alle Fenster verfügen über elektrische Rollläden (neu 2021), das Bad über manuelle Rolläden mit Gurt.
Zwei Balkone für jeden Moment des Tages
Die überdachten Balkone erweitern Ihren Wohnraum ins Freie:
• Der kleinere Balkon (Wohn- & Kinderzimmer) ist ideal für den Morgenkaffee.
• Der große Balkon (Küche & Schlafzimmer) bietet Platz für eine gemütliche Sitzecke oder einen Esstisch für vier Personen – perfekt für laue Sommerabende.
Komfort im Alltag
• Tiefgaragenstellplatz mit Wallbox (11 kW, 2023) direkt am Eingang – bequemes Ein- und Aussteigen garantiert
• Kellerraum (5,48 m²) sowie Waschmaschinen- und Trocknerstellplatz
• Gemeinschaftsgarten mit Sandkasten und Sitzgelegenheiten
• Fahrradkeller und Aufzug vorhanden
• DSL & Kabelanschluss inklusive Funkablesung der Zähler
Modernisierungen & Zustand
Die Wohnung wurde regelmäßig modernisiert und befindet sich in einem gepflegten, sofort bezugsfertigen Zustand:
• 2021: elektrische Rollläden, neue Fußböden (Wohn-, Schlaf-, Kinderzimmer), Regendusche (Grohe)
• 2023: Wallbox in der Tiefgarage
• 2025: digitaler Stromzähler
• Antrag auf Balkonkraftwerk (Ostausrichtung, ca. 500–600 kWh p.a.) gestellt – zur eigenen Nutzung möglich
Die Eigentümergemeinschaft ist bestens aufgestellt:
Eine sehr gute Instandhaltungsrücklage sorgt für langfristige Sicherheit.
Das monatliche Hausgeld (inkl. Heizung, Wasser, Rücklage, Aufzug, Flurreinigung, Tiefgaragenreinigung, Winterdienst, Gartenpflege) beträgt 476,00 € bei aktuell drei Personen.
Fazit
Diese Wohnung verbindet Komfort, Qualität und eine hervorragende Lage.
Barrierefreiheit, moderne Ausstattung, zwei Balkone und ein Tiefgaragenstellplatz mit Wallbox machen sie zu einem idealen Zuhause für anspruchsvolle Käufer, die Wert auf gepflegtes, sorgenfreies Wohnen legen.
Hier erwartet Sie kein Kompromiss, sondern eine Wohnung, die Komfort und Lebensfreude vereint.
Ausstattungsmerkmale
| Inserat befindet sich im Stockwerk | 2 |
| Küche | Einbauküche |
| Bad | 1 |
| Bad | Dusche |
| Boden | Fliesen, Laminat |
| Balkone | 1 |
| Garten | |
| Terrassen | 0 |
| Fahrstuhl | |
| Barrierefrei | |
| Keller |
Balkon, Garten, Keller, Fahrstuhl, Duschbad, Einbauküche, Gäste-WC, Barrierefrei, Laminat, Fliesen
Sonstige Informationen
Heizungsart: Fußbodenheizung
Energieträger: Gas
Highlights auf einen Blick
• Barrierefreie, lichtdurchflutete 3,5-Zimmer-Wohnung
• Zwei überdachte Balkone
• Tiefgaragenstellplatz mit 11 kW-Wallbox
• Fußbodenheizung in allen Räumen
• Moderne Sanitärausstattung mit Regendusche & Badewanne mit Whirlpool-Funktion
• Gepflegte Eigentümergemeinschaft mit hoher Rücklage
• Zentrale Lage in Gelsenkirchen-Horst – alles fußläufig erreichbar
• Antrag auf Balkonkraftwerk (2025)
Rundum- Sorglos Paket mit Flurreingung, Tiefgaragenreinigung, Winterdienst, Aufzug
Makleranfragen nicht erwünscht. Nach § 7 UWG sind unaufgeforderte Kontaktaufnahmen durch Makler ohne ausdrückliche Einwilligung des Empfängers verboten!
ohne-makler (OM) ist weder Anbieter noch Vermittler der Immobilie. OM betreibt eine Plattform für Immobilieneigentümer, die unter anderem die gleichzeitige Veröffentlichung einzelner Inserate auf mehreren Immobilienportalen ermöglicht. Die Inhalte dieser Inserate werden ausschließlich von Dritten verantwortet. Für die Richtigkeit, Vollständigkeit oder Rechtmäßigkeit der Angaben übernimmt OM keine Haftung. Hinweise auf mögliche Rechtsverstöße können jederzeit gemeldet werden und werden nach Prüfung umgehend bearbeitet.
Energieträger: Gas
Highlights auf einen Blick
• Barrierefreie, lichtdurchflutete 3,5-Zimmer-Wohnung
• Zwei überdachte Balkone
• Tiefgaragenstellplatz mit 11 kW-Wallbox
• Fußbodenheizung in allen Räumen
• Moderne Sanitärausstattung mit Regendusche & Badewanne mit Whirlpool-Funktion
• Gepflegte Eigentümergemeinschaft mit hoher Rücklage
• Zentrale Lage in Gelsenkirchen-Horst – alles fußläufig erreichbar
• Antrag auf Balkonkraftwerk (2025)
Rundum- Sorglos Paket mit Flurreingung, Tiefgaragenreinigung, Winterdienst, Aufzug
Makleranfragen nicht erwünscht. Nach § 7 UWG sind unaufgeforderte Kontaktaufnahmen durch Makler ohne ausdrückliche Einwilligung des Empfängers verboten!
ohne-makler (OM) ist weder Anbieter noch Vermittler der Immobilie. OM betreibt eine Plattform für Immobilieneigentümer, die unter anderem die gleichzeitige Veröffentlichung einzelner Inserate auf mehreren Immobilienportalen ermöglicht. Die Inhalte dieser Inserate werden ausschließlich von Dritten verantwortet. Für die Richtigkeit, Vollständigkeit oder Rechtmäßigkeit der Angaben übernimmt OM keine Haftung. Hinweise auf mögliche Rechtsverstöße können jederzeit gemeldet werden und werden nach Prüfung umgehend bearbeitet.
Karte wird geladen...
Objektstandort
45899 Gelsenkirchen
- Nordrhein-Westfalen
Lage & Infrastruktur
Objektstandort
45899 Gelsenkirchen
- Nordrhein-Westfalen
zentral & grün
Gelsenkirchen-Horst überzeugt durch eine angenehme Mischung aus Natur, Kultur und urbaner Nähe.
Das historische Schloss Horst mit Park, Bürgercenter und Stadtbücherei liegt nur wenige Gehminuten entfernt.
Einkaufsmöglichkeiten wie Netto, Rossmann, dm, Penny und REWE sind bequem fußläufig erreichbar.
Schulen, Kitas, Ärzte und Apotheken befinden sich in direkter Umgebung.
Die Haltestelle Schloss Horst (ca. 6 Minuten zu Fuß) bietet Anbindung an Essen, Bottrop, Gladbeck und die Gelsenkirchener Innenstadt.
Der nahegelegene Nordsternpark lädt zu Spaziergängen, Fahrradtouren und kulturellen Events ein – ein Highlight für Freizeit und Erholung.
Infrastruktur (im Umkreis von 5 km):
Apotheke, Lebensmittel-Discount, Allgemeinmediziner, Kindergarten, Grundschule, Gesamtschule, Öffentliche Verkehrsmittel
Gelsenkirchen-Horst überzeugt durch eine angenehme Mischung aus Natur, Kultur und urbaner Nähe.
Das historische Schloss Horst mit Park, Bürgercenter und Stadtbücherei liegt nur wenige Gehminuten entfernt.
Einkaufsmöglichkeiten wie Netto, Rossmann, dm, Penny und REWE sind bequem fußläufig erreichbar.
Schulen, Kitas, Ärzte und Apotheken befinden sich in direkter Umgebung.
Die Haltestelle Schloss Horst (ca. 6 Minuten zu Fuß) bietet Anbindung an Essen, Bottrop, Gladbeck und die Gelsenkirchener Innenstadt.
Der nahegelegene Nordsternpark lädt zu Spaziergängen, Fahrradtouren und kulturellen Events ein – ein Highlight für Freizeit und Erholung.
Infrastruktur (im Umkreis von 5 km):
Apotheke, Lebensmittel-Discount, Allgemeinmediziner, Kindergarten, Grundschule, Gesamtschule, Öffentliche Verkehrsmittel