Freie 3 ZKB Dachgeschoss, auch als Anlage attraktiv
179.900 €
Kaufpreis
79 m²
Wohnfläche
3
Zimmer
immobilien.de Nr.: 9459337
Objektnummer: 1111-3215-MR
Kaufpreis
| Kaufpreis | 179.900 € |
| Maklerprovision | 3,57% |
Wohnfläche, Grundstück & Bausubstanz
| Wohnfläche | 79 m² |
| Zimmer | 3 |
| Baujahr | 1978 |
| Verfügbar ab | keine Angabe |
| Zustand | Gepflegt |
Energie
| Energieausweistyp | Verbrauch |
| Gültig bis | 2029-02-05 |
| Baujahr (laut Energieausweis) | 1973 |
| Energieeffizienzklasse | D |
| Energieverbrauchkennwert | 129.00 kWh/(m²*a) |
| Heizungsart | Zentralheizung |
| Wesentlicher Energieträger | Oel |
| Energieträger/Befeuerung | Öl |
Beschreibung der Immobilie
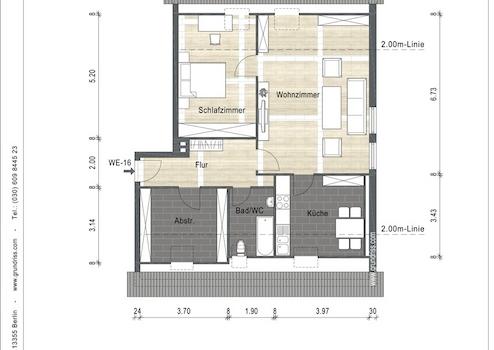
Diese 3 Zimmer Dachgeschosswohnung aus dem Baujahr 1978 bietet rund 79 m² Wohnfläche und eine klare, alltagstaugliche Aufteilung.
Über das gepflegte Treppenhaus erreichen Sie die Wohnung. Der Eingangsbereich führt in die zentralen Räume. Die Küche ist als separater Raum angelegt und bietet Platz für eine funktionale Einrichtung. Das Badezimmer ist hell gefliest und mit Badewanne, Waschbecken und WC ausgestattet.
Zwei gut nutzbare Zimmer eignen sich flexibel als Schlaf, Kinder oder Arbeitszimmer. Der Wohnbereich lässt sich angenehm möblieren und bildet den Mittelpunkt der Wohnung. Typisch für das Dachgeschoss sorgen Dachflächenfenster für Tageslicht und eine offene Raumwirkung.
Zur Wohnung gehören ein eigener Kellerraum sowie die Nutzung eines gemeinschaftlichen Fahrradraums und eines Trockenraums. Die Beheizung erfolgt über eine Ölheizung. Der Energieausweis weist die Effizienzklasse D aus.
Über das gepflegte Treppenhaus erreichen Sie die Wohnung. Der Eingangsbereich führt in die zentralen Räume. Die Küche ist als separater Raum angelegt und bietet Platz für eine funktionale Einrichtung. Das Badezimmer ist hell gefliest und mit Badewanne, Waschbecken und WC ausgestattet.
Zwei gut nutzbare Zimmer eignen sich flexibel als Schlaf, Kinder oder Arbeitszimmer. Der Wohnbereich lässt sich angenehm möblieren und bildet den Mittelpunkt der Wohnung. Typisch für das Dachgeschoss sorgen Dachflächenfenster für Tageslicht und eine offene Raumwirkung.
Zur Wohnung gehören ein eigener Kellerraum sowie die Nutzung eines gemeinschaftlichen Fahrradraums und eines Trockenraums. Die Beheizung erfolgt über eine Ölheizung. Der Energieausweis weist die Effizienzklasse D aus.
Ausstattungsmerkmale
| Anzahl der Etagen im Haus | 4 |
| Bad | 1 |
| Haustiere | |
| Keller |
**WEG /MFH
Das Vordach der Liegenschaft sowie der Eingangsbereich und die Kellerfenster sowie die Tür zum Fahrradraum wurden ca. 2022 renoviert.
Die Zentralheizung (Ölheizung) des Herstellers Buderus wurde ca. 2012 ersetzt und beliefert zuverlässig das 8 Familienhaus mit Wärme.
** Wohnung
* Fenster
Es sind 5 Dachgeschossfenster und 2 Fassadenfenster vorhanden. Drei von fünf Dachfenstern wurden 2010 ersetzt durch Kunststofffenster der Marke "Roto". Die zwei Holzfenster im Schlafzimmer und Wohnzimmer funktionieren einwandfrei und das Fenster in Schlafzimmer hat zudem auch die elektrische Rolladenansteuerung.
Die Fassadenfenster sind Kunststoff, zweifach verglast der Marke "Finestra".
* Klimaanlage
Es wurde eine Klimaanlage der Marke "Mitsubishi" installiert, sodass die Wohnung auch im Sommer angenehm ist.
Das Vordach der Liegenschaft sowie der Eingangsbereich und die Kellerfenster sowie die Tür zum Fahrradraum wurden ca. 2022 renoviert.
Die Zentralheizung (Ölheizung) des Herstellers Buderus wurde ca. 2012 ersetzt und beliefert zuverlässig das 8 Familienhaus mit Wärme.
** Wohnung
* Fenster
Es sind 5 Dachgeschossfenster und 2 Fassadenfenster vorhanden. Drei von fünf Dachfenstern wurden 2010 ersetzt durch Kunststofffenster der Marke "Roto". Die zwei Holzfenster im Schlafzimmer und Wohnzimmer funktionieren einwandfrei und das Fenster in Schlafzimmer hat zudem auch die elektrische Rolladenansteuerung.
Die Fassadenfenster sind Kunststoff, zweifach verglast der Marke "Finestra".
* Klimaanlage
Es wurde eine Klimaanlage der Marke "Mitsubishi" installiert, sodass die Wohnung auch im Sommer angenehm ist.
Sonstige Informationen
Das Hausgeld gilt ab 01.01.2026 und teilt sich auf in 122 € Rücklage mtl. (nicht umlagefähig) und 462 € für Bewirtschaftung (umlagefähig auf Mieter bei Vermietung). Die 462€ verstehen sich inkl. Heizkosten (Öl) und Warmwasseraufbereitung.
Die Liegenschaften Hardenburgstraße und Mardenburgstraße werden zusammen verwaltet bei der KUNZE Hausverwaltung. Es wird jährlich eine Rücklage von 25.000 € angespart. Diese Rücklagen dienen der langfristigen Substanzerhaltung der Liegenschaften.
Die Liegenschaften Hardenburgstraße und Mardenburgstraße werden zusammen verwaltet bei der KUNZE Hausverwaltung. Es wird jährlich eine Rücklage von 25.000 € angespart. Diese Rücklagen dienen der langfristigen Substanzerhaltung der Liegenschaften.
Karte wird geladen...
Objektstandort
67122 Altrip
- Rheinland-Pfalz
Lage & Infrastruktur
Objektstandort
67122 Altrip
- Rheinland-Pfalz
Die Wohnung im Dachgeschoss liegt in einem gewachsenen Wohnumfeld in Altrip und verbindet ruhiges Wohnen mit alltagstauglicher Infrastruktur.
Nahversorgung und Alltag
Für den täglichen Einkauf ist bestens gesorgt: PENNY liegt in der Nähe, ebenso EDEKA Kissel und Lidl. Arztpraxen sind ebenfalls gut erreichbar, was den Standort im Alltag angenehm unkompliziert macht.
Freizeit und Erholung
Grünflächen wie der Alte Friedhof sowie der Fischerfestplatz bieten in der Umgebung Möglichkeiten für Spaziergänge und eine kurze Auszeit im Freien.
Mobilität und Anbindung
Die nächste Bushaltestelle Altrip Goethestraße erreichen Sie fußläufig. Für die regionale und überregionale Anbindung liegen die Bahnhöfe Mannheim Neckarau und Mannheim Rheinau in kurzer Distanz. Mit dem Auto sind die Auffahrten zur A 656 und zur B 36 in wenigen Minuten erreichbar.
Nahversorgung und Alltag
Für den täglichen Einkauf ist bestens gesorgt: PENNY liegt in der Nähe, ebenso EDEKA Kissel und Lidl. Arztpraxen sind ebenfalls gut erreichbar, was den Standort im Alltag angenehm unkompliziert macht.
Freizeit und Erholung
Grünflächen wie der Alte Friedhof sowie der Fischerfestplatz bieten in der Umgebung Möglichkeiten für Spaziergänge und eine kurze Auszeit im Freien.
Mobilität und Anbindung
Die nächste Bushaltestelle Altrip Goethestraße erreichen Sie fußläufig. Für die regionale und überregionale Anbindung liegen die Bahnhöfe Mannheim Neckarau und Mannheim Rheinau in kurzer Distanz. Mit dem Auto sind die Auffahrten zur A 656 und zur B 36 in wenigen Minuten erreichbar.
Kontaktanfrage senden
Über den Anbieter
N.H. Immobilien Vertriebs GmbH Abt. RE/MAX Classic
Rheingönheimer Str.104
67065 Ludwigshafen
Kontakt
| Telefon | 004915757934293 |
| Website | www.remax-classic-lu.de |
Ansprechpartner/in
Herr Marco Rau
Weitere Angebote des Anbieters
13
REMAX -Gut vermietete kleine Wohnung, mit optimalen ...
Wohnung
67061 Ludwigshafen am Rhein
Diese gepflegte 2-Zimmer Etagenwohnung mit ca. 41 m² Wohnfläche bietet eine kompakte, gut vermietbare Einheit in einem Mehrfamilienhaus aus dem Baujahr 1936. Der Zuschnitt ist klar und funktional und eignet sich ...
135.000 €
Kaufpreis
41 m²
Wohnfläche
2
Zimmer
14
Achtung Kapitanleger ca. Rendite 5,3%, renovierte ...
Wohnung
67105 Schifferstadt
Diese gepflegte 2,5-Zimmer-Wohnung befindet sich im 2. Obergeschoss eines Mehrfamilienhauses aus dem Jahr 1981 in zentraler Lage von Schifferstadt. Mit einer Wohnfläche von ca. 76 m² überzeugt die Wohnung durch eine ...
175.000 €
Kaufpreis
76 m²
Wohnfläche
2,5
Zimmer
12
**** Großzügige 3 Zi. Wohnung – nähe BASF – mit Garage ...
Wohnung
67069 Ludwigshafen am Rhein / Oppau
Diese schicke Wohnung hat einen großzügigen und optimal geschnittenen Grundriss. Sie befindet sich in einem Mehrfamilienhaus mit nur drei Parteien. Auf ca. 88 m² Wohnfläche können Sie sich gemütlich und schick ...
850 €
Kaltmiete
850 €
Kaltmiete (netto)
9,66 €
Mietpreis pro m²
88 m²
Wohnfläche
3
Zimmer
17
***** Herrschaftliche Unternehmervilla im ...
Haus
67105 Schifferstadt
Diese außergewöhnliche Villa in Schifferstadt ist weit mehr als nur eine Villa – sie ist geprägt von einer historischen Geschichte und im wunderschönen Jugendstil-Dekor restauriert. Auf rund 524 m² kombiniert mit Wohn- ...
1.779.000 €
Kaufpreis
356 m²
Wohnfläche
8
Zimmer
19
Altbaucharme 3 Zimmer Dachgeschosswohnung in ruhiger ...
Wohnung
67136 Fußgönheim
Diese gepflegte 3 Zimmer Etagenwohnung bietet mit ca. 85 m² Wohnfläche ein großzügiges Raumangebot und eine klare, alltagstaugliche Aufteilung. Nach dem Eintreten gelangen Sie in den Flurbereich, von dem aus die Räume ...
765 €
Kaltmiete
765 €
Kaltmiete (netto)
9 €
Mietpreis pro m²
85 m²
Wohnfläche
3
Zimmer