Dein Lebenstraum - Homeoffice in deiner Landvilla in ruhiger Lage
499.000 €
Kaufpreis
146,2 m²
Wohnfläche
4
Zimmer
immobilien.de Nr.: 9427585
Objektnummer: BVIHCXL535327003
Kaufpreis
| Kaufpreis | 499.000 € |
| Maklerprovision | keine |
Wohnfläche, Grundstück & Bausubstanz
| Wohnfläche | 146,2 m² |
| Grundstücksfläche | 985 m² |
| Zimmer | 4 |
| Baujahr | 2026 |
| Verfügbar ab | keine Angabe |
| Zustand | Projektiert |
Energie
| Energietyp | KfW-40 |
| Heizungsart | Zentralheizung |
| Energieträger/Befeuerung | Luft-Wärme-Pumpe |
Beschreibung der Immobilie
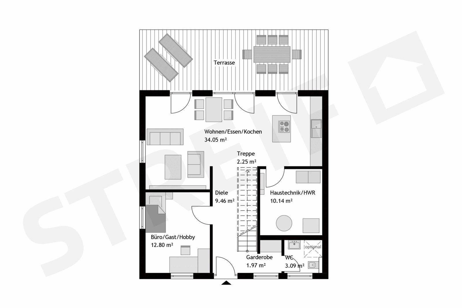
Herzlich Willkommen in Ihrer zukünftigen Stadtvilla auf dem Land, die individuell nach Ihren Wünschen projektiert wird. Diese beeindruckende Stadtvilla befindet sich im Neubaugebiet von Ulrichstein und bietet Ihnen mit ca 146 m² Wohnfläche und 4 Zimmern ausreichend Platz für Ihre Familie. Auf zwei Etagen erwarten Sie drei Schlafzimmer, zwei Badezimmer sowie ein praktisches Gäste-WC. Die durchdachte Raumgestaltung ermöglicht es Ihnen, jeden Winkel optimal zu nutzen. Die Kombination aus modernem Design und funktionalen Elementen macht Ihr neues Zuhause zu einem Ort des Wohlbefindens. Bei STREIF haben Sie die Möglichkeit, Ihre Wünsche hinsichtlich Stil und Ausstattung zu verwirklichen - sei es ein Flachdach oder Walmdach, eine Dachterrasse oder eine bestimmte Farbgestaltung. Unsere persönliche Bauberatung vor Ort wird Ihnen zahlreiche Gestaltungsmöglichkeiten aufzeigen, damit Sie Ihr Traumhaus ganz nach Ihren Vorstellungen realisieren können.
Ausstattungsmerkmale
| Anzahl der Etagen im Haus | 2 |
| Küche | Offene Küche |
| Bad | 2 |
| Bad | Dusche, Wanne |
| Boden | Fliesen, Parkett, Laminat, Kunststoff |
Die hochwertige Ausstattung Ihrer Stadtvilla umfasst gehobene Materialien und moderne Techniken, die sowohl ästhetisch als auch funktional überzeugen. Die Bodenbeläge können individuell gewählt werden: Fliesen, Laminat, Parkett oder PVC stehen zur Verfügung und bieten Ihnen sowohl Komfort als auch einfache Pflege. Eine Wärmepumpe sorgt für effiziente Beheizung und senkt Ihre Energiekosten, während der KFW40 Standard für eine hervorragende Energieeffizienz steht. Des Weiteren sind die Badezimmer mit einer Dusche sowie einer Wanne ausgestattet, was Ihnen eine Oase der Entspannung bietet.
Sonstige Informationen
Für Ihr Bauprojekt bieten wir Ihnen die Ausbaustufe 4 - Schlüsselfertig an, die alle notwendigen Wand- und Bodenbeläge sowie Zimmertüren umfasst. Diese Ausbaustufe ermöglicht es Ihnen, alle Leistungen aus einer Hand zu erhalten und Zeitvorteile unserer Bauweise optimal zu nutzen.
Karte wird geladen...
Objektstandort
35327 Ulrichstein
Lage & Infrastruktur
Objektstandort
35327 Ulrichstein
Die Stadtvilla liegt in einer ruhigen Umgebung in Ulrichstein, die sich ideal für Familien eignet. In der nahen Umgebung finden Sie alle wichtigen Einrichtungen wie eine Apotheke, Einkaufsmöglichkeiten, eine Grundschule und einen Kindergarten. Die Infrastruktur ermöglicht Ihnen ein komfortables Leben, während die ruhige Lage Ihnen den nötigen Rückzugsort bietet. Genießen Sie die Vorzüge einer naturnahen Umgebung mit vielfältigen Freizeitmöglichkeiten.
Kontaktanfrage senden
Über den Anbieter
STREIF Haus GmbH
Josef-Streif-Straße 1
54595 Weinsheim
Kontakt
| Mobil | +49 172 5852452 |
| Website | www.streif.de |
Ansprechpartner/in
Frau Isabell Herwig - STREIF Handelsvertreter
Weitere Angebote des Anbieters
30
STREIF baut Euer perfektes Zuhause
Haus
74232 Abstatt
Das zweieinhalbgeschossige Mehrfamilienhaus mit zwei Wohnungen überzeugt mit einer klassisch eleganten Architektur mit Satteldach und zwei behaglichen Terrassen. Der Hausentwurf kann mit Stahlbalkonen an der ...
1.425.170 €
Kaufpreis
358 m²
Wohnfläche
18
Zimmer
30
STREIF baut Euer perfektes Zuhause
Haus
74232 Abstatt
Das zweigeschossige Mehrfamilienhaus mit vier Wohnungen überzeugt mit einer klassisch eleganten Architektur mit Walmdach und zwei behaglichen Terrassen. Die Grundrissgestaltung bietet im Entwurf vier verschiedene ...
1.265.655 €
Kaufpreis
297 m²
Wohnfläche
16
Zimmer
16
STREIF baut Euer perfektes Zuhause
Haus
74232 Abstatt
Bungalow mit Satteldach mit flexiblem Raumkonzept Entdecken Sie die Möglichkeiten, Ihr Traumhaus als Bungalow mit einem Satteldach zu realisieren und erleben Sie eine zeitgemäße Architektur gepaart mit einem ...
865.019 €
Kaufpreis
113 m²
Wohnfläche
4
Zimmer
17
STREIF baut Euer perfektes Zuhause
Haus
74232 Abstatt
STREIF-Villa 4: Exklusives Wohnen mit Flachdach, zwei Erkern, Galerie und Dachterrasse Der Entwurf der exklusiven STREIF-Villa 4 bietet seinen Bewohnern zahlreiche luxuriöse Merkmale, darunter eine zweigeschossige ...
1.093.493 €
Kaufpreis
210 m²
Wohnfläche
8
Zimmer
18
STREIF baut Euer perfektes Zuhause
Haus
74232 Abstatt
STREIF-Doppelhausentwurf 1 - im Stadtvillenstil Die Architektur dieses Doppelhauses mit einem eleganten Walmdach strahlt zeitlose Modernität aus. Die Grundrisse sind so konzipiert, dass großzügige und komfortable Räume ...
883.180 €
Kaufpreis
140 m²
Wohnfläche
6
Zimmer