Wohn- und Geschäftsgebäude auch als ideale Kapitalanlage
950.000 €
Kaufpreis
124 m²
Wohnfläche
6
Zimmer
immobilien.de Nr.: 9420387
Objektnummer: 857649
Kaufpreis
| Kaufpreis | 950.000 € |
| Maklerprovision | 3,57 % (inkl. MwSt.) |
Wohnfläche, Grundstück & Bausubstanz
| Wohnfläche | 124 m² |
| Grundstücksfläche | 350 m² |
| Zimmer | 6 |
| Baujahr | 2007 |
| Verfügbar ab | nach Vereinbarung |
| Zustand | Gepflegt |
Energie
| Energieausweistyp | Verbrauch |
| Ausstellungsdatum | 29. 04. 2020 |
| Baujahr (laut Energieausweis) | 2007 |
| Energieeffizienzklasse | D |
| Energieverbrauchkennwert | 125.3 kWh/(m²*a) |
| Heizungsart | Zentralheizung |
| Wesentlicher Energieträger | Öl |
| Energieträger/Befeuerung | Öl |
Beschreibung der Immobilie
Das gepflegte Wohn- und Geschäftsgebäude befindet sich in zentraler Lage in Brannenburg im Inntal. In massiver Bauweise im Jahr 2006 erstellt, präsentiert sich das Mehrfamilienhaus in einem gepflegten Zustand. Die Grundstücksgröße beträgt ca. 350 Quadratmeter.
Im Erdgeschoss befindet sich eine moderne und attraktive Gewerbeeinheit für die Erstellung von Kompressoren. Im Obergeschoss eine sehr hübsche, gut vermietete 4 Zimmer Wohnung. Die Wohnung im Dachgeschoss gehört einem anderen Eigentümer.
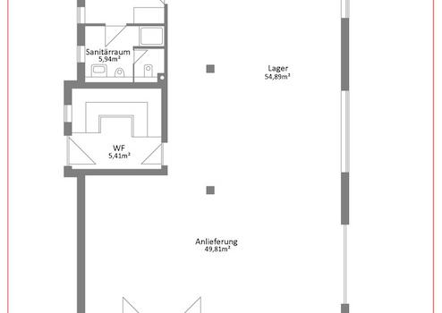
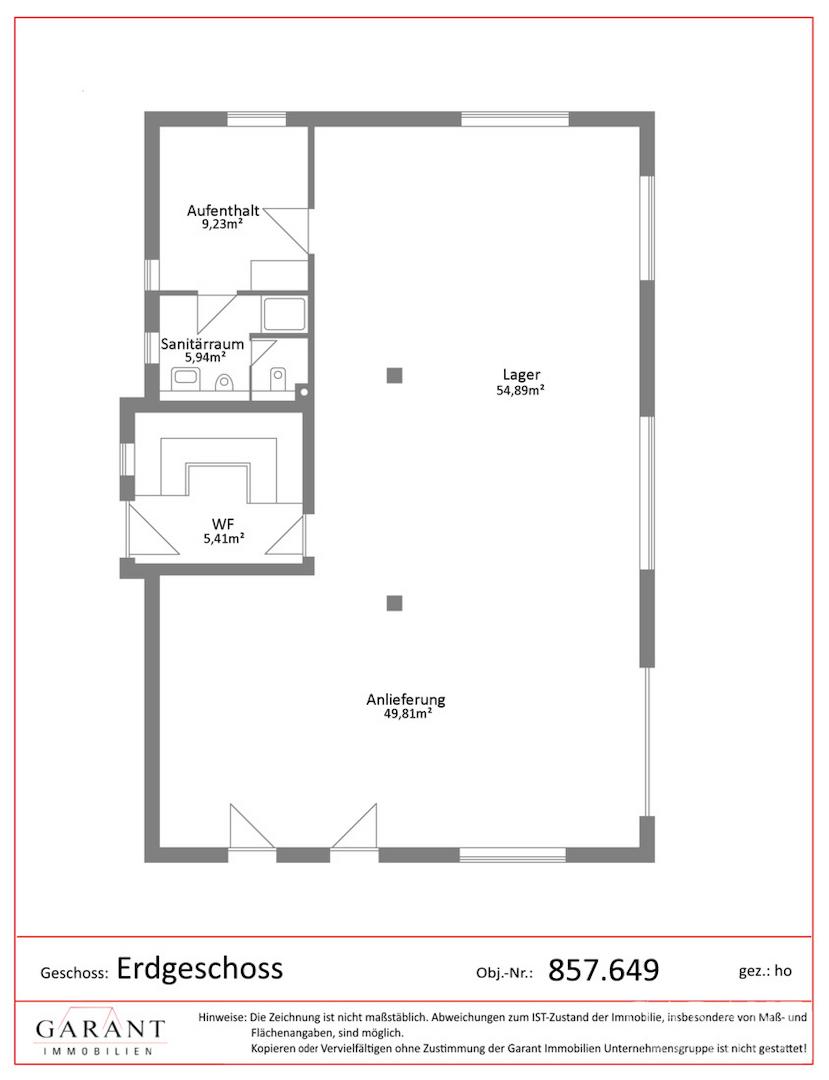
Die repräsentative Gewerbeeinheit verfügt im Erdgeschoss über einen eigenen Eingangsbereich, einem hochwertigen Bodenbelag und einer modernen Ausstattung. Der über ca. 120 qm große Bereich untergliedert sich in einem für Anlieferungen über eine großzügige Garage sowie einem Arbeitsbereich. Der Anlieferbereich ist mit einem Lastenaufzug zum Kellergeschoss verbunden. Weiter verfügt der Erdgeschoss-Bereich über einen abgetrennten Aufenthaltsraum mit einer kleinen Küchenzeile sowie einem Sanitärraum mit Dusche und Toilette.
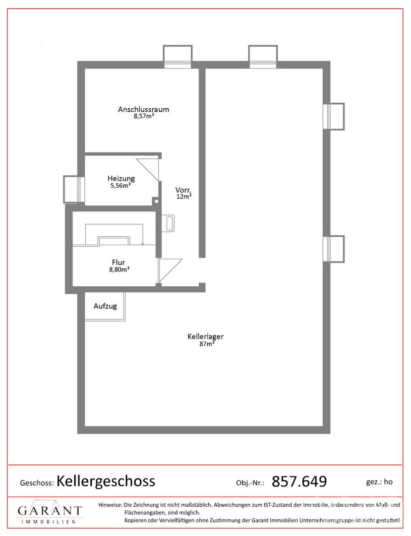
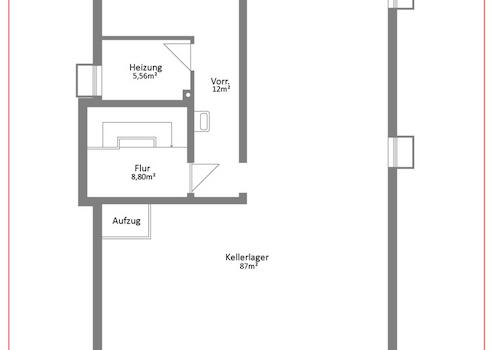
Im gesamten Kellergeschoss befindet sich das Lager, ein Anschlussraum sowie der Heizraum. Die monatliche Miete für die gesamte Gewerbeeinheit beträgt monatlich EUR 1.875 zzgl. Nebenkosten.
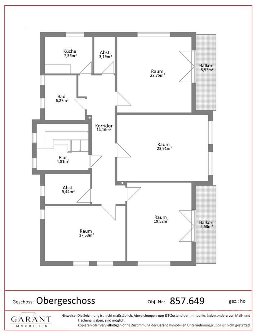
Die moderne 4 Zimmer-Wohnung im Obergeschoss des Mehrfamilienhauses verfügt über einen großzügigen Grundriss mit zwei Balkonen. Sie vermittelt ein behagliches Raumerlebnis, ca. 120 qm Wohnfläche und weist eine gemütliche Atmosphäre auf. Die Wohnung ist sehr gepflegt und derzeit gut vermietet. Vom Flur der Wohnung erreicht man einen länglichen Korridor, von dem alle Räume der Wohnung erreichbar sind. Wohnraum, Schlafraum, zwei weitere Räume, eine kleine Küche mit Abstellraum sowie Bad und WC. Der monatliche Mietzins beträgt EUR 1.200 zzgl. Nebenkosten.
Dieses Mehrfamilienhaus ist auch eine attraktive Gelegenheit für Investoren, die auf der Suche nach einem werthaltigen Objekt in einer zentralen Lage sind.
Weitere Angebote unter www.GARANT-IMMO.de
Im Erdgeschoss befindet sich eine moderne und attraktive Gewerbeeinheit für die Erstellung von Kompressoren. Im Obergeschoss eine sehr hübsche, gut vermietete 4 Zimmer Wohnung. Die Wohnung im Dachgeschoss gehört einem anderen Eigentümer.
Die repräsentative Gewerbeeinheit verfügt im Erdgeschoss über einen eigenen Eingangsbereich, einem hochwertigen Bodenbelag und einer modernen Ausstattung. Der über ca. 120 qm große Bereich untergliedert sich in einem für Anlieferungen über eine großzügige Garage sowie einem Arbeitsbereich. Der Anlieferbereich ist mit einem Lastenaufzug zum Kellergeschoss verbunden. Weiter verfügt der Erdgeschoss-Bereich über einen abgetrennten Aufenthaltsraum mit einer kleinen Küchenzeile sowie einem Sanitärraum mit Dusche und Toilette.
Im gesamten Kellergeschoss befindet sich das Lager, ein Anschlussraum sowie der Heizraum. Die monatliche Miete für die gesamte Gewerbeeinheit beträgt monatlich EUR 1.875 zzgl. Nebenkosten.
Die moderne 4 Zimmer-Wohnung im Obergeschoss des Mehrfamilienhauses verfügt über einen großzügigen Grundriss mit zwei Balkonen. Sie vermittelt ein behagliches Raumerlebnis, ca. 120 qm Wohnfläche und weist eine gemütliche Atmosphäre auf. Die Wohnung ist sehr gepflegt und derzeit gut vermietet. Vom Flur der Wohnung erreicht man einen länglichen Korridor, von dem alle Räume der Wohnung erreichbar sind. Wohnraum, Schlafraum, zwei weitere Räume, eine kleine Küche mit Abstellraum sowie Bad und WC. Der monatliche Mietzins beträgt EUR 1.200 zzgl. Nebenkosten.
Dieses Mehrfamilienhaus ist auch eine attraktive Gelegenheit für Investoren, die auf der Suche nach einem werthaltigen Objekt in einer zentralen Lage sind.
Weitere Angebote unter www.GARANT-IMMO.de
Ausstattungsmerkmale
| Anzahl der Etagen im Haus | 2 |
| Boden | Fliesen, Teppich |
| Balkone | 1 |
Sonstige Informationen
- Öl-Zentralheizung
- zwei Garagen
- fünf Stellplätze im Außenbereich
- zwei Balkone nach Westen ausgerichtet
- zwei Garagen
- fünf Stellplätze im Außenbereich
- zwei Balkone nach Westen ausgerichtet
Karte wird geladen...
Objektstandort
83098 Brannenburg
Lage & Infrastruktur
Objektstandort
83098 Brannenburg
Das Wohn-und Geschäftshaus befindet sich in einer ruhigen Gegend des Luftkurortes Brannenburg, das Zentrum von Brannenburg ist fußläufig zu erreichen. Die Infrastruktur ist hervorragend, man findet alles für den täglichen Bedarf.
Die Anbindung an den öffentlichen Nahverkehr ist ebenso optimal. Der Bahnhof ist nur wenige Minuten vom Objekt entfernt. Bestechend auch der kurze Weg und die schnelle Erreichbarkeit der Inntal-Autobahn mit der Anbindung nach Rosenheim/München sowie Kufstein/Innsbruck.
Die Anbindung an den öffentlichen Nahverkehr ist ebenso optimal. Der Bahnhof ist nur wenige Minuten vom Objekt entfernt. Bestechend auch der kurze Weg und die schnelle Erreichbarkeit der Inntal-Autobahn mit der Anbindung nach Rosenheim/München sowie Kufstein/Innsbruck.
Kontaktanfrage senden
Über den Anbieter
Garant Immobilien AG
Wilhelmstr.5
70182 Stuttgart
Kontakt
| Telefon | 08031/58 940-0 |
| Fax | 08031/58 940-40 |
| Website | www.garant-immo.de |
Ansprechpartner/in
Büro Rosenheim
Weitere Angebote des Anbieters
15
Traumhafte Penthousewohnung am Eingangstor zur ...
Wohnung
91301 Forchheim
Sie suchen noch - wir haben sie: Ihre Traum-Penthousewohnung! Willkommen in Ihrem neuen Zuhause über den Dächern der Stadt. Diese exklusive, lichtdurchflutete 3-Zimmer-Penthousewohnung vereint modernes Wohnen, ...
698.000 €
Kaufpreis
146 m²
Wohnfläche
3
Zimmer
24
**Villa mit Geschichte - für Menschen, die Charakter ...
Haus
95233 Helmbrechts
Dieses Haus richtet sich nicht an Käufer, die sterile Neubau-Optik suchen. Es richtet sich an Menschen, die wissen, was eine echte Villa ausmacht, Raumgefühl, Substanz, Geschichte und Präsenz. Mit 8 Zimmern, zwei ...
325.000 €
Kaufpreis
235 m²
Wohnfläche
8
Zimmer
14
Helle 3 Zimmer-Erdgeschoss-Wohnung in bester Wohnlage!
Wohnung
74206 Bad Wimpfen
Diese gut geschnittene Wohnung in einem Mehrfamilienhaus mit 6 Parteien überzeugt durch eine klare Raumaufteilung und eine helle, einladende Atmosphäre. Der großzügig dimensionierte Wohn- und Essbereich bildet das ...
260.000 €
Kaufpreis
73 m²
Wohnfläche
3
Zimmer
11
Ihr neues Zuhause! Charmante 3 Zimmer-Dachwohnung mit ...
Wohnung
71566 Althütte
Diese attraktive und lichtdurchflutete 3 Zimmer-Wohnung überzeugt durch ihre großzügige Raumaufteilung und ein angenehmes Wohnambiente. Die Wohnung befindet sich im Dachgeschoss eines gepflegten Mehrfamilienhauses und ...
214.000 €
Kaufpreis
75 m²
Wohnfläche
3
Zimmer
19
Ihr gemütliches Zuhause - sofort beziehbar!
Haus
82140 Olching
Entdecken Sie Ihr neues Zuhause: ein großzügiges Reiheneckhaus. Diese Immobilie bietet die perfekte Kombination aus ruhigem Wohnen und guter Anbindung an das pulsierende Leben. Das gepflegte Reiheneckhaus erstreckt ...
860.000 €
Kaufpreis
140 m²
Wohnfläche
5
Zimmer